LIFULL HOME'Sは物件鮮度No.1!※評価について
阪急京都本線 西向日駅 徒歩10分
4.3万円/管理費等3,000円
19時間前 更新
画像一覧
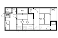
1/30間取り
間取
2/30外観
3/30外観
4/30リビング/ダイニング
5/30リビング/ダイニング
6/30室内
7/30室内
8/30室内
9/30室内
10/30室内
11/30室内
12/30室内
13/30キッチン
14/30キッチン
15/30キッチン
16/30浴室
17/30トイレ
18/30洗面
19/30収納
20/30収納
21/30収納
22/30収納
23/30設備
24/30設備
25/30玄関
26/30バルコニー
27/30バルコニー
28/30その他
29/30その他
30/30周辺
第五向陽小学校まで750m
間取り
外観
外観
リビング/ダイニング
リビング/ダイニング
室内
室内
室内
室内
室内
室内
室内
キッチン
キッチン
キッチン
浴室
トイレ
洗面
収納
収納
収納
収納
設備
設備
玄関
バルコニー
バルコニー
その他
その他
周辺
お問合せ先 :アパマンショップ伏見店 ウインズリンク株式会社
引越し料金割引
提携引越し業者あり、無料で見積もり・割引などもございます。
- 利用条件
- アパマンショップ伏見店 ウインズリンク株式会社で利用可
- 他特典との併用可
利用方法
来店時に本特典の画面をスマートフォンやタブレットでスタッフに提示、または画面印刷した用紙を提示ください。
有効期限 なし
阪急徒歩圏内 阪急西向日駅まで徒歩10分の周辺環境充実エリア
物件周辺の生活情報
学校
- 第五向陽小学校(750m)
- 勝山中学校(1,150m)
買い物
- コンビニ(460m)
- スーパー(200m)
交通
- 阪急京都本線 西向日駅 徒歩10分
- 普通(停車)
- 準急(停車)
- 堺筋準急(停車)
- 通勤特急(通過)
- 特急(通過)
- 急行(通過)
- 準特急(通過)
- JR東海道・山陽本線 長岡京駅 徒歩28分
- 普通(停車)
- 新快速(通過)
- 快速(停車)
- 緩行電車(停車)
- 特別快速(通過)
- 区間快速(通過)
※急行等の停車駅情報について
急行等の停車駅に関するデータは、随時更新をしておりますが、最新の内容であることを保証するものではありません。
最新かつ正確な情報につきましては、各鉄道会社のウェブサイトにてご確認ください
物件周辺の口コミ
- 京都府向日市上植野町に住む人の口コミ20代女性
阪急電鉄や、JRなど、交通の便がかなり良いので、お年寄りも生活しやすい。すぐ近くに、内科や整形外科など様々な病院がある。子育てに力を入れている。
口コミを見る
この物件周辺に住む人の口コミ
口コミは、LIFULL HOME'Sが実際にこの物件の周辺に住む18歳~69歳の男女を対象に、WEBアンケート調査を実施しています。内容には回答者の主観的な表現が含まれる場合があるほか、事実と異なる場合もございます。ご了承ください。
- 京都府向日市上植野町に住む人の口コミ20代女性
- 阪急電鉄や、JRなど、交通の便がかなり良いので、お年寄りも生活しやすい。すぐ近くに、内科や整形外科など様々な病院がある。子育てに力を入れている。
- 京都府向日市上植野町に住む人の口コミ30代女性
- 閑静な住宅街。という点において満足しています。交通手段として、バスや電車を考えると、やや不満足なので、どちらかといえば満足。とさせていただきました。
- 京都府向日市上植野町に住む人の口コミ30代女性
- 駅近ではないが、近くに学校があるのでそれほど防犯を意識していない
- 京都府向日市上植野町に住む人の口コミ20代男性
- 京都と大阪の中間にあり、公共交通機関や車を含めて交通の便が良い。大型商業施設が近く、スーパーや飲食店もあるため、近隣で生活を完結できる。静かな住宅街が多いため、周辺環境も良い。
- 京都府向日市上植野町に住む人の口コミ30代女性
- 買い物はしづらいが交通の便は良くすぐに他に出られるので問題ない
- 京都府向日市上植野町に住む人の口コミ30代女性
- 家から駅は徒歩20分以上あるが、車に乗れば大阪方面へも京都方面にも行きやすい。高速道路が近くにあるので遠出する時は便利である。家の近くにドラッグストア、スーパーができたので、毎日の買い物には困らない。
- 京都府向日市上植野町に住む人の口コミ30代女性
- 電車に乗るには20分ほど歩かなければならず、バスの本数も少ない点が少し残念。
- 京都府向日市上植野町に住む人の口コミ20代女性
- 幼稚園・コミュニティセンター等開放している事で子育て情報を共有できる場所がある。
- 京都府向日市上植野町に住む人の口コミ30代女性
- 観光客の人がすごく多くてマナーの問題はあるが歴史に触れられるし生活に不便していない
- 京都府長岡京市天神に住む人の口コミ30代男性
- 交通の便利さや商業施設が充実しているけど、魅力的な外食店が少ないから。
物件概要
- 建物構造
- 木造
- 駐車場
- 空無
- 総戸数
- 8戸
- 契約形態
- -
- 契約期間
- 2年間
- 更新料
- 新賃料の1ヶ月分
- その他費用
- 口座振替手数料:660円
- 保証会社
加入要
保証会社:日本セーフティー
保証会社利用料:初回:月額賃料等の80%、更新時:1.4万円/1年(最低保証料32000円)
- 住宅保険
- 要
- 管理
- -
- LIFULL HOME'S
物件番号 - 0116811-0142807
- 自社管理番号
- 08385-205-67
- 取引態様
- 仲介
- 会社名
- アパマンショップ伏見店 ウインズリンク株式会社
営業スタッフコメント

アパマンショップ伏見店 ウインズリンク株式会社営業
倉本楓生
体力勝負!お客様のご希望の部屋をとことんお探しします。
業界経験4年
- 会社実績や特徴・サービス情報
- アパマンショップ伏見店は大手筋商店街のアーケード内に店舗があり、最寄り駅は京阪本線の伏見桃山駅から徒歩2分、営業時間は9:30〜19:00となっております。 営業マンは親切・丁寧をモットーとし、お客様が喜んでいただけるのが営業マンの励みです。 伏見区や宇治市の住環境、車や電車等の交通便や利便性など、エリアの特性はお任せください。みなさん気になる「実際のところ」をお伝えいたします。 そして納得いくまでお部屋探し、お付き合いいたします。 ぜひ、気軽に立ち寄ってみてください。
アパマンショップ伏見店は大手筋商店街のアーケード内に店舗があり、最寄り駅は京阪本線の伏見桃山駅から徒歩2分、営業時間は9:30〜19:00となっております。 営業マンは親切・丁寧をモットーとし、お客様が喜んでいただけるのが営業マンの励みです。 伏見区や宇治市の住環境、車や電車等の交通便や利便性など、エリアの特性はお任せください。みなさん気になる「実際のところ」をお伝えいたします。 そして納得いくまでお部屋探し、お付き合いいたします。 ぜひ、気軽に立ち寄ってみてください。
- 電話でお問合せ(通話無料)
お問合せ先 :アパマンショップ伏見店 ウインズリンク株式会社
不動産会社情報
アパマンショップ伏見店 ウインズリンク株式会社アパマンショップ伏見店
京都府京都市伏見区京町3丁目170-1 岸和田ビル 1階
京阪本線 伏見桃山駅 徒歩1分
- 営業時間
- 09:30~19:00
- 定休日
- なし(盆休み8/13〜8/16・年末年始12/27〜1/4)
京阪本線「伏見桃山」駅から東へ徒歩1分。近鉄京都線「桃山御陵前」駅から西へ徒歩1分。伏見区でお部屋をお探しならアパマンショップ伏見店へ一度ご来店下さい。
- 店舗の特徴
- 賃貸管理業務
- 引越し業者紹介可
- 年中無休
- 駐車場あり
- 社宅・寮物件取扱い
- オンライン相談可
- 保証人不要な物件あり
- 法人契約取扱い
- 19時以降も営業
- 駅から歩いて3分以内
電話でお問合せお客様の電話番号は不動産会社には通知されません
- 不動産会社に
つながります
お客様の電話番号は不動産会社に通知されません
- ※光IP電話、及びIP電話からはご利用になれません
- ※お電話によるお問合せは、店舗営業時間内にお願いします。つながらない場合は、お問合せフォームよりお問合せください
- ※不動産会社がお電話に出られなかった場合、お問合せいただいた後に不動産会社より折り返しのお電話がある場合がございます(お客様が非通知設定した場合は対象外です)
- ※株式会社LIFULLは電話会社が提供するサービスを介してお客様の発信者番号を受領後、折り返し専用の電話番号を発番してお問合せの不動産会社に通知します(お客様の発信者番号がお問合せの不動産会社に通知されることはございません)
- ※携帯電話からお問合せいただいた方に対し、株式会社LIFULLは電話会社が提供するメッセ―ジサービスを介してお客様の発信者番号を受領後、ショートメッセージ(SMS)またはLINE通知メッセージによるお問合せ内容に関する通知をお届けする場合があります
- ※お客様が通話中に不動産会社にお伝えになったお客様の個人情報及び、電話会社が発番する折り返し専用の電話番号は、お問合せ先不動産会社が資料送付・電子メール送信・電話連絡などの目的で保管する可能性があります。お問合せ先不動産会社が保管する個人情報の取扱いについては、各不動産会社に直接お問合せください
- ※株式会社LIFULLでは本サービスを円滑に運用するために、お客様の発信者番号をサービスご利用の控えとして一定期間保管いたします
- ※上記および株式会社LIFULLの個人情報の取扱い方針に同意のうえ、お電話ください
【LIFULL HOME'S物件番号】0116811-0142807【自社管理番号】08385-205-67
オンライン対応
オンライン相談に対応している物件です

「オンライン内見」「オンライン相談」「IT重説」とは?
物件の内見や不動産会社スタッフとの相談、契約前の重要事項説明をオンライン(ビデオ通話)で行うことができるサービスです。
オンライン内見
ビデオ通話で現地(物件)にいる不動産会社スタッフと映像・音声を使ってリアルタイムで会話しながら内見ができます。
オンライン相談
「物件について聞きたいことがある」など不動産会社スタッフへの相談もビデオ通話で行うことができます。
IT重説
契約前の重要事項説明(重説)をビデオ通話で行うことができます。
利用時の注意事項
- ビデオ通話については各不動産会社指定のものとなります。
- ビデオ通話利用時には通信が発生します。従量課金制通信サービスや通信量に上限があるネット回線・プランを利用する場合は、通信量にご注意ください。
- 通信速度やアプリの設定によってはビデオ通話の画質が低下することがあります。安定した画質で利用するためにも、Wi-Fi環境下での利用を推奨します。
- ご利用のビデオ通話アプリによっては、対象のOSやブラウザに制限がある場合があります。詳しくはお問合せ先不動産会社にご確認ください。
初期費用・月額費用をあわせて確認!この物件に住んだときの費用めやす
めやすを見るこの物件に住んだときの費用めやす
- 初期費用
- 月額費用
- 追加費用※ご確認ください
追加で費用が
かかる場合があります
必ずご確認ください
初期費用めやす約0円
追加で費用がかかります(※)敷金
0
- 礼金
0
賃料+共益費・管理費の1ヶ月分として換算
賃料の1ヶ月分+税として換算。不動産会社によって金額が異なるため正確な金額は不動産会社にお問合せください
※追加費用もチェック!
これらの項目以外にも費用がかかる場合があります。正確な金額は不動産会社にお問合せください。
- 初期費用
- 鍵交換費:不動産会社に要確認
- 室内清掃費:不動産会社に要確認
- 火災保険費:不動産会社に要確認
- その他
- 口座振替手数料:660円
- 保証会社
- 初回:月額賃料等の80%、更新時:1.4万円/1年(最低保証料32000円)
不動産会社より
阪急徒歩圏内 阪急西向日駅まで徒歩10分の周辺環境充実エリア
阪急西向日駅まで徒歩10分の2Kです。礼金ナシ。コンビニ、スーパーなど近くにあって便利ですよ。
- 保存する
- 共有する
- ※各種情報と現状に差異がある場合は、現状優先となります
- ※不動産会社が入力した情報を基に物件の位置を表示しています。詳しくは不動産会社までお問合せください
- ※不動産会社の方からの上記電話番号によるお問合せはお断りしております。こちら不動産会社詳細からお問合せください
- ※LIFULL HOME'Sは物件鮮度No.1を目指していきます。閲覧中の物件が「成約済である」「実際の物件情報と異なる点がある」などの場合、「掲載110番」からお問合せください
- ※QRコードは株式会社デンソーウェーブの登録商標です
したい暮らしのタグから探す
同じ建物の他の部屋
LIFULL HOME'S 地図・周辺情報
買い物
- セブンイレブン 向日一文橋店
- スーパーマーケット神崎屋西合同店
- ドラッグユタカ向日上植野店
- ローソン 向日市上植野店
- ロイヤルプロ向日
グルメ
- にぎり長次郎 長岡京店
- ケンタッキーフライドチキン 向日市上植野店
- 大阪王将向日町店
- サイゼリヤ 上植野店
- 松のや向日町店
育児・教育
- 向日市立第6保育所
- 向日市立第5向陽小学校
- 向日市立勝山中学校
- さくらキッズ保育園
- 長岡京市立長岡第七小学校
医療
- 医療法人医修会新河端病院
- 医療法人社団千春会千春会病院
- (財)療道協会西山病院
- 医療法人総心会長岡京病院
- 一般財団法人仁風会京都南西病院
公共施設・郵便局
- 向日上植野郵便局
- 長岡京市立図書館
- 向日町警察署
- 長岡京柴の里郵便局
- 向日市立図書館
公園
- 史跡長岡宮跡朝堂院西第四堂跡朝堂院公園
- 勝竜寺城公園
- 勝竜寺城公園
- 長岡公園
- 西山公園
利用可能な駅
- 徒歩10分以内
阪急京都本線
- 西向日駅徒歩10分
- すべての駅
阪急京都本線
- 長岡天神駅徒歩25分
- 東向日駅徒歩32分
- 西山天王山駅3.5km
JR東海道・山陽本線
- 長岡京駅徒歩28分
- 向日町駅徒歩36分
- 周辺情報は2023年07月21日時点のものになります。
- 周辺情報は、参考情報としてのみご利用ください(周辺情報は、株式会社LIFULLが地図情報の提供事業者から提供を受けた情報とLIFULL HOME'Sの物件情報に基づき、独自の方法で抽出し提供しているものです。周辺情報は、移転や閉鎖等により情報が最新ではない、または正しくない場合がありますが、地図情報の提供事業者から提供された情報をそのまま周辺情報として表示しているため、正確かつ最新の情報へ修正することができないことがあります。)
- 周辺情報は、株式会社LIFULLが掲載するものであり、不動産物件情報を掲載している不動産会社が掲載するものではありません
- 交通情報の一部については、株式会社LIFULLが掲載するものであり、不動産物件情報を掲載している不動産会社が掲載するものではない場合があります。交通情報に関する質問などは株式会社LIFULLにお問合せください





