LIFULL HOME'Sは物件鮮度No.1!※評価について
JR山陰本線 梅小路京都西駅 徒歩1分
9.02万円/管理費等11,000円
11時間前 更新
画像一覧
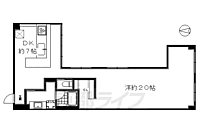
1/30間取り
間取
2/30外観
3/30外観
4/30リビング/ダイニング
5/30リビング/ダイニング
6/30リビング/ダイニング
7/30リビング/ダイニング
8/30リビング/ダイニング
9/30リビング/ダイニング
10/30リビング/ダイニング
11/30リビング/ダイニング
12/30キッチン
13/30キッチン
14/30キッチン
15/30浴室
16/30浴室
17/30トイレ
18/30洗面
19/30洗面
20/30収納
21/30収納
22/30収納
23/30設備
24/30設備
25/30設備
26/30設備
27/30玄関
28/30その他
29/30その他
・409号室からの眺望です
30/30周辺
サークルK 七条壬生店まで212m
間取り
外観
外観
リビング/ダイニング
リビング/ダイニング
リビング/ダイニング
リビング/ダイニング
リビング/ダイニング
リビング/ダイニング
リビング/ダイニング
リビング/ダイニング
キッチン
キッチン
キッチン
浴室
浴室
トイレ
洗面
洗面
収納
収納
収納
設備
設備
設備
設備
玄関
その他
その他
周辺
お問合せ先 :株式会社京都ライフ 百万遍店
仲介手数料割引
京都ライフなら、ご成約時に仲介手数料が家賃の50%(外税)です。
- 利用条件
- 株式会社京都ライフ 百万遍店で利用可
- 他特典との併用可
- ・法人契約時、事業用契約は除く。 ・積水ハウス、大東建託の管理物件は除く。
利用方法
来店時に本特典の画面をスマートフォンやタブレットでスタッフに提示、または画面印刷した用紙を提示ください。
有効期限 なし
定期借家
この物件の契約期間は、2年間です
※定期借家物件は、賃貸借契約期間満了後、原則として契約の更新ができない物件です。貸主との合意があれば再契約が可能な場合があります
リノベーション物件。 食に関わるビルです。 京都市下京区 中堂寺エリアのワンルームマンションです。
基本情報
不動産用語- 賃料
- 9.02万円
- 管理費等
- 11,000円
初期費用などお気軽にお問合せください
物件のこだわり/設備・条件
新築(非該当)
2階以上の物件(該当)
南向き(非該当)
駐車場(非該当)
オートロック(非該当)
エアコン(該当)
バス・トイレ別(該当)
追焚機能(非該当)
フローリング(該当)
ペット相談(非該当)
位置
角部屋入居条件
事務所可(SOHO向け)、二人入居可、即入居可キッチン/バス・トイレ
設備・サービス
TVモニタ付インターホン、エアコン、ウォークインクローゼット、CS対応、光ファイバー、公営水道、都市ガス、下水、オール電化、フローリング、室内洗濯機置場、エレベーター、駐輪場ありその他
デザイナーズ、住まい探し特典あり備考
嬉しい3点セパレートなど充実の設備。警備保障、TVホンでセキュリティも安心です。光ファイバー対応しています。 物件情報はもちろん京都のエリア情報まで幅広く対応させていただきます!
物件周辺の生活情報
学校
- 梅小路小学校(216m)
- 下京中学校(1,400m)
買い物
- コンビニ(212m)
- スーパー(884m)
その他施設
- 公園(191m)
- 銀行(210m)
- 七条新千本交番(171m)
交通
- JR山陰本線 梅小路京都西駅 徒歩1分
- 普通(停車)
- 快速とっとりライナー(通過)
- 快速通勤ライナー(通過)
- 快速(通過)
- JR山陰本線 丹波口駅 徒歩10分
- 普通(停車)
- 快速とっとりライナー(通過)
- 快速通勤ライナー(通過)
- 快速(通過)
※急行等の停車駅情報について
急行等の停車駅に関するデータは、随時更新をしておりますが、最新の内容であることを保証するものではありません。
最新かつ正確な情報につきましては、各鉄道会社のウェブサイトにてご確認ください
物件周辺の口コミ
- 京都府京都市下京区朱雀正会町に住む人の口コミ20代女性
基本的なことは自転車の範囲内で済ませられる。少し距離はあるが駅前に百貨店があるので、衣服の買い物もできる。
口コミを見る
この物件周辺に住む人の口コミ
口コミは、LIFULL HOME'Sが実際にこの物件の周辺に住む18歳~69歳の男女を対象に、WEBアンケート調査を実施しています。内容には回答者の主観的な表現が含まれる場合があるほか、事実と異なる場合もございます。ご了承ください。
- 京都府京都市下京区朱雀正会町に住む人の口コミ20代女性
- 基本的なことは自転車の範囲内で済ませられる。少し距離はあるが駅前に百貨店があるので、衣服の買い物もできる。
- 京都府京都市右京区松原通西大路西入に住む人の口コミ20代女性
- 不便はしていないが、慣れている分満足してるのか習慣化してるだけなのかわからないから。
- 京都府京都市右京区西京極前田町に住む人の口コミ30代男性
- 買い物には困らない。電車に乗れば服なども購入出来るので特に困ることがないところ。
- 京都府京都市中京区壬生下溝町に住む人の口コミ30代女性
- 都会として便利な暮らしはできるけれど、田舎の自然が欲しくなることがあります。
- 京都府京都市下京区中堂寺前田町に住む人の口コミ30代女性
- 近くにスーパーやコンビニがあり、最寄り駅にもほどほど近いから。
- 京都府京都市右京区西京極豆田町に住む人の口コミ20代女性
- 近くにスーパーもあり夜遅くまで営業している。薬局も夜中までやっており、とても助かっている。大きな公園もあり緑が見えて癒される。大通りから少し離れているので、適度に人もいて寂しくなく、うるさくもない。
- 京都府京都市中京区壬生相合町に住む人の口コミ20代男性
- 店の多さ、交通の便といった部分が満足している理由になる。ただ、家賃の高さがデメリットだと感じる
- 京都府京都市右京区西京極三反田町に住む人の口コミ30代女性
- 駅も遠すぎずバス停も近くて利便性が良い夜になると少し暗いところが多く少し危ない所があるがものすごく治安が悪い訳でもないのでまぁまぁ住みやすいと思った為。
- 京都府京都市下京区小坂町に住む人の口コミ30代男性
- 救急病院も複数あり、また公園も大小さまざまあり、育児環境は充実しておりほぼ満足しているが、個人的には職場が遠方なので、『どちらかといえば満足している』にしました。
- 京都府京都市右京区西京極中沢町に住む人の口コミ30代男性
- 交通に関しても駅まで15分以内だし、買い物や医療機関にアクセスしやすいことが非常に重要。また、近くに美味しい飲食店があるのも良い。
物件概要
- 建物構造
- RC(鉄筋コンクリート)
- 駐車場
- 空無
- 総戸数
- 43戸
- 契約形態
定期借家
- 契約期間
- 2年間
- 更新料
- 新賃料の1ヶ月分
- その他費用
- 鍵交換費用:33,000円、室内清掃費用:38,500円、抗菌除菌処理代:16,500円、DPC入会金:16,500円、DPC月額料:880円
- 保証会社
- -
- 住宅保険
- 要
- 管理
- -
- LIFULL HOME'S
物件番号 - 0148837-0094448
- 自社管理番号
- 59477-409-28
- 取引態様
- 仲介
- 会社名
- 株式会社京都ライフ 百万遍店
営業スタッフコメント

株式会社京都ライフ 百万遍店
今西駿平
京都賃貸なら京都ライフへお任せください!
業界経験2年
資格少額短期保険募集人
- 会社実績や特徴・サービス情報
- 百万遍交差点から東へすぐ!住まいに関するご相談はお任せ下さい。 国内外から多くの学生、研究者の集まる京都大学のメインキャンパスである吉田キャンパス。その北側、今出川通を挟んで向かい側に京都ライフ百万遍店がございます。 学生向けのワンルーム、1K物件や、左京区近辺のファミリー物件など、豊富な物件情報からお客様に合った物件をご提案いたします。 京都大学以外にも京都工芸繊維大学、京都芸術大学、京都精華大学、京都府立大学、ノートルダム女子大学、京都産業大学といった近隣の大学生向けのお部屋探しもお任せください!京都ライフ百万遍店のスタッフがお手伝いいたします。
百万遍交差点から東へすぐ!住まいに関するご相談はお任せ下さい。 国内外から多くの学生、研究者の集まる京都大学のメインキャンパスである吉田キャンパス。その北側、今出川通を挟んで向かい側に京都ライフ百万遍店がございます。 学生向けのワンルーム、1K物件や、左京区近辺のファミリー物件など、豊富な物件情報からお客様に合った物件をご提案いたします。 京都大学以外にも京都工芸繊維大学、京都芸術大学、京都精華大学、京都府立大学、ノートルダム女子大学、京都産業大学といった近隣の大学生向けのお部屋探しもお任せください!京都ライフ百万遍店のスタッフがお手伝いいたします。
- 電話でお問合せ(通話無料)
お問合せ先 :株式会社京都ライフ 百万遍店
不動産会社情報
京阪電鉄・叡山電鉄「出町柳駅」から徒歩9分、叡山電鉄「元田中駅」から徒歩10分。京都大学からは今出川通を挟んですぐ向かい。京都大学周辺、百万遍エリア、左京区のお部屋探しならお任せ下さい。
- 店舗の特徴
- 賃貸管理業務
- リフォーム対応
- 引越し業者紹介可
- 年中無休
- 系列店舗での対応可
- 保証人不要な物件あり
- 法人契約取扱い
電話でお問合せお客様の電話番号は不動産会社には通知されません
- 不動産会社に
つながります
お客様の電話番号は不動産会社に通知されません
- ※光IP電話、及びIP電話からはご利用になれません
- ※お電話によるお問合せは、店舗営業時間内にお願いします。つながらない場合は、お問合せフォームよりお問合せください
- ※不動産会社がお電話に出られなかった場合、お問合せいただいた後に不動産会社より折り返しのお電話がある場合がございます(お客様が非通知設定した場合は対象外です)
- ※株式会社LIFULLは電話会社が提供するサービスを介してお客様の発信者番号を受領後、折り返し専用の電話番号を発番してお問合せの不動産会社に通知します(お客様の発信者番号がお問合せの不動産会社に通知されることはございません)
- ※携帯電話からお問合せいただいた方に対し、株式会社LIFULLは電話会社が提供するメッセ―ジサービスを介してお客様の発信者番号を受領後、ショートメッセージ(SMS)またはLINE通知メッセージによるお問合せ内容に関する通知をお届けする場合があります
- ※お客様が通話中に不動産会社にお伝えになったお客様の個人情報及び、電話会社が発番する折り返し専用の電話番号は、お問合せ先不動産会社が資料送付・電子メール送信・電話連絡などの目的で保管する可能性があります。お問合せ先不動産会社が保管する個人情報の取扱いについては、各不動産会社に直接お問合せください
- ※株式会社LIFULLでは本サービスを円滑に運用するために、お客様の発信者番号をサービスご利用の控えとして一定期間保管いたします
- ※上記および株式会社LIFULLの個人情報の取扱い方針に同意のうえ、お電話ください
【LIFULL HOME'S物件番号】0148837-0094448【自社管理番号】59477-409-28
初期費用・月額費用をあわせて確認!この物件に住んだときの費用めやす
めやすを見るこの物件に住んだときの費用めやす
- 初期費用
- 月額費用
- 追加費用※ご確認ください
追加で費用が
かかる場合があります
必ずご確認ください
初期費用めやす約0円
追加で費用がかかります(※)敷金
0
- 礼金
180,400
- 保証金
82,000
賃料+共益費・管理費の1ヶ月分として換算
賃料の1ヶ月分+税として換算。不動産会社によって金額が異なるため正確な金額は不動産会社にお問合せください
※追加費用もチェック!
これらの項目以外にも費用がかかる場合があります。正確な金額は不動産会社にお問合せください。
- 初期費用
- 鍵交換費:33,000円
- 室内清掃費:38,500円
- 火災保険費:不動産会社に要確認
- その他
- 抗菌除菌処理代:16500円
- DPC入会金:16500円
- DPC月額料:880円
- 保証会社
- 不動産会社に要確認
不動産会社より
リノベーション物件。 食に関わるビルです。 京都市下京区 中堂寺エリアのワンルームマンションです。
嬉しい3点セパレートなど充実の設備。警備保障、TVホンでセキュリティも安心です。光ファイバー対応しています。 物件情報はもちろん京都のエリア情報まで幅広く対応させていただきます!
- 保存する
- 共有する
- ※各種情報と現状に差異がある場合は、現状優先となります
- ※不動産会社が入力した情報を基に物件の位置を表示しています。詳しくは不動産会社までお問合せください
- ※不動産会社の方からの上記電話番号によるお問合せはお断りしております。こちら不動産会社詳細からお問合せください
- ※LIFULL HOME'Sは物件鮮度No.1を目指していきます。閲覧中の物件が「成約済である」「実際の物件情報と異なる点がある」などの場合、「掲載110番」からお問合せください
- ※QRコードは株式会社デンソーウェーブの登録商標です
この物件を取扱う他の会社
LIFULL HOME'Sでは、主要項目が同一の物件をまとめて表示しています。所在地や営業時間、掲載画像等から不動産会社を選んでお問合せください。
株式会社京都ライフ 三条烏丸店
優良店認定
京都府京都市中京区三条通烏丸東入梅忠町24 三条COHJUBLDG 1階
京都市営烏丸線 烏丸御池駅 徒歩3分
- 営業時間
- 09:30~19:00
- 定休日
- 年中無休(夏期・年末年始を除く)
株式会社京都ライフ 二条駅前店
京都府京都市中京区西ノ京職司町72 ウエストフィールド1階
京都地下鉄東西線 二条駅 徒歩3分
- 営業時間
- 09:30~19:00
- 定休日
- 年中無休(盆正月を除く)
LIFULL HOME'S 地図・周辺情報
買い物
- セブンイレブン ハートインJR梅小路京都西駅前店
- 食材センターODA京都本店
- ダックス下京五条店
- ファミリーマート 梅小路京都西駅前店
- フレスコ 五条壬生川店
グルメ
- スターバックスコーヒービバスクエア京都梅小路公園店
- スシロー 五条七本松店
- モスバーガー 五条七本松店
- ケンタッキーフライドチキン 京都リサーチパーク店
- スターバックスコーヒーTSUTAYA京都リサーチパーク店
育児・教育
- アソカ幼稚園
- 京都市立梅小路小学校
- 私立龍谷大学付属平安中学校
- 知真保育園
- 京都市立七条小学校
医療
- 医療法人令寿会しまばら病院
- 医療法人健康会総合病院京都南病院
- 木津屋橋武田病院
- 医療法人愛友会明石病院
- 特定医療法人健康会新京都南病院
公共施設・郵便局
- 京都西七条郵便局
- 京都市下京図書館
- 京都市下京区役所
- 京都島原郵便局
- 京都市南図書館
公園
- 梅小路公園
- 梅小路公園
- 光徳公園
- 唐橋西寺公園
- 東大丸公園
利用可能な駅
- 徒歩10分以内
JR山陰本線
- 梅小路京都西駅徒歩1分
- 丹波口駅徒歩10分
- すべての駅
JR東海道・山陽本線
- 西大路駅徒歩19分
- 京都駅徒歩25分
近鉄京都線
- 東寺駅徒歩23分
- 十条駅徒歩31分
- 上鳥羽口駅3.6km
京福電気鉄道嵐山本線
- 四条大宮駅徒歩26分
- 西院駅徒歩31分
- 西大路三条駅3.2km
- 山ノ内駅4km
阪急京都本線
- 大宮駅徒歩28分
- 西院駅徒歩33分
- 西京極駅徒歩34分
- 烏丸駅3.2km
- 京都河原町駅4km
京都市営烏丸線
- 五条駅徒歩29分
- 九条駅徒歩32分
- 四条駅3.2km
- 十条駅3.4km
京阪本線
- 七条駅徒歩30分
- 清水五条駅3.1km
JR山陰本線
- 二条駅徒歩32分
京都地下鉄東西線
- 二条城前駅3.3km
- 西大路御池駅3.6km
- 烏丸御池駅4km
JR奈良線
- 東福寺駅3.6km
- 周辺情報は2023年07月21日時点のものになります。
- 周辺情報は、参考情報としてのみご利用ください(周辺情報は、株式会社LIFULLが地図情報の提供事業者から提供を受けた情報とLIFULL HOME'Sの物件情報に基づき、独自の方法で抽出し提供しているものです。周辺情報は、移転や閉鎖等により情報が最新ではない、または正しくない場合がありますが、地図情報の提供事業者から提供された情報をそのまま周辺情報として表示しているため、正確かつ最新の情報へ修正することができないことがあります。)
- 周辺情報は、株式会社LIFULLが掲載するものであり、不動産物件情報を掲載している不動産会社が掲載するものではありません
- 交通情報の一部については、株式会社LIFULLが掲載するものであり、不動産物件情報を掲載している不動産会社が掲載するものではない場合があります。交通情報に関する質問などは株式会社LIFULLにお問合せください












