LIFULL HOME'Sは物件鮮度No.1!※評価について
La Classical 4階
5.7万円/管理費等5,000円
17時間前 更新
画像一覧
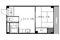
1/30間取り
間取
2/30外観
3/30外観
4/30外観
5/30リビング/ダイニング
6/30リビング/ダイニング
7/30リビング/ダイニング
8/30リビング/ダイニング
9/30キッチン
10/30キッチン
11/30浴室
12/30トイレ
13/30収納
14/30収納
15/30設備
16/30設備
17/30玄関
18/30バルコニー
19/30バルコニー
20/30エントランス
21/30その他
22/30その他
23/30その他
24/30その他
25/30その他
26/30その他
27/30その他
28/30その他
29/30その他
30/30周辺
サンディ京都山ノ内店まで160m
間取り
外観
外観
外観
リビング/ダイニング
リビング/ダイニング
リビング/ダイニング
リビング/ダイニング
キッチン
キッチン
浴室
トイレ
収納
収納
設備
設備
玄関
バルコニー
バルコニー
エントランス
その他
その他
その他
その他
その他
その他
その他
その他
その他
周辺
仲介手数料割引
ご成約時、仲介手数料は賃料50%(外税)です。
- 利用条件
- 株式会社京都ライフ 二条駅前店で利用可
- 他特典との併用可
- ・法人契約、事業用物件は除きます。 ・積水ハウス、大東建託の管理物件は除きます。
利用方法
来店時に本特典の画面をスマートフォンやタブレットでスタッフに提示、または画面印刷した用紙を提示ください。
有効期限 なし
部屋も収納も大です。 西院駅徒歩10分。閑静な住宅街にある1LDK。
物件のこだわり/設備・条件
新築(非該当)
2階以上の物件(該当)
南向き(該当)
駐車場(非該当)
オートロック(非該当)
エアコン(該当)
バス・トイレ別(該当)
追焚機能(非該当)
フローリング(該当)
ペット相談(非該当)
位置
角部屋入居条件
二人入居可、即入居可キッチン/バス・トイレ
設備・サービス
エアコン、CATV、BS対応、インターネット使用料無料、公営水道、都市ガス、下水、フローリング、出窓、バルコニー、南面バルコニー、駐輪場ありその他
住まい探し特典あり備考
西院駅まで徒歩10分の1LDK。お2人暮らしにもお1人暮らしにも。寝食しっかり分けられるのが嬉しいですね。静かな住宅街ながら近くにスーパー・コンビニ・ドラッグストアが充実しているのがポイント高め。礼金無しのうれしい条件です。落ち着いた環境で新生活を始めたい方、ぜひいかがでしょうか。右京区のお部屋探しを京都ライフまで。 物件情報はもちろん京都のエリア情報まで幅広く対応させていただきます!
物件周辺の生活情報
買い物
- コンビニ(308m)
- スーパー(160m)
- ドラッグストア(219m)
その他施設
- 総合病院(1,319m)
- 銀行(426m)
- 京都四条乾郵便局(338m)
交通
- 阪急京都本線 西院駅 徒歩10分
- 普通(停車)
- 準急(停車)
- 堺筋準急(停車)
- 通勤特急(停車)
- 特急(通過)
- 急行(停車)
- 準特急(停車)
- 京都地下鉄東西線 太秦天神川駅 徒歩14分
- 普通(停車)
※急行等の停車駅情報について
急行等の停車駅に関するデータは、随時更新をしておりますが、最新の内容であることを保証するものではありません。
最新かつ正確な情報につきましては、各鉄道会社のウェブサイトにてご確認ください
物件周辺の口コミ
- 京都府京都市右京区西院春栄町に住む人の口コミ60代男性
買い物も夜遅くまであいているスーパーがあり人通りもあり夜も安心
口コミを見る
この物件周辺に住む人の口コミ
口コミは、LIFULL HOME'Sが実際にこの物件の周辺に住む18歳~69歳の男女を対象に、WEBアンケート調査を実施しています。内容には回答者の主観的な表現が含まれる場合があるほか、事実と異なる場合もございます。ご了承ください。
- 京都府京都市右京区西院春栄町に住む人の口コミ60代男性
- 買い物も夜遅くまであいているスーパーがあり人通りもあり夜も安心
- 京都府京都市右京区西院春栄町に住む人の口コミ30代女性
- 近くになんでもあるし、繁華街まですぐ出れるのにごちゃごちゃしていない
- 京都府京都市右京区西院春栄町に住む人の口コミ40代女性
- 住宅街なので夜暗いところがある。道路が極端に狭いところがあり、車と人と行き来がし辛い箇所も。一方通行や通り抜けできないところ、地理を把握していないと住み辛い。
- 京都府京都市右京区西院春栄町に住む人の口コミ20代女性
- ファーストフード店がたくさんありコンビニもたくさんあるから何かと便利。
- 京都府京都市右京区西院春栄町に住む人の口コミ30代女性
- 車が多い地域なので、子供1人で外に行ったりはできないが、近くに公園もあり、児童館や保育園もあるので、不便はない。バスもたくさんあり、電車もあるので、交通の便に関してはたいへん満足している。
- 京都府京都市右京区西院春栄町に住む人の口コミ20代女性
- 最寄り駅からの交通アクセスも良く、飲食店も多いので生活には困らないです。
- 京都府京都市右京区西院春栄町に住む人の口コミ20代女性
- 暮らしていく中で必要なものは手近でてに入り、電車やバスですぐ街中にでられるところ。
- 京都府京都市中京区西ノ京原町に住む人の口コミ50代女性
- 車に乗れない私には電車、地下鉄、JR、市バスの便利がいいのは、どこでも行ける、最重要な条件が整っているので。
- 京都府京都市右京区蛸薬師通西大路西入に住む人の口コミ40代女性
- 交通の便が良いし、買い物するところもたくさん、飲食店も沢山ある。役所、図書館が遠い。
- 京都府京都市右京区西院追分町に住む人の口コミ50代女性
- 何かにつけて便利。ほぼすべて自転車で移動可能。坂道が少ない。
物件概要
- 建物構造
- ALC造
- 駐車場
- 近隣 16,500円(税込) 物件からの距離200m
- 総戸数
- 8戸
- 契約形態
- -
- 契約期間
- 2年間
- 更新料
- 新賃料の1ヶ月分
- その他費用
- 室内清掃費用:38,500円、RANZ CLUB:1,320円、書類代:11,000円、システム利用料:330円
- 保証会社
- -
- 住宅保険
- 要
- 管理
- 管理員:巡回
- LIFULL HOME'S
物件番号 - 0142941-0178217
- 自社管理番号
- 06716-401-27
- 取引態様
- 仲介
- 会社名
- 株式会社京都ライフ 二条駅前店
営業スタッフコメント

株式会社京都ライフ 二条駅前店
酒井栞
素晴らしいお部屋に出会えるまで全力でサポート致します!
業界経験2年
資格少額短期保険募集人
- 会社実績や特徴・サービス情報
- 京都市内部屋付け数3年連続1位。(株式会社全国賃貸住宅新聞調べ) 当店はJR山陰線、地下鉄東西線の二条駅から3分に立地し、通勤・通学のアクセスの良さ、近隣施設の充実から近年住みたい街と言われる二条駅すぐの所に店舗を構えております。 各エリア専門のスタッフが揃っておりますので、二条駅周辺だけでなく、京都市全域、向日市・長岡京市・宇治市など幅広くご紹介させて頂きます。 社会人のご単身・ファミリー様をはじめ、先端科学大学・同志社大学・立命館大学・京都大学など大学生のお部屋探しも全力でサポートさせて頂きます。 創業40年、地域密着に拘らせて頂いた京都最大級の物件情報をもとに、 誠心誠意、ご満足頂けるお部屋をご紹介させて頂きます。 お部屋を探しは京都ライフ 二条駅前店へ、お気軽にお立ち寄りください
京都市内部屋付け数3年連続1位。(株式会社全国賃貸住宅新聞調べ) 当店はJR山陰線、地下鉄東西線の二条駅から3分に立地し、通勤・通学のアクセスの良さ、近隣施設の充実から近年住みたい街と言われる二条駅すぐの所に店舗を構えております。 各エリア専門のスタッフが揃っておりますので、二条駅周辺だけでなく、京都市全域、向日市・長岡京市・宇治市など幅広くご紹介させて頂きます。 社会人のご単身・ファミリー様をはじめ、先端科学大学・同志社大学・立命館大学・京都大学など大学生のお部屋探しも全力でサポートさせて頂きます。 創業40年、地域密着に拘らせて頂いた京都最大級の物件情報をもとに、 誠心誠意、ご満足頂けるお部屋をご紹介させて頂きます。 お部屋を探しは京都ライフ 二条駅前店へ、お気軽にお立ち寄りください
- 電話でお問合せ(通話無料)
お問合せ先 :株式会社京都ライフ 二条駅前店
不動産会社情報
株式会社京都ライフ 二条駅前店
京都府京都市中京区西ノ京職司町72 ウエストフィールド1階
京都地下鉄東西線 二条駅 徒歩3分
- 営業時間
- 09:30~19:00
- 定休日
- 年中無休(盆正月を除く)
JR、地下鉄とアクセスの良さで人気の二条エリアはもちろん、京都中心地エリア、大宮エリア、西院エリア、円町エリア、北野白梅町エリアなど幅広いエリアでのお部屋探しをサポートいたします。
- 店舗の特徴
- 賃貸管理業務
- 24時間管理物件取扱い
- リフォーム対応
- 引越し業者紹介可
- バリアフリー
- 系列店舗での対応可
- 保証人不要な物件あり
- 法人契約取扱い
- 駅から歩いて3分以内
電話でお問合せお客様の電話番号は不動産会社には通知されません
- 不動産会社に
つながります
お客様の電話番号は不動産会社に通知されません
- ※光IP電話、及びIP電話からはご利用になれません
- ※お電話によるお問合せは、店舗営業時間内にお願いします。つながらない場合は、お問合せフォームよりお問合せください
- ※不動産会社がお電話に出られなかった場合、お問合せいただいた後に不動産会社より折り返しのお電話がある場合がございます(お客様が非通知設定した場合は対象外です)
- ※株式会社LIFULLは電話会社が提供するサービスを介してお客様の発信者番号を受領後、折り返し専用の電話番号を発番してお問合せの不動産会社に通知します(お客様の発信者番号がお問合せの不動産会社に通知されることはございません)
- ※携帯電話からお問合せいただいた方に対し、株式会社LIFULLは電話会社が提供するメッセ―ジサービスを介してお客様の発信者番号を受領後、ショートメッセージ(SMS)またはLINE通知メッセージによるお問合せ内容に関する通知をお届けする場合があります
- ※お客様が通話中に不動産会社にお伝えになったお客様の個人情報及び、電話会社が発番する折り返し専用の電話番号は、お問合せ先不動産会社が資料送付・電子メール送信・電話連絡などの目的で保管する可能性があります。お問合せ先不動産会社が保管する個人情報の取扱いについては、各不動産会社に直接お問合せください
- ※株式会社LIFULLでは本サービスを円滑に運用するために、お客様の発信者番号をサービスご利用の控えとして一定期間保管いたします
- ※上記および株式会社LIFULLの個人情報の取扱い方針に同意のうえ、お電話ください
【LIFULL HOME'S物件番号】0142941-0178217【自社管理番号】06716-401-27
初期費用・月額費用をあわせて確認!この物件に住んだときの費用めやす
めやすを見るこの物件に住んだときの費用めやす
- 初期費用
- 月額費用
- 追加費用※ご確認ください
追加で費用が
かかる場合があります
必ずご確認ください
初期費用めやす約0円
追加で費用がかかります(※)敷金
0
- 礼金
57,000
賃料+共益費・管理費の1ヶ月分として換算
賃料の1ヶ月分+税として換算。不動産会社によって金額が異なるため正確な金額は不動産会社にお問合せください
※追加費用もチェック!
これらの項目以外にも費用がかかる場合があります。正確な金額は不動産会社にお問合せください。
- 初期費用
- 鍵交換費:不動産会社に要確認
- 室内清掃費:38,500円
- 火災保険費:不動産会社に要確認
- 月額費用
- 駐車場費:16,500円(税込)※近隣
- その他
- RANZ CLUB:1320円
- 書類代:11000円
- システム利用料:330円
- 保証会社
- 不動産会社に要確認
不動産会社より
部屋も収納も大です。 西院駅徒歩10分。閑静な住宅街にある1LDK。
西院駅まで徒歩10分の1LDK。お2人暮らしにもお1人暮らしにも。寝食しっかり分けられるのが嬉しいですね。静かな住宅街ながら近くにスーパー・コンビニ・ドラッグストアが充実しているのがポイント高め。礼金無しのうれしい条件です。落ち着いた環境で新生活を始めたい方、ぜひいかがでしょうか。右京区のお部屋探しを京都ライフまで。 物件情報はもちろん京都のエリア情報まで幅広く対応させていただきます!
- 保存する
- 共有する
- ※各種情報と現状に差異がある場合は、現状優先となります
- ※不動産会社が入力した情報を基に物件の位置を表示しています。詳しくは不動産会社までお問合せください
- ※不動産会社の方からの上記電話番号によるお問合せはお断りしております。こちら不動産会社詳細からお問合せください
- ※LIFULL HOME'Sは物件鮮度No.1を目指していきます。閲覧中の物件が「成約済である」「実際の物件情報と異なる点がある」などの場合、「掲載110番」からお問合せください
- ※QRコードは株式会社デンソーウェーブの登録商標です
したい暮らしのタグから探す
この物件を取扱う他の会社
LIFULL HOME'Sでは、主要項目が同一の物件をまとめて表示しています。所在地や営業時間、掲載画像等から不動産会社を選んでお問合せください。
LIFULL HOME'S 地図・周辺情報
買い物
- セブンイレブン 京都山ノ内赤山町店
- サンディ京都山ノ内店
- スギ薬局山ノ内店
- セブンイレブン 西院春日通六角店
- フレスコ 西院店
グルメ
- なか卯 西院店
- 天下一品西院店
- マクドナルド 西院駅前店
- スシロー 京都西院店
- リンガーハット 京都ファミリー店
育児・教育
- 京都市立西院幼稚園
- 京都市立西院小学校
- 京都市立四条中学校
- 蜂ヶ岡けやき保育園分園つくし
- 京都市立山ノ内小学校
医療
- 医療法人社団京健会さいきょうクリニック
- 医療法人社団京健会介護医療院さいきょう
- 医療法人西大路病院
- 社会医療法人太秦病院
- 安威医院
公共施設・郵便局
- 京都四条乾郵便局
- 京都市右京中央図書館
- 京都市右京区役所
- 京都山ノ内郵便局
- 京都市中央図書館
公園
- 西院公園
- 東大丸公園
- 光徳公園
- 土堂公園
- 梅小路公園
利用可能な駅
- 徒歩10分以内
京福電気鉄道嵐山本線
- 山ノ内駅徒歩6分
- 西大路三条駅徒歩9分
阪急京都本線
- 西院駅徒歩10分
- すべての駅
京都地下鉄東西線
- 西大路御池駅徒歩12分
- 太秦天神川駅徒歩14分
- 二条城前駅徒歩34分
京福電気鉄道嵐山本線
- 西院駅徒歩14分
- 嵐電天神川駅徒歩17分
- 蚕ノ社駅徒歩20分
- 太秦広隆寺駅徒歩27分
- 四条大宮駅徒歩31分
- 帷子ノ辻駅徒歩36分
JR山陰本線
- 円町駅徒歩21分
- 二条駅徒歩24分
- 花園駅徒歩28分
- 丹波口駅徒歩35分
- 太秦駅徒歩37分
- 梅小路京都西駅3.8km
阪急京都本線
- 西京極駅徒歩26分
- 大宮駅徒歩31分
京福電気鉄道北野線
- 等持院・立命館大学衣笠キャンパス前駅徒歩32分
- 撮影所前駅徒歩34分
- 北野白梅町駅徒歩35分
- 妙心寺駅徒歩36分
- 龍安寺駅徒歩37分
- 常盤駅3.1km
- 御室仁和寺駅3.2km
- 鳴滝駅3.3km
- 宇多野駅3.4km
JR東海道・山陽本線
- 西大路駅3.6km
- 周辺情報は2023年07月21日時点のものになります。
- 周辺情報は、参考情報としてのみご利用ください(周辺情報は、株式会社LIFULLが地図情報の提供事業者から提供を受けた情報とLIFULL HOME'Sの物件情報に基づき、独自の方法で抽出し提供しているものです。周辺情報は、移転や閉鎖等により情報が最新ではない、または正しくない場合がありますが、地図情報の提供事業者から提供された情報をそのまま周辺情報として表示しているため、正確かつ最新の情報へ修正することができないことがあります。)
- 周辺情報は、株式会社LIFULLが掲載するものであり、不動産物件情報を掲載している不動産会社が掲載するものではありません
- 交通情報の一部については、株式会社LIFULLが掲載するものであり、不動産物件情報を掲載している不動産会社が掲載するものではない場合があります。交通情報に関する質問などは株式会社LIFULLにお問合せください
















