LIFULL HOME'Sは物件鮮度No.1!※評価について
京都市営烏丸線 烏丸御池駅 徒歩9分
9.4万円/管理費等8,000円
1日前 更新
画像一覧
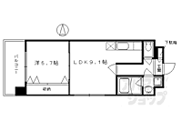
1/30間取り
間取
2/30外観
3/30外観
4/30リビング/ダイニング
5/30リビング/ダイニング
6/30リビング/ダイニング
7/30室内
8/30寝室
落ち着いた内装の室内です。
9/30寝室
10/30寝室
11/30寝室
12/30キッチン
使い勝手の良いキッチン。
13/30キッチン
14/30キッチン
15/30浴室
ゆったりセパレートタイプの浴室です。
16/30浴室
17/30トイレ
清潔感のある洋式トイレ。
18/30洗面
大きなミラーが便利なシャンプードレッサー。
19/30洗面
20/30洗面
21/30収納
たっぷり収納できます。
22/30設備
23/30設備
24/30設備
25/30玄関
シューズボックスも付いています。
26/30玄関
27/30バルコニー
日当たりの良いバルコニー。
28/30その他
29/30その他
30/30周辺
京都西洞院三条郵便局まで145m 西洞院の郵便局です
間取り
外観
外観
リビング/ダイニング
リビング/ダイニング
リビング/ダイニング
室内
寝室
寝室
寝室
寝室
キッチン
キッチン
キッチン
浴室
浴室
トイレ
洗面
洗面
洗面
収納
設備
設備
設備
玄関
玄関
バルコニー
その他
その他
周辺
お問合せ先 :株式会社京都ライフ 立命館大学前店
仲介手数料割引
ご成約時仲介手数料は賃料50%(外税)です。 ※一部除外有り。
- 利用条件
- 株式会社京都ライフ 立命館大学前店で利用可
- 他特典との併用可
- 法人契約、事業用物件は除きます。 大東建託、積水ハウス物件は除きます。
利用方法
来店時に本特典の画面をスマートフォンやタブレットでスタッフに提示、または画面印刷した用紙を提示ください。
有効期限 なし
24時間ごみだし可能 2口ガスコンロ設置可、宅配ボックスあり
基本情報
不動産用語- 賃料
- 9.4万円
- 管理費等
- 8,000円
初期費用などお気軽にお問合せください
- 敷金/礼金
- 無/9.4万円
- 保証金/敷引・償却金
- -/-
- 交通
京都市営烏丸線 烏丸御池駅 徒歩9分
京都市営烏丸線 四条駅 徒歩12分
- 所在地
京都府京都市中京区三条油小路町
地図を見る- 築年月
- 2006年1月(築20年)
- 主要採光面
- 南西
- 専有面積
- 37.58㎡
- バルコニー面積
- -
- 所在階/階数
- 7階/8階建
入居可能日などお気軽にお問合せください
- 現況
- 賃貸中
- 入居可能時期
- 2025年12月 中旬

人気物件はすぐに埋まってしまいます。
気になったらお早めにお問合せください。
- 情報公開日
2025/10/06
51日前 公開
- 情報更新日
2025/11/25
1日前 更新
- 次回更新
予定日 - 2025/12/08
物件のこだわり/設備・条件
新築(非該当)
2階以上の物件(該当)
南向き(非該当)
駐車場(非該当)
オートロック(該当)
エアコン(該当)
バス・トイレ別(該当)
追焚機能(非該当)
フローリング(該当)
ペット相談可(該当)
位置
角部屋入居条件
二人入居可、ペット相談、保証人不要キッチン/バス・トイレ
設備・サービス
オートロック、エアコン、シューズボックス、CATV、CS対応、BS対応、光ファイバー、インターネット使用料無料、公営水道、都市ガス、下水、フローリング、バルコニー、室内洗濯機置場、タイル貼り、エレベーター、宅配ボックス、駐輪場ありその他
住まい探し特典あり備考
2口ガスコンロ設置可・シャンプードレッサー・宅配ボックス・ディンプルキーなど設備充実です。近くに保育園もあるので新婚さん、ファミリーさんにオススメです。四条烏丸、烏丸御池、二条、大宮など、どこへ行くにも便利な立地ですよ。こんなところに住んだら、もう他には住めなくなっちゃいますよ。三条商店街も近いので、買い物便利、なおかつ京... 物件情報はもちろん京都のエリア情報まで幅広く対応させていただきます!
物件周辺の生活情報
学校
- 高倉小学校(771m)
- 京都御池中学校(1,000m)
買い物
- コンビニ(232m)
- スーパー(493m)
- 商店街(230m)
その他施設
- 総合病院(224m)
- 銀行(194m)
- 中京警察署(762m)
交通
- 京都市営烏丸線 烏丸御池駅 徒歩9分
- 普通(停車)
- 急行(停車)
- 京都市営烏丸線 四条駅 徒歩12分
- 普通(停車)
- 急行(停車)
※急行等の停車駅情報について
急行等の停車駅に関するデータは、随時更新をしておりますが、最新の内容であることを保証するものではありません。
最新かつ正確な情報につきましては、各鉄道会社のウェブサイトにてご確認ください
物件周辺の口コミ
- 京都府京都市中京区三条通油小路下るに住む人の口コミ40代女性
自然が少ないが交通の便が良く、買い物には困らない。銀行や郵便局も近くにたくさんあり、飲みに行っても徒歩で帰れる、しかし自転車移動が必須。車が多い、車の維持費が高く遠くに出かける時に困る
口コミを見る
この物件周辺に住む人の口コミ
口コミは、LIFULL HOME'Sが実際にこの物件の周辺に住む18歳~69歳の男女を対象に、WEBアンケート調査を実施しています。内容には回答者の主観的な表現が含まれる場合があるほか、事実と異なる場合もございます。ご了承ください。
- 京都府京都市中京区三条通油小路下るに住む人の口コミ40代女性
- 自然が少ないが交通の便が良く、買い物には困らない。銀行や郵便局も近くにたくさんあり、飲みに行っても徒歩で帰れる、しかし自転車移動が必須。車が多い、車の維持費が高く遠くに出かける時に困る
- 京都府京都市中京区三条通油小路下るに住む人の口コミ50代女性
- 生活する上で便利がよく、安心安全に暮らせる。特に困ることがない。
- 京都府京都市中京区三条通油小路下るに住む人の口コミ50代女性
- 買い物するには近所に店が多くて便利。お互いの留守の時など近所で注意しあっている。
- 京都府京都市中京区三条通油小路下るに住む人の口コミ40代女性
- 買い物がしやすく、駐車場代は高いが、義親の車を借りて子育てするには最適。義両親と近所にするでいるので近所の人とも顔見知りになり、これ以上ない快適な子供にとっても良い生活
- 京都府京都市中京区衣棚通押小路下るに住む人の口コミ40代女性
- 公共機関が充実しており、治安が良く夜は比較的静かです。掛かりつけの病院、美容室も歩いて行ける範囲に揃ってる
- 京都府京都市中京区油小路通竹屋町下る西入に住む人の口コミ20代女性
- 駅まで歩いて10分だし、河原町まで電車ですぐ行けるので美容室などにも行きやすいと感じるから
- 京都府京都市中京区竹屋町通西洞院西入に住む人の口コミ20代女性
- 治安が悪くないこと、スーパーが近くにあるので買い物が便利。また、行列店がたくさんあるわけではないのでそこそこ落ち着いて行動できる。
- 京都府京都市中京区御池通東洞院西入に住む人の口コミ20代男性
- ・街の要衝。中心部でほとんど不自由なことはないが、近くを走っている市営地下鉄の終電が早い。
- 京都府京都市上京区下立売通黒門西入に住む人の口コミ40代女性
- 府庁や警察や病院が近くにある。静か。近くにコンビニやスーパーがある。バスが沢山ある。
- 京都府京都市上京区猪熊通下立売上るに住む人の口コミ30代男性
- 今までこの街で暮らしてきて不自由を感じてこなかった点とこれから一生涯この街で暮らしても不自由を感じないだろうと思う点から満足しています。
物件概要
- 建物構造
- RC(鉄筋コンクリート)
- 駐車場
- 空無
- 総戸数
- 41戸
- 契約形態
- -
- 契約期間
- 2年間
- 更新料
- 新賃料の1ヶ月分
- その他費用
- 鍵交換費用:16,500円、室内清掃費用:34,000円、水道代:2,300円、書類代:18,700円
- 保証会社
- -
- 住宅保険
- 要
- 管理
- 管理員:巡回
- LIFULL HOME'S
物件番号 - 0143972-0093889
- 自社管理番号
- 05A7D-701-14
- 取引態様
- 仲介
- 会社名
- 株式会社京都ライフ 立命館大学前店
営業スタッフコメント

株式会社京都ライフ 立命館大学前店
田邉みらい
笑顔で頑張ります!
業界経験1年
- 会社実績や特徴・サービス情報
- 京都ライフは40年以上京都に根付いている老舗仲介店舗です。長年培った物件情報は3万戸以上。地元密着企業ならではの情報力を元にお客様に喜んでいただけるお部屋探しを提供いたします。
京都ライフは40年以上京都に根付いている老舗仲介店舗です。長年培った物件情報は3万戸以上。地元密着企業ならではの情報力を元にお客様に喜んでいただけるお部屋探しを提供いたします。
- 電話でお問合せ(通話無料)
お問合せ先 :株式会社京都ライフ 立命館大学前店
不動産会社情報
株式会社京都ライフ 立命館大学前店

京都府京都市北区小松原北町26-5
京福電気鉄道北野線 等持院・立命館大学衣笠キャンパス前駅 徒歩8分
- 営業時間
- 09:30~19:00
- 定休日
- 水曜定休(4/21〜9/20の期間)、盆・正月
優良店認定
立命館大学衣笠キャンパス東門を出てすぐ。立命館大学から気軽にお立ち寄り頂けます。立命館大学周辺、衣笠エリアのお部屋探しは京都ライフ立命館大学前店へお任せ下さい。スタッフ一同ご来店をお待ちしております。
- 店舗の特徴
- 賃貸管理業務
- 24時間管理物件取扱い
- リフォーム対応
- 引越し業者紹介可
- 年中無休
- 送迎あり
- 系列店舗での対応可
- オンライン相談可
- 保証人不要な物件あり
- 法人契約取扱い
電話でお問合せお客様の電話番号は不動産会社には通知されません
- 不動産会社に
つながります
お客様の電話番号は不動産会社に通知されません
- ※光IP電話、及びIP電話からはご利用になれません
- ※お電話によるお問合せは、店舗営業時間内にお願いします。つながらない場合は、お問合せフォームよりお問合せください
- ※不動産会社がお電話に出られなかった場合、お問合せいただいた後に不動産会社より折り返しのお電話がある場合がございます(お客様が非通知設定した場合は対象外です)
- ※株式会社LIFULLは電話会社が提供するサービスを介してお客様の発信者番号を受領後、折り返し専用の電話番号を発番してお問合せの不動産会社に通知します(お客様の発信者番号がお問合せの不動産会社に通知されることはございません)
- ※携帯電話からお問合せいただいた方に対し、株式会社LIFULLは電話会社が提供するメッセ―ジサービスを介してお客様の発信者番号を受領後、ショートメッセージ(SMS)またはLINE通知メッセージによるお問合せ内容に関する通知をお届けする場合があります
- ※お客様が通話中に不動産会社にお伝えになったお客様の個人情報及び、電話会社が発番する折り返し専用の電話番号は、お問合せ先不動産会社が資料送付・電子メール送信・電話連絡などの目的で保管する可能性があります。お問合せ先不動産会社が保管する個人情報の取扱いについては、各不動産会社に直接お問合せください
- ※株式会社LIFULLでは本サービスを円滑に運用するために、お客様の発信者番号をサービスご利用の控えとして一定期間保管いたします
- ※上記および株式会社LIFULLの個人情報の取扱い方針に同意のうえ、お電話ください
【LIFULL HOME'S物件番号】0143972-0093889【自社管理番号】05A7D-701-14
オンライン対応
オンライン相談に対応している物件です

「オンライン内見」「オンライン相談」「IT重説」とは?
物件の内見や不動産会社スタッフとの相談、契約前の重要事項説明をオンライン(ビデオ通話)で行うことができるサービスです。
オンライン内見
ビデオ通話で現地(物件)にいる不動産会社スタッフと映像・音声を使ってリアルタイムで会話しながら内見ができます。
オンライン相談
「物件について聞きたいことがある」など不動産会社スタッフへの相談もビデオ通話で行うことができます。
IT重説
契約前の重要事項説明(重説)をビデオ通話で行うことができます。
利用時の注意事項
- ビデオ通話については各不動産会社指定のものとなります。
- ビデオ通話利用時には通信が発生します。従量課金制通信サービスや通信量に上限があるネット回線・プランを利用する場合は、通信量にご注意ください。
- 通信速度やアプリの設定によってはビデオ通話の画質が低下することがあります。安定した画質で利用するためにも、Wi-Fi環境下での利用を推奨します。
- ご利用のビデオ通話アプリによっては、対象のOSやブラウザに制限がある場合があります。詳しくはお問合せ先不動産会社にご確認ください。
初期費用・月額費用をあわせて確認!この物件に住んだときの費用めやす
めやすを見るこの物件に住んだときの費用めやす
- 初期費用
- 月額費用
- 追加費用※ご確認ください
追加で費用が
かかる場合があります
必ずご確認ください
初期費用めやす約0円
追加で費用がかかります(※)敷金
0
- 礼金
94,000
賃料+共益費・管理費の1ヶ月分として換算
賃料の1ヶ月分+税として換算。不動産会社によって金額が異なるため正確な金額は不動産会社にお問合せください
※追加費用もチェック!
これらの項目以外にも費用がかかる場合があります。正確な金額は不動産会社にお問合せください。
- 初期費用
- 鍵交換費:16,500円
- 室内清掃費:34,000円
- 火災保険費:不動産会社に要確認
- その他
- 水道代:2300円
- 書類代:18700円
- 保証会社
- 不動産会社に要確認
不動産会社より
24時間ごみだし可能 2口ガスコンロ設置可、宅配ボックスあり
2口ガスコンロ設置可・シャンプードレッサー・宅配ボックス・ディンプルキーなど設備充実です。近くに保育園もあるので新婚さん、ファミリーさんにオススメです。四条烏丸、烏丸御池、二条、大宮など、どこへ行くにも便利な立地ですよ。こんなところに住んだら、もう他には住めなくなっちゃいますよ。三条商店街も近いので、買い物便利、なおかつ京... 物件情報はもちろん京都のエリア情報まで幅広く対応させていただきます!
- 保存する
- 共有する
- ※各種情報と現状に差異がある場合は、現状優先となります
- ※不動産会社が入力した情報を基に物件の位置を表示しています。詳しくは不動産会社までお問合せください
- ※不動産会社の方からの上記電話番号によるお問合せはお断りしております。こちら不動産会社詳細からお問合せください
- ※LIFULL HOME'Sは物件鮮度No.1を目指していきます。閲覧中の物件が「成約済である」「実際の物件情報と異なる点がある」などの場合、「掲載110番」からお問合せください
- ※QRコードは株式会社デンソーウェーブの登録商標です
したい暮らしのタグから探す
この物件を取扱う他の会社
LIFULL HOME'Sでは、主要項目が同一の物件をまとめて表示しています。所在地や営業時間、掲載画像等から不動産会社を選んでお問合せください。
(株)京都ライフ 今出川店
京都府京都市上京区烏丸通今出川上る御所八幡町115 コーポ千尋 1階
京都市営烏丸線 今出川駅 徒歩1分
- 営業時間
- 09:30~19:00
- 定休日
- 年中無休(盆正月を除く)
最近見た賃貸物件
LIFULL HOME'S 地図・周辺情報
買い物
- セブンイレブン 京都堀川三条店
- ライフ 四条烏丸店
- ダックス京都御池店
- ローソン 三条堀川店
- フレスコ プチ新町御池店
グルメ
- なか卯 二条城店
- めしや宮本むなし 御池店
- モスバーガー 烏丸御池店
- まいどおおきに食堂 四条西洞院食堂
- スターバックスコーヒー京都三条烏丸ビル店
育児・教育
- 光明幼稚園
- 京都市立洛中小学校
- 京都市立洛風中学校
- 六満こども園
- 京都市立高倉小学校
医療
- 医療法人知音会京都新町病院
- 山元病院
- 医療法人毛利病院
- 医療法人財団足立病院
- 京都第二赤十字病院
公共施設・郵便局
- 京都西洞院三条郵便局
- 京都市こどもみらい館子育て図書館
- 京都市中京区役所
- 京都新町蛸薬師郵便局
- 京都市下京図書館
公園
- 梅屋広場公園
- 光徳公園
- 京都御苑
- 梅小路公園
- 梅小路公園
利用可能な駅
- 徒歩10分以内
京都市営烏丸線
- 烏丸御池駅徒歩9分
- すべての駅
京都市営烏丸線
- 四条駅徒歩12分
- 周辺情報は2023年07月21日時点のものになります。
- 周辺情報は、参考情報としてのみご利用ください(周辺情報は、株式会社LIFULLが地図情報の提供事業者から提供を受けた情報とLIFULL HOME'Sの物件情報に基づき、独自の方法で抽出し提供しているものです。周辺情報は、移転や閉鎖等により情報が最新ではない、または正しくない場合がありますが、地図情報の提供事業者から提供された情報をそのまま周辺情報として表示しているため、正確かつ最新の情報へ修正することができないことがあります。)
- 周辺情報は、株式会社LIFULLが掲載するものであり、不動産物件情報を掲載している不動産会社が掲載するものではありません
- 交通情報の一部については、株式会社LIFULLが掲載するものであり、不動産物件情報を掲載している不動産会社が掲載するものではない場合があります。交通情報に関する質問などは株式会社LIFULLにお問合せください














































