LIFULL HOME'Sは物件鮮度No.1!※評価について
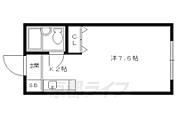
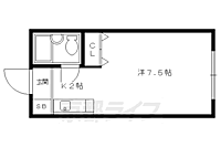
デジデンス宝ヶ池(3階/ワンルーム/17.04㎡)
デジデンス宝ヶ池(3階/ワンルーム/17.04㎡)
3.5万円/管理費等-
3時間前 更新
画像一覧
1/25間取り
2/25外観
3/25リビング/ダイニング
洋室
4/25室内
洋室
5/25寝室
洋室
6/25寝室
洋室
7/25子供部屋
洋室
8/25キッチン
キッチン
9/25キッチン
キッチン
10/25キッチン
キッチン
11/25浴室
ユニットバス
12/25浴室
ユニットバス
13/25浴室
ユニットバス
14/25設備
下駄箱
15/25玄関
玄関
16/25その他
廊下
17/25その他
エアコン
18/25その他
突っ張り棒
19/25その他
コンセント
20/25周辺
フレスコ 上高野店まで740メートル
21/25周辺
ミニストップ 白川通上高野店まで580メートル
22/25周辺
ダックス 宝ヶ池店まで950メートル
23/25周辺
叡山電車宝ヶ池駅まで70メートル
24/25周辺
京都工芸繊維大学まで1730メートル
25/25周辺
上高野郵便局まで130メートル
間取り
外観
リビング/ダイニング
室内
寝室
寝室
子供部屋
キッチン
キッチン
キッチン
浴室
浴室
浴室
設備
玄関
その他
その他
その他
その他
周辺
周辺
周辺
周辺
周辺
周辺
お問合せ先 :株式会社エリッツ 京都芸術大学前店
住まい探し特典内容
電気・ガス・インターネットの手続き代行のご案内します。
- 利用条件
- 株式会社エリッツ 京都芸術大学前店で利用可
- 他特典との併用可
利用方法
来店時に本特典の画面をスマートフォンやタブレットでスタッフに提示、または画面印刷した用紙を提示ください。
有効期限 なし
宝ヶ池の単身物件--パノラマ掲載--
基本情報
不動産用語- 賃料
- 3.5万円
- 管理費等
- -
初期費用などお気軽にお問合せください
- 敷金/礼金
- 無/無
- 保証金/敷引・償却金
- -/-
- 交通
叡山電鉄叡山本線 宝ケ池駅 徒歩1分
叡山電鉄叡山本線 三宅八幡駅 徒歩9分
叡山電鉄鞍馬線 八幡前駅 徒歩12分
阪急電鉄京都線 京都河原町駅 バス38分 花園橋下車 徒歩2分
他12駅が利用可能(地図で調べる)- 所在地
京都府京都市左京区上高野上荒蒔町
地図を見る- 築年月
- 1978年5月(築48年)
- 主要採光面
- 西
- 専有面積
- 17.04㎡
- バルコニー面積
- -
- 所在階/階数
- 3階/4階建(地下1階)
- 現況
- 空家
- 入居可能時期
- 即時

人気物件はすぐに埋まってしまいます。
気になったらお早めにお問合せください。
- 情報公開日
2025/12/11
2日前 公開
- 情報更新日
2025/12/13
3時間前 更新
- 次回更新
予定日 - 2025/12/19
物件のこだわり/設備・条件
新築(非該当)
2階以上の物件(該当)
南向き(非該当)
駐車場(非該当)
オートロック(非該当)
エアコン(該当)
バス・トイレ別(非該当)
追焚機能(非該当)
フローリング(該当)
ペット相談(非該当)
入居条件
二人入居不可、単身者限定、即入居可キッチン/バス・トイレ
設備・サービス
エアコン、シューズボックス、公営水道、プロパンガス、下水、フローリング、照明器具付き、駐輪場ありその他
住まい探し特典あり備考
京都工芸繊維大学まで自転車で9分のユニットバスタイプの賃貸物件です。キッチンにはガスコンロ1口置けます。叡山電鉄宝ヶ池駅まで徒歩1分の距離です。 ハウスクリーニング30250円(退去時)
物件周辺の生活情報
買い物
- コンビニ(580m)
- スーパー(740m)
- ドラッグストア(950m)
その他施設
- 総合病院(2,380m)
交通
- 叡山電鉄叡山本線 宝ケ池駅 徒歩1分
- 普通(停車)
- JR東海道・山陽本線 京都駅 バス56分 花園橋下車 徒歩2分
- 普通(停車)
- 新快速(停車)
- 快速(停車)
- 緩行電車(停車)
- 特別快速(通過)
- 区間快速(通過)
※急行等の停車駅情報について
急行等の停車駅に関するデータは、随時更新をしておりますが、最新の内容であることを保証するものではありません。
最新かつ正確な情報につきましては、各鉄道会社のウェブサイトにてご確認ください
物件周辺の口コミ
- 京都府京都市下京区中堂寺薮ノ内町に住む人の口コミ30代女性
とても便利とは言いがたい地域ですが、さしあたって不便さも感じないので。
口コミを見る
この物件周辺に住む人の口コミ
口コミは、LIFULL HOME'Sが実際にこの物件の周辺に住む18歳~69歳の男女を対象に、WEBアンケート調査を実施しています。内容には回答者の主観的な表現が含まれる場合があるほか、事実と異なる場合もございます。ご了承ください。
- 京都府京都市下京区中堂寺薮ノ内町に住む人の口コミ30代女性
- とても便利とは言いがたい地域ですが、さしあたって不便さも感じないので。
- 京都府京都市下京区楊梅通堀川東入に住む人の口コミ30代女性
- スーパーが少ないが自転車で移動すれば問題ない。静かで過ごしやすい
- 京都府京都市下京区五条通室町西入に住む人の口コミ30代女性
- 交通の便がすばらしい。コンビニやスーパーが多く、夜遅くても食べることに困らない。
- 京都府京都市下京区東洞院通七条下る西入に住む人の口コミ10代女性
- もともと京都に住みたくて京都の大学に進学したので、今は憧れていた生活ができている。でも、夜道を歩くのは少し怖いし、酔っ払いの人が駅にたくさんいたりして、田舎出身の私には少し刺激が大きすぎることもある。
- 京都府京都市下京区烏丸通七条下る2筋目西入に住む人の口コミ30代女性
- 歩いていける範囲内に、生活に必要なほぼ全ての施設が揃っており 交通の便も良い。駅の付近だからなのか昨今の世情かは不明だが、(観光客が道を聞いてくるのは別で)ナンパが多く辟易する。
- 京都府京都市南区壬生通八条西入に住む人の口コミ30代女性
- 駅も近くて、県外に出るにも便利。また小さいスーパーもあるが、ショッピングモールもあるので買い物も便利だから。
- 京都府京都市左京区岩倉中町に住む人の口コミ20代女性
- ファミリー層が多く、近所にスーパーや公園もあるので今後家族が増えた際にも住みやすく居心地のいい場所になりそうと思ったから。
- 京都府京都市左京区岩倉長谷町に住む人の口コミ30代女性
- 関わりづらそうな人が比較的少ないので、公園や子育て支援施設を気兼ねなく利用しやすい。美容室が多い。 内科、歯科が多い。幼稚園、保育園が多い。
- 京都府京都市下京区花屋町通壬生川西入に住む人の口コミ30代女性
- 市場が近く買い物も色々と店を選べる。ただ民泊も多いためか夜にも声が聞こえたり、住んでいるマンションではよくごみの捨て方が守られていない事が、多いのが不満
- 京都府京都市左京区上高野畑ケ田町に住む人の口コミ30代女性
- 静かで住みやすい環境が気に入っている。数キロ先の施設で稀に花火があがり、自宅から見えるのも良い。スーパーがやや遠く、閉店時間も早いことに少し不満がある。
物件概要
- 建物構造
- RC(鉄筋コンクリート)
- 駐車場
- 近隣 5,500円(税込) 物件からの距離441m
- 総戸数
- 17戸
- 契約形態
- -
- 契約期間
- 2年間
- 更新料
- -
- その他費用
- -
- 保証会社
加入要
保証会社利用料:20、000円
- 住宅保険
- 要
- 管理
- -
- LIFULL HOME'S
物件番号 - 0117110-0206437
- 自社管理番号
- 66706-0031
- 取引態様
- 仲介
- 会社名
- 株式会社エリッツ 京都芸術大学前店
営業スタッフコメント

株式会社エリッツ 京都芸術大学前店店長
昆布悠希
元気と笑顔のお部屋探し。
業界経験10年
資格宅地建物取引士、少額短期保険募集人、損害保険募集人
- 会社実績や特徴・サービス情報
- 当店は左京区北白川を中心に、京都市内全域でお部屋探しが可能です。ご希望条件からオススメの物件を紹介・案内させて頂きます。学生さんから新婚・ファミリーさんまで、左京区のお部屋探しは当店にお任せください。
当店は左京区北白川を中心に、京都市内全域でお部屋探しが可能です。ご希望条件からオススメの物件を紹介・案内させて頂きます。学生さんから新婚・ファミリーさんまで、左京区のお部屋探しは当店にお任せください。
- 電話でお問合せ(通話無料)
お問合せ先 :株式会社エリッツ 京都芸術大学前店
不動産会社情報
株式会社エリッツ 京都芸術大学前店

京都府京都市左京区北白川上終町7番地 エリッツ6th 101
叡山電鉄叡山本線 茶山・京都芸術大学駅 徒歩10分
- 営業時間
- 10:00~19:00
- 定休日
- 水曜日(祝日を除く)、年末年始 ※部屋探しのお問い合わせは無休
優良店認定
当店は左京区北白川を中心に、京都市内全域でお部屋探しが可能です。ご希望条件からオススメの物件を紹介・案内させて頂きます。学生さんから新婚・ファミリーさんまで、左京区のお部屋探しは当店にお任せください。
- 店舗の特徴
- 引越し業者紹介可
- 系列店舗での対応可
- オンライン相談可
- 保証人不要な物件あり
- 法人契約取扱い
電話でお問合せお客様の電話番号は不動産会社には通知されません
- 不動産会社に
つながります
お客様の電話番号は不動産会社に通知されません
- ※光IP電話、及びIP電話からはご利用になれません
- ※お電話によるお問合せは、店舗営業時間内にお願いします。つながらない場合は、お問合せフォームよりお問合せください
- ※不動産会社がお電話に出られなかった場合、お問合せいただいた後に不動産会社より折り返しのお電話がある場合がございます(お客様が非通知設定した場合は対象外です)
- ※株式会社LIFULLは電話会社が提供するサービスを介してお客様の発信者番号を受領後、折り返し専用の電話番号を発番してお問合せの不動産会社に通知します(お客様の発信者番号がお問合せの不動産会社に通知されることはございません)
- ※携帯電話からお問合せいただいた方に対し、株式会社LIFULLは電話会社が提供するメッセ―ジサービスを介してお客様の発信者番号を受領後、ショートメッセージ(SMS)またはLINE通知メッセージによるお問合せ内容に関する通知をお届けする場合があります
- ※お客様が通話中に不動産会社にお伝えになったお客様の個人情報及び、電話会社が発番する折り返し専用の電話番号は、お問合せ先不動産会社が資料送付・電子メール送信・電話連絡などの目的で保管する可能性があります。お問合せ先不動産会社が保管する個人情報の取扱いについては、各不動産会社に直接お問合せください
- ※株式会社LIFULLでは本サービスを円滑に運用するために、お客様の発信者番号をサービスご利用の控えとして一定期間保管いたします
- ※上記および株式会社LIFULLの個人情報の取扱い方針に同意のうえ、お電話ください
【LIFULL HOME'S物件番号】0117110-0206437【自社管理番号】66706-0031
オンライン対応
オンライン内見・オンライン相談・IT重説に対応している物件です

「オンライン内見」「オンライン相談」「IT重説」とは?
物件の内見や不動産会社スタッフとの相談、契約前の重要事項説明をオンライン(ビデオ通話)で行うことができるサービスです。
オンライン内見
ビデオ通話で現地(物件)にいる不動産会社スタッフと映像・音声を使ってリアルタイムで会話しながら内見ができます。
オンライン相談
「物件について聞きたいことがある」など不動産会社スタッフへの相談もビデオ通話で行うことができます。
IT重説
契約前の重要事項説明(重説)をビデオ通話で行うことができます。
利用時の注意事項
- ビデオ通話については各不動産会社指定のものとなります。
- ビデオ通話利用時には通信が発生します。従量課金制通信サービスや通信量に上限があるネット回線・プランを利用する場合は、通信量にご注意ください。
- 通信速度やアプリの設定によってはビデオ通話の画質が低下することがあります。安定した画質で利用するためにも、Wi-Fi環境下での利用を推奨します。
- ご利用のビデオ通話アプリによっては、対象のOSやブラウザに制限がある場合があります。詳しくはお問合せ先不動産会社にご確認ください。
初期費用・月額費用をあわせて確認!この物件に住んだときの費用めやす
めやすを見るこの物件に住んだときの費用めやす
- 初期費用
- 月額費用
- 追加費用※ご確認ください
追加で費用が
かかる場合があります
必ずご確認ください
初期費用めやす約0円
追加で費用がかかります(※)敷金
0
- 礼金
0
賃料+共益費・管理費の1ヶ月分として換算
賃料の1ヶ月分+税として換算。不動産会社によって金額が異なるため正確な金額は不動産会社にお問合せください
※追加費用もチェック!
これらの項目以外にも費用がかかる場合があります。正確な金額は不動産会社にお問合せください。
- 初期費用
- 鍵交換費:不動産会社に要確認
- 室内清掃費:不動産会社に要確認
- 火災保険費:不動産会社に要確認
- 月額費用
- 駐車場費:5,500円(税込)※近隣
- 保証会社
- 20、000円
不動産会社より
宝ヶ池の単身物件--パノラマ掲載--
京都工芸繊維大学まで自転車で9分のユニットバスタイプの賃貸物件です。キッチンにはガスコンロ1口置けます。叡山電鉄宝ヶ池駅まで徒歩1分の距離です。 ハウスクリーニング30250円(退去時)
- 保存する
- 共有する
- ※各種情報と現状に差異がある場合は、現状優先となります
- ※不動産会社が入力した情報を基に物件の位置を表示しています。詳しくは不動産会社までお問合せください
- ※不動産会社の方からの上記電話番号によるお問合せはお断りしております。こちら不動産会社詳細からお問合せください
- ※LIFULL HOME'Sは物件鮮度No.1を目指していきます。閲覧中の物件が「成約済である」「実際の物件情報と異なる点がある」などの場合、「掲載110番」からお問合せください
- ※QRコードは株式会社デンソーウェーブの登録商標です
この物件を取扱う他の会社
LIFULL HOME'Sでは、主要項目が同一の物件をまとめて表示しています。所在地や営業時間、掲載画像等から不動産会社を選んでお問合せください。
LIFULL HOME'S 地図・周辺情報
買い物
- ファミリーマート 北白川店
- ホームセンターコーナン 宝ケ池上高野店
- ダックス左京宝ケ池店
- セブンイレブン 京都白川通上高野店
- フレスコ 上高野店
グルメ
- にぎり長次郎 宝ヶ池店
- ガスト 京都宝ヶ池店(から好し取扱店)
- マクドナルド 宝ヶ池店
- サンマルク京都北山通り店
- 餃子の王将 宝ケ池店
育児・教育
- 菊の花幼稚園
- 京都市立上高野小学校
- 私立同志社中学校
- 葵保育園
- 京都市立修学院小学校
医療
- 社会福祉法人京都博愛会京都博愛会病院
- 医療法人社団順和会京都下鴨病院
- 医療法人一仁会脳神経リハビリ北大路病院
- 医療法人稲門会いわくら病院
- 医療法人財団康生会北山武田病院
公共施設・郵便局
- 京都上高野郵便局
- 京都市岩倉図書館
- 京都市左京区役所
- 京都山端郵便局
- 京都市左京図書館
公園
- 宝が池公園子どもの楽園
- 宝が池公園
- 岩倉南公園
- 長谷土田公園
利用可能な駅
- 徒歩10分以内
叡山電鉄叡山本線
- 宝ケ池駅徒歩1分
- 三宅八幡駅徒歩9分
JR東海道・山陽本線
- 京都駅 バス56分 花園橋下車徒歩2分
- すべての駅
叡山電鉄鞍馬線
- 八幡前駅徒歩12分
- 岩倉駅徒歩24分
- 木野駅徒歩33分
- 京都精華大前駅3.6km
叡山電鉄叡山本線
- 修学院駅徒歩14分
- 一乗寺駅徒歩24分
- 八瀬比叡山口駅徒歩26分
- 茶山・京都芸術大学駅徒歩35分
- 元田中駅3.1km
京都市営烏丸線
- 国際会館駅徒歩15分
- 松ヶ崎駅徒歩27分
- 北山駅3.1km
- その他交通
- 阪急電鉄京都線 京都河原町駅 バス38分 花園橋下車 徒歩2分
- 周辺情報は2023年07月21日時点のものになります。
- 周辺情報は、参考情報としてのみご利用ください(周辺情報は、株式会社LIFULLが地図情報の提供事業者から提供を受けた情報とLIFULL HOME'Sの物件情報に基づき、独自の方法で抽出し提供しているものです。周辺情報は、移転や閉鎖等により情報が最新ではない、または正しくない場合がありますが、地図情報の提供事業者から提供された情報をそのまま周辺情報として表示しているため、正確かつ最新の情報へ修正することができないことがあります。)
- 周辺情報は、株式会社LIFULLが掲載するものであり、不動産物件情報を掲載している不動産会社が掲載するものではありません
- 交通情報の一部については、株式会社LIFULLが掲載するものであり、不動産物件情報を掲載している不動産会社が掲載するものではない場合があります。交通情報に関する質問などは株式会社LIFULLにお問合せください
















