LIFULL HOME'Sは物件鮮度No.1!※評価について
南海線 諏訪ノ森駅 徒歩9分(4LDK/100.44m²)
南海線 諏訪ノ森駅 徒歩9分(4LDK/100.44m²)
17.8万円/管理費等5,000円
3日前 更新
画像一覧
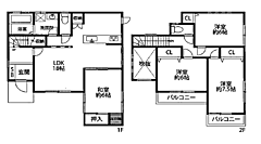
1/24間取り
4LDKの間取り。水回りが1階に集約されております。まtら、南向きバルコニーからの陽当たり良好な物件
2/24外観
南海本線「浜寺駅」徒歩9分(約700m)と阪堺電軌阪堺線「船尾」駅徒歩6分(450m)と2沿線利用可能
3/24外観
北西角地物件なので陽当たり良好です。
4/24リビング/ダイニング
約18帖のLDKは家具等を設置しても十分な広さを確保しており、一家団らんの場として最適です。
5/24リビング/ダイニング
6/24洋室
約6帖の洋室は2面採光となっております。お子様部屋などにお使いいただけます。
7/24洋室
約7.5帖の洋室は主寝室としてお使いいただけます。また、全室収納も完備されております。
8/24洋室
9/24洋室
10/24和室
1階のLDK横には和室がございますので、主寝室としての利用も可能です。
11/24キッチン
キッチンには、勝手口がございますので生ごみ等も排出も楽なつくりです。
12/24キッチン
13/24浴室
浴室も、他の水回り同様に1階に集約されており、1階での性格を完結することも可能です。
14/24トイレ
トイレは独立手洗いも完備。
15/24洗面
洗面室は洗面台と洗濯機を設置しても、脱衣スペースを十分に確保できる広さとなっております。
16/24玄関
吹き抜けの玄関は2階部分からの光が差し込むので明るくなっております。
17/24駐車場
駐車スペースにはカーポートが設置されておりますので、大切なお車を雨・日差しから守ってくれます。
18/24駐車場
駐車場奥の駐輪スペースにも駐車場同様にカーポートが設置されており、自転車やバイクが雨で濡れにくくなっております。
19/24その他
20/24周辺
堺市立浜寺昭和町小学校まで徒歩9分(700m)閑静な住宅街の中と通って通学できます。
21/24周辺
堺市立浜寺南中学校徒歩18分(1400m)
22/24周辺
ローソン浜寺公園店700m(徒歩9分)急なお買い物にも対応可能。
23/24周辺
ウェルシア堺諏訪ノ森店徒歩7分(550m)
24/24周辺
KOHYO諏訪ノ森店徒歩8分(600m)
間取り
外観
外観
リビング/ダイニング
リビング/ダイニング
洋室
洋室
洋室
洋室
和室
キッチン
キッチン
浴室
トイレ
洗面
玄関
駐車場
駐車場
その他
周辺
周辺
周辺
周辺
周辺
お問合せ先 :株式会社ルラシオンズ
基本情報
不動産用語- 賃料
- 17.8万円
- 管理費等
- 5,000円
初期費用などお気軽にお問合せください
- 敷金/礼金
- 17.8万円/35.6万円
- 保証金/敷引・償却金
- -/-
- 交通
阪堺電気軌道阪堺線 船尾駅 徒歩8分
南海線 諏訪ノ森駅 徒歩9分
- 所在地
大阪府堺市西区浜寺昭和町1丁1番1号
地図を見る- 築年月
- 2005年8月(築21年)
- 主要採光面
- 北西
- 専有面積
- 100.44㎡
- バルコニー面積
- -
- 所在階/階数
- -/2階建
入居可能日などお気軽にお問合せください
- 現況
- 空家
- 入居可能時期
- 相談
(リフォーム施行中のため)

人気物件はすぐに埋まってしまいます。
気になったらお早めにお問合せください。
- 情報公開日
2026/02/12
95日前 公開
- 情報更新日
2026/05/15
3日前 更新
- 次回更新
予定日 - 2026/05/29
物件のこだわり/設備・条件
新築(非該当)
2階以上の物件(非該当)
南向き(非該当)
駐車場(非該当)
オートロック(非該当)
エアコン(非該当)
バス・トイレ別(該当)
追焚機能(非該当)
フローリング(該当)
ペット相談(非該当)
入居条件
-- 入居条件の詳細は
お問合せください - 入居条件の詳細は
お電話ください(通話無料)電話でお問合せ キッチン/バス・トイレ
設備・サービス
TVモニタ付インターホン、全居室収納、フローリング、バルコニーその他
リフォーム物件備考
現在リフォーム施行中
リフォーム
- 水回り
2026年02月 実施
浴室、トイレ、洗面所、給湯器
- 内装
2026年02月 実施
壁、天井(クロス、塗装等)、建具(室内ドア等)
物件周辺の生活情報
学校
- 堺市立浜寺昭和小学校(660m)
- 堺市立浜寺南中学校(1,570m)
買い物
- コンビニ(500m)
- スーパー(630m)
- ドラッグストア(610m)
交通
- 南海線 諏訪ノ森駅 徒歩9分
- 普通(停車)
- 準急(停車)
- 区間急行(通過)
- 空港急行(通過)
- 急行(通過)
- 特急サザン(通過)
- 阪堺電気軌道阪堺線 船尾駅 徒歩8分
- 普通(停車)
※急行等の停車駅情報について
急行等の停車駅に関するデータは、随時更新をしておりますが、最新の内容であることを保証するものではありません。
最新かつ正確な情報につきましては、各鉄道会社のウェブサイトにてご確認ください
物件周辺の口コミ
- 大阪府堺市西区浜寺昭和町に住む人の口コミ60代男性
清閑な住宅街。徒歩10分以内に学校、ホームセンター、スーパー等とJRと南海の駅があり日本最古の公立公園の浜寺公園があり住環境には優れていると思う。ただハザードマップでは津波の危険地域になっている。
口コミを見る
この物件周辺に住む人の口コミ
口コミは、LIFULL HOME'Sが実際にこの物件の周辺に住む18歳~69歳の男女を対象に、WEBアンケート調査を実施しています。内容には回答者の主観的な表現が含まれる場合があるほか、事実と異なる場合もございます。ご了承ください。
- 大阪府堺市西区浜寺昭和町に住む人の口コミ60代男性
- 清閑な住宅街。徒歩10分以内に学校、ホームセンター、スーパー等とJRと南海の駅があり日本最古の公立公園の浜寺公園があり住環境には優れていると思う。ただハザードマップでは津波の危険地域になっている。
- 大阪府堺市西区浜寺昭和町に住む人の口コミ40代女性
- 公園があり緑豊かで閑静な住宅街の為、お店がない。スーパーが一駅離れないとないので、買い物を考えると不便
- 大阪府堺市西区浜寺昭和町に住む人の口コミ60代男性
- 閑静な住宅地でありながら少し足を伸ばせばすむに困らないし便利
- 大阪府堺市西区浜寺昭和町に住む人の口コミ60代男性
- 住環境的には交通、ショッピングセンター、教育、医療そして大規模公園などが揃っていて満足なのだが、ハザードマップを見ると地震津波に対して非常に脆弱な地区であるのが不安。
- 大阪府堺市西区浜寺昭和町に住む人の口コミ40代女性
- 静かで閑静な住宅街であり、近くに自然豊かでテニスコートもある大きな公園があり、大阪市内までのアクセスも良い。近隣の人も常識的な人が多いと思うから。
- 大阪府堺市西区浜寺昭和町に住む人の口コミ40代女性
- 公園が近いため、散歩などには困らない。自然を常に感じられる。
- 大阪府堺市西区浜寺昭和町に住む人の口コミ50代女性
- 近くに大きな公園があり、緑も多く気持ちが良い。閑静な住宅街なので夜は静かで住みやすい
- 大阪府堺市西区浜寺諏訪森町中に住む人の口コミ50代男性
- 夜が静かで良いが、街灯など夜の明るさがもっと充実しておけば よりよいと感じる
- 大阪府堺市西区浜寺諏訪森町中に住む人の口コミ40代男性
- 浜寺公園という大きい公園があり、住民の憩いの場となっています。
- 大阪府堺市西区浜寺船尾町西に住む人の口コミ40代女性
- 閑静な住宅街で電車移動も自動車移動も便利で、近隣にはお洒落なお店も多く買い物もしやすいから。少し治安が悪いのが気になる以外は、住みやすい町です。
物件概要
- 建物構造
- 木造
- 駐車場
- -
- 総戸数
- 1戸
- 契約形態
- -
- 契約期間
- -
- 更新料
- -
- その他費用
- -
- 保証会社
- -
- 住宅保険
- 要
- 管理
- 管理員:無
- LIFULL HOME'S
物件番号 - 0156956-0000001
- 自社管理番号
- -
- 取引態様
- 専任媒介
- 会社名
- 株式会社ルラシオンズ
- 電話でお問合せ(通話無料)
お問合せ先 :株式会社ルラシオンズ
不動産会社情報
電話でお問合せお客様の電話番号は不動産会社には通知されません
- 不動産会社に
つながります
お客様の電話番号は不動産会社に通知されません
- ※光IP電話、及びIP電話からはご利用になれません
- ※お電話によるお問合せは、店舗営業時間内にお願いします。つながらない場合は、お問合せフォームよりお問合せください
- ※不動産会社がお電話に出られなかった場合、お問合せいただいた後に不動産会社より折り返しのお電話がある場合がございます(お客様が非通知設定した場合は対象外です)
- ※株式会社LIFULLは電話会社が提供するサービスを介してお客様の発信者番号を受領後、折り返し専用の電話番号を発番してお問合せの不動産会社に通知します(お客様の発信者番号がお問合せの不動産会社に通知されることはございません)
- ※携帯電話からお問合せいただいた方に対し、株式会社LIFULLは電話会社が提供するメッセ―ジサービスを介してお客様の発信者番号を受領後、ショートメッセージ(SMS)またはLINE通知メッセージによるお問合せ内容に関する通知をお届けする場合があります
- ※お客様が通話中に不動産会社にお伝えになったお客様の個人情報及び、電話会社が発番する折り返し専用の電話番号は、お問合せ先不動産会社が資料送付・電子メール送信・電話連絡などの目的で保管する可能性があります。お問合せ先不動産会社が保管する個人情報の取扱いについては、各不動産会社に直接お問合せください
- ※株式会社LIFULLでは本サービスを円滑に運用するために、お客様の発信者番号をサービスご利用の控えとして一定期間保管いたします
- ※上記および株式会社LIFULLの個人情報の取扱い方針に同意のうえ、お電話ください
【LIFULL HOME'S物件番号】
初期費用・月額費用をあわせて確認!この物件に住んだときの費用めやす
めやすを見るこの物件に住んだときの費用めやす
- 初期費用
- 月額費用
- 追加費用※ご確認ください
追加で費用が
かかる場合があります
必ずご確認ください
初期費用めやす約0円
追加で費用がかかります(※)敷金
178,000
- 礼金
356,000
賃料+共益費・管理費の1ヶ月分として換算
賃料の1ヶ月分+税として換算。不動産会社によって金額が異なるため正確な金額は不動産会社にお問合せください
※追加費用もチェック!
これらの項目以外にも費用がかかる場合があります。正確な金額は不動産会社にお問合せください。
- 初期費用
- 鍵交換費:不動産会社に要確認
- 室内清掃費:不動産会社に要確認
- 火災保険費:不動産会社に要確認
- 保証会社
- 不動産会社に要確認
不動産会社より
現在リフォーム施行中
- 保存する
- 共有する
- ※各種情報と現状に差異がある場合は、現状優先となります
- ※不動産会社が入力した情報を基に物件の位置を表示しています。詳しくは不動産会社までお問合せください
- ※不動産会社の方からの上記電話番号によるお問合せはお断りしております。こちら不動産会社詳細からお問合せください
- ※LIFULL HOME'Sは物件鮮度No.1を目指していきます。閲覧中の物件が「成約済である」「実際の物件情報と異なる点がある」などの場合、「掲載110番」からお問合せください
- ※QRコードは株式会社デンソーウェーブの登録商標です
したい暮らしのタグから探す
LIFULL HOME'S 地図・周辺情報
買い物
- セブンイレブン 堺浜寺諏訪森町店
- 万代 諏訪ノ森店
- ウエルシア堺諏訪ノ森店
- ローソン 浜寺公園店
- ダイソーイオンタウン諏訪の森店
グルメ
- 丸亀製麺堺浜寺店
- はま寿司堺浜寺店
- 松屋 浜寺店
- スシロー 浜寺船尾店
- ロイヤルホスト 堺石津川店
育児・教育
- 浜寺聖書幼稚園
- 堺市立浜寺小学校
- 堺市立浜寺中学校
- 認定こども園ふなお幼稚園
- 堺市立浜寺昭和小学校
医療
- 社会医療法人ペガサスペガサスリハビリテーション病院
- 社会医療法人ペガサス馬場記念病院
- 医療法人微風会浜寺病院
- 地方独立行政法人堺市立病院機構堺市立総合医療センター
- 医療法人慈友会堺山口病院
公共施設・郵便局
- 諏訪ノ森郵便局
- 堺市立西図書館
- 大阪府高石警察署
- 堺浜寺昭和郵便局
- 人権ふれあいセンター舳松人権歴史館人権資料・図書室
公園
- 新公園
- 霞ケ丘公園
- 家原大池公園
- 神野公園
利用可能な駅
- 徒歩10分以内
阪堺電気軌道阪堺線
- 船尾駅徒歩8分
南海線
- 諏訪ノ森駅徒歩9分
- 周辺情報は2023年07月21日時点のものになります。
- 周辺情報は、参考情報としてのみご利用ください(周辺情報は、株式会社LIFULLが地図情報の提供事業者から提供を受けた情報とLIFULL HOME'Sの物件情報に基づき、独自の方法で抽出し提供しているものです。周辺情報は、移転や閉鎖等により情報が最新ではない、または正しくない場合がありますが、地図情報の提供事業者から提供された情報をそのまま周辺情報として表示しているため、正確かつ最新の情報へ修正することができないことがあります。)
- 周辺情報は、株式会社LIFULLが掲載するものであり、不動産物件情報を掲載している不動産会社が掲載するものではありません
- 交通情報の一部については、株式会社LIFULLが掲載するものであり、不動産物件情報を掲載している不動産会社が掲載するものではない場合があります。交通情報に関する質問などは株式会社LIFULLにお問合せください

