LIFULL HOME'Sは物件鮮度No.1!※評価について
プチメゾン 2階
7.4万円/管理費等4,000円
4時間前 更新
画像一覧
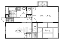
1/30間取り
間取
2/30外観
3/30外観
4/30リビング/ダイニング
5/30リビング/ダイニング
6/30リビング/ダイニング
7/30室内
8/30室内
9/30室内
10/30室内
11/30キッチン
12/30キッチン
13/30キッチン
14/30キッチン
15/30浴室
16/30トイレ
17/30洗面
18/30洗面
19/30収納
20/30収納
21/30収納
22/30設備
23/30設備
24/30設備
25/30玄関
26/30玄関
27/30バルコニー
28/30バルコニー
29/30その他
30/30周辺
上賀茂小学校まで160m
間取り
外観
外観
リビング/ダイニング
リビング/ダイニング
リビング/ダイニング
室内
室内
室内
室内
キッチン
キッチン
キッチン
キッチン
浴室
トイレ
洗面
洗面
収納
収納
収納
設備
設備
設備
玄関
玄関
バルコニー
バルコニー
その他
周辺
仲介手数料割引
仲介手数料が家賃の半月分(外税)です。
- 利用条件
- 株式会社京都ライフ 北山店で利用可
- 他特典との併用可
- ・法人契約、事業用物件は除く。 ・積水ハウス、大東建託の管理物件は除く。
利用方法
来店時に本特典の画面をスマートフォンやタブレットでスタッフに提示、または画面印刷した用紙を提示ください。
有効期限 なし
ガレージ込みの2DK ガレージ代込みのお値段です。環境良好の北山エリアです。
物件のこだわり/設備・条件
新築(非該当)
2階以上の物件(該当)
南向き(該当)
駐車場あり(該当)
オートロック(非該当)
エアコン(非該当)
バス・トイレ別(該当)
追焚機能(非該当)
フローリング(非該当)
ペット相談(非該当)
入居条件
二人入居可、即入居可キッチン/バス・トイレ
設備・サービス
公営水道、都市ガス、下水、バルコニー、室内洗濯機置場、南面バルコニー、駐車場あり、駐輪場ありその他
住まい探し特典あり備考
京都市北区 北山エリアの2DKです。更新料ナシ。嬉しい3点セパレートなど充実の設備。コンビニ、スーパー、ドラッグストアなど近くにあって便利ですよ。 物件情報はもちろん京都のエリア情報まで幅広く対応させていただきます!
物件周辺の生活情報
学校
- 上賀茂小学校(160m)
買い物
- コンビニ(480m)
- スーパー(400m)
- ドラッグストア(464m)
その他施設
- 総合病院(1,500m)
- 京都上賀茂郵便局(160m)
交通
- 京都市営烏丸線 北山駅 徒歩14分
- 普通(停車)
- 急行(停車)
- 京都市営烏丸線 北大路駅 徒歩17分
- 普通(停車)
- 急行(停車)
※急行等の停車駅情報について
急行等の停車駅に関するデータは、随時更新をしておりますが、最新の内容であることを保証するものではありません。
最新かつ正確な情報につきましては、各鉄道会社のウェブサイトにてご確認ください
物件概要
- 建物構造
- 軽量鉄骨造
- 駐車場
- 空有 11,000円(税込)
- 総戸数
- 2戸
- 契約形態
- -
- 契約期間
- 2年間
- 更新料
- 25,000円
- その他費用
- 鍵交換費用:16,500円、室内清掃費用:66,000円、ハイム’S CLUB:16,500円、抗菌除菌処理代:22,000円
- 保証会社
加入要
保証会社:ユニディア
保証会社利用料:初回:月額賃料等の50%、月額:保証料として月額賃料等の1.2%
- 住宅保険
- 要
- 管理
- 管理員:巡回
- LIFULL HOME'S
物件番号 - 0119809-0208272
- 自社管理番号
- 29753-201
- 取引態様
- 専任媒介
- 会社名
- 株式会社京都ライフ 北山店
営業スタッフコメント

株式会社京都ライフ 北山店営業
松下幸平
楽しいお部屋探し
業界経験2年
- 会社実績や特徴・サービス情報
- 地下鉄烏丸線沿線を中心に京都市内全域のお部屋探しは京都ライフ北山店へお任せください。ファミリー様向き物件、社会人様向きのお部屋はもちろん各大学の学生様向き物件も多数ございます。京都大学、同志社大学、同志社女子大学、京都産業大学、大谷大学、立命館大学、京都府立大学、ノートルダム女子大学の学生さんは当店までご相談ください。 当店では居住用物件個人契約の仲介手数料は家賃の半月分(外税)です。※一部物件を除く
地下鉄烏丸線沿線を中心に京都市内全域のお部屋探しは京都ライフ北山店へお任せください。ファミリー様向き物件、社会人様向きのお部屋はもちろん各大学の学生様向き物件も多数ございます。京都大学、同志社大学、同志社女子大学、京都産業大学、大谷大学、立命館大学、京都府立大学、ノートルダム女子大学の学生さんは当店までご相談ください。 当店では居住用物件個人契約の仲介手数料は家賃の半月分(外税)です。※一部物件を除く
- 電話でお問合せ(通話無料)
お問合せ先 :株式会社京都ライフ 北山店
不動産会社情報
株式会社京都ライフ 北山店京都ライフ北山店

京都府京都市北区上賀茂岩ケ垣内町98−2
京都市営烏丸線 北山駅 徒歩1分
- 営業時間
- 09:30~19:00
- 定休日
- 年中無休(盆・正月を除く)
優良店認定
地下鉄烏丸線「北山」から徒歩1分。キッズスペースも備えた明るく綺麗な店内で、ゆっくりとお部屋探ししていただけます。活気あふれるスタッフが皆様のご来店をお待ちしています。
- 店舗の特徴
- 賃貸管理業務
- 24時間管理物件取扱い
- リフォーム対応
- 引越し業者紹介可
- 年中無休
- 系列店舗での対応可
- 保証人不要な物件あり
- 法人契約取扱い
- 駅から歩いて3分以内
電話でお問合せお客様の電話番号は不動産会社には通知されません
- 不動産会社に
つながります
お客様の電話番号は不動産会社に通知されません
- ※光IP電話、及びIP電話からはご利用になれません
- ※お電話によるお問合せは、店舗営業時間内にお願いします。つながらない場合は、お問合せフォームよりお問合せください
- ※不動産会社がお電話に出られなかった場合、お問合せいただいた後に不動産会社より折り返しのお電話がある場合がございます(お客様が非通知設定した場合は対象外です)
- ※株式会社LIFULLは電話会社が提供するサービスを介してお客様の発信者番号を受領後、折り返し専用の電話番号を発番してお問合せの不動産会社に通知します(お客様の発信者番号がお問合せの不動産会社に通知されることはございません)
- ※携帯電話からお問合せいただいた方に対し、株式会社LIFULLは電話会社が提供するメッセ―ジサービスを介してお客様の発信者番号を受領後、ショートメッセージ(SMS)またはLINE通知メッセージによるお問合せ内容に関する通知をお届けする場合があります
- ※お客様が通話中に不動産会社にお伝えになったお客様の個人情報及び、電話会社が発番する折り返し専用の電話番号は、お問合せ先不動産会社が資料送付・電子メール送信・電話連絡などの目的で保管する可能性があります。お問合せ先不動産会社が保管する個人情報の取扱いについては、各不動産会社に直接お問合せください
- ※株式会社LIFULLでは本サービスを円滑に運用するために、お客様の発信者番号をサービスご利用の控えとして一定期間保管いたします
- ※上記および株式会社LIFULLの個人情報の取扱い方針に同意のうえ、お電話ください
【LIFULL HOME'S物件番号】0119809-0208272【自社管理番号】29753-201
オンライン対応
オンライン内見・オンライン相談・IT重説に対応している物件です

「オンライン内見」「オンライン相談」「IT重説」とは?
物件の内見や不動産会社スタッフとの相談、契約前の重要事項説明をオンライン(ビデオ通話)で行うことができるサービスです。
オンライン内見
ビデオ通話で現地(物件)にいる不動産会社スタッフと映像・音声を使ってリアルタイムで会話しながら内見ができます。
オンライン相談
「物件について聞きたいことがある」など不動産会社スタッフへの相談もビデオ通話で行うことができます。
IT重説
契約前の重要事項説明(重説)をビデオ通話で行うことができます。
利用時の注意事項
- ビデオ通話については各不動産会社指定のものとなります。
- ビデオ通話利用時には通信が発生します。従量課金制通信サービスや通信量に上限があるネット回線・プランを利用する場合は、通信量にご注意ください。
- 通信速度やアプリの設定によってはビデオ通話の画質が低下することがあります。安定した画質で利用するためにも、Wi-Fi環境下での利用を推奨します。
- ご利用のビデオ通話アプリによっては、対象のOSやブラウザに制限がある場合があります。詳しくはお問合せ先不動産会社にご確認ください。
初期費用・月額費用をあわせて確認!この物件に住んだときの費用めやす
めやすを見るこの物件に住んだときの費用めやす
- 初期費用
- 月額費用
- 追加費用※ご確認ください
追加で費用が
かかる場合があります
必ずご確認ください
初期費用めやす約0円
追加で費用がかかります(※)敷金
74,000
- 礼金
74,000
賃料+共益費・管理費の1ヶ月分として換算
賃料の1ヶ月分+税として換算。不動産会社によって金額が異なるため正確な金額は不動産会社にお問合せください
※追加費用もチェック!
これらの項目以外にも費用がかかる場合があります。正確な金額は不動産会社にお問合せください。
- 初期費用
- 鍵交換費:16,500円
- 室内清掃費:66,000円
- 火災保険費:不動産会社に要確認
- 月額費用
- 駐車場費:11,000円(税込)※契約任意
- その他
- ハイム’S CLUB:16500円
- 抗菌除菌処理代:22000円
- 保証会社
- 初回:月額賃料等の50%、月額:保証料として月額賃料等の1.2%
不動産会社より
ガレージ込みの2DK ガレージ代込みのお値段です。環境良好の北山エリアです。
京都市北区 北山エリアの2DKです。更新料ナシ。嬉しい3点セパレートなど充実の設備。コンビニ、スーパー、ドラッグストアなど近くにあって便利ですよ。 物件情報はもちろん京都のエリア情報まで幅広く対応させていただきます!
- 保存する
- 共有する
- ※各種情報と現状に差異がある場合は、現状優先となります
- ※不動産会社が入力した情報を基に物件の位置を表示しています。詳しくは不動産会社までお問合せください
- ※不動産会社の方からの上記電話番号によるお問合せはお断りしております。こちら不動産会社詳細からお問合せください
- ※LIFULL HOME'Sは物件鮮度No.1を目指していきます。閲覧中の物件が「成約済である」「実際の物件情報と異なる点がある」などの場合、「掲載110番」からお問合せください
- ※QRコードは株式会社デンソーウェーブの登録商標です
したい暮らしのタグから探す
LIFULL HOME'S 地図・周辺情報
買い物
- ヤマザキYショップ 上賀茂店
- 生鮮館なかむら 上賀茂店
- ドラッグひかり御薗橋店
- ファミリーマート 大名屋京都北山店
- FOOD SHOPエムジー 上賀茂店
グルメ
- なか卯 上賀茂店
- 餃子の王将 御薗橋店
- フォルクス 北山通店
- 熊本ラーメン肥後もっこす
- ロイヤルホスト 北山店
育児・教育
- 京都市立上賀茂幼稚園
- 京都市立上賀茂小学校
- 京都市立加茂川中学校
- 上賀茂こども園
- 京都市立紫竹小学校
医療
- 医療法人葵会介護医療院おおみや葵の郷
- 医療法人財団康生会北山武田病院
- 社会福祉法人京都社会事業財団京都からすま病院
- 医療法人明生会賀茂病院
- 京都博愛会冨田病院
公共施設・郵便局
- 京都上賀茂郵便局
- 京都市北図書館
- 京都府北警察署
- 京都北郵便局
- 京都市左京図書館
公園
- 大宮交通公園
- 船岡山公園
- 岩倉南公園
- 上庄田第二公園
利用可能な駅
- すべての駅
京都市営烏丸線
- 北山駅徒歩14分
- 北大路駅徒歩17分
- 松ヶ崎駅徒歩29分
- 鞍馬口駅徒歩31分
- 今出川駅3.3km
- 国際会館駅3.6km
叡山電鉄鞍馬線
- 木野駅3.2km
- 京都精華大前駅3.3km
- 二軒茶屋駅3.6km
- 周辺情報は2023年07月21日時点のものになります。
- 周辺情報は、参考情報としてのみご利用ください(周辺情報は、株式会社LIFULLが地図情報の提供事業者から提供を受けた情報とLIFULL HOME'Sの物件情報に基づき、独自の方法で抽出し提供しているものです。周辺情報は、移転や閉鎖等により情報が最新ではない、または正しくない場合がありますが、地図情報の提供事業者から提供された情報をそのまま周辺情報として表示しているため、正確かつ最新の情報へ修正することができないことがあります。)
- 周辺情報は、株式会社LIFULLが掲載するものであり、不動産物件情報を掲載している不動産会社が掲載するものではありません
- 交通情報の一部については、株式会社LIFULLが掲載するものであり、不動産物件情報を掲載している不動産会社が掲載するものではない場合があります。交通情報に関する質問などは株式会社LIFULLにお問合せください











