LIFULL HOME'Sは物件鮮度No.1!※評価について
ミルウィンドウ 2階/202
13.8万円/管理費等10,500円
1時間前 更新
画像一覧
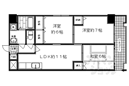
1/30間取り
間取
2/30外観
3/30外観
4/30リビング/ダイニング
5/30リビング/ダイニング
6/30リビング/ダイニング
7/30リビング/ダイニング
8/30リビング/ダイニング
9/30リビング/ダイニング
10/30室内
11/30キッチン
12/30キッチン
13/30浴室
14/30浴室
15/30浴室
16/30トイレ
17/30洗面
18/30洗面
19/30収納
20/30収納
21/30収納
22/30収納
23/30設備
24/30設備
25/30設備
26/30玄関
27/30バルコニー
28/30バルコニー
29/30その他
30/30周辺
フレスコ五条西洞院店まで68m
間取り
外観
外観
リビング/ダイニング
リビング/ダイニング
リビング/ダイニング
リビング/ダイニング
リビング/ダイニング
リビング/ダイニング
室内
キッチン
キッチン
浴室
浴室
浴室
トイレ
洗面
洗面
収納
収納
収納
収納
設備
設備
設備
玄関
バルコニー
バルコニー
その他
周辺
仲介手数料割引
仲介手数料50%(税別、個人居住用に限り)
- 利用条件
- ウインズリンク株式会社 アパマンショップ四条烏丸店で利用可
- 他特典との併用可
利用方法
来店時に本特典の画面をスマートフォンやタブレットでスタッフに提示、または画面印刷した用紙を提示ください。
有効期限 なし
地下鉄五条駅徒歩4分 地下鉄沿線徒歩圏の3LDK、南向きベランダの登場です。
基本情報
不動産用語- 賃料
- 13.8万円
- 管理費等
- 10,500円
初期費用などお気軽にお問合せください
物件のこだわり/設備・条件
新築(非該当)
2階以上の物件(該当)
南向き(該当)
駐車場(非該当)
オートロック(該当)
エアコン(非該当)
バス・トイレ別(該当)
追焚機能(該当)
フローリング(該当)
ペット相談(非該当)
位置
角部屋入居条件
二人入居可、即入居可キッチン/バス・トイレ
設備・サービス
オートロック、TVモニタ付インターホン、シューズボックス、光ファイバー、公営水道、都市ガス、下水、フローリング、バルコニー、室内洗濯機置場、南面バルコニー、エレベーター、駐輪場ありその他
住まい探し特典あり備考
地下鉄五条駅まで徒歩4分の3LDKマンションです。阪急、地下鉄のダブルアクセス。更新料ナシです。嬉しい3点セパレートなど充実の設備。オートロック、TVホンでセキュリティも安心です。コンビニ、スーパーなど近くにあって便利ですよ。光ファイバー対応しています。お部屋探しはアパマンショップ四条烏丸店にお任せください。すぐに対応させていただきます
物件周辺の生活情報
学校
- 下京中学校(285m)
買い物
- コンビニ(19m)
- スーパー(68m)
その他施設
- 総合病院(757m)
- 銀行(736m)
- 京都市下京区役所(1,200m)
交通
- 京都市営烏丸線 五条駅 徒歩4分
- 普通(停車)
- 急行(停車)
- 京都市営烏丸線 四条駅 徒歩14分
- 普通(停車)
- 急行(停車)
※急行等の停車駅情報について
急行等の停車駅に関するデータは、随時更新をしておりますが、最新の内容であることを保証するものではありません。
最新かつ正確な情報につきましては、各鉄道会社のウェブサイトにてご確認ください
物件周辺の口コミ
- 京都府京都市下京区東堀川通高辻上るに住む人の口コミ50代女性
交通費がかからない。少し歩けば、デパートや食事出来る場所がいっぱいある。
口コミを見る
この物件周辺に住む人の口コミ
口コミは、LIFULL HOME'Sが実際にこの物件の周辺に住む18歳~69歳の男女を対象に、WEBアンケート調査を実施しています。内容には回答者の主観的な表現が含まれる場合があるほか、事実と異なる場合もございます。ご了承ください。
- 京都府京都市下京区東堀川通高辻上るに住む人の口コミ50代女性
- 交通費がかからない。少し歩けば、デパートや食事出来る場所がいっぱいある。
- 京都府京都市下京区五条通大宮東入に住む人の口コミ40代女性
- 交通の便がいいこと。少し行けばいろいろと何でもそろえられる。
- 京都府京都市下京区中堂寺坊城町に住む人の口コミ40代女性
- 駅が近く移動が便利。スーパーマーケットがあるので買い物に困らない。
- 京都府京都市下京区五条通大橋西入に住む人の口コミ50代女性
- 年中行事が次々とあり、四季を感じ、特に当てがなくても散歩しているだけでも興味をひくお店があり、出掛けたいと思う街です。
- 京都府京都市下京区高辻通堀川西入に住む人の口コミ60代男性
- 世界遺産に登録された神社仏閣が多く、森などもあり、京都御苑は広大で市民の憩いや散歩の場ともなっている。また近くには商店街がある他、有名デパートもある。更には国立博物館や美術館といった文化施設も多い。
- 京都府京都市下京区松原通東洞院東入に住む人の口コミ30代女性
- 交通の便が良くて、買い物がしやすい店と飲食店の種類が豊富な所
- 京都府京都市下京区西洞院通松原下るに住む人の口コミ40代女性
- 24時間スーパーとコンビニがあり、バス停が真ん前。病院が隣。という面は、便利。
- 京都府京都市下京区綾小路通西洞院西入に住む人の口コミ40代女性
- 近くにデパートなどもたくさんあって、飲食店やコンビニもたくさんあって良い。交通量が多く、道幅がせまいなど子供を連れて歩いたりするにはちょっと危険だからどちらかといえば満足。
- 京都府京都市下京区東洞院通正面西入に住む人の口コミ30代女性
- 交通の便がいい、飲食店が多い、自転車で行ける範囲で買い物がだいたい済ませられる
- 京都府京都市中京区室町通錦小路上るに住む人の口コミ60代女性
- 複数の交通手段があり利便性がよい、デパートや繁華街が近く徒歩で事足りる
物件概要
- 建物構造
- SRC(鉄骨鉄筋コンクリート)
- 駐車場
- 無
- 総戸数
- 18戸
- 契約形態
- -
- 契約期間
- 2年間
- 更新料
- 33,000円
- その他費用
- 鍵交換費用:16,500円、室内清掃費用:60,500円、町会費:600円
- 保証会社
加入要
保証会社:全保連
保証会社利用料:初回:月額賃料等の50%、月額:システム利用料1200円
- 住宅保険
- 要
- 管理
- 管理員:巡回
- LIFULL HOME'S
物件番号 - 0113626-0255249
- 自社管理番号
- 10307-202
- 取引態様
- 仲介
- 会社名
- ウインズリンク株式会社 アパマンショップ四条烏丸店
営業スタッフコメント

ウインズリンク株式会社 アパマンショップ四条烏丸店営業
村井零士
何でも一生懸命がモットーです!
業界経験4年
- 会社実績や特徴・サービス情報
- アパマンショップ四条烏丸店では京都市内中心部・阪急・地下鉄・京阪沿線の物件多数取り扱っております。 全力でお客様のお部屋探しをサポートさせて頂きますので、アパマンショップ四条烏丸店までお気軽にお問い合わせ下さいませ。 事務所・店舗・高額賃貸マンションまで賃貸というカテゴリーでもご相談下さいませ。 当店では外国語対応のスタッフも在籍しております。 京都の賃貸でしたらアパマンショップ四条烏丸店にお任せください。
アパマンショップ四条烏丸店では京都市内中心部・阪急・地下鉄・京阪沿線の物件多数取り扱っております。 全力でお客様のお部屋探しをサポートさせて頂きますので、アパマンショップ四条烏丸店までお気軽にお問い合わせ下さいませ。 事務所・店舗・高額賃貸マンションまで賃貸というカテゴリーでもご相談下さいませ。 当店では外国語対応のスタッフも在籍しております。 京都の賃貸でしたらアパマンショップ四条烏丸店にお任せください。
- 電話でお問合せ(通話無料)
お問合せ先 :ウインズリンク株式会社 アパマンショップ四条烏丸店
不動産会社情報
ウインズリンク株式会社 アパマンショップ四条烏丸店アパマンショップ四条烏丸店
京都府京都市下京区月鉾町47−3
京都市営烏丸線 四条駅 徒歩3分
- 営業時間
- 09:30~19:00
- 定休日
- なし(盆休み8/13〜8/16・年末年始12/27〜1/4)
京都市一円の物件情報のご提供やご案内。社宅代行有無に関らず法人契約にも即ご対応いたします。女性のお客様には女性スタッフにてのご対応できます。お部屋探しはぜひアパマンショップ四条烏丸店にお任せください。
- 店舗の特徴
- 賃貸管理業務
- 24時間管理物件取扱い
- リフォーム対応
- 引越し業者紹介可
- 年中無休
- 保証人不要な物件あり
- 法人契約取扱い
- 女性スタッフ対応可
- 19時以降も営業
- 駅から歩いて3分以内
電話でお問合せお客様の電話番号は不動産会社には通知されません
- 不動産会社に
つながります
お客様の電話番号は不動産会社に通知されません
- ※光IP電話、及びIP電話からはご利用になれません
- ※お電話によるお問合せは、店舗営業時間内にお願いします。つながらない場合は、お問合せフォームよりお問合せください
- ※不動産会社がお電話に出られなかった場合、お問合せいただいた後に不動産会社より折り返しのお電話がある場合がございます(お客様が非通知設定した場合は対象外です)
- ※株式会社LIFULLは電話会社が提供するサービスを介してお客様の発信者番号を受領後、折り返し専用の電話番号を発番してお問合せの不動産会社に通知します(お客様の発信者番号がお問合せの不動産会社に通知されることはございません)
- ※携帯電話からお問合せいただいた方に対し、株式会社LIFULLは電話会社が提供するメッセ―ジサービスを介してお客様の発信者番号を受領後、ショートメッセージ(SMS)またはLINE通知メッセージによるお問合せ内容に関する通知をお届けする場合があります
- ※お客様が通話中に不動産会社にお伝えになったお客様の個人情報及び、電話会社が発番する折り返し専用の電話番号は、お問合せ先不動産会社が資料送付・電子メール送信・電話連絡などの目的で保管する可能性があります。お問合せ先不動産会社が保管する個人情報の取扱いについては、各不動産会社に直接お問合せください
- ※株式会社LIFULLでは本サービスを円滑に運用するために、お客様の発信者番号をサービスご利用の控えとして一定期間保管いたします
- ※上記および株式会社LIFULLの個人情報の取扱い方針に同意のうえ、お電話ください
【LIFULL HOME'S物件番号】0113626-0255249【自社管理番号】10307-202
初期費用・月額費用をあわせて確認!この物件に住んだときの費用めやす
めやすを見るこの物件に住んだときの費用めやす
- 初期費用
- 月額費用
- 追加費用※ご確認ください
追加で費用が
かかる場合があります
必ずご確認ください
初期費用めやす約0円
追加で費用がかかります(※)敷金
138,000
- 礼金
138,000
賃料+共益費・管理費の1ヶ月分として換算
賃料の1ヶ月分+税として換算。不動産会社によって金額が異なるため正確な金額は不動産会社にお問合せください
※追加費用もチェック!
これらの項目以外にも費用がかかる場合があります。正確な金額は不動産会社にお問合せください。
- 初期費用
- 鍵交換費:16,500円
- 室内清掃費:60,500円
- 火災保険費:不動産会社に要確認
- その他
- 町会費:600円
- 保証会社
- 初回:月額賃料等の50%、月額:システム利用料1200円
不動産会社より
地下鉄五条駅徒歩4分 地下鉄沿線徒歩圏の3LDK、南向きベランダの登場です。
地下鉄五条駅まで徒歩4分の3LDKマンションです。阪急、地下鉄のダブルアクセス。更新料ナシです。嬉しい3点セパレートなど充実の設備。オートロック、TVホンでセキュリティも安心です。コンビニ、スーパーなど近くにあって便利ですよ。光ファイバー対応しています。お部屋探しはアパマンショップ四条烏丸店にお任せください。すぐに対応させていただきます
- 保存する
- 共有する
- ※各種情報と現状に差異がある場合は、現状優先となります
- ※不動産会社が入力した情報を基に物件の位置を表示しています。詳しくは不動産会社までお問合せください
- ※不動産会社の方からの上記電話番号によるお問合せはお断りしております。こちら不動産会社詳細からお問合せください
- ※LIFULL HOME'Sは物件鮮度No.1を目指していきます。閲覧中の物件が「成約済である」「実際の物件情報と異なる点がある」などの場合、「掲載110番」からお問合せください
- ※QRコードは株式会社デンソーウェーブの登録商標です
したい暮らしのタグから探す
最近見た賃貸物件
LIFULL HOME'S 地図・周辺情報
買い物
- ローソン 五条若宮店
- フレスコ 五条西洞院店
- ココカラファイン新町店
- ファミリーマート 五条新町店
- フレスコ 五条店
グルメ
- ロイヤルホスト 堀川五条店
- 吉野家 烏丸五条店
- CoCo壱番屋 烏丸五条店
- マクドナルド 烏丸五条店
- やよい軒 五条烏丸店
育児・教育
- 京都市立楊梅幼稚園
- 京都市立下京雅小学校
- 京都市立下京中学校
- 大谷保育園
- 京都市立洛央小学校
医療
- 木津屋橋武田病院
- 医療法人令寿会しまばら病院
- 医療法人財団康生会武田病院
- 山元病院
- 医療法人知音会京都新町病院
公共施設・郵便局
- 京都若宮松原郵便局
- 京都市下京図書館
- 京都府下京警察署
- 京都六条郵便局
- 京都市南図書館
公園
- 光徳公園
- 梅小路公園
- 梅小路公園
- 梅屋広場公園
- 唐橋西寺公園
利用可能な駅
- 徒歩10分以内
京都市営烏丸線
- 五条駅徒歩4分
- すべての駅
京都市営烏丸線
- 四条駅徒歩14分
- 周辺情報は2023年07月21日時点のものになります。
- 周辺情報は、参考情報としてのみご利用ください(周辺情報は、株式会社LIFULLが地図情報の提供事業者から提供を受けた情報とLIFULL HOME'Sの物件情報に基づき、独自の方法で抽出し提供しているものです。周辺情報は、移転や閉鎖等により情報が最新ではない、または正しくない場合がありますが、地図情報の提供事業者から提供された情報をそのまま周辺情報として表示しているため、正確かつ最新の情報へ修正することができないことがあります。)
- 周辺情報は、株式会社LIFULLが掲載するものであり、不動産物件情報を掲載している不動産会社が掲載するものではありません
- 交通情報の一部については、株式会社LIFULLが掲載するものであり、不動産物件情報を掲載している不動産会社が掲載するものではない場合があります。交通情報に関する質問などは株式会社LIFULLにお問合せください




















































