LIFULL HOME'Sは物件鮮度No.1!※評価について
TUJIGAHANA淀(2階/202/1SLDK/32.18㎡)
TUJIGAHANA淀(2階/202/1SLDK/32.18㎡)
6.4万円/管理費等4,000円
5時間前 更新
画像一覧
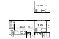
1/30間取り
間取
2/30外観
3/30外観
4/30外観
5/30リビング/ダイニング
白が基調のお部屋です。
6/30リビング/ダイニング
7/30リビング/ダイニング
8/30リビング/ダイニング
9/30室内
10/30室内
11/30室内
12/30キッチン
2口コンロ付きです。
13/30キッチン
14/30キッチン
15/30浴室
ゆったりとした浴槽。
16/30浴室
17/30浴室
18/30トイレ
ウォシュレット付きトイレ。
19/30トイレ
20/30洗面
大きな独立洗面台。
21/30洗面
22/30洗面
23/30収納
大きなクローゼット。
24/30設備
25/30設備
26/30玄関
シューズオックス付きです。
27/30玄関
28/30バルコニー
日当たり良好です。
29/30エントランス
30/30周辺
京都淀池上郵便局まで19m すぐそこに京都競馬場。町の郵便局です。
間取り
外観
外観
外観
リビング/ダイニング
リビング/ダイニング
リビング/ダイニング
リビング/ダイニング
室内
室内
室内
キッチン
キッチン
キッチン
浴室
浴室
浴室
トイレ
トイレ
洗面
洗面
洗面
収納
設備
設備
玄関
玄関
バルコニー
エントランス
周辺
お問合せ先 :(株)京都ライフ 小倉店
ちょっと変わったお部屋 浴室乾燥機、システムキッチン、温水洗浄便座など充実
基本情報
不動産用語- 賃料
- 6.4万円
- 管理費等
- 4,000円
初期費用などお気軽にお問合せください
- 敷金/礼金
- 無/6.4万円
- 保証金/敷引・償却金
- -/-
- 交通
京阪本線 淀駅 徒歩4分
JR東海道・山陽本線 長岡京駅 3.6km
- 所在地
京都府京都市伏見区淀池上町
地図を見る- 築年月
- 2019年10月(築7年)
- 主要採光面
- 西
- 専有面積
- 32.18㎡
- バルコニー面積
- -
- 所在階/階数
- 2階/3階建
入居可能日などお気軽にお問合せください
- 現況
- 賃貸中
- 入居可能時期
- 2026年02月 中旬

人気物件はすぐに埋まってしまいます。
気になったらお早めにお問合せください。
- 情報公開日
2025/12/04
本日 公開
- 情報更新日
2025/12/04
5時間前 更新
- 次回更新
予定日 - 2025/12/17
物件のこだわり/設備・条件
新築(非該当)
2階以上の物件(該当)
南向き(非該当)
駐車場(非該当)
オートロック(該当)
エアコン(該当)
バス・トイレ別(該当)
追焚機能(該当)
フローリング(該当)
ペット相談(非該当)
位置
角部屋入居条件
二人入居可キッチン/バス・トイレ
設備・サービス
オートロック、TVモニタ付インターホン、エアコン、床下収納、シューズボックス、BS対応、インターネット対応、インターネット使用料無料、公営水道、プロパンガス、下水、メゾネット、フローリング、バルコニー、ロフト付き、室内洗濯機置場、照明器具付き、宅配ボックス、駐輪場ありその他
デザイナーズ備考
2019年10月完成の1SLDKです。京阪淀駅まで徒歩4分。敷金ナシです。嬉しい3点セパレートに浴室乾燥機、システムキッチン、ウォシュレットトイレなど充実の設備。オートロック、TVホンでセキュリティも安心です。コンビニ、スーパーなど近くにあって便利ですよ。光ファイバー対応しています。京都の賃貸は京都ライフまでお待ちしており... 物件情報はもちろん京都のエリア情報まで幅広く対応させていただきます!
物件周辺の生活情報
学校
- 明親小学校(110m)
- 大淀中学校(359m)
買い物
- コンビニ(29m)
- スーパー(114m)
その他施設
- 総合病院(487m)
- 銀行(135m)
- 京都淀池上郵便局(19m)
交通
- 京阪本線 淀駅 徒歩4分
- 普通(停車)
- 区間急行(通過)
- 急行(停車)
- 特急(通過)
- 通勤準急・準急(停車)
- 快速特急 洛楽(通過)
- 通勤快急・快速急行(通過)
- JR東海道・山陽本線 長岡京駅 3.6km
- 普通(停車)
- 新快速(通過)
- 快速(停車)
- 緩行電車(停車)
- 特別快速(通過)
- 区間快速(通過)
※急行等の停車駅情報について
急行等の停車駅に関するデータは、随時更新をしておりますが、最新の内容であることを保証するものではありません。
最新かつ正確な情報につきましては、各鉄道会社のウェブサイトにてご確認ください
物件周辺の口コミ
- 京都府京都市伏見区淀池上町に住む人の口コミ40代男性
昔ながらの雰囲気と地域住民の繋がりが強い。都心まで遠からず近からず。
口コミを見る
この物件周辺に住む人の口コミ
口コミは、LIFULL HOME'Sが実際にこの物件の周辺に住む18歳~69歳の男女を対象に、WEBアンケート調査を実施しています。内容には回答者の主観的な表現が含まれる場合があるほか、事実と異なる場合もございます。ご了承ください。
- 京都府京都市伏見区淀池上町に住む人の口コミ40代男性
- 昔ながらの雰囲気と地域住民の繋がりが強い。都心まで遠からず近からず。
- 京都府長岡京市神足に住む人の口コミ50代男性
- 大阪と京都どちらにもJR・阪急で通勤通学しやすい。それほど人口が多くない。
- 京都府久世郡久御山町東一口に住む人の口コミ40代男性
- 夜遅くても開いてる店が多い、交通手段が車がないと厳しいので、鉄道をなんとかして欲しい
- 京都府京都市伏見区淀生津町に住む人の口コミ20代女性
- 地域のコミュニティがしっかり作られ、皆が助け合い楽しく生活しているから。
- 京都府長岡京市東和苑に住む人の口コミ50代女性
- 生活に必要なスーパー、病院などが一通り揃っており、治安も悪くない。普通に暮らすのに不自由しない街である。
- 京都府乙訓郡大山崎町字下植野に住む人の口コミ30代女性
- 街が綺麗なので道も広いし歩きやすい。最寄りの駅も近いので助かってます。スーパーやドラッグストアも近くにあるので急な買い物も出来るからです。
- 京都府長岡京市神足に住む人の口コミ50代女性
- 駅に近く大阪にも京都にもいきやすい。スーパーも近くに複数ある。
- 京都府長岡京市神足に住む人の口コミ40代女性
- 衣料品を買える店が少ない。阪急電車の踏切が長い。商店街や阪急長岡天神駅周辺が残念な感じ。
- 京都府長岡京市神足に住む人の口コミ40代男性
- 治安はあまり良くないが、大きな不便がないため。子供が走り回って遊べるような公園があるといい。
- 京都府京都市伏見区淀美豆町に住む人の口コミ60代女性
- 交通網が発達している。駅近、バス停近、高速近、主要都市駅にも近い。買い物に便利である。プライベートが確保されている。町が静かである。
物件概要
- 建物構造
- 木造
- 駐車場
- 無
- 総戸数
- 6戸
- 契約形態
- -
- 契約期間
- 2年間
- 更新料
- -
- その他費用
- 鍵交換費用:16,500円、水道代:2,750円、ファイテック(消火剤):4,950円、アルコール殺菌・消毒:22,000円
- 保証会社
加入要
保証会社利用料:初回:月額賃料等の30%/1年、更新時:1万円/1年
- 住宅保険
- 要
- 管理
- -
- LIFULL HOME'S
物件番号 - 0100017-0221903
- 自社管理番号
- 68862-202-11
- 取引態様
- 仲介
- 会社名
- (株)京都ライフ 小倉店
営業スタッフコメント

(株)京都ライフ 小倉店
中江
営業の立場ではなくお客様の立場でご紹介。
業界経験3年
資格少額短期保険募集人
- 会社実績や特徴・サービス情報
- 宇治市、城陽市、京田辺市、京都南エリアのお部屋探しは「京都ライフ」へお任せ下さい。仲介手数料は一律、家賃の50%(税別)。来客用ガレージも完備。学生様の新生活も全力でサポートいたします。
宇治市、城陽市、京田辺市、京都南エリアのお部屋探しは「京都ライフ」へお任せ下さい。仲介手数料は一律、家賃の50%(税別)。来客用ガレージも完備。学生様の新生活も全力でサポートいたします。
- 電話でお問合せ(通話無料)
お問合せ先 :(株)京都ライフ 小倉店
不動産会社情報
(株)京都ライフ 小倉店京都ライフ小倉店
京都府宇治市小倉町神楽田21-5 ア‐バネックス小倉ビル1F
近鉄京都線 小倉駅 徒歩2分
- 営業時間
- 09:30~19:00
- 定休日
- 年中無休(盆正月を除く)
電話でお問合せお客様の電話番号は不動産会社には通知されません
- 不動産会社に
つながります
お客様の電話番号は不動産会社に通知されません
- ※光IP電話、及びIP電話からはご利用になれません
- ※お電話によるお問合せは、店舗営業時間内にお願いします。つながらない場合は、お問合せフォームよりお問合せください
- ※不動産会社がお電話に出られなかった場合、お問合せいただいた後に不動産会社より折り返しのお電話がある場合がございます(お客様が非通知設定した場合は対象外です)
- ※株式会社LIFULLは電話会社が提供するサービスを介してお客様の発信者番号を受領後、折り返し専用の電話番号を発番してお問合せの不動産会社に通知します(お客様の発信者番号がお問合せの不動産会社に通知されることはございません)
- ※携帯電話からお問合せいただいた方に対し、株式会社LIFULLは電話会社が提供するメッセ―ジサービスを介してお客様の発信者番号を受領後、ショートメッセージ(SMS)またはLINE通知メッセージによるお問合せ内容に関する通知をお届けする場合があります
- ※お客様が通話中に不動産会社にお伝えになったお客様の個人情報及び、電話会社が発番する折り返し専用の電話番号は、お問合せ先不動産会社が資料送付・電子メール送信・電話連絡などの目的で保管する可能性があります。お問合せ先不動産会社が保管する個人情報の取扱いについては、各不動産会社に直接お問合せください
- ※株式会社LIFULLでは本サービスを円滑に運用するために、お客様の発信者番号をサービスご利用の控えとして一定期間保管いたします
- ※上記および株式会社LIFULLの個人情報の取扱い方針に同意のうえ、お電話ください
【LIFULL HOME'S物件番号】0100017-0221903【自社管理番号】68862-202-11
オンライン対応
オンライン相談に対応している物件です

「オンライン内見」「オンライン相談」「IT重説」とは?
物件の内見や不動産会社スタッフとの相談、契約前の重要事項説明をオンライン(ビデオ通話)で行うことができるサービスです。
オンライン内見
ビデオ通話で現地(物件)にいる不動産会社スタッフと映像・音声を使ってリアルタイムで会話しながら内見ができます。
オンライン相談
「物件について聞きたいことがある」など不動産会社スタッフへの相談もビデオ通話で行うことができます。
IT重説
契約前の重要事項説明(重説)をビデオ通話で行うことができます。
利用時の注意事項
- ビデオ通話については各不動産会社指定のものとなります。
- ビデオ通話利用時には通信が発生します。従量課金制通信サービスや通信量に上限があるネット回線・プランを利用する場合は、通信量にご注意ください。
- 通信速度やアプリの設定によってはビデオ通話の画質が低下することがあります。安定した画質で利用するためにも、Wi-Fi環境下での利用を推奨します。
- ご利用のビデオ通話アプリによっては、対象のOSやブラウザに制限がある場合があります。詳しくはお問合せ先不動産会社にご確認ください。
初期費用・月額費用をあわせて確認!この物件に住んだときの費用めやす
めやすを見るこの物件に住んだときの費用めやす
- 初期費用
- 月額費用
- 追加費用※ご確認ください
追加で費用が
かかる場合があります
必ずご確認ください
初期費用めやす約0円
追加で費用がかかります(※)敷金
0
- 礼金
64,000
賃料+共益費・管理費の1ヶ月分として換算
賃料の1ヶ月分+税として換算。不動産会社によって金額が異なるため正確な金額は不動産会社にお問合せください
※追加費用もチェック!
これらの項目以外にも費用がかかる場合があります。正確な金額は不動産会社にお問合せください。
- 初期費用
- 鍵交換費:16,500円
- 室内清掃費:不動産会社に要確認
- 火災保険費:不動産会社に要確認
- その他
- 水道代:2750円
- ファイテック(消火剤):4950円
- アルコール殺菌・消毒:22000円
- 保証会社
- 初回:月額賃料等の30%/1年、更新時:1万円/1年
不動産会社より
ちょっと変わったお部屋 浴室乾燥機、システムキッチン、温水洗浄便座など充実
2019年10月完成の1SLDKです。京阪淀駅まで徒歩4分。敷金ナシです。嬉しい3点セパレートに浴室乾燥機、システムキッチン、ウォシュレットトイレなど充実の設備。オートロック、TVホンでセキュリティも安心です。コンビニ、スーパーなど近くにあって便利ですよ。光ファイバー対応しています。京都の賃貸は京都ライフまでお待ちしており... 物件情報はもちろん京都のエリア情報まで幅広く対応させていただきます!
- 保存する
- 共有する
- ※各種情報と現状に差異がある場合は、現状優先となります
- ※不動産会社が入力した情報を基に物件の位置を表示しています。詳しくは不動産会社までお問合せください
- ※不動産会社の方からの上記電話番号によるお問合せはお断りしております。こちら不動産会社詳細からお問合せください
- ※LIFULL HOME'Sは物件鮮度No.1を目指していきます。閲覧中の物件が「成約済である」「実際の物件情報と異なる点がある」などの場合、「掲載110番」からお問合せください
- ※QRコードは株式会社デンソーウェーブの登録商標です
この物件を取扱う他の会社
LIFULL HOME'Sでは、主要項目が同一の物件をまとめて表示しています。所在地や営業時間、掲載画像等から不動産会社を選んでお問合せください。
同じ建物の他の部屋
LIFULL HOME'S 地図・周辺情報
買い物
- ローソン 淀下津店
- フードネットマート淀店
- 薬ヒグチ淀店
- セブンイレブン 淀池上町店
- TOAmart京都淀店
グルメ
- ケンタッキーフライドチキン JRA京都競馬場店
- 吉野家 京都競馬場店
- 和食さと 城ノ里店
- すき家 大山崎IC店
- 焼肉でん 長岡京店
育児・教育
- 淀白鳥保育園分園
- 京都市立明親小学校
- 京都市立大淀中学校
- 淀白鳥保育園
- 京都市立納所小学校
医療
- 医療法人社団淀さんせん会金井病院
- 医療法人社団洛和会介護医療院洛和ヴィラよつば
- 医療法人八仁会久御山南病院
- (財)長岡記念財団長岡ヘルスケアセンター(長岡病院)
- 医療法人社団千春会千春会病院
公共施設・郵便局
- 京都淀池上郵便局
- 大山崎町役場
- 御牧郵便局
- 久御山町役場
- 京都納所郵便局
公園
- 淀城跡公園
- 横大路運動公園
- かわきた自然運動公園
- 勝竜寺城公園
- 勝竜寺城公園
利用可能な駅
- 徒歩10分以内
京阪本線
- 淀駅徒歩4分
- すべての駅
JR東海道・山陽本線
- 長岡京駅3.6km
- 周辺情報は2023年07月21日時点のものになります。
- 周辺情報は、参考情報としてのみご利用ください(周辺情報は、株式会社LIFULLが地図情報の提供事業者から提供を受けた情報とLIFULL HOME'Sの物件情報に基づき、独自の方法で抽出し提供しているものです。周辺情報は、移転や閉鎖等により情報が最新ではない、または正しくない場合がありますが、地図情報の提供事業者から提供された情報をそのまま周辺情報として表示しているため、正確かつ最新の情報へ修正することができないことがあります。)
- 周辺情報は、株式会社LIFULLが掲載するものであり、不動産物件情報を掲載している不動産会社が掲載するものではありません
- 交通情報の一部については、株式会社LIFULLが掲載するものであり、不動産物件情報を掲載している不動産会社が掲載するものではない場合があります。交通情報に関する質問などは株式会社LIFULLにお問合せください





