LIFULL HOME'Sは物件鮮度No.1!※評価について
京都市営烏丸線 十条駅 徒歩1分
6.5万円/管理費等7,000円
8時間前 更新
画像一覧
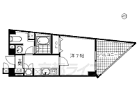
1/30間取り
間取
2/30外観
3/30リビング/ダイニング
4/30リビング/ダイニング
5/30リビング/ダイニング
6/30リビング/ダイニング
7/30室内
8/30室内
9/30キッチン
10/30キッチン
11/30キッチン
12/30キッチン
13/30浴室
14/30トイレ
15/30トイレ
16/30洗面
17/30洗面
18/30収納
19/30収納
20/30設備
21/30設備
22/30玄関
23/30玄関
24/30バルコニー
25/30バルコニー
26/30エントランス
27/30その他
28/30その他
29/30その他
30/30周辺
ファミリーマート烏丸十条店まで23m
間取り
外観
リビング/ダイニング
リビング/ダイニング
リビング/ダイニング
リビング/ダイニング
室内
室内
キッチン
キッチン
キッチン
キッチン
浴室
トイレ
トイレ
洗面
洗面
収納
収納
設備
設備
玄関
玄関
バルコニー
バルコニー
エントランス
その他
その他
その他
周辺
仲介手数料割引
御成約時の仲介手数料が賃料の半月分(税別)
- 利用条件
- ウインズリンク株式会社 アパマンショップ山科店で利用可
- 他特典との併用可
利用方法
来店時に本特典の画面をスマートフォンやタブレットでスタッフに提示、または画面印刷した用紙を提示ください。
有効期限 なし
コンビニ・駅徒歩1分 セコム監視カメラシステム導入のハイグレードレジデンスです。
物件のこだわり/設備・条件
新築(非該当)
2階以上の物件(該当)
南向き(非該当)
駐車場(非該当)
オートロック(該当)
エアコン(該当)
バス・トイレ別(該当)
追焚機能(非該当)
フローリング(該当)
ペット相談(非該当)
位置
角部屋入居条件
二人入居可、即入居可キッチン/バス・トイレ
設備・サービス
オートロック、防犯カメラ、TVモニタ付インターホン、エアコン、シューズボックス、CS対応、BS対応、光ファイバー、インターネット使用料無料、公営水道、下水、オール電化、フローリング、バルコニー、室内洗濯機置場、照明器具付き、バリアフリー、エレベーター、ゴミ出し24時間OK、宅配ボックス、バイク置き場あり、駐輪場ありその他
デザイナーズ、住まい探し特典あり備考
「京都駅前店のこだわり…室内写真は広角レンズ等を使わずに出来る限り現状のお部屋をお伝え出来るよう撮影してます。」セコム監視カメラシステム導入のハイグレードレジデンスです。地下鉄十条徒歩1分ですので、通勤などはかなり便利です 買い物に関しても、イオンモールなどもすぐ近くですので十分満足できるお買い物になるんじゃないでしょうか バリアフリー構造で、SOHO利用も可能です お問い合わせはアパマンシ...
物件周辺の生活情報
買い物
- コンビニ(23m)
- スーパー(300m)
その他施設
- 総合病院(1,200m)
- 銀行(160m)
- イオンモールKYOTO(1,497m)
交通
- 京都市営烏丸線 十条駅 徒歩1分
- 普通(停車)
- 急行(停車)
- JR東海道・山陽本線 京都駅 徒歩15分
- 普通(停車)
- 新快速(停車)
- 快速(停車)
- 緩行電車(停車)
- 特別快速(通過)
- 区間快速(通過)
※急行等の停車駅情報について
急行等の停車駅に関するデータは、随時更新をしておりますが、最新の内容であることを保証するものではありません。
最新かつ正確な情報につきましては、各鉄道会社のウェブサイトにてご確認ください
物件周辺の口コミ
- 京都府京都市下京区七条御所ノ内南町に住む人の口コミ30代女性
アクセスがよい、コンビニとスーパーもあり、暮らす分には不自由しない
口コミを見る
この物件周辺に住む人の口コミ
口コミは、LIFULL HOME'Sが実際にこの物件の周辺に住む18歳~69歳の男女を対象に、WEBアンケート調査を実施しています。内容には回答者の主観的な表現が含まれる場合があるほか、事実と異なる場合もございます。ご了承ください。
- 京都府京都市下京区七条御所ノ内南町に住む人の口コミ30代女性
- アクセスがよい、コンビニとスーパーもあり、暮らす分には不自由しない
- 京都府京都市南区吉祥院三ノ宮町に住む人の口コミ30代女性
- 交通の便もよく、自然も近くにある。ファミリー層も多いため住みやすい。
- 京都府京都市下京区猪熊通梅小路下るに住む人の口コミ20代女性
- 駅やバスも多く使えて、コンビニも4店舗、公園や飲食店もあり、少し行けば川に行けるし、都会と自然のちょうどいいところを味わえる。できればずっとこのあたりに住みたいです!
- 京都府京都市南区西九条蔵王町に住む人の口コミ20代女性
- 交通の便が良く、近くにショッピングモールもあるため生活に困らないが、近くのスーパーの営業時間が短いことが不便だと感じる。
- 京都府京都市南区吉祥院九条町に住む人の口コミ20代女性
- スーパーが何店舗かあり選べるし、駅も近く通勤や買い物の利便性は高めであるため。
- 京都府京都市南区東九条南山王町に住む人の口コミ30代女性
- 交通の便の良さを重視しつつ、家賃相場が比較的低く設備の良い物件がある場所だと思います。スーパーや銀行関連は少ないですが、仕事中心の生活者としては重視するポイントが揃っていると思いました、。
- 京都府京都市下京区烏丸通七条下る2筋目西入に住む人の口コミ20代女性
- 自然がたくさんないのは残念だが、都会にしては多いと思うし、お店がたくさんあり何でも揃う。
- 京都府京都市南区東九条明田町に住む人の口コミ20代女性
- 夜はあまり治安が良いとは言えないがある程度のものは近くにあって便利なのは便利
- 京都府京都市南区唐橋花園町に住む人の口コミ30代女性
- 小学校中学校高校が徒歩圏内にあるし、子供が通いやすい。買い物もスーパーやイオンが近いので困らない。市バスも本数が多いし、JRも近い。小児科が少し距離があるのが大変。ドラッグストアも近辺にない。
- 京都府京都市下京区東洞院通七条下る西入に住む人の口コミ10代女性
- もともと京都に住みたくて京都の大学に進学したので、今は憧れていた生活ができている。でも、夜道を歩くのは少し怖いし、酔っ払いの人が駅にたくさんいたりして、田舎出身の私には少し刺激が大きすぎることもある。
物件概要
- 建物構造
- RC(鉄筋コンクリート)
- 駐車場
- 無
- 総戸数
- 28戸
- 契約形態
- -
- 契約期間
- 2年間
- 更新料
- 新賃料の1ヶ月分
- その他費用
- 鍵交換費用:15,000円、室内清掃費用:33,000円、LIFE SUPPORT:1,100円
- 保証会社
加入要
保証会社:あんしんプラス
保証会社利用料:初回:月額賃料等の40%、月額:支払い手数料880円、更新時:月額賃料等の20%/2年
- 住宅保険
- 要
- 管理
- -
- LIFULL HOME'S
物件番号 - 0148634-0071142
- 自社管理番号
- 25343-404-71
- 取引態様
- 専属専任媒介
- 会社名
- ウインズリンク株式会社 アパマンショップ山科店
営業スタッフコメント

ウインズリンク株式会社 アパマンショップ山科店
宮本周
宜しくお願い致します。
業界経験1年
- 会社実績や特徴・サービス情報
- 京都市の東の玄関口として発展を続けている山科区は、近年はアクセス面の良さから京都、滋賀、大阪と幅広い地域のベッドタウンとして注目されています。JR、地下鉄、京阪と3つの沿線が利用できる山科駅は通勤・通学の要として人気の駅でもあります。そんな山科区のお部屋探しは、アパマンショップ山科店にぜひお任せください!スタッフ一同、お待ちしております!
京都市の東の玄関口として発展を続けている山科区は、近年はアクセス面の良さから京都、滋賀、大阪と幅広い地域のベッドタウンとして注目されています。JR、地下鉄、京阪と3つの沿線が利用できる山科駅は通勤・通学の要として人気の駅でもあります。そんな山科区のお部屋探しは、アパマンショップ山科店にぜひお任せください!スタッフ一同、お待ちしております!
- 電話でお問合せ(通話無料)
お問合せ先 :ウインズリンク株式会社 アパマンショップ山科店
不動産会社情報
ウインズリンク株式会社 アパマンショップ山科店
京都府京都市山科区安朱南屋敷町19-11
JR東海道・山陽本線 山科駅 徒歩2分
- 営業時間
- 09:30~19:00
- 定休日
- なし(盆休み8/13〜8/16・年末年始12/27〜1/4)
京都市山科区エリアのお部屋探しは、アパマンショップ山科店にお任せください!あなたにぴったりのお部屋をご紹介します。
- 店舗の特徴
- 賃貸管理業務
- リフォーム対応
- 引越し業者紹介可
- 年中無休
- 社宅・寮物件取扱い
- オンライン相談可
- 保証人不要な物件あり
- 法人契約取扱い
- 女性スタッフ対応可
- 駅から歩いて3分以内
電話でお問合せお客様の電話番号は不動産会社には通知されません
- 不動産会社に
つながります
お客様の電話番号は不動産会社に通知されません
- ※光IP電話、及びIP電話からはご利用になれません
- ※お電話によるお問合せは、店舗営業時間内にお願いします。つながらない場合は、お問合せフォームよりお問合せください
- ※不動産会社がお電話に出られなかった場合、お問合せいただいた後に不動産会社より折り返しのお電話がある場合がございます(お客様が非通知設定した場合は対象外です)
- ※株式会社LIFULLは電話会社が提供するサービスを介してお客様の発信者番号を受領後、折り返し専用の電話番号を発番してお問合せの不動産会社に通知します(お客様の発信者番号がお問合せの不動産会社に通知されることはございません)
- ※携帯電話からお問合せいただいた方に対し、株式会社LIFULLは電話会社が提供するメッセ―ジサービスを介してお客様の発信者番号を受領後、ショートメッセージ(SMS)またはLINE通知メッセージによるお問合せ内容に関する通知をお届けする場合があります
- ※お客様が通話中に不動産会社にお伝えになったお客様の個人情報及び、電話会社が発番する折り返し専用の電話番号は、お問合せ先不動産会社が資料送付・電子メール送信・電話連絡などの目的で保管する可能性があります。お問合せ先不動産会社が保管する個人情報の取扱いについては、各不動産会社に直接お問合せください
- ※株式会社LIFULLでは本サービスを円滑に運用するために、お客様の発信者番号をサービスご利用の控えとして一定期間保管いたします
- ※上記および株式会社LIFULLの個人情報の取扱い方針に同意のうえ、お電話ください
【LIFULL HOME'S物件番号】0148634-0071142【自社管理番号】25343-404-71
初期費用・月額費用をあわせて確認!この物件に住んだときの費用めやす
めやすを見るこの物件に住んだときの費用めやす
- 初期費用
- 月額費用
- 追加費用※ご確認ください
追加で費用が
かかる場合があります
必ずご確認ください
初期費用めやす約0円
追加で費用がかかります(※)敷金
65,000
- 礼金
65,000
賃料+共益費・管理費の1ヶ月分として換算
賃料の1ヶ月分+税として換算。不動産会社によって金額が異なるため正確な金額は不動産会社にお問合せください
※追加費用もチェック!
これらの項目以外にも費用がかかる場合があります。正確な金額は不動産会社にお問合せください。
- 初期費用
- 鍵交換費:15,000円
- 室内清掃費:33,000円
- 火災保険費:不動産会社に要確認
- その他
- LIFE SUPPORT:1100円
- 保証会社
- 初回:月額賃料等の40%、月額:支払い手数料880円、更新時:月額賃料等の20%/2年
不動産会社より
コンビニ・駅徒歩1分 セコム監視カメラシステム導入のハイグレードレジデンスです。
「京都駅前店のこだわり…室内写真は広角レンズ等を使わずに出来る限り現状のお部屋をお伝え出来るよう撮影してます。」セコム監視カメラシステム導入のハイグレードレジデンスです。地下鉄十条徒歩1分ですので、通勤などはかなり便利です 買い物に関しても、イオンモールなどもすぐ近くですので十分満足できるお買い物になるんじゃないでしょうか バリアフリー構造で、SOHO利用も可能です お問い合わせはアパマンシ...
- 保存する
- 共有する
- ※各種情報と現状に差異がある場合は、現状優先となります
- ※不動産会社が入力した情報を基に物件の位置を表示しています。詳しくは不動産会社までお問合せください
- ※不動産会社の方からの上記電話番号によるお問合せはお断りしております。こちら不動産会社詳細からお問合せください
- ※LIFULL HOME'Sは物件鮮度No.1を目指していきます。閲覧中の物件が「成約済である」「実際の物件情報と異なる点がある」などの場合、「掲載110番」からお問合せください
- ※QRコードは株式会社デンソーウェーブの登録商標です
この物件を取扱う他の会社
LIFULL HOME'Sでは、主要項目が同一の物件をまとめて表示しています。所在地や営業時間、掲載画像等から不動産会社を選んでお問合せください。
最近見た賃貸物件
LIFULL HOME'S 地図・周辺情報
買い物
- ファミリーマート 烏丸十条店
- ライフ 伏見深草店
- ドラッグユタカ伏見フケノ内店
- セブンイレブン 京都烏丸十条店
- ジャパン 京都十条店
グルメ
- ステーキガスト 京都十条通店
- ガスト 京都十条通店(から好し取扱店)
- 和食さと 大石橋店
- 吉野家 京都九条店
- マクドナルド 竹田街道店
育児・教育
- 東和保育園
- 京都市立九条弘道小学校
- 京都市立凌風小中学校
- 松ノ木保育園
- 京都市立九条塔南小学校
医療
- 医療法人社団育成会京都久野病院介護医療院
- 医療法人五木田病院介護医療院
- 医療法人社団育生会京都久野病院
- 医療法人財団医道会稲荷山武田病院
- 洛和会ヘルスケアシステム洛和会東寺南病院
公共施設・郵便局
- 京都札ノ辻郵便局
- 京都市南図書館
- 京都府南警察署
- 京都東九条郵便局
- 京都市吉祥院図書館
公園
- 深草墓園
- 深草西浦南公園
- 梅小路公園
- 梅小路公園
- 唐橋西寺公園
利用可能な駅
- 徒歩10分以内
京都市営烏丸線
- 十条駅徒歩1分
- 九条駅徒歩9分
近鉄京都線
- 十条駅徒歩10分
- すべての駅
JR東海道・山陽本線
- 京都駅徒歩15分
- 西大路駅3.2km
京阪本線
- 鳥羽街道駅徒歩15分
- 伏見稲荷駅徒歩18分
- 龍谷大前深草駅徒歩25分
- 七条駅徒歩33分
- 藤森駅徒歩34分
- 清水五条駅3.4km
- 墨染駅3.9km
近鉄京都線
- 上鳥羽口駅徒歩17分
- 東寺駅徒歩19分
- 竹田駅徒歩34分
京都市営烏丸線
- くいな橋駅徒歩21分
- 五条駅徒歩32分
JR奈良線
- 稲荷駅徒歩21分
- 東福寺駅徒歩24分
JR山陰本線
- 梅小路京都西駅3.2km
- 丹波口駅4km
- 周辺情報は2023年07月21日時点のものになります。
- 周辺情報は、参考情報としてのみご利用ください(周辺情報は、株式会社LIFULLが地図情報の提供事業者から提供を受けた情報とLIFULL HOME'Sの物件情報に基づき、独自の方法で抽出し提供しているものです。周辺情報は、移転や閉鎖等により情報が最新ではない、または正しくない場合がありますが、地図情報の提供事業者から提供された情報をそのまま周辺情報として表示しているため、正確かつ最新の情報へ修正することができないことがあります。)
- 周辺情報は、株式会社LIFULLが掲載するものであり、不動産物件情報を掲載している不動産会社が掲載するものではありません
- 交通情報の一部については、株式会社LIFULLが掲載するものであり、不動産物件情報を掲載している不動産会社が掲載するものではない場合があります。交通情報に関する質問などは株式会社LIFULLにお問合せください































