LIFULL HOME'Sは物件鮮度No.1!※評価について
コーポA 1階/2F
5.6万円/管理費等-
3時間前 更新
画像一覧
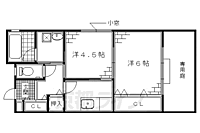
1/30間取り
間取
2/30外観
2階建てのハイツです。
3/30リビング/ダイニング
4/30リビング/ダイニング
5/30リビング/ダイニング
6/30リビング/ダイニング
7/30室内
8/30室内
9/30キッチン
10/30キッチン
11/30キッチン
12/30キッチン
13/30浴室
14/30浴室
15/30トイレ
16/30洗面
17/30収納
18/30収納
19/30収納
20/30収納
21/30収納
22/30設備
23/30設備
24/30設備
25/30玄関
26/30バルコニー
27/30エントランス
28/30その他
29/30その他
30/30周辺
京都銀行 藤森支店まで218m 本町通り沿いの京都銀行。最寄は藤森駅です。
間取り
外観
リビング/ダイニング
リビング/ダイニング
リビング/ダイニング
リビング/ダイニング
室内
室内
キッチン
キッチン
キッチン
キッチン
浴室
浴室
トイレ
洗面
収納
収納
収納
収納
収納
設備
設備
設備
玄関
バルコニー
エントランス
その他
その他
周辺
仲介手数料割引
仲介手数料が家賃の半月分(税別)です。
- 利用条件
- 株式会社京都ライフ 丹波橋店で利用可
- 他特典との併用可
- ・法人契約、事業用物件は除く。 ・積水ハウス、大東建託の管理物件は除く。
利用方法
来店時に本特典の画面をスマートフォンやタブレットでスタッフに提示、または画面印刷した用紙を提示ください。
有効期限 なし
藤森駅から徒歩約5分
物件のこだわり/設備・条件
新築(非該当)
2階以上の物件(非該当)
南向き(該当)
駐車場(非該当)
オートロック(非該当)
エアコン(非該当)
バス・トイレ別(該当)
追焚機能(非該当)
フローリング(該当)
ペット相談(非該当)
位置
角部屋入居条件
二人入居可、即入居可キッチン/バス・トイレ
設備・サービス
公営水道、都市ガス、下水、フローリング、専用庭付き、室内洗濯機置場、駐輪場ありその他
住まい探し特典あり備考
京阪の藤森駅から徒歩約5分 スーパー・コンビニも駅のすぐ近くにあるので駅からの帰りに買い物し放題です 収納が沢山あるので収納力良好です。京都の賃貸は京都ライフまでお待ちしております。ご質問、ご不明な点等がございましたらお気軽にお電話、メールにてお問い合わせくださいませ。 物件情報はもちろん京都のエリア情報まで幅広く対応させていただきます!
物件周辺の生活情報
学校
- 深草小学校(368m)
- 深草中学校(673m)
買い物
- コンビニ(247m)
- スーパー(338m)
その他施設
- 総合病院(487m)
- 銀行(218m)
- 京都藤森郵便局(267m)
交通
- 京阪本線 藤森駅 徒歩6分
- 普通(停車)
- 区間急行(通過)
- 急行(通過)
- 特急(通過)
- 通勤準急・準急(停車)
- 快速特急 洛楽(通過)
- 通勤快急・快速急行(通過)
- 京阪本線 墨染駅 徒歩11分
- 普通(停車)
- 区間急行(通過)
- 急行(通過)
- 特急(通過)
- 通勤準急・準急(停車)
- 快速特急 洛楽(通過)
- 通勤快急・快速急行(通過)
※急行等の停車駅情報について
急行等の停車駅に関するデータは、随時更新をしておりますが、最新の内容であることを保証するものではありません。
最新かつ正確な情報につきましては、各鉄道会社のウェブサイトにてご確認ください
物件周辺の口コミ
- 京都府京都市伏見区深草綿森町に住む人の口コミ20代女性
スーパーも近くに何種類かあるし、電車も3つほど線があり、利便性が良い
口コミを見る
この物件周辺に住む人の口コミ
口コミは、LIFULL HOME'Sが実際にこの物件の周辺に住む18歳~69歳の男女を対象に、WEBアンケート調査を実施しています。内容には回答者の主観的な表現が含まれる場合があるほか、事実と異なる場合もございます。ご了承ください。
- 京都府京都市伏見区深草綿森町に住む人の口コミ20代女性
- スーパーも近くに何種類かあるし、電車も3つほど線があり、利便性が良い
- 京都府京都市伏見区深草西浦町8丁目に住む人の口コミ20代男性
- 近所にコンビニや飲食店が多く、学生に優しい価格で販売されている。
- 京都府京都市伏見区深草綿森町に住む人の口コミ30代女性
- 京阪、近鉄、JRの駅が近いので、出掛けやすい。病院もスーパーも多くて、便利
- 京都府京都市伏見区竹田段川原町に住む人の口コミ30代女性
- 地下鉄や京阪へのアクセスは抜群で、交通がかなり便利です。ドラッグストア、コンビニ、スーパーへのアクセスも徒歩圏内なので生活には困りません。ただ、繁華街ではないので飲食店の数も限られています。
- 京都府京都市伏見区深草池ノ内町に住む人の口コミ30代女性
- 環境的にはすごくいいと思う。スーパーや病院、公園が近くにあるし、生活しやすい。保育の激戦区らしく、子どもを預けられるか不安。
- 京都府京都市伏見区深草池ノ内町に住む人の口コミ30代女性
- 電車が便利で、大阪にもすぐに行ける、京都市内にもすぐ行ける。それでいて自宅は割と静かで住みやすい。
- 京都府京都市伏見区深草飯食町に住む人の口コミ30代女性
- 治安はあまり良くなく、大きな買い物などは出来ないが普段の生活には困ることなく、交通機関がしっかりしているので何も問題はないので十分だと思う。
- 京都府京都市伏見区深草西浦町8丁目に住む人の口コミ20代男性
- 生活をする上で、衣食住及び交通の面で不自由することがないから。
- 京都府京都市伏見区深草石峰寺山町に住む人の口コミ30代女性
- 少子化の影響か小学校の生徒数が少なくお年寄りが多いが目的によって路線を選べて急行もとまるから繁華街にも行きやすい
- 京都府京都市伏見区竹田段川原町に住む人の口コミ30代男性
- 学生時代から過ごしてきて、一度も今の地域から出たいと思ったことがないから
物件概要
- 建物構造
- 木造
- 駐車場
- 無
- 総戸数
- 2戸
- 契約形態
- -
- 契約期間
- 2年間
- 更新料
- 新賃料の1ヶ月分
- その他費用
- 室内清掃費用:33,000円
- 保証会社
加入要
保証会社:ナップ保証
保証会社利用料:初回:月額賃料等の100%、更新時:1万円/1年
- 住宅保険
- 要
- 管理
- -
- LIFULL HOME'S
物件番号 - 0100118-0254665
- 自社管理番号
- 68530-2F
- 取引態様
- 仲介
- 会社名
- 株式会社京都ライフ 丹波橋店
営業スタッフコメント

株式会社京都ライフ 丹波橋店
横山琢己
良い部屋ご紹介させて頂きます!ご希望条件のお部屋探しをお手伝いいたします!
業界経験4年
資格少額短期保険募集人
- 会社実績や特徴・サービス情報
- 京都市内部屋付け数3年連続1位。(株式会社全国賃貸住宅新聞調べ) 当店は京阪本線と近鉄京都線が交わり伏見区でも人気の高い「丹波橋」にある京阪丹波橋駅の西に位置しております。
京都市内部屋付け数3年連続1位。(株式会社全国賃貸住宅新聞調べ) 当店は京阪本線と近鉄京都線が交わり伏見区でも人気の高い「丹波橋」にある京阪丹波橋駅の西に位置しております。
- 電話でお問合せ(通話無料)
お問合せ先 :株式会社京都ライフ 丹波橋店
不動産会社情報
伏見区全域くまなくネット!京都ライフでは仲介手数料が家賃の半月分!京都のお部屋探しは、創業45年、京都ライフにお任せ下さい!
- 店舗の特徴
- 賃貸管理業務
- 24時間管理物件取扱い
- 引越し業者紹介可
- 年中無休
- 駐車場あり
- 系列店舗での対応可
- オンライン相談可
- 保証人不要な物件あり
- 法人契約取扱い
- 駅から歩いて3分以内
電話でお問合せお客様の電話番号は不動産会社には通知されません
- 不動産会社に
つながります
お客様の電話番号は不動産会社に通知されません
- ※光IP電話、及びIP電話からはご利用になれません
- ※お電話によるお問合せは、店舗営業時間内にお願いします。つながらない場合は、お問合せフォームよりお問合せください
- ※不動産会社がお電話に出られなかった場合、お問合せいただいた後に不動産会社より折り返しのお電話がある場合がございます(お客様が非通知設定した場合は対象外です)
- ※株式会社LIFULLは電話会社が提供するサービスを介してお客様の発信者番号を受領後、折り返し専用の電話番号を発番してお問合せの不動産会社に通知します(お客様の発信者番号がお問合せの不動産会社に通知されることはございません)
- ※携帯電話からお問合せいただいた方に対し、株式会社LIFULLは電話会社が提供するメッセ―ジサービスを介してお客様の発信者番号を受領後、ショートメッセージ(SMS)またはLINE通知メッセージによるお問合せ内容に関する通知をお届けする場合があります
- ※お客様が通話中に不動産会社にお伝えになったお客様の個人情報及び、電話会社が発番する折り返し専用の電話番号は、お問合せ先不動産会社が資料送付・電子メール送信・電話連絡などの目的で保管する可能性があります。お問合せ先不動産会社が保管する個人情報の取扱いについては、各不動産会社に直接お問合せください
- ※株式会社LIFULLでは本サービスを円滑に運用するために、お客様の発信者番号をサービスご利用の控えとして一定期間保管いたします
- ※上記および株式会社LIFULLの個人情報の取扱い方針に同意のうえ、お電話ください
【LIFULL HOME'S物件番号】0100118-0254665【自社管理番号】68530-2F
オンライン対応
オンライン内見・オンライン相談・IT重説に対応している物件です

「オンライン内見」「オンライン相談」「IT重説」とは?
物件の内見や不動産会社スタッフとの相談、契約前の重要事項説明をオンライン(ビデオ通話)で行うことができるサービスです。
オンライン内見
ビデオ通話で現地(物件)にいる不動産会社スタッフと映像・音声を使ってリアルタイムで会話しながら内見ができます。
オンライン相談
「物件について聞きたいことがある」など不動産会社スタッフへの相談もビデオ通話で行うことができます。
IT重説
契約前の重要事項説明(重説)をビデオ通話で行うことができます。
利用時の注意事項
- ビデオ通話については各不動産会社指定のものとなります。
- ビデオ通話利用時には通信が発生します。従量課金制通信サービスや通信量に上限があるネット回線・プランを利用する場合は、通信量にご注意ください。
- 通信速度やアプリの設定によってはビデオ通話の画質が低下することがあります。安定した画質で利用するためにも、Wi-Fi環境下での利用を推奨します。
- ご利用のビデオ通話アプリによっては、対象のOSやブラウザに制限がある場合があります。詳しくはお問合せ先不動産会社にご確認ください。
初期費用・月額費用をあわせて確認!この物件に住んだときの費用めやす
めやすを見るこの物件に住んだときの費用めやす
- 初期費用
- 月額費用
- 追加費用※ご確認ください
追加で費用が
かかる場合があります
必ずご確認ください
初期費用めやす約0円
追加で費用がかかります(※)敷金
0
- 礼金
50,000
賃料+共益費・管理費の1ヶ月分として換算
賃料の1ヶ月分+税として換算。不動産会社によって金額が異なるため正確な金額は不動産会社にお問合せください
※追加費用もチェック!
これらの項目以外にも費用がかかる場合があります。正確な金額は不動産会社にお問合せください。
- 初期費用
- 鍵交換費:不動産会社に要確認
- 室内清掃費:33,000円
- 火災保険費:不動産会社に要確認
- 保証会社
- 初回:月額賃料等の100%、更新時:1万円/1年
不動産会社より
藤森駅から徒歩約5分
京阪の藤森駅から徒歩約5分 スーパー・コンビニも駅のすぐ近くにあるので駅からの帰りに買い物し放題です 収納が沢山あるので収納力良好です。京都の賃貸は京都ライフまでお待ちしております。ご質問、ご不明な点等がございましたらお気軽にお電話、メールにてお問い合わせくださいませ。 物件情報はもちろん京都のエリア情報まで幅広く対応させていただきます!
- 保存する
- 共有する
- ※各種情報と現状に差異がある場合は、現状優先となります
- ※不動産会社が入力した情報を基に物件の位置を表示しています。詳しくは不動産会社までお問合せください
- ※不動産会社の方からの上記電話番号によるお問合せはお断りしております。こちら不動産会社詳細からお問合せください
- ※LIFULL HOME'Sは物件鮮度No.1を目指していきます。閲覧中の物件が「成約済である」「実際の物件情報と異なる点がある」などの場合、「掲載110番」からお問合せください
- ※QRコードは株式会社デンソーウェーブの登録商標です
この物件を取扱う他の会社
LIFULL HOME'Sでは、主要項目が同一の物件をまとめて表示しています。所在地や営業時間、掲載画像等から不動産会社を選んでお問合せください。
同じ建物の他の部屋
最近見た賃貸物件
LIFULL HOME'S 地図・周辺情報
買い物
- セブンイレブン 深草直違橋店
- フレスコスマイル 藤森店
- ツルハドラッグ伏見直違橋店
- ファミリーマート 京阪藤森駅前店
- ダイソー京阪藤森駅前店
グルメ
- カフェ・ド・クリエホピタル京都医療センター店
- なか卯 龍大前店
- にぎり長次郎 竹田店
- 和食さと 竹田店
- ケンタッキーフライドチキン カナートモール伏見店
育児・教育
- 認定こども園うづらこども園
- 京都市立深草小学校
- 京都市立藤森中学校
- 青風幼稚園
- 京都市立藤ノ森小学校
医療
- 独立行政法人国立病院機構京都医療センター
- 医療法人清水会京都リハビリテーション病院
- 社会医療法人岡本病院(財団)伏見岡本病院
- 医療法人五木田病院介護医療院
- 医療法人社団育生会京都久野病院
公共施設・郵便局
- 京都藤森郵便局
- 京都市伏見中央図書館
- 京都市伏見区役所深草支所
- 深草郵便局
- 京都市伏見区役所
公園
- 深草西浦南公園
- 竹田公園
- 深草墓園
- 伏見北堀公園
- 伏見桃山城運動公園
利用可能な駅
- 徒歩10分以内
京阪本線
- 藤森駅徒歩6分
- すべての駅
京阪本線
- 墨染駅徒歩11分
- 龍谷大前深草駅徒歩16分
- 丹波橋駅徒歩24分
- 伏見稲荷駅徒歩24分
- 鳥羽街道駅徒歩32分
- 伏見桃山駅徒歩33分
JR奈良線
- JR藤森駅徒歩16分
- 稲荷駅徒歩21分
- 桃山駅徒歩34分
近鉄京都線
- 伏見駅徒歩20分
- 竹田駅徒歩22分
- 近鉄丹波橋駅徒歩26分
- 桃山御陵前駅徒歩32分
- 上鳥羽口駅徒歩34分
- 十条駅3.8km
京都市営烏丸線
- くいな橋駅徒歩27分
- 十条駅3.1km
- 九条駅3.7km
京阪宇治線
- 観月橋駅3.2km
- 桃山南口駅4.2km
- 周辺情報は2023年07月21日時点のものになります。
- 周辺情報は、参考情報としてのみご利用ください(周辺情報は、株式会社LIFULLが地図情報の提供事業者から提供を受けた情報とLIFULL HOME'Sの物件情報に基づき、独自の方法で抽出し提供しているものです。周辺情報は、移転や閉鎖等により情報が最新ではない、または正しくない場合がありますが、地図情報の提供事業者から提供された情報をそのまま周辺情報として表示しているため、正確かつ最新の情報へ修正することができないことがあります。)
- 周辺情報は、株式会社LIFULLが掲載するものであり、不動産物件情報を掲載している不動産会社が掲載するものではありません
- 交通情報の一部については、株式会社LIFULLが掲載するものであり、不動産物件情報を掲載している不動産会社が掲載するものではない場合があります。交通情報に関する質問などは株式会社LIFULLにお問合せください
















































