LIFULL HOME'Sは物件鮮度No.1!※評価について
過去掲載時の参考情報
以下の物件情報は広告情報ではありません。LIFULL HOME'Sが過去に掲載された物件情報を元に作成した参考情報です。
賃貸アパート物件概要
- お問合せ状況
- 現在この物件はお問合せできません
- 交通
- 所在地
兵庫県尼崎市南塚口町5丁目
地図を見る- 築年月
- 2017年12月(築9年)
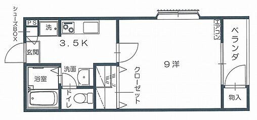
- 間取り
- 1K
- 主要採光面
- 西
- 専有面積
- 23.73㎡
- 所在階/階数
- 2階/3階建
- 建物構造
- 木造
物件のこだわり/設備・条件
新築(非該当)
2階以上の物件(該当)
南向き(非該当)
駐車場(非該当)
オートロック(非該当)
エアコン(該当)
バス・トイレ別(該当)
追焚機能(該当)
フローリング(該当)
ペット相談(非該当)
位置
角部屋キッチン/バス・トイレ
システムキッチン、給湯、専用バス、専用トイレ、バス・トイレ別、追焚機能、シャワー、温水洗浄便座、洗面所独立設備・サービス
TVモニタ付インターホン、エアコン、クローゼット、シューズボックス、プロパンガス、フローリング、バルコニー、室内洗濯機置場、駐輪場ありその他
住まい探し特典あり
物件周辺の生活情報
買い物
- コンビニ(365m)
- スーパー(431m)
- ドラッグストア(366m)
その他施設
- 尼崎北郵便局(144m)
交通
- 阪急神戸本線 塚口駅 徒歩11分
- 普通(停車)
- 準急(停車)
- 通勤急行(停車)
- 急行(停車)
- 通勤特急(停車)
- 特急(通過)
- 準特急(停車)
- JR福知山線 塚口駅 徒歩18分
- 普通(停車)
- 区間快速(停車)
- 快速(停車)
- 丹波路快速(通過)
※急行等の停車駅情報について
急行等の停車駅に関するデータは、随時更新をしておりますが、最新の内容であることを保証するものではありません。
最新かつ正確な情報につきましては、各鉄道会社のウェブサイトにてご確認ください
LIFULL HOME'S 地図・周辺情報
買い物
- セブンイレブン 尼崎南塚口2丁目店
- ロイヤルホームセンター 塚口
- ウエルシア尼崎南塚口店
- ローソン 尼崎南塚口町六丁目店
- ジャパン 塚口店
グルメ
- 餃子の王将 尼崎インター店
- 鎌倉パスタ尼崎名神店
- ビッグボーイ 尼崎名神店
- すき家 南塚口七丁目店
- CoCo壱番屋 尼崎錦橋店
育児・教育
- アマーレ・サン保育園
- 尼崎市立名和小学校
- 私立園田学園中学校
- 塚口オリーブ保育園
- 尼崎市立上坂部小学校
医療
- 医療法人社団兼誠会つかぐち病院
- 池田病院
- 医療法人社団斐庵会鷲田病院
- 兵庫県立尼崎総合医療センター
- 医療法人尼崎厚生会立花病院
公共施設・郵便局
- 尼崎北郵便局
- 尼崎市立北図書館
- 尼崎北警察署
- 尼崎南塚口郵便局
- 伊丹市立図書館南分館
公園
- 尾浜公園
- 上坂部西公園
- 塚口墓前公園
- 椀田公園
- 芦原公園
利用可能な駅
- すべての駅
阪急神戸本線
- 塚口駅徒歩11分
- 武庫之荘駅徒歩33分
- 園田駅3.7km
JR福知山線
- 塚口駅徒歩18分
- 猪名寺駅徒歩34分
JR東海道・山陽本線
- 立花駅徒歩31分
- 尼崎駅徒歩36分
阪急伊丹線
- 稲野駅徒歩31分
- 新伊丹駅3.3km
- 周辺情報は2023年07月21日時点のものになります。
- 周辺情報は、参考情報としてのみご利用ください(周辺情報は、株式会社LIFULLが地図情報の提供事業者から提供を受けた情報とLIFULL HOME'Sの物件情報に基づき、独自の方法で抽出し提供しているものです。周辺情報は、移転や閉鎖等により情報が最新ではない、または正しくない場合がありますが、地図情報の提供事業者から提供された情報をそのまま周辺情報として表示しているため、正確かつ最新の情報へ修正することができないことがあります。)
- 周辺情報は、株式会社LIFULLが掲載するものであり、不動産物件情報を掲載している不動産会社が掲載するものではありません
- 交通情報の一部については、株式会社LIFULLが掲載するものであり、不動産物件情報を掲載している不動産会社が掲載するものではない場合があります。交通情報に関する質問などは株式会社LIFULLにお問合せください













































