LIFULL HOME'Sは物件鮮度No.1!※評価について
弥栄マンション 2階/1-10
3.7万円/管理費等-
23時間前 更新
画像一覧
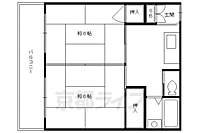
1/30間取り
間取
2/30外観
3/30外観
4/30外観
5/30外観
6/30外観
7/30外観
8/30外観
9/30エントランス
10/30エントランス
11/30エントランス
12/30エントランス
13/30エントランス
14/30駐車場
15/30その他
16/30その他
17/30その他
18/30その他
19/30その他
20/30その他
21/30その他
22/30その他
23/30その他
24/30その他
25/30その他
26/30周辺
27/30周辺
28/30周辺
花園大学まで1295m
29/30周辺
立命館大学(衣笠)まで2370m
30/30周辺
嵯峨美術大学まで2770m
間取り
外観
外観
外観
外観
外観
外観
外観
エントランス
エントランス
エントランス
エントランス
エントランス
駐車場
その他
その他
その他
その他
その他
その他
その他
その他
その他
その他
その他
周辺
周辺
周辺
周辺
周辺
LINEチャットでも 相談できます
お問合せ先 :株式会社京都ライフ 桂店
仲介手数料割引
仲介手数料が家賃の半月分(税別)です。
- 利用条件
- 株式会社京都ライフ 桂店で利用可
- 他特典との併用可
- ・法人契約、事業用物件は除く。 ・積水ハウス、大東建託の管理物件は除く。
利用方法
来店時に本特典の画面をスマートフォンやタブレットでスタッフに提示、または画面印刷した用紙を提示ください。
有効期限 2026年06月30日まで
昔ながらの賃貸 どこか懐かしさを感じる間取りです。
物件のこだわり/設備・条件
新築(非該当)
2階以上の物件(該当)
南向き(非該当)
駐車場(非該当)
オートロック(非該当)
エアコン(非該当)
バス・トイレ別(該当)
追焚機能(非該当)
フローリング(該当)
ペット相談(非該当)
入居条件
二人入居可、高齢者歓迎キッチン/バス・トイレ
給湯、専用バス、専用トイレ、バス・トイレ別、シャワー、洗面所独立設備・サービス
公営水道、都市ガス、下水、フローリング、バルコニー、バイク置き場あり、駐輪場ありその他
住まい探し特典あり備考
このお家賃でお部屋が2つ以上あるのは嬉しい限りですね。京都のお部屋探しは京都ライフまで。お問い合わせお待ちしております。 物件情報はもちろん京都のエリア情報まで幅広く対応させていただきます!
物件周辺の生活情報
交通
- 京福電気鉄道北野線 常盤駅 徒歩3分
- 普通(停車)
- JR山陰本線 花園駅 徒歩8分
- 普通(停車)
- 快速とっとりライナー(通過)
- 快速通勤ライナー(通過)
- 快速(通過)
※急行等の停車駅情報について
急行等の停車駅に関するデータは、随時更新をしておりますが、最新の内容であることを保証するものではありません。
最新かつ正確な情報につきましては、各鉄道会社のウェブサイトにてご確認ください
物件周辺の口コミ
- 京都府京都市中京区西ノ京馬代町に住む人の口コミ60代男性
普段の買い物や移動に困ることが少なく、公共施設や商業施設が比較的充実している
口コミを見る
この物件周辺に住む人の口コミ
口コミは、LIFULL HOME'Sが実際にこの物件の周辺に住む18歳~69歳の男女を対象に、WEBアンケート調査を実施しています。内容には回答者の主観的な表現が含まれる場合があるほか、事実と異なる場合もございます。ご了承ください。
- 京都府京都市中京区西ノ京馬代町に住む人の口コミ60代男性
- 普段の買い物や移動に困ることが少なく、公共施設や商業施設が比較的充実している
- 京都府京都市右京区常盤古御所町に住む人の口コミ40代女性
- 割と静かな住宅街。近くに川もあり、丘もあり、鳥の鳴き声で癒されることもある、カラスが多いのは欠点。川の向こう道に行くと大通りで、バス停もあり、交通にも便利。
- 京都府京都市右京区常盤音戸町に住む人の口コミ60代男性
- 治安が良く、便利な割に生活音もうるさくない。交通の良さ、買い物の利便性、自然などがそろっている。
- 京都府京都市右京区太秦安井小山町に住む人の口コミ50代男性
- 最近の海外からの旅行者が多いからか、バスが混雑する事がある。
- 京都府京都市右京区山越中町に住む人の口コミ30代女性
- 子どもと一緒に季節の移り変わりを身近に感じながら過ごすことができるから。
- 京都府京都市右京区太秦多藪町に住む人の口コミ30代女性
- 近くに小中学校があるので、ファミリー世帯は住みやすい環境にあると思う
- 京都府京都市右京区常盤北裏町に住む人の口コミ50代男性
- 全体的には高齢者が多いが世代交代が進んでおり、子供にも優しい町。地元の小学校は中高一貫校への進学者を毎年輩出しており家計に優しい町です
- 京都府京都市右京区太秦多藪町に住む人の口コミ50代女性
- 長年住んでるし治安が良いので。道路は狭く段差が多いので、高齢になると住みにくくなる可能性あり。
- 京都府京都市右京区太秦京ノ道町に住む人の口コミ50代女性
- 交通機関が複数使える。街全体が落ち着いている。日常生活に必要なものは揃っている。
- 京都府京都市右京区梅津坂本町に住む人の口コミ40代男性
- 幹線道路から少し離れているので静か。子供を安心して外で遊べる。
物件概要
- 建物構造
- 木造
- 駐車場
- 無
- 総戸数
- 20戸
- 契約形態
- -
- 契約期間
- 1年間
- 更新料
- 50,000円
- その他費用
- -
- 保証会社
- -
- 住宅保険
- 要
- 管理
- 管理員:巡回
- LIFULL HOME'S
物件番号 - 0110342-0219130
- 自社管理番号
- 00920-1-10-06
- 取引態様
- 仲介
- 会社名
- 株式会社京都ライフ 桂店
営業スタッフコメント

株式会社京都ライフ 桂店営業
高木晨矢
笑いあり、感動ありのお部屋探しをお手伝いさせて頂きます。
業界経験6年
資格少額短期保険募集人
- スタッフ情報
- 創業40年の長い年月の中で蓄積された情報と交渉力をお客様にお届け。自信を持って物件のご紹介をさせて頂きます。お部屋探しは京都ライフまで。お問い合わせお待ちしております。
創業40年の長い年月の中で蓄積された情報と交渉力をお客様にお届け。自信を持って物件のご紹介をさせて頂きます。お部屋探しは京都ライフまで。お問い合わせお待ちしております。
- 電話でお問合せ(通話無料)
お問合せ先 :株式会社京都ライフ 桂店
不動産会社情報
桂エリアのお部屋探しは京都ライフ桂店へどうぞ。単身用〜新婚・ファミリー物件まで経験豊富なスタッフが全力でサポート!京大・経短大の新入生の皆様、初めてのシングルライフ!京都ライフへおまかせ下さい!
- 店舗の特徴
- 24時間管理物件取扱い
- 引越し業者紹介可
- 年中無休
- 駐車場あり
- 系列店舗での対応可
- オンライン相談可
- 保証人不要な物件あり
- 法人契約取扱い
- 女性スタッフ対応可
- 駅から歩いて3分以内
電話でお問合せお客様の電話番号は不動産会社には通知されません
- 不動産会社に
つながります
お客様の電話番号は不動産会社に通知されません
- ※光IP電話、及びIP電話からはご利用になれません
- ※お電話によるお問合せは、店舗営業時間内にお願いします。つながらない場合は、お問合せフォームよりお問合せください
- ※不動産会社がお電話に出られなかった場合、お問合せいただいた後に不動産会社より折り返しのお電話がある場合がございます(お客様が非通知設定した場合は対象外です)
- ※株式会社LIFULLは電話会社が提供するサービスを介してお客様の発信者番号を受領後、折り返し専用の電話番号を発番してお問合せの不動産会社に通知します(お客様の発信者番号がお問合せの不動産会社に通知されることはございません)
- ※携帯電話からお問合せいただいた方に対し、株式会社LIFULLは電話会社が提供するメッセ―ジサービスを介してお客様の発信者番号を受領後、ショートメッセージ(SMS)またはLINE通知メッセージによるお問合せ内容に関する通知をお届けする場合があります
- ※お客様が通話中に不動産会社にお伝えになったお客様の個人情報及び、電話会社が発番する折り返し専用の電話番号は、お問合せ先不動産会社が資料送付・電子メール送信・電話連絡などの目的で保管する可能性があります。お問合せ先不動産会社が保管する個人情報の取扱いについては、各不動産会社に直接お問合せください
- ※株式会社LIFULLでは本サービスを円滑に運用するために、お客様の発信者番号をサービスご利用の控えとして一定期間保管いたします
- ※上記および株式会社LIFULLの個人情報の取扱い方針に同意のうえ、お電話ください
【LIFULL HOME'S物件番号】0110342-0219130【自社管理番号】00920-1-10-06
オンライン対応
オンライン相談に対応している物件です

「オンライン内見」「オンライン相談」「IT重説」とは?
物件の内見や不動産会社スタッフとの相談、契約前の重要事項説明をオンライン(ビデオ通話)で行うことができるサービスです。
オンライン内見
ビデオ通話で現地(物件)にいる不動産会社スタッフと映像・音声を使ってリアルタイムで会話しながら内見ができます。
オンライン相談
「物件について聞きたいことがある」など不動産会社スタッフへの相談もビデオ通話で行うことができます。
IT重説
契約前の重要事項説明(重説)をビデオ通話で行うことができます。
利用時の注意事項
- ビデオ通話については各不動産会社指定のものとなります。
- ビデオ通話利用時には通信が発生します。従量課金制通信サービスや通信量に上限があるネット回線・プランを利用する場合は、通信量にご注意ください。
- 通信速度やアプリの設定によってはビデオ通話の画質が低下することがあります。安定した画質で利用するためにも、Wi-Fi環境下での利用を推奨します。
- ご利用のビデオ通話アプリによっては、対象のOSやブラウザに制限がある場合があります。詳しくはお問合せ先不動産会社にご確認ください。
初期費用・月額費用をあわせて確認!この物件に住んだときの費用めやす
めやすを見るこの物件に住んだときの費用めやす
- 初期費用
- 月額費用
- 追加費用※ご確認ください
追加で費用が
かかる場合があります
必ずご確認ください
初期費用めやす約0円
追加で費用がかかります(※)敷金
50,000
- 礼金
100,000
賃料+共益費・管理費の1ヶ月分として換算
賃料の1ヶ月分+税として換算。不動産会社によって金額が異なるため正確な金額は不動産会社にお問合せください
※追加費用もチェック!
これらの項目以外にも費用がかかる場合があります。正確な金額は不動産会社にお問合せください。
- 初期費用
- 鍵交換費:不動産会社に要確認
- 室内清掃費:不動産会社に要確認
- 火災保険費:不動産会社に要確認
- 保証会社
- 不動産会社に要確認
不動産会社より
昔ながらの賃貸 どこか懐かしさを感じる間取りです。
このお家賃でお部屋が2つ以上あるのは嬉しい限りですね。京都のお部屋探しは京都ライフまで。お問い合わせお待ちしております。 物件情報はもちろん京都のエリア情報まで幅広く対応させていただきます!
- 保存する
- 共有する
- ※各種情報と現状に差異がある場合は、現状優先となります
- ※不動産会社が入力した情報を基に物件の位置を表示しています。詳しくは不動産会社までお問合せください
- ※不動産会社の方からの上記電話番号によるお問合せはお断りしております。こちら不動産会社詳細からお問合せください
- ※LIFULL HOME'Sは物件鮮度No.1を目指していきます。閲覧中の物件が「成約済である」「実際の物件情報と異なる点がある」などの場合、「掲載110番」からお問合せください
- ※QRコードは株式会社デンソーウェーブの登録商標です
したい暮らしのタグから探す
この物件を取扱う他の会社
LIFULL HOME'Sでは、主要項目が同一の物件をまとめて表示しています。所在地や営業時間、掲載画像等から不動産会社を選んでお問合せください。
株式会社京都ライフ 立命館大学前店
優良店認定
京都府京都市北区小松原北町26-5
京福電気鉄道北野線 等持院・立命館大学衣笠キャンパス前駅 徒歩8分
- 営業時間
- 09:30~19:00
- 定休日
- 水曜定休(4/21〜9/20の期間)、盆・正月
株式会社京都ライフ 二条駅前店
京都府京都市中京区西ノ京職司町72 ウエストフィールド1階
京都地下鉄東西線 二条駅 徒歩3分
- 営業時間
- 09:30~19:00
- 定休日
- 年中無休(盆正月を除く)
株式会社京都ライフ 三条烏丸店
優良店認定
京都府京都市中京区三条通烏丸東入梅忠町24 三条COHJUBLDG 1階
京都市営烏丸線 烏丸御池駅 徒歩3分
- 営業時間
- 09:30~19:00
- 定休日
- 年中無休(夏期・年末年始を除く)
同じ建物の他の部屋
最近見た賃貸物件
LIFULL HOME'S 地図・周辺情報
買い物
- セブンイレブン 京都双ヶ丘店
- スーパーマツモト 新丸太町店
- ダックス右京太秦店
- セブンイレブン 京都常盤店
- 業務スーパー 太秦店
グルメ
- すき家 京都太秦店
- 和食さと 双ヶ丘店
- ガスト 京都常盤店(から好し取扱店)
- マクドナルド 太秦ライフ店
- 天下一品太秦店
育児・教育
- 幼稚園型認定こども園太秦幼稚園
- 京都市立太秦小学校
- 京都市立双ケ丘中学校
- 夢窓幼稚園
- 京都市立常磐野小学校
医療
- 医療法人新生十全会京都ならびがおか病院
- (財)泉谷病院
- 医療法人河端病院
- 社会医療法人太秦病院
- 公益社団法人京都保健会京都民医連中央病院
公共施設・郵便局
- 京都太秦一ノ井郵便局
- 京都市右京中央図書館
- 右京警察署
- 京都常盤郵便局
- 京都市中央図書館
公園
- 土堂公園
- 広沢池公園
- 西院公園
- 東大丸公園
利用可能な駅
- 徒歩10分以内
京福電気鉄道北野線
- 常盤駅徒歩3分
JR山陰本線
- 花園駅徒歩8分
京福電気鉄道嵐山本線
- 太秦広隆寺駅徒歩10分
- すべての駅
京福電気鉄道北野線
- 撮影所前駅徒歩12分
- 鳴滝駅徒歩13分
- 宇多野駅徒歩18分
- 御室仁和寺駅徒歩18分
- 妙心寺駅徒歩21分
- 龍安寺駅徒歩26分
- 等持院・立命館大学衣笠キャンパス前駅徒歩28分
- 北野白梅町駅徒歩35分
京福電気鉄道嵐山本線
- 蚕ノ社駅徒歩14分
- 帷子ノ辻駅徒歩16分
- 嵐電天神川駅徒歩17分
- 有栖川駅徒歩23分
- 山ノ内駅徒歩26分
- 車折神社駅徒歩30分
- 鹿王院駅徒歩33分
- 西大路三条駅徒歩36分
- 嵐電嵯峨駅3.2km
- 西院駅3.6km
JR山陰本線
- 太秦駅徒歩14分
- 円町駅徒歩25分
- 嵯峨嵐山駅徒歩36分
京都地下鉄東西線
- 太秦天神川駅徒歩17分
- 西大路御池駅徒歩33分
嵯峨野観光鉄道
- トロッコ嵯峨駅徒歩37分
阪急京都本線
- 西院駅3.4km
阪急嵐山線
- 松尾大社駅3.8km
- 嵐山駅4.1km
- 周辺情報は2023年07月21日時点のものになります。
- 周辺情報は、参考情報としてのみご利用ください(周辺情報は、株式会社LIFULLが地図情報の提供事業者から提供を受けた情報とLIFULL HOME'Sの物件情報に基づき、独自の方法で抽出し提供しているものです。周辺情報は、移転や閉鎖等により情報が最新ではない、または正しくない場合がありますが、地図情報の提供事業者から提供された情報をそのまま周辺情報として表示しているため、正確かつ最新の情報へ修正することができないことがあります。)
- 周辺情報は、株式会社LIFULLが掲載するものであり、不動産物件情報を掲載している不動産会社が掲載するものではありません
- 交通情報の一部については、株式会社LIFULLが掲載するものであり、不動産物件情報を掲載している不動産会社が掲載するものではない場合があります。交通情報に関する質問などは株式会社LIFULLにお問合せください













































