LIFULL HOME'Sは物件鮮度No.1!※評価について
パークヒルズ三部 1階/103
11.3万円/管理費等5,000円
8時間前 更新
画像一覧
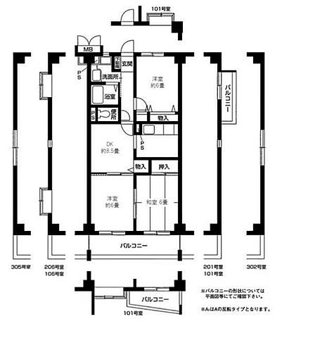
1/29間取り
間取図
2/29外観
3/29外観
4/29外観
5/29リビング/ダイニング
6/29リビング/ダイニング
7/29室内
8/29室内
9/29室内
10/29キッチン
11/29キッチン
12/29浴室
13/29トイレ
14/29洗面
15/29収納
16/29玄関
17/29バルコニー
18/29エントランス
19/29駐車場
20/29その他
21/29その他
22/29その他
23/29その他
24/29周辺
まいばすけっとしらとり台店 656m
25/29周辺
ローソン青葉さつきが丘店 462m
26/29周辺
セブンイレブン横浜田奈駅東店 842m
27/29周辺
Fit Care DEPOTしらとり台店 376m
28/29周辺
ジョナサン青葉台店 964m
29/29周辺
しらとり台保育園さつきが丘 807m
間取り
外観
外観
外観
リビング/ダイニング
リビング/ダイニング
室内
室内
室内
キッチン
キッチン
浴室
トイレ
洗面
収納
玄関
バルコニー
エントランス
駐車場
その他
その他
その他
その他
周辺
周辺
周辺
周辺
周辺
周辺
お問合せ先 :株式会社タウンハウジング神奈川 センター南店
住まい探し特典内容
仲介手数料が50%OFF〜最大100%OFFタウン引っ越しサービスが10%OFF
- 利用条件
- 株式会社タウンハウジング神奈川 センター南店で利用可
- 他特典との併用はできませんので、ご注意ください。
- 当社を過去にご利用いただいたお客様限定 詳細は担当にお尋ねください。
利用方法
来店時に本特典の画面をスマートフォンやタブレットでスタッフに提示、または画面印刷した用紙を提示ください。
有効期限 なし
★最新の空室状況やご内覧はタウンハウジングまで★
物件のこだわり/設備・条件
新築(非該当)
2階以上の物件(非該当)
南向き(該当)
駐車場(非該当)
オートロック(非該当)
エアコン(非該当)
バス・トイレ別(該当)
追焚機能(該当)
フローリング(非該当)
ペット相談(非該当)
位置
角部屋入居条件
楽器不可、二人入居可、保証人不要キッチン/バス・トイレ
設備・サービス
クローゼット、シューズボックス、CATV、光ファイバー、公営水道、都市ガス、バルコニー、室内洗濯機置場、南面バルコニー、タイル貼り、駐輪場ありその他
住まい探し特典あり備考
37 ★ブルーライン・グリーンライン・田園都市線はタウンハウジングお任せくださいませ★港北ニュータウンは公園など緑が多くファミリー層の方はもちろん、落ち着きのある街に住みたいカップルの方・単身の方にもピッタリです★女性のスタッフでのご対応も可能です★★当社の物件でなくてもOK★比較検討しピッタリのお部屋をみつけましょう★ご相談おまちしております★
物件周辺の生活情報
買い物
- コンビニ(462m)
- スーパー(656m)
- ドラッグストア(376m)
その他施設
- ジョナサン青葉台店(964m)
交通
- 東急田園都市線 田奈駅 徒歩13分
- 普通(停車)
- 準急(通過)
- 急行(通過)
- JR横浜線 十日市場駅 徒歩15分
- 普通(停車)
- 快速(通過)
※急行等の停車駅情報について
急行等の停車駅に関するデータは、随時更新をしておりますが、最新の内容であることを保証するものではありません。
最新かつ正確な情報につきましては、各鉄道会社のウェブサイトにてご確認ください
物件周辺の口コミ
- 神奈川県横浜市青葉区しらとり台に住む人の口コミ30代女性
食品や日用品や衣料品や本も徒歩圏内で買い物ができるので生活で困ることはありません。少し歩くと畑があり自然と街のバランスが良いのでどちらかといえば満足してます。
口コミを見る
この物件周辺に住む人の口コミ
口コミは、LIFULL HOME'Sが実際にこの物件の周辺に住む18歳~69歳の男女を対象に、WEBアンケート調査を実施しています。内容には回答者の主観的な表現が含まれる場合があるほか、事実と異なる場合もございます。ご了承ください。
- 神奈川県横浜市青葉区しらとり台に住む人の口コミ30代女性
- 食品や日用品や衣料品や本も徒歩圏内で買い物ができるので生活で困ることはありません。少し歩くと畑があり自然と街のバランスが良いのでどちらかといえば満足してます。
- 神奈川県横浜市青葉区しらとり台に住む人の口コミ50代女性
- とてもおしゃれではない、たまプラーザみたいに気取ってないところが程よくていい。高齢者も多いが、若い世代もいて、多世代の人たちが多く住む街。活気があっていい街である
- 神奈川県横浜市青葉区しらとり台に住む人の口コミ50代女性
- 生まれる前から住んでいる地域で、他の地域に住んだことがないので比較対象がない
- 神奈川県横浜市青葉区しらとり台に住む人の口コミ40代女性
- 坂が多いが自宅からバス停や2路線使え、高速道路も近いので交通の便は良い。スーパーやディスカウントストアやドラッグストアや飲食店があるので生活をするのに不便がないので満足。
- 神奈川県横浜市青葉区しらとり台に住む人の口コミ50代女性
- 生まれる前から住んでいます。終電で帰宅しても女性一人で歩いていても安全なこ元気に走り回っている子供が意外と多いこと。都心に出るだけでなく、新幹線や飛行機に乗るにも時間的ストレスなく行ける事。
- 神奈川県横浜市青葉区しらとり台に住む人の口コミ50代女性
- 街が、ゴミも少なくきれい。子どもが、遊びにはまってしまうような、お店がないので、安心して外に出せます。
- 神奈川県横浜市青葉区しらとり台に住む人の口コミ40代男性
- 住むには便利だが人が多いので、もう少し静かな環境がベスト。また、電車が混むので通勤に疲れる。
- 神奈川県横浜市青葉区しらとり台に住む人の口コミ40代男性
- 住宅環境、交通、買い物など不自由しない。大型ショッピングセンターが近くにあればなお良い。
- 神奈川県横浜市青葉区しらとり台に住む人の口コミ50代女性
- 人間関係もよくて、子どもからお年寄りまで多くの人であふれているから
- 神奈川県横浜市青葉区しらとり台に住む人の口コミ60代女性
- 食品スーパーが近くに数点あるし、バスの数も多いし、開業医も内科だけでなく他の科もそろっているし、JRと東急の2線を利用できるし、常識的な人の方が多いから。
物件概要
- 建物構造
- RC(鉄筋コンクリート)
- 駐車場
- 近隣 15,000円(税込) 物件からの距離200m
- 総戸数
- -
- 契約形態
- -
- 契約期間
- 2年間
- 更新料
- 新賃料の1ヶ月分
- その他費用
- -
- 保証会社
加入要
保証会社:その他
保証会社利用料:0.45ヶ月 エルズサポート株式会社(1)分割プラン、初回4%、毎月2%(2)2年毎プラン、初回45%、2年毎2.5万円(3)一括プラン70%、お選びいただけます。(1)(2)(3)毎月決済手数料…
- 住宅保険
- 要
- 管理
- -
- LIFULL HOME'S
物件番号 - 0125242-0108745
- 自社管理番号
- R00248-111427
- 取引態様
- 仲介
- 会社名
- 株式会社タウンハウジング神奈川 センター南店
営業スタッフコメント

株式会社タウンハウジング神奈川 センター南店主任
會津健太
納得いくお部屋探しのお手伝いをさせていただきます。
業界経験5年
資格少額短期保険募集人、損害保険募集人
- 会社実績や特徴・サービス情報
- 閲覧いただき誠にありがとうございます。 弊社では直営店136店舗以上の広い情報網と地域密着型店舗の細かいエリア情報を活かして、お客様のニーズに合うお部屋のご提案をさせていただいております。 地域ナンバー1情報量の当店へ是非一度ご来店下さい。 スタッフ一同心よりお待ち申し上げます。
閲覧いただき誠にありがとうございます。 弊社では直営店136店舗以上の広い情報網と地域密着型店舗の細かいエリア情報を活かして、お客様のニーズに合うお部屋のご提案をさせていただいております。 地域ナンバー1情報量の当店へ是非一度ご来店下さい。 スタッフ一同心よりお待ち申し上げます。
- 電話でお問合せ(通話無料)
お問合せ先 :株式会社タウンハウジング神奈川 センター南店
不動産会社情報
株式会社タウンハウジング神奈川 センター南店

神奈川県横浜市都筑区茅ケ崎中央20-14 松本ビルB館101号室
横浜市営地下鉄ブルーライン センター南駅 徒歩3分
- 営業時間
- 10:00~19:00
- 定休日
- 水曜日(1月〜3月までは無休)
優良店認定
港北ニュータウンのお部屋探し(賃貸・売買)のお客様、物件お持ちのオーナー様もお気軽にご相談くださいませ!
- 店舗の特徴
- 賃貸管理業務
- 24時間管理物件取扱い
- リフォーム対応
- 引越し業者紹介可
- オンライン相談可
- 保証人不要な物件あり
- 法人契約取扱い
- 女性スタッフ対応可
- 駅から歩いて3分以内
電話でお問合せお客様の電話番号は不動産会社には通知されません
- 不動産会社に
つながります
お客様の電話番号は不動産会社に通知されません
- ※光IP電話、及びIP電話からはご利用になれません
- ※お電話によるお問合せは、店舗営業時間内にお願いします。つながらない場合は、お問合せフォームよりお問合せください
- ※不動産会社がお電話に出られなかった場合、お問合せいただいた後に不動産会社より折り返しのお電話がある場合がございます(お客様が非通知設定した場合は対象外です)
- ※株式会社LIFULLは電話会社が提供するサービスを介してお客様の発信者番号を受領後、折り返し専用の電話番号を発番してお問合せの不動産会社に通知します(お客様の発信者番号がお問合せの不動産会社に通知されることはございません)
- ※携帯電話からお問合せいただいた方に対し、株式会社LIFULLは電話会社が提供するメッセ―ジサービスを介してお客様の発信者番号を受領後、ショートメッセージ(SMS)またはLINE通知メッセージによるお問合せ内容に関する通知をお届けする場合があります
- ※お客様が通話中に不動産会社にお伝えになったお客様の個人情報及び、電話会社が発番する折り返し専用の電話番号は、お問合せ先不動産会社が資料送付・電子メール送信・電話連絡などの目的で保管する可能性があります。お問合せ先不動産会社が保管する個人情報の取扱いについては、各不動産会社に直接お問合せください
- ※株式会社LIFULLでは本サービスを円滑に運用するために、お客様の発信者番号をサービスご利用の控えとして一定期間保管いたします
- ※上記および株式会社LIFULLの個人情報の取扱い方針に同意のうえ、お電話ください
【LIFULL HOME'S物件番号】0125242-0108745【自社管理番号】R00248-111427
オンライン対応
オンライン内見・オンライン相談・IT重説に対応している物件です

「オンライン内見」「オンライン相談」「IT重説」とは?
物件の内見や不動産会社スタッフとの相談、契約前の重要事項説明をオンライン(ビデオ通話)で行うことができるサービスです。
オンライン内見
ビデオ通話で現地(物件)にいる不動産会社スタッフと映像・音声を使ってリアルタイムで会話しながら内見ができます。
オンライン相談
「物件について聞きたいことがある」など不動産会社スタッフへの相談もビデオ通話で行うことができます。
IT重説
契約前の重要事項説明(重説)をビデオ通話で行うことができます。
利用時の注意事項
- ビデオ通話については各不動産会社指定のものとなります。
- ビデオ通話利用時には通信が発生します。従量課金制通信サービスや通信量に上限があるネット回線・プランを利用する場合は、通信量にご注意ください。
- 通信速度やアプリの設定によってはビデオ通話の画質が低下することがあります。安定した画質で利用するためにも、Wi-Fi環境下での利用を推奨します。
- ご利用のビデオ通話アプリによっては、対象のOSやブラウザに制限がある場合があります。詳しくはお問合せ先不動産会社にご確認ください。
初期費用・月額費用をあわせて確認!この物件に住んだときの費用めやす
めやすを見るこの物件に住んだときの費用めやす
- 初期費用
- 月額費用
- 追加費用※ご確認ください
追加で費用が
かかる場合があります
必ずご確認ください
初期費用めやす約0円
追加で費用がかかります(※)敷金
0
- 礼金
0
賃料+共益費・管理費の1ヶ月分として換算
賃料の1ヶ月分+税として換算。不動産会社によって金額が異なるため正確な金額は不動産会社にお問合せください
※追加費用もチェック!
これらの項目以外にも費用がかかる場合があります。正確な金額は不動産会社にお問合せください。
- 初期費用
- 鍵交換費:不動産会社に要確認
- 室内清掃費:不動産会社に要確認
- 火災保険費:不動産会社に要確認
- 月額費用
- 駐車場費:15,000円(税込)※近隣
- 保証会社
- 0.45ヶ月 エルズサポート株式会社(1)分割プラン、初回4%、毎月2%(2)2年毎プラン、初回45%、2年毎2.5万円(3)一括プラン70%、お選びいただけます。(1)(2)(3)毎月決済手数料…
不動産会社より
★最新の空室状況やご内覧はタウンハウジングまで★
37 ★ブルーライン・グリーンライン・田園都市線はタウンハウジングお任せくださいませ★港北ニュータウンは公園など緑が多くファミリー層の方はもちろん、落ち着きのある街に住みたいカップルの方・単身の方にもピッタリです★女性のスタッフでのご対応も可能です★★当社の物件でなくてもOK★比較検討しピッタリのお部屋をみつけましょう★ご相談おまちしております★
- 保存する
- 共有する
- ※各種情報と現状に差異がある場合は、現状優先となります
- ※不動産会社が入力した情報を基に物件の位置を表示しています。詳しくは不動産会社までお問合せください
- ※不動産会社の方からの上記電話番号によるお問合せはお断りしております。こちら不動産会社詳細からお問合せください
- ※LIFULL HOME'Sは物件鮮度No.1を目指していきます。閲覧中の物件が「成約済である」「実際の物件情報と異なる点がある」などの場合、「掲載110番」からお問合せください
- ※QRコードは株式会社デンソーウェーブの登録商標です
この物件を取扱う他の会社
LIFULL HOME'Sでは、主要項目が同一の物件をまとめて表示しています。所在地や営業時間、掲載画像等から不動産会社を選んでお問合せください。
LIFULL HOME'S 地図・周辺情報
買い物
- ローソン 青葉さつきが丘店
- ライフ 青葉しらとり台店
- Fit Care DEPOTしらとり台店
- セブンイレブン 横浜しらとり台店
- MEGAドン・キホーテ 青葉台店
グルメ
- ジョリーパスタ 青葉台店
- 銀だこ 東急スクエア青葉台店
- スターバックスコーヒー青葉台東急スクエア店
- マクドナルド 十日市場店
- なか卯 十日市場店
育児・教育
- しらとり台保育園つつじが丘
- 横浜市立さつきが丘小学校
- 横浜市立谷本中学校
- しらとり台保育園
- 横浜市立つつじが丘小学校
医療
- 医療法人社団三喜会横浜新緑総合病院
- 昭和大学藤が丘リハビリテーション病院
- 医療法人フロンティアあおばウィメンズホスピタル
- 昭和大学藤が丘病院
- 一般社団法人日本厚生団長津田厚生総合病院
公共施設・郵便局
- 横浜しらとり台郵便局
- 横浜市緑図書館
- 青葉警察署
- 青葉台駅前郵便局
- 横浜市青葉区役所
公園
- 藤が丘公園
- もえぎ野公園
- 桜台公園
- 新治里山公園
- 北八朔公園
利用可能な駅
- すべての駅
東急田園都市線
- 田奈駅徒歩13分
- 青葉台駅徒歩15分
- 藤が丘駅徒歩24分
- つくし野駅3.2km
JR横浜線
- 十日市場駅徒歩15分
- 長津田駅徒歩28分
東急こどもの国線
- 恩田駅徒歩37分
- 周辺情報は2023年07月21日時点のものになります。
- 周辺情報は、参考情報としてのみご利用ください(周辺情報は、株式会社LIFULLが地図情報の提供事業者から提供を受けた情報とLIFULL HOME'Sの物件情報に基づき、独自の方法で抽出し提供しているものです。周辺情報は、移転や閉鎖等により情報が最新ではない、または正しくない場合がありますが、地図情報の提供事業者から提供された情報をそのまま周辺情報として表示しているため、正確かつ最新の情報へ修正することができないことがあります。)
- 周辺情報は、株式会社LIFULLが掲載するものであり、不動産物件情報を掲載している不動産会社が掲載するものではありません
- 交通情報の一部については、株式会社LIFULLが掲載するものであり、不動産物件情報を掲載している不動産会社が掲載するものではない場合があります。交通情報に関する質問などは株式会社LIFULLにお問合せください










