LIFULL HOME'Sは物件鮮度No.1!※評価について
ロイヤル室町(3階/303/2LDK/62.15m²)
ロイヤル室町(3階/303/2LDK/62.15m²)
11万円/管理費等10,000円
4時間前 更新
画像一覧
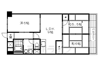
1/30間取り
間取
2/30外観
3/30外観
4/30リビング/ダイニング
5/30リビング/ダイニング
6/30リビング/ダイニング
7/30リビング/ダイニング
8/30室内
9/30室内
10/30室内
11/30キッチン
12/30キッチン
13/30キッチン
14/30浴室
15/30浴室
16/30トイレ
17/30洗面
18/30収納
19/30収納
20/30収納
21/30収納
22/30設備
23/30設備
24/30設備
25/30設備
26/30玄関
27/30バルコニー
28/30その他
29/30その他
30/30周辺
ローソン五条若宮店まで220m
間取り
外観
外観
リビング/ダイニング
リビング/ダイニング
リビング/ダイニング
リビング/ダイニング
室内
室内
室内
キッチン
キッチン
キッチン
浴室
浴室
トイレ
洗面
収納
収納
収納
収納
設備
設備
設備
設備
玄関
バルコニー
その他
その他
周辺
1〜4月は引越しシーズンのピークです。お問合せはお早めに!
仲介手数料割引
仲介手数料:家賃50%(税別)でご紹介可能です。
- 利用条件
- ウインズリンク株式会社 アパマンショップ河原町三条店で利用可
- 他特典との併用可
- 法人契約・事業用物件は対象外になります。
利用方法
来店時に本特典の画面をスマートフォンやタブレットでスタッフに提示、または画面印刷した用紙を提示ください。
有効期限 なし
地下鉄五条駅徒歩2分 洛央小学校区のファミリーマンション。阪急電車もご利用可能
基本情報
不動産用語- 賃料
- 11万円
- 管理費等
- 10,000円
初期費用などお気軽にお問合せください
- 敷金/礼金
- 11万円/22万円
- 保証金/敷引・償却金
- -/-
- 交通
京都市営烏丸線 五条駅 徒歩2分
京都市営烏丸線 四条駅 徒歩10分
- 所在地
京都府京都市下京区室町通五条上ル坂東屋町
地図を見る- 築年月
- 1984年5月(築42年)
- 主要採光面
- 南
- 専有面積
- 62.15㎡
- バルコニー面積
- -
- 所在階/階数
- 3階/6階建
- 現況
- 空家
- 入居可能時期
- 即時

人気物件はすぐに埋まってしまいます。
気になったらお早めにお問合せください。
- 情報公開日
2026/03/19
2日前 公開
- 情報更新日
2026/03/21
4時間前 更新
- 次回更新
予定日 - 2026/04/03
物件のこだわり/設備・条件
新築(非該当)
2階以上の物件(該当)
南向き(該当)
駐車場(非該当)
オートロック(非該当)
エアコン(該当)
バス・トイレ別(該当)
追焚機能(非該当)
フローリング(該当)
ペット相談(非該当)
入居条件
事務所可(SOHO向け)、二人入居可、即入居可キッチン/バス・トイレ
設備・サービス
防犯カメラ、エアコン、CATV、光ファイバー、公営水道、都市ガス、下水、フローリング、バルコニー、室内洗濯機置場、南面バルコニー、エレベーター、駐輪場ありその他
住まい探し特典あり備考
大通りから少し入りますので閑静な住宅街エリアのオススメファミリータイプ。築年数は経っておりますが清潔感のあるお部屋です。地下鉄沿線、阪急電車沿線でのお部屋探しはアパマンショップ河原町三条店にお任せください。すぐにご対応・ご案内させていただきます。
物件周辺の生活情報
買い物
- コンビニ(220m)
- スーパー(276m)
- ドラッグストア(392m)
その他施設
- 総合病院(820m)
- 銀行(320m)
- TSUTAYA四条寺町(887m)
交通
- 京都市営烏丸線 五条駅 徒歩2分
- 普通(停車)
- 急行(停車)
- 京都市営烏丸線 四条駅 徒歩10分
- 普通(停車)
- 急行(停車)
※急行等の停車駅情報について
急行等の停車駅に関するデータは、随時更新をしておりますが、最新の内容であることを保証するものではありません。
最新かつ正確な情報につきましては、各鉄道会社のウェブサイトにてご確認ください
物件周辺の口コミ
- 京都府京都市下京区室町通万寿寺下るに住む人の口コミ50代男性
買い物から医療まで、施設が整っており、生活に便利である。また歴史が感じられるところが多く、知的刺激もある。ただ、自然が箱庭的で、少し郊外に出ないと自然を感じられないのが残念である。
口コミを見る
この物件周辺に住む人の口コミ
口コミは、LIFULL HOME'Sが実際にこの物件の周辺に住む18歳~69歳の男女を対象に、WEBアンケート調査を実施しています。内容には回答者の主観的な表現が含まれる場合があるほか、事実と異なる場合もございます。ご了承ください。
- 京都府京都市下京区室町通万寿寺下るに住む人の口コミ50代男性
- 買い物から医療まで、施設が整っており、生活に便利である。また歴史が感じられるところが多く、知的刺激もある。ただ、自然が箱庭的で、少し郊外に出ないと自然を感じられないのが残念である。
- 京都府京都市下京区室町通仏光寺上るに住む人の口コミ50代女性
- 交通の便が非常によく、住みやすい。ただ、自然が少し少ないのが寂しいから
- 京都府京都市下京区万寿寺通不明門東入に住む人の口コミ50代男性
- 公共の施設が歩いていける範囲にある。デパート、銀行、証券会社、図書館、区役所、保健所、医院、公園など。
- 京都府京都市下京区西洞院通高辻下るに住む人の口コミ40代女性
- 住みやすい。治安が良い、ただ最近外国人がとても多くなって色々な場所が混雑している
- 京都府京都市下京区西洞院通松原下るに住む人の口コミ50代女性
- 自然環境には恵まれてないが、町の利便性は高く、便利であるために住みやすい。比較的、治安もよいので満足している。
- 京都府京都市中京区錦小路通室町東入に住む人の口コミ30代女性
- 交通の便がよくお店、病院など不自由しない点と治安も悪くなく安心して暮らせる
- 京都府京都市中京区三条通小川東入に住む人の口コミ50代男性
- 京都の古い街並みがある程度保存されており、落ち着いたエリアが多い。ただ、観光客にはとても迷惑しているので、観光エリアと居住エリアを分割した街づくりが必要である。
- 京都府京都市下京区高倉通松原上るに住む人の口コミ30代女性
- 買い物に便利な点。例えば百貨店やドラッグストアが数種類あるため
- 京都府京都市下京区中堂寺前田町に住む人の口コミ30代男性
- 生活するのに困らない。ご近所づき合いがほどほどにある。交通機関が充実している点
- 京都府京都市下京区東洞院通的場上るに住む人の口コミ50代男性
- 交通の便が良く、少し物価は高いがスーパー等の食料品などの購入が便利である。
物件概要
- 建物構造
- RC(鉄筋コンクリート)
- 駐車場
- 空無
- 総戸数
- 26戸
- 契約形態
- -
- 契約期間
- 2年間
- 更新料
- 新賃料の1ヶ月分
- その他費用
- -
- 保証会社
- -
- 住宅保険
- 要
- 管理
- 管理員:巡回
- LIFULL HOME'S
物件番号 - 0130914-0265749
- 自社管理番号
- 02-08299-303
- 取引態様
- 仲介
- 会社名
- ウインズリンク株式会社 アパマンショップ河原町三条店
営業スタッフコメント

ウインズリンク株式会社 アパマンショップ河原町三条店マネージャー (店舗責任者)
村田竜太郎
お客様に喜けるお部屋探しを心掛けております。
業界経験10年
資格少額短期保険募集人
- 会社実績や特徴・サービス情報
- アパマンショップ河原町三条店は仲介手数料50%(税別・個人契約居住用) 京都の全エリアをカバーしており、地下鉄、阪急、京阪電車沿線を得意としております。 京都に転勤で来られる方、京都の大学・専門学校に通われる方 まずはお気軽にご相談下さい。 法人契約歓迎でお待ちしております。 保証人無しご契約可能物件も多数取り扱いしております。 事務所・店舗・高額賃貸マンションまで賃貸というカテゴリーでしたら ご対応可能です。 京都の賃貸でしたらアパマンショップ河原町三条店にお任せください。
アパマンショップ河原町三条店は仲介手数料50%(税別・個人契約居住用) 京都の全エリアをカバーしており、地下鉄、阪急、京阪電車沿線を得意としております。 京都に転勤で来られる方、京都の大学・専門学校に通われる方 まずはお気軽にご相談下さい。 法人契約歓迎でお待ちしております。 保証人無しご契約可能物件も多数取り扱いしております。 事務所・店舗・高額賃貸マンションまで賃貸というカテゴリーでしたら ご対応可能です。 京都の賃貸でしたらアパマンショップ河原町三条店にお任せください。
- 電話でお問合せ(通話無料)
お問合せ先 :ウインズリンク株式会社 アパマンショップ河原町三条店
不動産会社情報
ウインズリンク株式会社 アパマンショップ河原町三条店
京都府京都市中京区河原町通三条上る恵比須町435番地5
京都地下鉄東西線 京都市役所前駅 徒歩3分
- 営業時間
- 09:30~19:00
- 定休日
- 年中無休(盆・正月を除く)
担当エリアは京都市全域、京都市内各地を熟知したスタッフが揃っています。住まいの事から生活情報に至るまで、京都のこと・賃貸情報のことならなんでもご相談ください!
- 店舗の特徴
- 賃貸管理業務
- 引越し業者紹介可
- 年中無休
- オンライン相談可
- 保証人不要な物件あり
- 法人契約取扱い
- 女性スタッフ対応可
- 駅から歩いて3分以内
電話でお問合せお客様の電話番号は不動産会社には通知されません
- 不動産会社に
つながります
お客様の電話番号は不動産会社に通知されません
- ※光IP電話、及びIP電話からはご利用になれません
- ※お電話によるお問合せは、店舗営業時間内にお願いします。つながらない場合は、お問合せフォームよりお問合せください
- ※不動産会社がお電話に出られなかった場合、お問合せいただいた後に不動産会社より折り返しのお電話がある場合がございます(お客様が非通知設定した場合は対象外です)
- ※株式会社LIFULLは電話会社が提供するサービスを介してお客様の発信者番号を受領後、折り返し専用の電話番号を発番してお問合せの不動産会社に通知します(お客様の発信者番号がお問合せの不動産会社に通知されることはございません)
- ※携帯電話からお問合せいただいた方に対し、株式会社LIFULLは電話会社が提供するメッセ―ジサービスを介してお客様の発信者番号を受領後、ショートメッセージ(SMS)またはLINE通知メッセージによるお問合せ内容に関する通知をお届けする場合があります
- ※お客様が通話中に不動産会社にお伝えになったお客様の個人情報及び、電話会社が発番する折り返し専用の電話番号は、お問合せ先不動産会社が資料送付・電子メール送信・電話連絡などの目的で保管する可能性があります。お問合せ先不動産会社が保管する個人情報の取扱いについては、各不動産会社に直接お問合せください
- ※株式会社LIFULLでは本サービスを円滑に運用するために、お客様の発信者番号をサービスご利用の控えとして一定期間保管いたします
- ※上記および株式会社LIFULLの個人情報の取扱い方針に同意のうえ、お電話ください
【LIFULL HOME'S物件番号】0130914-0265749【自社管理番号】02-08299-303
初期費用・月額費用をあわせて確認!この物件に住んだときの費用めやす
めやすを見るこの物件に住んだときの費用めやす
- 初期費用
- 月額費用
- 追加費用※ご確認ください
追加で費用が
かかる場合があります
必ずご確認ください
初期費用めやす約0円
追加で費用がかかります(※)敷金
110,000
- 礼金
220,000
賃料+共益費・管理費の1ヶ月分として換算
賃料の1ヶ月分+税として換算。不動産会社によって金額が異なるため正確な金額は不動産会社にお問合せください
※追加費用もチェック!
これらの項目以外にも費用がかかる場合があります。正確な金額は不動産会社にお問合せください。
- 初期費用
- 鍵交換費:不動産会社に要確認
- 室内清掃費:不動産会社に要確認
- 火災保険費:不動産会社に要確認
- 保証会社
- 不動産会社に要確認
不動産会社より
地下鉄五条駅徒歩2分 洛央小学校区のファミリーマンション。阪急電車もご利用可能
大通りから少し入りますので閑静な住宅街エリアのオススメファミリータイプ。築年数は経っておりますが清潔感のあるお部屋です。地下鉄沿線、阪急電車沿線でのお部屋探しはアパマンショップ河原町三条店にお任せください。すぐにご対応・ご案内させていただきます。
- 保存する
- 共有する
- ※各種情報と現状に差異がある場合は、現状優先となります
- ※不動産会社が入力した情報を基に物件の位置を表示しています。詳しくは不動産会社までお問合せください
- ※不動産会社の方からの上記電話番号によるお問合せはお断りしております。こちら不動産会社詳細からお問合せください
- ※LIFULL HOME'Sは物件鮮度No.1を目指していきます。閲覧中の物件が「成約済である」「実際の物件情報と異なる点がある」などの場合、「掲載110番」からお問合せください
- ※QRコードは株式会社デンソーウェーブの登録商標です
この物件を取扱う他の会社
LIFULL HOME'Sでは、主要項目が同一の物件をまとめて表示しています。所在地や営業時間、掲載画像等から不動産会社を選んでお問合せください。
株式会社エリッツ 四条烏丸店
優良店認定
京都府京都市下京区四条通新町東入月鉾町59 エリッツ四条烏丸ビル1F
京都市営烏丸線 四条駅 徒歩2分
- 営業時間
- 10:00~19:00
- 定休日
- 年中無休(年末年始を除く)
株式会社エリッツ 烏丸丸太町店
優良店認定
京都府京都市中京区丸太町通東洞院西入光り堂町426 ピア御所1階
京都市営烏丸線 丸太町駅 徒歩1分
- 営業時間
- 10:00~19:00
- 定休日
- 火・水曜日 (祝日を除く)、 ※部屋探しのお問い合わせは無休
株式会社エリッツ 竹田店
優良店認定
京都府京都市伏見区竹田段川原町258 アルデールB 1F
京都市営烏丸線 竹田駅 徒歩1分
- 営業時間
- 10:00~19:00
- 定休日
- 火・水曜日(祝日を除く)、年末年始 ※部屋探しのお問い合わせは無休
株式会社エリッツ 深草店
優良店認定
京都府京都市伏見区深草西浦町4丁目31番地
京阪本線 龍谷大前深草駅 徒歩5分
- 営業時間
- 10:00~19:00
- 定休日
- 水曜日(祝日を除く)、年末年始 ※部屋探しのお問い合わせは無休
株式会社エリッツ 西院店
優良店認定
京都府京都市右京区西院巽町37−1 TAKE7 1F
阪急京都本線 西院駅 徒歩2分
- 営業時間
- 10:00~19:00
- 定休日
- 年中無休(年末年始を除く)
LIFULL HOME'S 地図・周辺情報
買い物
- ミニストップ 京都室町通万寿寺店
- フレスコ 五条西洞院店
- ココカラファイン新町店
- ファミリーマート 五条新町店
- フレスコ 五条店
グルメ
- 吉野家 烏丸五条店
- CoCo壱番屋 烏丸五条店
- マクドナルド 烏丸五条店
- やよい軒 五条烏丸店
- 街かど屋烏丸五条店
育児・教育
- 大谷保育園
- 京都市立下京雅小学校
- 京都市立下京中学校
- 京都市立楊梅幼稚園
- 京都市立洛央小学校
医療
- 木津屋橋武田病院
- 医療法人知音会京都新町病院
- 山元病院
- 医療法人財団康生会武田病院
- 医療法人令寿会しまばら病院
公共施設・郵便局
- 京都五条東洞院郵便局
- 京都市下京図書館
- 京都府下京警察署
- 京都若宮松原郵便局
- 京都市東山図書館
公園
- 光徳公園
- 梅小路公園
- 梅小路公園
- 円山公園
- 円山公園
利用可能な駅
- 徒歩10分以内
京都市営烏丸線
- 五条駅徒歩2分
- 四条駅徒歩10分
- 周辺情報は2023年07月21日時点のものになります。
- 周辺情報は、参考情報としてのみご利用ください(周辺情報は、株式会社LIFULLが地図情報の提供事業者から提供を受けた情報とLIFULL HOME'Sの物件情報に基づき、独自の方法で抽出し提供しているものです。周辺情報は、移転や閉鎖等により情報が最新ではない、または正しくない場合がありますが、地図情報の提供事業者から提供された情報をそのまま周辺情報として表示しているため、正確かつ最新の情報へ修正することができないことがあります。)
- 周辺情報は、株式会社LIFULLが掲載するものであり、不動産物件情報を掲載している不動産会社が掲載するものではありません
- 交通情報の一部については、株式会社LIFULLが掲載するものであり、不動産物件情報を掲載している不動産会社が掲載するものではない場合があります。交通情報に関する質問などは株式会社LIFULLにお問合せください


















