LIFULL HOME'Sは物件鮮度No.1!※評価について
物件概要
- お問合せ状況
- 現在この物件はお問合せできません
- 交通
- 所在地
京都府城陽市枇杷庄西ノ口
地図を見る- 築年月
- 2017年10月(築9年)
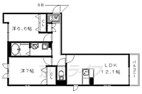
- 間取り
- 1LDK
- 主要採光面
- 南
- 専有面積
- 42.08㎡
- 所在階/階数
- 1階/3階建
- 建物構造
- 鉄骨造
- 総戸数
- 12戸
物件のこだわり/設備・条件
新築(非該当)
2階以上の物件(非該当)
南向き(該当)
駐車場(非該当)
オートロック(該当)
エアコン(該当)
バス・トイレ別(該当)
追焚機能(該当)
フローリング(該当)
ペット相談(非該当)
入居条件
二人入居可キッチン/バス・トイレ
ガスコンロ設置済、コンロ三口、システムキッチン、カウンターキッチン、給湯、専用バス、専用トイレ、バス・トイレ別、追焚機能、シャワー、シャワー付洗面化粧台、温水洗浄便座、浴室乾燥機、洗面所独立設備・サービス
オートロック、TVモニタ付インターホン、エアコン、床下収納、シューズボックス、光ファイバー、公営水道、都市ガス、下水、フローリング、バルコニー、室内洗濯機置場、南面バルコニー、駐輪場ありその他
住まい探し特典あり
物件周辺の生活情報
学校
- 今池小学校(1,200m)
- 西城陽中学校(2,300m)
買い物
- コンビニ(212m)
- スーパー(1,900m)
その他施設
- 銀行(800m)
- 城陽富野郵便局(750m)
交通
- 近鉄京都線 富野荘駅 徒歩9分
- 普通(停車)
- 準急(停車)
- 急行(通過)
- JR奈良線 長池駅 徒歩30分
- 普通(停車)
- 区間快速(停車)
- 快速(通過)
- みやこ路快速(通過)
※急行等の停車駅情報について
急行等の停車駅に関するデータは、随時更新をしておりますが、最新の内容であることを保証するものではありません。
最新かつ正確な情報につきましては、各鉄道会社のウェブサイトにてご確認ください
LIFULL HOME'S 地図・周辺情報
買い物
- ファミリーマート 城陽枇杷庄店
- スーパー山田屋富野荘本店
- ダックス京田辺駅前店
- ファミリーマート 富野荘駅前店
- ダイソーアルプラザ京田辺店
グルメ
- ジョイフル 京都新田辺店
- ミスタードーナツ アルプラザ京田辺ショップ
- 31アイスクリーム アル・プラザ京田辺店
- マクドナルド 京田辺アルプラザ店
- ケンタッキーフライドチキン アル・プラザ京田辺店
育児・教育
- 城陽市立今池保育園
- 城陽市立今池小学校
- 城陽市立西城陽中学校
- せいじん保育園
- 京田辺市立田辺東小学校
医療
- 医療法人社団石鎚会京都田辺記念病院
- 医療法人社団石鎚会京都田辺中央病院
- 財団法人大日本仏教慈善会財団あそかビハーラ病院
- 医療法人晴風園ほうゆうリハビリテーション病院
公共施設・郵便局
- 城陽富野郵便局
- 城陽市立図書館
- 城陽警察署
- 新田辺郵便局
- 京田辺市立中央図書館
公園
- 木津川運動公園
- 田辺公園
- 京都府立木津川運動公園
利用可能な駅
- 徒歩10分以内
近鉄京都線
- 富野荘駅徒歩9分
- すべての駅
近鉄京都線
- 寺田駅徒歩27分
- 新田辺駅6km
JR奈良線
- 長池駅徒歩30分
- 城陽駅3.3km
JR片町線(学研都市線)
- 大住駅3.8km
- 京田辺駅5.3km
- 周辺情報は2023年07月21日時点のものになります。
- 周辺情報は、参考情報としてのみご利用ください(周辺情報は、株式会社LIFULLが地図情報の提供事業者から提供を受けた情報とLIFULL HOME'Sの物件情報に基づき、独自の方法で抽出し提供しているものです。周辺情報は、移転や閉鎖等により情報が最新ではない、または正しくない場合がありますが、地図情報の提供事業者から提供された情報をそのまま周辺情報として表示しているため、正確かつ最新の情報へ修正することができないことがあります。)
- 周辺情報は、株式会社LIFULLが掲載するものであり、不動産物件情報を掲載している不動産会社が掲載するものではありません
- 交通情報の一部については、株式会社LIFULLが掲載するものであり、不動産物件情報を掲載している不動産会社が掲載するものではない場合があります。交通情報に関する質問などは株式会社LIFULLにお問合せください










































