LIFULL HOME'Sは物件鮮度No.1!※評価について
SHUKURA練馬区関町東
29.9万円/管理費等-
15時間前 更新
お問合せ先 :ハウスコム西東京株式会社 吉祥寺店
引越し料金割引
提携引越会社20%OFF
- 利用条件
- ハウスコム西東京株式会社 吉祥寺店で利用可
- 他特典との併用可
- ご契約者様限定となります。
利用方法
来店時に本特典の画面をスマートフォンやタブレットでスタッフに提示、または画面印刷した用紙を提示ください。
有効期限 なし
定期借家
この物件の契約期間は、2年間です
※定期借家物件は、賃貸借契約期間満了後、原則として契約の更新ができない物件です。貸主との合意があれば再契約が可能な場合があります
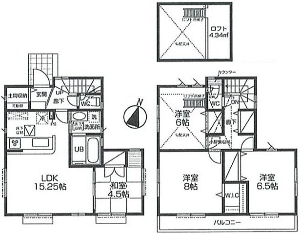
室内設備は洗面化粧台・食器洗乾燥機などが揃っており、とても充実しています。
基本情報
不動産用語- 賃料
- 29.9万円
- 管理費等
- -
初期費用などお気軽にお問合せください
- 敷金/礼金
- 2ヶ月/1ヶ月
- 保証金/敷引・償却金
- -/-
- 交通
西武新宿線 武蔵関駅 徒歩9分
西武新宿線 上石神井駅 徒歩13分
- 所在地
東京都練馬区関町東1丁目20-14
地図を見る- 築年月
- 2023年3月(築3年)
- 主要採光面
- 南
- 専有面積
- 96.54㎡
- バルコニー面積
- -
- 所在階/階数
- 1階/2階建
入居可能日などお気軽にお問合せください
- 現況
- -
- 入居可能時期
- 2026年01月 下旬

人気物件はすぐに埋まってしまいます。
気になったらお早めにお問合せください。
- 情報公開日
2025/10/04
51日前 公開
- 情報更新日
2025/11/23
15時間前 更新
- 次回更新
予定日 - 2025/11/30
物件のこだわり/設備・条件
新築(非該当)
2階以上の物件(非該当)
南向き(該当)
駐車場(非該当)
オートロック(非該当)
エアコン(該当)
バス・トイレ別(該当)
追焚機能(該当)
フローリング(該当)
ペット相談可(該当)
位置
角部屋入居条件
楽器相談可、事務所不可、ペット相談、フリーレント1ヶ月、保証人不要キッチン/バス・トイレ
ガスコンロ設置済、コンロ三口、システムキッチン、カウンターキッチン、食器洗い乾燥機、給湯、専用バス、専用トイレ、バス・トイレ別、追焚機能、シャワー、シャワー付洗面化粧台、温水洗浄便座、洗面所独立設備・サービス
TVモニタ付インターホン、エアコン、床暖房、ウォークインクローゼット、全居室収納、クローゼット、シューズボックス、インターネット対応、公営水道、都市ガス、下水、フローリング、バルコニー、ロフト付き、室内洗濯機置場、南面バルコニー、駐輪場ありその他
住まい探し特典あり
物件周辺の生活情報
交通
- 西武新宿線 武蔵関駅 徒歩9分
- 普通(停車)
- 準急(停車)
- 急行(通過)
- 通勤急行(通過)
- 西武新宿線 上石神井駅 徒歩13分
- 普通(停車)
- 準急(停車)
- 急行(停車)
- 通勤急行(停車)
※急行等の停車駅情報について
急行等の停車駅に関するデータは、随時更新をしておりますが、最新の内容であることを保証するものではありません。
最新かつ正確な情報につきましては、各鉄道会社のウェブサイトにてご確認ください
物件周辺の口コミ
- 東京都練馬区関町東に住む人の口コミ50代女性
30年以上住んでいるので、特によくないことはありません。核家族が多いいので、皆さん、それぞれ、暮らしているという感じです。近所でも、お付き合いも、親しくしてませんが。
口コミを見る
この物件周辺に住む人の口コミ
口コミは、LIFULL HOME'Sが実際にこの物件の周辺に住む18歳~69歳の男女を対象に、WEBアンケート調査を実施しています。内容には回答者の主観的な表現が含まれる場合があるほか、事実と異なる場合もございます。ご了承ください。
- 東京都練馬区関町東に住む人の口コミ50代女性
- 30年以上住んでいるので、特によくないことはありません。核家族が多いいので、皆さん、それぞれ、暮らしているという感じです。近所でも、お付き合いも、親しくしてませんが。
- 東京都練馬区関町東に住む人の口コミ50代女性
- 概ね生活するのに不便はありません。交通の便はやはり私鉄沿線なので、JRなどに比べてよくないのではないでしょうか。
- 東京都練馬区関町北に住む人の口コミ60代女性
- 西武新宿線沿線でどこにでも出やすい。静かな住宅街。沿線唯一の大きな池のある大きい公園があるオアシス的公園が目の前。子育てしやすい。
- 東京都練馬区東大泉に住む人の口コミ50代男性
- 区立の体育館、プールや図書館が駅に近いところにあれば問題なし
- 東京都練馬区東大泉に住む人の口コミ50代女性
- 区役所、郵便局の利用は電車に乗らないといけないが、買い物はそれなりに出来るし、駅の周りは交通量が少なく歩行者はあまり車を気にすることなく行動することが出きる。
- 東京都西東京市富士町に住む人の口コミ60代男性
- 都内としては緑も残っており高層建築物が無いのが良い。よく言えば空気が、もう少し清浄であることが望まれる。
- 東京都練馬区東大泉に住む人の口コミ50代男性
- 街に清潔感があり、概ね治安が良く住みやすい。また、ペットを飼っている人も多く人にも動物にも優しい街のため。
- 東京都練馬区東大泉に住む人の口コミ50代女性
- 映画館、商業施設もあり、美味しいパン屋も多くあり、少し行けば新鮮な野菜を買える農協もある。しいて言えば、都心より少し遠い。
- 東京都練馬区関町南に住む人の口コミ40代女性
- 徒歩圏内で日常のほとんどをまかなえる。利便性・自然ののどかさ・都心への近さなどバランスが良い。
- 東京都練馬区関町南に住む人の口コミ40代男性
- 生活必需品が近隣で一通り揃うほか、自転車の行動範囲でほぼ全てのものが揃うところ。教育環境もさほど悪くなく、ファミリー層にはちょうどいい住環境と思います。
物件概要
- 建物構造
- 木造
- 駐車場
- -
- 総戸数
- -
- 契約形態
定期借家
- 契約期間
- 2年間
- 更新料
- -
- その他費用
- -
- 保証会社
加入要
保証会社利用料: 初回保証料は総賃料の50% 更新1年10,000円
- 住宅保険
- 要
- 管理
- -
- LIFULL HOME'S
物件番号 - 3701042-0334839
- 自社管理番号
- HC2-4412401-2-0056
- 取引態様
- 仲介
- 会社名
- ハウスコム西東京株式会社 吉祥寺店
営業スタッフコメント

ハウスコム西東京株式会社 吉祥寺店店長
那加野岳仁
お客様目線の丁寧なご案内をさせていただきます。
業界経験22年
資格宅地建物取引士
- スタッフ情報
- お部屋探しでは色々とご不安事があると思いますので、そういったご不安なども解消しながら私たちと一緒にベストなお部屋を見つけていきましょう。お部屋のこと以外でも何でもご相談ください。
お部屋探しでは色々とご不安事があると思いますので、そういったご不安なども解消しながら私たちと一緒にベストなお部屋を見つけていきましょう。お部屋のこと以外でも何でもご相談ください。
- プロの意見がもらえる
- 最新情報が手に入る
- 他の物件も紹介してもらえる
- 電話でお問合せ(通話無料)
お問合せ先 :ハウスコム西東京株式会社 吉祥寺店
不動産会社情報
ハウスコム西東京株式会社 吉祥寺店
東京都武蔵野市吉祥寺南町1丁目3-1 吉祥寺駅前井口ビル2階
JR中央線 吉祥寺駅 徒歩1分
- 営業時間
- 10:00~18:00
- 定休日
- なし「年末年始12/26~1/3」
JR中央線・京王井の頭線・西武新宿線のお部屋探しは当社にお任せ下さい。取り扱いできる物件多数ございますので、お客様に最適な物件をご紹介させていただきます。ご来店スタッフ一同心よりお待ちしております。
- 店舗の特徴
- 賃貸管理業務
- リフォーム対応
- 引越し業者紹介可
- 年中無休
- 駐車場あり
- オンライン相談可
- 保証人不要な物件あり
- 法人契約取扱い
- 女性スタッフ対応可
- 駅から歩いて3分以内
- プロの意見がもらえる
- 最新情報が手に入る
- 他の物件も紹介してもらえる
電話でお問合せお客様の電話番号は不動産会社には通知されません
- 不動産会社に
つながります
お客様の電話番号は不動産会社に通知されません
- ※光IP電話、及びIP電話からはご利用になれません
- ※お電話によるお問合せは、店舗営業時間内にお願いします。つながらない場合は、お問合せフォームよりお問合せください
- ※不動産会社がお電話に出られなかった場合、お問合せいただいた後に不動産会社より折り返しのお電話がある場合がございます(お客様が非通知設定した場合は対象外です)
- ※株式会社LIFULLは電話会社が提供するサービスを介してお客様の発信者番号を受領後、折り返し専用の電話番号を発番してお問合せの不動産会社に通知します(お客様の発信者番号がお問合せの不動産会社に通知されることはございません)
- ※携帯電話からお問合せいただいた方に対し、株式会社LIFULLは電話会社が提供するメッセ―ジサービスを介してお客様の発信者番号を受領後、ショートメッセージ(SMS)またはLINE通知メッセージによるお問合せ内容に関する通知をお届けする場合があります
- ※お客様が通話中に不動産会社にお伝えになったお客様の個人情報及び、電話会社が発番する折り返し専用の電話番号は、お問合せ先不動産会社が資料送付・電子メール送信・電話連絡などの目的で保管する可能性があります。お問合せ先不動産会社が保管する個人情報の取扱いについては、各不動産会社に直接お問合せください
- ※株式会社LIFULLでは本サービスを円滑に運用するために、お客様の発信者番号をサービスご利用の控えとして一定期間保管いたします
- ※上記および株式会社LIFULLの個人情報の取扱い方針に同意のうえ、お電話ください
【LIFULL HOME'S物件番号】3701042-0334839【自社管理番号】HC2-4412401-2-0056
オンライン対応
オンライン相談に対応している物件です

「オンライン内見」「オンライン相談」「IT重説」とは?
物件の内見や不動産会社スタッフとの相談、契約前の重要事項説明をオンライン(ビデオ通話)で行うことができるサービスです。
オンライン内見
ビデオ通話で現地(物件)にいる不動産会社スタッフと映像・音声を使ってリアルタイムで会話しながら内見ができます。
オンライン相談
「物件について聞きたいことがある」など不動産会社スタッフへの相談もビデオ通話で行うことができます。
IT重説
契約前の重要事項説明(重説)をビデオ通話で行うことができます。
利用時の注意事項
- ビデオ通話については各不動産会社指定のものとなります。
- ビデオ通話利用時には通信が発生します。従量課金制通信サービスや通信量に上限があるネット回線・プランを利用する場合は、通信量にご注意ください。
- 通信速度やアプリの設定によってはビデオ通話の画質が低下することがあります。安定した画質で利用するためにも、Wi-Fi環境下での利用を推奨します。
- ご利用のビデオ通話アプリによっては、対象のOSやブラウザに制限がある場合があります。詳しくはお問合せ先不動産会社にご確認ください。
- 保存する
- 共有する
- ※各種情報と現状に差異がある場合は、現状優先となります
- ※不動産会社が入力した情報を基に物件の位置を表示しています。詳しくは不動産会社までお問合せください
- ※不動産会社の方からの上記電話番号によるお問合せはお断りしております。こちら不動産会社詳細からお問合せください
- ※LIFULL HOME'Sは物件鮮度No.1を目指していきます。閲覧中の物件が「成約済である」「実際の物件情報と異なる点がある」などの場合、「掲載110番」からお問合せください
- ※QRコードは株式会社デンソーウェーブの登録商標です
したい暮らしのタグから探す
この物件を取扱う他の会社
LIFULL HOME'Sでは、主要項目が同一の物件をまとめて表示しています。所在地や営業時間、掲載画像等から不動産会社を選んでお問合せください。
ハウスコム西東京株式会社 武蔵境店
優良店認定
東京都武蔵野市境2丁目2-3 渡辺ビル1階
JR中央線 武蔵境駅 徒歩1分
- 営業時間
- 10:00~18:00
- 定休日
- 毎週水曜日・年末年始(12/26~1/3)
ハウスコム東東京株式会社 成増店
優良店認定
東京都板橋区成増3丁目3−11 成増アクト2 1階
東武東上線 成増駅 徒歩1分
- 営業時間
- 10:00~18:00
- 定休日
- 無し 年末年始(12月25日〜1月3日)
最近見た賃貸物件
LIFULL HOME'S 地図・周辺情報
買い物
- ファミリーマート 練馬関町北一丁目店
- アキダイ関町本店
- ウェルパーク武蔵関駅前店
- セブンイレブン 練馬関町東1丁目店
- リコス関町北1丁目店
グルメ
- びっくりドンキー 関町店
- ガスト 関町店(から好し取扱店)
- 松屋 武蔵関店
- らあめん花月嵐武蔵関店
- モスバーガー エミオ武蔵関店
育児・教育
- いずみ保育園
- 練馬区立石神井西小学校
- 練馬区立石神井西中学校
- ピノキオ幼児舎関町保育園
- 私立東京三育小学校
医療
- 医療法人社団千秋会田中脳神経外科病院
- 医療法人社団遼山会関町病院
- 医療法人社団はなぶさ会島村記念病院
- 医療法人社団じうんどう慈雲堂病院
- 医療法人社団杏順会越川病院
公共施設・郵便局
- 武蔵関駅前郵便局
- 練馬区立関町図書館
- 武蔵野市役所
- 練馬関町郵便局
- 杉並区立今川図書館
公園
- 立野公園
- 武蔵関公園
- 下野谷遺跡公園
- 東京都立石神井公園
- 石神井公園
利用可能な駅
- 徒歩10分以内
西武新宿線
- 武蔵関駅徒歩9分
- すべての駅
西武新宿線
- 上石神井駅徒歩13分
- 周辺情報は2023年07月21日時点のものになります。
- 周辺情報は、参考情報としてのみご利用ください(周辺情報は、株式会社LIFULLが地図情報の提供事業者から提供を受けた情報とLIFULL HOME'Sの物件情報に基づき、独自の方法で抽出し提供しているものです。周辺情報は、移転や閉鎖等により情報が最新ではない、または正しくない場合がありますが、地図情報の提供事業者から提供された情報をそのまま周辺情報として表示しているため、正確かつ最新の情報へ修正することができないことがあります。)
- 周辺情報は、株式会社LIFULLが掲載するものであり、不動産物件情報を掲載している不動産会社が掲載するものではありません
- 交通情報の一部については、株式会社LIFULLが掲載するものであり、不動産物件情報を掲載している不動産会社が掲載するものではない場合があります。交通情報に関する質問などは株式会社LIFULLにお問合せください














































