LIFULL HOME'Sは物件鮮度No.1!※評価について
ツインシス御池(11階/1K/33.28m²)
ツインシス御池(11階/1K/33.28m²)
7.7万円/管理費等8,000円
3時間前 更新
画像一覧
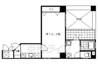
1/30間取り
間取
2/30外観
3/30外観
4/30外観
5/30リビング/ダイニング
6/30リビング/ダイニング
7/30リビング/ダイニング
8/30リビング/ダイニング
9/30キッチン
10/30キッチン
11/30浴室
12/30トイレ
13/30洗面
14/30洗面
15/30洗面
16/30収納
17/30収納
18/30設備
19/30設備
20/30設備
21/30玄関
22/30バルコニー
23/30エントランス
24/30エントランス
25/30その他
26/30その他
27/30その他
28/30その他
29/30その他
30/30周辺
ダックス御池店まで70m 御池通り沿いの大型ドラッグショップ
間取り
外観
外観
外観
リビング/ダイニング
リビング/ダイニング
リビング/ダイニング
リビング/ダイニング
キッチン
キッチン
浴室
トイレ
洗面
洗面
洗面
収納
収納
設備
設備
設備
玄関
バルコニー
エントランス
エントランス
その他
その他
その他
その他
その他
周辺
お問合せ先 :株式会社京都ライフ 三条烏丸店
1〜4月は引越しシーズンのピークです。お問合せはお早めに!
仲介手数料割引
仲介手数料 家賃の50%(税別)
- 利用条件
- 株式会社京都ライフ 三条烏丸店で利用可
- 他特典との併用可
- 法人契約、事業用物件は除く。積水ハウス管理、大東建託管理を除く。
利用方法
来店時に本特典の画面をスマートフォンやタブレットでスタッフに提示、または画面印刷した用紙を提示ください。
有効期限 なし
全室角部屋、オール電化 烏丸御池の全室角部屋設計物件。設備充実でセキュリティも安心。
基本情報
不動産用語- 賃料
- 7.7万円
- 管理費等
- 8,000円
初期費用などお気軽にお問合せください
- 敷金/礼金
- 無/15.4万円
- 保証金/敷引・償却金
- -/-
- 交通
京都市営烏丸線 烏丸御池駅 徒歩3分
京都市営烏丸線 四条駅 徒歩12分
- 所在地
京都府京都市中京区御池通室町西入ル西横町
地図を見る- 築年月
- 2008年3月(築19年)
- 主要採光面
- 西
- 専有面積
- 33.28㎡
- バルコニー面積
- -
- 所在階/階数
- 11階/11階建
入居可能日などお気軽にお問合せください
- 現況
- 賃貸中
- 入居可能時期
- 2026年04月 下旬

人気物件はすぐに埋まってしまいます。
気になったらお早めにお問合せください。
- 情報公開日
2026/02/28
3日前 公開
- 情報更新日
2026/03/03
3時間前 更新
- 次回更新
予定日 - 2026/03/15
物件のこだわり/設備・条件
新築(非該当)
2階以上の物件(該当)
南向き(非該当)
駐車場(非該当)
オートロック(該当)
エアコン(該当)
バス・トイレ別(該当)
追焚機能(非該当)
フローリング(該当)
ペット相談(非該当)
位置
角部屋キッチン/バス・トイレ
設備・サービス
オートロック、TVモニタ付インターホン、エアコン、シューズボックス、CS対応、BS対応、光ファイバー、公営水道、下水、オール電化、フローリング、バルコニー、室内洗濯機置場、エレベーター、駐輪場ありその他
住まい探し特典あり備考
9帖超えの広々オール電化物件が烏丸御池に登場です。地下鉄の烏丸線も東西線も使えるのは便利ですね。嬉しい独立洗面台に加え、脱衣所スペースもございます。浴室乾燥、システムキッチンなど設備も充実。大通りに面しており、オートロック、TVホンも付いているので防犯面も安心です。全室角部屋設計というのも魅力的。まちなか設備充実物件で新生... 物件情報はもちろん京都のエリア情報まで幅広く対応させていただきます!
物件周辺の生活情報
学校
- 御所南小学校(823m)
- 京都御池中学校(613m)
買い物
- コンビニ(157m)
- スーパー(105m)
- ドラッグストア(70m)
その他施設
- 総合病院(527m)
- 銀行(450m)
- 京都府警察本部(1,000m)
交通
- 京都市営烏丸線 烏丸御池駅 徒歩3分
- 普通(停車)
- 急行(停車)
- 京都市営烏丸線 四条駅 徒歩12分
- 普通(停車)
- 急行(停車)
※急行等の停車駅情報について
急行等の停車駅に関するデータは、随時更新をしておりますが、最新の内容であることを保証するものではありません。
最新かつ正確な情報につきましては、各鉄道会社のウェブサイトにてご確認ください
物件周辺の口コミ
- 京都府京都市中京区衣棚通御池上るに住む人の口コミ30代女性
暮らしやすいが立地が良いため家賃が高い。家賃以外は満足しています。
口コミを見る
この物件周辺に住む人の口コミ
口コミは、LIFULL HOME'Sが実際にこの物件の周辺に住む18歳~69歳の男女を対象に、WEBアンケート調査を実施しています。内容には回答者の主観的な表現が含まれる場合があるほか、事実と異なる場合もございます。ご了承ください。
- 京都府京都市中京区衣棚通御池上るに住む人の口コミ30代女性
- 暮らしやすいが立地が良いため家賃が高い。家賃以外は満足しています。
- 京都府京都市中京区油小路通竹屋町下る西入に住む人の口コミ20代女性
- 近くに住んでいる人の騒音がうるさいので、それが無ければ満足している。
- 京都府京都市中京区油小路通竹屋町下る西入に住む人の口コミ20代女性
- 駅まで歩いて10分だし、河原町まで電車ですぐ行けるので美容室などにも行きやすいと感じるから
- 京都府京都市上京区猪熊通下長者町下るに住む人の口コミ30代男性
- 閑静な住宅街だが、繁華街へも徒歩圏内なので買い物には不自由なく暮らせる。
- 京都府京都市上京区松屋町通下立売下るに住む人の口コミ30代女性
- 交通の便も良いですし買い物もしやすいですが、知り合いがいないので。
- 京都府京都市上京区松屋町通下立売下るに住む人の口コミ20代女性
- 電車の最寄りは少ないがバスが多いので移動にあまり困らない。自転車、車で移動しやすい。スーパー、ドラッグストア、コンビニが充実している。銀行が少ないのが少し不便。
- 京都府京都市中京区釜座通丸太町上るに住む人の口コミ30代男性
- 京都一住みやすい町に選ばれているだけあり、交通の便、飲食店が充実しており、また、その一方で近くに鴨川等自然も豊富である。
- 京都府京都市上京区東堀川通上長者町上るに住む人の口コミ20代女性
- 都会過ぎず田舎すぎず、生活する上で一通り必要なものが揃っているから。
- 京都府京都市中京区新町通押小路下るに住む人の口コミ30代女性
- ・交通の便が良い・人気学区である・ビジネス街、商業エリアから少し離れている
- 京都府京都市上京区下立売通室町東入に住む人の口コミ30代女性
- 子ども支援センターも近くにあり、御所も近い事から穏やかで暮らしやすい。小学校の区域も良い。近くに大きな病院と府警があるので、安心。
物件概要
- 建物構造
- 鉄骨造
- 駐車場
- 近隣 30,800円(税込) 物件からの距離320m
- 総戸数
- 28戸
- 契約形態
- -
- 契約期間
- 2年間
- 更新料
- 新賃料の1ヶ月分
- その他費用
- 鍵交換費用:22,000円
- 保証会社
加入要
保証会社:クレディセゾン
保証会社利用料:初回:月額賃料等の40%、更新時:1万円/1年
- 住宅保険
- 要
- 管理
- 管理員:巡回
- LIFULL HOME'S
物件番号 - 0122850-0292695
- 自社管理番号
- 058FD-1103
- 取引態様
- 仲介
- 会社名
- 株式会社京都ライフ 三条烏丸店
営業スタッフコメント

株式会社京都ライフ 三条烏丸店
二宮一真
誠心誠意、お客様のお部屋探しをお手伝いします!!
業界経験5年
資格少額短期保険募集人
- 会社実績や特徴・サービス情報
- 京都市内部屋付け数3年連続1位。(株式会社全国賃貸住宅新聞調べ) 当店は京都の中心地、烏丸御池駅から徒歩3分と、地元の方以外も他府県にお住まいの方にも多数ご来店頂いております。 各エリア専門のスタッフが揃っておりますので、京都市全域、向日市・長岡京市・宇治市など幅広くご紹介させて頂きます。 社会人のご単身・ファミリー様をはじめ、先端科学大学・同志社大学・立命館大学・京都大学など大学生のお部屋探しも全力でサポートさせて頂きます。 創業40年、地域密着に拘らせて頂いた京都最大級の物件情報をもとに、 誠心誠意、ご満足頂けるお部屋をご紹介させて頂きます。 お部屋を探しは京都ライフ 三条烏丸店へ、お気軽にお立ち寄りください
京都市内部屋付け数3年連続1位。(株式会社全国賃貸住宅新聞調べ) 当店は京都の中心地、烏丸御池駅から徒歩3分と、地元の方以外も他府県にお住まいの方にも多数ご来店頂いております。 各エリア専門のスタッフが揃っておりますので、京都市全域、向日市・長岡京市・宇治市など幅広くご紹介させて頂きます。 社会人のご単身・ファミリー様をはじめ、先端科学大学・同志社大学・立命館大学・京都大学など大学生のお部屋探しも全力でサポートさせて頂きます。 創業40年、地域密着に拘らせて頂いた京都最大級の物件情報をもとに、 誠心誠意、ご満足頂けるお部屋をご紹介させて頂きます。 お部屋を探しは京都ライフ 三条烏丸店へ、お気軽にお立ち寄りください
- 電話でお問合せ(通話無料)
お問合せ先 :株式会社京都ライフ 三条烏丸店
不動産会社情報
株式会社京都ライフ 三条烏丸店

京都府京都市中京区三条通烏丸東入梅忠町24 三条COHJUBLDG 1階
京都市営烏丸線 烏丸御池駅 徒歩3分
- 営業時間
- 09:30~19:00
- 定休日
- 年中無休(夏期・年末年始を除く)
優良店認定
京都市内部屋付け数3年連続1位。当店は京都の中心地、地元の方以外も他府県にお住まいの方にも多数ご来店頂いております。各エリア専門のスタッフが揃っておりますので、皆様のお部屋探しを広くサポート致します。
- 店舗の特徴
- 賃貸管理業務
- 24時間管理物件取扱い
- 引越し業者紹介可
- 年中無休
- 社宅・寮物件取扱い
- 保証人不要な物件あり
- 法人契約取扱い
- 女性スタッフ対応可
- 駅から歩いて3分以内
- 外国語を話せるスタッフ在籍
電話でお問合せお客様の電話番号は不動産会社には通知されません
- 不動産会社に
つながります
お客様の電話番号は不動産会社に通知されません
- ※光IP電話、及びIP電話からはご利用になれません
- ※お電話によるお問合せは、店舗営業時間内にお願いします。つながらない場合は、お問合せフォームよりお問合せください
- ※不動産会社がお電話に出られなかった場合、お問合せいただいた後に不動産会社より折り返しのお電話がある場合がございます(お客様が非通知設定した場合は対象外です)
- ※株式会社LIFULLは電話会社が提供するサービスを介してお客様の発信者番号を受領後、折り返し専用の電話番号を発番してお問合せの不動産会社に通知します(お客様の発信者番号がお問合せの不動産会社に通知されることはございません)
- ※携帯電話からお問合せいただいた方に対し、株式会社LIFULLは電話会社が提供するメッセ―ジサービスを介してお客様の発信者番号を受領後、ショートメッセージ(SMS)またはLINE通知メッセージによるお問合せ内容に関する通知をお届けする場合があります
- ※お客様が通話中に不動産会社にお伝えになったお客様の個人情報及び、電話会社が発番する折り返し専用の電話番号は、お問合せ先不動産会社が資料送付・電子メール送信・電話連絡などの目的で保管する可能性があります。お問合せ先不動産会社が保管する個人情報の取扱いについては、各不動産会社に直接お問合せください
- ※株式会社LIFULLでは本サービスを円滑に運用するために、お客様の発信者番号をサービスご利用の控えとして一定期間保管いたします
- ※上記および株式会社LIFULLの個人情報の取扱い方針に同意のうえ、お電話ください
【LIFULL HOME'S物件番号】0122850-0292695【自社管理番号】058FD-1103
オンライン対応
オンライン相談に対応している物件です

「オンライン内見」「オンライン相談」「IT重説」とは?
物件の内見や不動産会社スタッフとの相談、契約前の重要事項説明をオンライン(ビデオ通話)で行うことができるサービスです。
オンライン内見
ビデオ通話で現地(物件)にいる不動産会社スタッフと映像・音声を使ってリアルタイムで会話しながら内見ができます。
オンライン相談
「物件について聞きたいことがある」など不動産会社スタッフへの相談もビデオ通話で行うことができます。
IT重説
契約前の重要事項説明(重説)をビデオ通話で行うことができます。
利用時の注意事項
- ビデオ通話については各不動産会社指定のものとなります。
- ビデオ通話利用時には通信が発生します。従量課金制通信サービスや通信量に上限があるネット回線・プランを利用する場合は、通信量にご注意ください。
- 通信速度やアプリの設定によってはビデオ通話の画質が低下することがあります。安定した画質で利用するためにも、Wi-Fi環境下での利用を推奨します。
- ご利用のビデオ通話アプリによっては、対象のOSやブラウザに制限がある場合があります。詳しくはお問合せ先不動産会社にご確認ください。
初期費用・月額費用をあわせて確認!この物件に住んだときの費用めやす
めやすを見るこの物件に住んだときの費用めやす
- 初期費用
- 月額費用
- 追加費用※ご確認ください
追加で費用が
かかる場合があります
必ずご確認ください
初期費用めやす約0円
追加で費用がかかります(※)敷金
0
- 礼金
154,000
賃料+共益費・管理費の1ヶ月分として換算
賃料の1ヶ月分+税として換算。不動産会社によって金額が異なるため正確な金額は不動産会社にお問合せください
※追加費用もチェック!
これらの項目以外にも費用がかかる場合があります。正確な金額は不動産会社にお問合せください。
- 初期費用
- 鍵交換費:22,000円
- 室内清掃費:不動産会社に要確認
- 火災保険費:不動産会社に要確認
- 月額費用
- 駐車場費:30,800円(税込)※近隣
- 保証会社
- 初回:月額賃料等の40%、更新時:1万円/1年
不動産会社より
全室角部屋、オール電化 烏丸御池の全室角部屋設計物件。設備充実でセキュリティも安心。
9帖超えの広々オール電化物件が烏丸御池に登場です。地下鉄の烏丸線も東西線も使えるのは便利ですね。嬉しい独立洗面台に加え、脱衣所スペースもございます。浴室乾燥、システムキッチンなど設備も充実。大通りに面しており、オートロック、TVホンも付いているので防犯面も安心です。全室角部屋設計というのも魅力的。まちなか設備充実物件で新生... 物件情報はもちろん京都のエリア情報まで幅広く対応させていただきます!
- 保存する
- 共有する
- ※各種情報と現状に差異がある場合は、現状優先となります
- ※不動産会社が入力した情報を基に物件の位置を表示しています。詳しくは不動産会社までお問合せください
- ※不動産会社の方からの上記電話番号によるお問合せはお断りしております。こちら不動産会社詳細からお問合せください
- ※LIFULL HOME'Sは物件鮮度No.1を目指していきます。閲覧中の物件が「成約済である」「実際の物件情報と異なる点がある」などの場合、「掲載110番」からお問合せください
- ※QRコードは株式会社デンソーウェーブの登録商標です
この物件を取扱う他の会社
LIFULL HOME'Sでは、主要項目が同一の物件をまとめて表示しています。所在地や営業時間、掲載画像等から不動産会社を選んでお問合せください。
株式会社エリッツ 二条駅前店
優良店認定
京都府京都市中京区西ノ京職司町18−1 KOTO二条1F
JR山陰本線 二条駅 徒歩3分
- 営業時間
- 10:00~19:00
- 定休日
- 年中無休(年末年始を除く)
株式会社エリッツ 烏丸丸太町店
優良店認定
京都府京都市中京区丸太町通東洞院西入光り堂町426 ピア御所1階
京都市営烏丸線 丸太町駅 徒歩1分
- 営業時間
- 10:00~19:00
- 定休日
- 火・水曜日 (祝日を除く)、 ※部屋探しのお問い合わせは無休
株式会社エリッツ 出町柳店
優良店認定
京都府京都市左京区田中関田町16−1 グランコスモ出町柳II 1F
京阪本線 出町柳駅 徒歩4分
- 営業時間
- 10:00~19:00
- 定休日
- 年中無休(年末年始を除く)
株式会社エリッツ 四条河原町店
優良店認定
京都府京都市下京区河原町通四条下る2丁目稲荷町317−2 RISSI−DO 1F
阪急京都本線 京都河原町駅 徒歩2分
- 営業時間
- 10:00~19:00
- 定休日
- 水曜日 (祝日を除く)、年末年始 ※部屋探しのお問い合わせは無休
株式会社エリッツ 京都駅前店
優良店認定
京都府京都市下京区塩小路通東洞院東入東塩小路町547番地 ステーションコートヤード1階
JR東海道・山陽本線 京都駅 徒歩2分
- 営業時間
- 10:00~19:00
- 定休日
- 年中無休(年末年始を除く)
LIFULL HOME'S 地図・周辺情報
買い物
- セブンイレブン 京都御池通龍池町店
- フレスコ プチ新町御池店
- ダックス京都御池店
- セブンイレブン 烏丸御池店
- やまや烏丸御池店
グルメ
- GYOZA OHSHO烏丸御池店
- モスバーガー 烏丸御池店
- スターバックスコーヒーコトチカ烏丸御池店
- すき家 烏丸押小路店
- マクドナルド 烏丸御池店
育児・教育
- こぐま保育園
- 京都市立高倉小学校
- 京都市立洛風中学校
- 京都市立中京もえぎ幼稚園
- 京都市立御所南小学校
医療
- 医療法人財団足立病院
- 医療法人毛利病院
- 医療法人知音会京都新町病院
- 山元病院
- 京都第二赤十字病院
公共施設・郵便局
- 京都東洞院押小路郵便局
- 京都市こどもみらい館子育て図書館
- 京都市中京区役所
- 京都西洞院三条郵便局
- 京都市下京図書館
公園
- 梅屋広場公園
- 京都御苑
- 光徳公園
- 円山公園
- 円山公園
利用可能な駅
- 徒歩10分以内
京都市営烏丸線
- 烏丸御池駅徒歩3分
- すべての駅
京都市営烏丸線
- 四条駅徒歩12分
- 周辺情報は2023年07月21日時点のものになります。
- 周辺情報は、参考情報としてのみご利用ください(周辺情報は、株式会社LIFULLが地図情報の提供事業者から提供を受けた情報とLIFULL HOME'Sの物件情報に基づき、独自の方法で抽出し提供しているものです。周辺情報は、移転や閉鎖等により情報が最新ではない、または正しくない場合がありますが、地図情報の提供事業者から提供された情報をそのまま周辺情報として表示しているため、正確かつ最新の情報へ修正することができないことがあります。)
- 周辺情報は、株式会社LIFULLが掲載するものであり、不動産物件情報を掲載している不動産会社が掲載するものではありません
- 交通情報の一部については、株式会社LIFULLが掲載するものであり、不動産物件情報を掲載している不動産会社が掲載するものではない場合があります。交通情報に関する質問などは株式会社LIFULLにお問合せください












