LIFULL HOME'Sは物件鮮度No.1!※評価について
シルク 1階/101
4.4万円/管理費等2,300円
18時間前 更新
お問合せ先 :アパマンショップ玉名店 株式会社やましょう不動産
サンルームにお洗濯物が干せるので急な雨でも安心♪
基本情報
不動産用語- 賃料
- 4.4万円
- 管理費等
- 2,300円
初期費用などお気軽にお問合せください
- 敷金/礼金
- 無/無
- 保証金/敷引・償却金
- -/-
- 交通
JR鹿児島本線 玉名駅 バス21分 迫間下車 徒歩7分
JR九州新幹線 新玉名駅 徒歩14分
- 所在地
熊本県玉名市玉名
地図を見る- 築年月
- 2014年6月(築12年)
- 主要採光面
- 南西
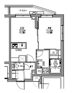
- 専有面積
- 50.29㎡
- バルコニー面積
- -
- 所在階/階数
- 1階/2階建
入居可能日などお気軽にお問合せください
- 現況
- -
- 入居可能時期
- 2025年12月 中旬

人気物件はすぐに埋まってしまいます。
気になったらお早めにお問合せください。
- 情報公開日
2025/11/11
13日前 公開
- 情報更新日
2025/11/24
18時間前 更新
- 次回更新
予定日 - 2025/12/01
物件のこだわり/設備・条件
新築(非該当)
2階以上の物件(非該当)
南向き(非該当)
駐車場あり(該当)
オートロック(非該当)
エアコン(該当)
バス・トイレ別(該当)
追焚機能(該当)
フローリング(該当)
ペット相談(非該当)
入居条件
ルームシェア不可、保証人不要キッチン/バス・トイレ
設備・サービス
TVモニタ付インターホン、エアコン、床下収納、ウォークインクローゼット、シューズボックス、プロパンガス、フローリング、室内洗濯機置場、駐車場あり、駐輪場あり備考
[退去時費用 退去費用実費精算※故意・過失等別途実費] 更新事務手数料 22,000円、月額賃料等収納手数料170円がかかります。契約時にクリーニング費60,000円、鍵セット費3,300円(税込)が必要となります。貸主インボイス登録あり
物件周辺の生活情報
学校
- 玉名小学校(680m)
- 玉名市立玉陵中学校(550m)
買い物
- コンビニ(1,517m)
- スーパー(2,293m)
交通
- JR鹿児島本線 玉名駅 バス21分 迫間下車 徒歩7分
- 普通(停車)
- 区間快速(門司港-八代)(停車)
- 快速(門司港-八代)(通過)
※急行等の停車駅情報について
急行等の停車駅に関するデータは、随時更新をしておりますが、最新の内容であることを保証するものではありません。
最新かつ正確な情報につきましては、各鉄道会社のウェブサイトにてご確認ください
物件周辺の口コミ
- 熊本県玉名市小野尻に住む人の口コミ50代男性
治安が良くて災害が少ないから でも年寄りが多くて子供が少ない 働ける場所が限られているし 企業も少ない 給料も安い
口コミを見る
この物件周辺に住む人の口コミ
口コミは、LIFULL HOME'Sが実際にこの物件の周辺に住む18歳~69歳の男女を対象に、WEBアンケート調査を実施しています。内容には回答者の主観的な表現が含まれる場合があるほか、事実と異なる場合もございます。ご了承ください。
- 熊本県玉名市小野尻に住む人の口コミ50代男性
- 治安が良くて災害が少ないから でも年寄りが多くて子供が少ない 働ける場所が限られているし 企業も少ない 給料も安い
- 熊本県玉名市中に住む人の口コミ30代女性
- スーパーが多い。飲食店が多い。その分、街灯が少ないので、少し路地に入るとちょっと暗いから夜道は怖い。車が多いので、狭い道でもスピードを出してる車が多いので、通学中の子供達とか心配になる。
- 熊本県玉名市築地に住む人の口コミ40代女性
- 熊本にも、福岡にも足を運びやすく、新幹線も開通し便利である。住みやすい街で、大型店舗が進出してくればもっと盛り上がると思います。
- 熊本県玉名市築地に住む人の口コミ30代女性
- 買い物の際は車で40分ほどの市まで行くことが多いがあまり負担に感じない距離なので不満はない。また市役所や体育館、他施設が集中しており、車も混まないためそう行ったところに用がある際はとても助かる。
- 熊本県玉名市中尾に住む人の口コミ40代女性
- 買い物するスーパーや病院には不自由ない。が、もっと大きいショッピングモールなんかが出来て欲しい。
- 熊本県玉名市岱明町野口に住む人の口コミ30代女性
- 子育てするにあたって、医療費は高校卒業まで無料、何かあると支援センターで何でも相談できる。
- 熊本県玉名市岱明町野口に住む人の口コミ40代男性
- 買い物などでは車がないと移動は難しいが、自然があり安全な水や空気があるから住みやすいから。また、町には小学校から大学まであり子どもの教育環境も整っているから。
- 熊本県玉名市中尾に住む人の口コミ40代男性
- 買い物がしやすいし、小・中・高校の学校が近くにあるし、病院は充実しているので生活しやすい町だと思います。
- 熊本県玉名市岱明町野口に住む人の口コミ50代女性
- 車が無いと買物(衣料品等)不便な点もあるが、夜は静かでスーパーも沢山あり、温泉もある。
- 熊本県玉名市岱明町野口に住む人の口コミ40代女性
- 近くにスーパーやファストフード店、100均、ホームセンター等生活していくうえで必要なものは大体揃う。温泉もあるし便利。
物件概要
- 建物構造
- 木造
- 駐車場
- 空有 3,300円(税込) 物件からの距離0m
- 総戸数
- 6戸
- 契約形態
- -
- 契約期間
- 2年間
- 更新料
- -
- その他費用
- 町会費:1,000円、クリーニング費:60,000円、24時間サポート(課税対象):330円
- 保証会社
加入要
保証会社:ハウスリーブ株式会社
保証会社利用料:契約時保証委託料:2.2万/月額保証委託料:賃料総額の2.2%又は5.5% ※ペット可は2.5万/2.5%
- 住宅保険
- 要
- 管理
- -
- LIFULL HOME'S
物件番号 - 3103497-0005733
- 自社管理番号
- apss97128359
- 取引態様
- 仲介
- 会社名
- アパマンショップ玉名店 株式会社やましょう不動産
- 電話でお問合せ(通話無料)
お問合せ先 :アパマンショップ玉名店 株式会社やましょう不動産
不動産会社情報
アパマンショップ玉名店 株式会社やましょう不動産

熊本県玉名市立願寺1392-1
JR鹿児島本線 玉名駅 徒歩30分
- 営業時間
- 09:00~18:00
- 定休日
- 毎週水曜日・GW・年末年始
優良店認定
専門スタッフが全力でお部屋探しをサポートいたします!
- 店舗の特徴
- 引越し業者紹介可
- 駐車場あり
- オンライン相談可
- 女性スタッフ対応可
電話でお問合せお客様の電話番号は不動産会社には通知されません
- 不動産会社に
つながります
お客様の電話番号は不動産会社に通知されません
- ※光IP電話、及びIP電話からはご利用になれません
- ※お電話によるお問合せは、店舗営業時間内にお願いします。つながらない場合は、お問合せフォームよりお問合せください
- ※不動産会社がお電話に出られなかった場合、お問合せいただいた後に不動産会社より折り返しのお電話がある場合がございます(お客様が非通知設定した場合は対象外です)
- ※株式会社LIFULLは電話会社が提供するサービスを介してお客様の発信者番号を受領後、折り返し専用の電話番号を発番してお問合せの不動産会社に通知します(お客様の発信者番号がお問合せの不動産会社に通知されることはございません)
- ※携帯電話からお問合せいただいた方に対し、株式会社LIFULLは電話会社が提供するメッセ―ジサービスを介してお客様の発信者番号を受領後、ショートメッセージ(SMS)またはLINE通知メッセージによるお問合せ内容に関する通知をお届けする場合があります
- ※お客様が通話中に不動産会社にお伝えになったお客様の個人情報及び、電話会社が発番する折り返し専用の電話番号は、お問合せ先不動産会社が資料送付・電子メール送信・電話連絡などの目的で保管する可能性があります。お問合せ先不動産会社が保管する個人情報の取扱いについては、各不動産会社に直接お問合せください
- ※株式会社LIFULLでは本サービスを円滑に運用するために、お客様の発信者番号をサービスご利用の控えとして一定期間保管いたします
- ※上記および株式会社LIFULLの個人情報の取扱い方針に同意のうえ、お電話ください
【LIFULL HOME'S物件番号】3103497-0005733【自社管理番号】apss97128359
初期費用・月額費用をあわせて確認!この物件に住んだときの費用めやす
めやすを見るこの物件に住んだときの費用めやす
- 初期費用
- 月額費用
- 追加費用※ご確認ください
追加で費用が
かかる場合があります
必ずご確認ください
初期費用めやす約0円
追加で費用がかかります(※)敷金
0
- 礼金
0
賃料+共益費・管理費の1ヶ月分として換算
賃料の1ヶ月分+税として換算。不動産会社によって金額が異なるため正確な金額は不動産会社にお問合せください
※追加費用もチェック!
これらの項目以外にも費用がかかる場合があります。正確な金額は不動産会社にお問合せください。
- 初期費用
- 鍵交換費:不動産会社に要確認
- 室内清掃費:不動産会社に要確認
- 火災保険費:不動産会社に要確認
- 月額費用
- 駐車場費:3,300円(税込)※契約任意
- その他
- 町会費:1000円
- クリーニング費:60000円
- 24時間サポート(課税対象):330円
- 保証会社
- 契約時保証委託料:2.2万/月額保証委託料:賃料総額の2.2%又は5.5% ※ペット可は2.5万/2.5%
不動産会社より
サンルームにお洗濯物が干せるので急な雨でも安心♪
[退去時費用 退去費用実費精算※故意・過失等別途実費] 更新事務手数料 22,000円、月額賃料等収納手数料170円がかかります。契約時にクリーニング費60,000円、鍵セット費3,300円(税込)が必要となります。貸主インボイス登録あり
- 保存する
- 共有する
- ※各種情報と現状に差異がある場合は、現状優先となります
- ※不動産会社が入力した情報を基に物件の位置を表示しています。詳しくは不動産会社までお問合せください
- ※不動産会社の方からの上記電話番号によるお問合せはお断りしております。こちら不動産会社詳細からお問合せください
- ※LIFULL HOME'Sは物件鮮度No.1を目指していきます。閲覧中の物件が「成約済である」「実際の物件情報と異なる点がある」などの場合、「掲載110番」からお問合せください
- ※QRコードは株式会社デンソーウェーブの登録商標です
したい暮らしのタグから探す
最近見た賃貸物件
LIFULL HOME'S 地図・周辺情報
買い物
- セブンイレブン KOYOくまもと県北病院店
- ホームセンターグッデイ 玉名店
- ディスカウントドラッグコスモス玉名大倉店
- セブンイレブン 玉名下店
- マルエイ岩崎店
グルメ
- ミスタードーナツ ゆめマート玉名ショップ
育児・教育
- 認定こども園たまきな幼稚園
- 玉名市立玉陵小学校
- 玉名市立玉陵中学校
- 玉名ゆりかご保育園
- 玉名市立玉名町小学校
医療
- 地方独立行政法人くまもと県北病院機構くまもと県北病院
- 医療法人悠紀会病院
公共施設・郵便局
- 玉名迫間郵便局
- 玉名市民図書館
- 玉名市役所
- 玉名温泉郵便局
- 玉名警察署
公園
- 桃田運動公園
- 蛇ケ谷公園
利用可能な駅
- 徒歩10分以内
JR鹿児島本線
- 玉名駅 バス21分 迫間下車徒歩7分
- その他交通
- JR九州新幹線 新玉名駅 徒歩14分
- 周辺情報は2023年07月21日時点のものになります。
- 周辺情報は、参考情報としてのみご利用ください(周辺情報は、株式会社LIFULLが地図情報の提供事業者から提供を受けた情報とLIFULL HOME'Sの物件情報に基づき、独自の方法で抽出し提供しているものです。周辺情報は、移転や閉鎖等により情報が最新ではない、または正しくない場合がありますが、地図情報の提供事業者から提供された情報をそのまま周辺情報として表示しているため、正確かつ最新の情報へ修正することができないことがあります。)
- 周辺情報は、株式会社LIFULLが掲載するものであり、不動産物件情報を掲載している不動産会社が掲載するものではありません
- 交通情報の一部については、株式会社LIFULLが掲載するものであり、不動産物件情報を掲載している不動産会社が掲載するものではない場合があります。交通情報に関する質問などは株式会社LIFULLにお問合せください
























































