LIFULL HOME'Sは物件鮮度No.1!※評価について
ハーモニーレジデンス門前仲町 12階/1203
12.4万円/管理費等15,000円
11時間前 更新
画像一覧
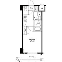
1/29間取り
洗面台独立
2/29外観
3/29外観
4/29外観
5/29リビング/ダイニング
洋室2
6/29室内
洋室7.3帖
7/29キッチン
2口ガスコンロ
8/29浴室
バスルーム
9/29トイレ
トイレ
10/29洗面
洗面所
11/29設備
室内洗濯機置場
12/29設備
TVモニター付インターホン
13/29設備
バルコニー
14/29設備
クローゼット
15/29玄関
シューズボックス
16/29エントランス
17/29その他
18/29その他
駐輪場
19/29その他
エレベーター
20/29その他
エアコン
21/29その他
モニター付きオートロック
22/29その他
ゴミ置場
23/29その他
バイク置場
24/29その他
宅配ボックス
25/29周辺
深川不動尊 1000m
26/29周辺
マルエツプチ 531m
27/29周辺
ローソン 45m
28/29周辺
くすりの福太郎 290m
29/29周辺
赤札堂 350m
間取り
外観
外観
外観
リビング/ダイニング
室内
キッチン
浴室
トイレ
洗面
設備
設備
設備
設備
玄関
エントランス
その他
その他
その他
その他
その他
その他
その他
その他
周辺
周辺
周辺
周辺
周辺
お問合せ先 :株式会社タウンハウジング東京 西葛西店
情報量ナンバーワンのタウンハウジング西葛西店にお任せ下さい!
物件のこだわり/設備・条件
新築(非該当)
2階以上の物件(該当)
南向き(非該当)
駐車場(非該当)
オートロック(該当)
エアコン(該当)
バス・トイレ別(該当)
追焚機能(非該当)
フローリング(該当)
ペット相談可(該当)
位置
眺望が良い入居条件
ペット相談、保証人不要、即入居可、外国籍フレンドリーキッチン/バス・トイレ
設備・サービス
オートロック、防犯カメラ、24時間有人管理、TVモニタ付インターホン、エアコン、クローゼット、シューズボックス、CATV、CS対応、BS対応、光ファイバー、公営水道、都市ガス、下水、フローリング、バルコニー、室内洗濯機置場、照明器具付き、24時間換気システム、タイル貼り、エレベーター、宅配ボックス、バイク置き場あり、駐輪場ありその他
初期費用カード決済可、分譲賃貸備考
江戸川区・江東区・市川市・浦安市 情報量ナンバーワン!東京メトロ東西線 都営新宿線 JR京葉線でのお部屋探しはタウンハウジング西葛西店にお任せ下さい!ステキなお部屋探しを全力でサポート致します!
物件周辺の生活情報
買い物
- コンビニ(45m)
- スーパー(531m)
- ドラッグストア(290m)
その他施設
- 深川不動尊(1,000m)
交通
- 東京メトロ東西線 門前仲町駅 徒歩6分
- 普通(停車)
- 快速(停車)
- 通勤快速(停車)
- JR京葉線 越中島駅 徒歩14分
- 普通(停車)
- 快速(通過)
- 通勤快速(通過)
※急行等の停車駅情報について
急行等の停車駅に関するデータは、随時更新をしておりますが、最新の内容であることを保証するものではありません。
最新かつ正確な情報につきましては、各鉄道会社のウェブサイトにてご確認ください
物件周辺の口コミ
- 東京都中央区日本橋中洲に住む人の口コミ30代男性
子育てしやすく、治安が良い。生活用品も調達しやすく、交通網も大きな不便は感じない。ただ、物価が高いのが難点
口コミを見る
この物件周辺に住む人の口コミ
口コミは、LIFULL HOME'Sが実際にこの物件の周辺に住む18歳~69歳の男女を対象に、WEBアンケート調査を実施しています。内容には回答者の主観的な表現が含まれる場合があるほか、事実と異なる場合もございます。ご了承ください。
- 東京都中央区日本橋中洲に住む人の口コミ30代男性
- 子育てしやすく、治安が良い。生活用品も調達しやすく、交通網も大きな不便は感じない。ただ、物価が高いのが難点
- 東京都江東区三好に住む人の口コミ20代女性
- 都心へのアクセスは抜群なのに、緑が多いところ。治安がよいところ。
- 東京都江東区深川に住む人の口コミ20代女性
- 買い物をする場所やクリーニング、病院、飲食店などに困らないが、栄えすぎているわけでもないので落ち着いた生活ができる。
- 東京都江東区越中島に住む人の口コミ30代女性
- 自転車を使えば近くに昔ながらの街並みもあり、ショッピングモールなどもある。
- 東京都江東区三好に住む人の口コミ20代女性
- 閑静できれいな街並み、治安の良さ、交通の便からとても満足しています!
- 東京都江東区三好に住む人の口コミ30代女性
- カフェなども多く、休日の散歩は困らないところ、友達を読んでも楽しめる街なので満足しているが、大型店や商業施設がやや欠ける
- 東京都江東区清澄に住む人の口コミ20代女性
- モダンな感じと古い下町の感じが両方あってすごく好き。最近も色々お店ができてきてコロナで電車を避けている私からすると近場で歩いてるだけで色々新しいお店やカフェとであえる。
- 東京都中央区日本橋中洲に住む人の口コミ30代男性
- ・3路線が走っていてアクセスが良い・東京駅が近い+空港まで直通バスが出ており出張に便利・スーパー・クリーニング屋・ジムが多い・老舗と新しいお店が程よく混在している
- 東京都江東区深川に住む人の口コミ30代女性
- 交通機関の利便性がよく、困らないから。歩いて行ける距離に主要な場所(銀座、豊洲、日本橋など)かあるので、散歩がてら遊びに行ける。
- 東京都江東区清澄に住む人の口コミ30代女性
- 交通の便が良い。また、夜遅く帰っても外食できる環境があり、便利。
物件概要
- 建物構造
- RC(鉄筋コンクリート)
- 駐車場
- 近隣 38,500円(税込) 物件からの距離400m
- 総戸数
- 64戸
- 契約形態
- -
- 契約期間
- 2年間
- 更新料
- 新賃料の1ヶ月分
- その他費用
- 鍵交換費用:33,000円
- 保証会社
加入要
保証会社:その他
保証会社利用料:保証人あり:初回契約時、総賃料50%/保証人なし:初回契約時、総賃料30%
- 住宅保険
- 要
- 管理
- 管理員:巡回
- LIFULL HOME'S
物件番号 - 0136505-0159523
- 自社管理番号
- R00512-143806
- 取引態様
- 仲介
- 会社名
- 株式会社タウンハウジング東京 西葛西店
- 電話でお問合せ(通話無料)
お問合せ先 :株式会社タウンハウジング東京 西葛西店
不動産会社情報
株式会社タウンハウジング東京 西葛西店
東京都江戸川区西葛西5丁目6-8 LunaetSoleil�-1F
東京メトロ東西線 西葛西駅 徒歩2分
- 営業時間
- 10:00~19:00
- 定休日
- 毎週水曜日
電話でお問合せお客様の電話番号は不動産会社には通知されません
- 不動産会社に
つながります
お客様の電話番号は不動産会社に通知されません
- ※光IP電話、及びIP電話からはご利用になれません
- ※お電話によるお問合せは、店舗営業時間内にお願いします。つながらない場合は、お問合せフォームよりお問合せください
- ※不動産会社がお電話に出られなかった場合、お問合せいただいた後に不動産会社より折り返しのお電話がある場合がございます(お客様が非通知設定した場合は対象外です)
- ※株式会社LIFULLは電話会社が提供するサービスを介してお客様の発信者番号を受領後、折り返し専用の電話番号を発番してお問合せの不動産会社に通知します(お客様の発信者番号がお問合せの不動産会社に通知されることはございません)
- ※携帯電話からお問合せいただいた方に対し、株式会社LIFULLは電話会社が提供するメッセ―ジサービスを介してお客様の発信者番号を受領後、ショートメッセージ(SMS)またはLINE通知メッセージによるお問合せ内容に関する通知をお届けする場合があります
- ※お客様が通話中に不動産会社にお伝えになったお客様の個人情報及び、電話会社が発番する折り返し専用の電話番号は、お問合せ先不動産会社が資料送付・電子メール送信・電話連絡などの目的で保管する可能性があります。お問合せ先不動産会社が保管する個人情報の取扱いについては、各不動産会社に直接お問合せください
- ※株式会社LIFULLでは本サービスを円滑に運用するために、お客様の発信者番号をサービスご利用の控えとして一定期間保管いたします
- ※上記および株式会社LIFULLの個人情報の取扱い方針に同意のうえ、お電話ください
【LIFULL HOME'S物件番号】0136505-0159523【自社管理番号】R00512-143806
オンライン対応
オンライン内見・オンライン相談・IT重説に対応している物件です

「オンライン内見」「オンライン相談」「IT重説」とは?
物件の内見や不動産会社スタッフとの相談、契約前の重要事項説明をオンライン(ビデオ通話)で行うことができるサービスです。
オンライン内見
ビデオ通話で現地(物件)にいる不動産会社スタッフと映像・音声を使ってリアルタイムで会話しながら内見ができます。
オンライン相談
「物件について聞きたいことがある」など不動産会社スタッフへの相談もビデオ通話で行うことができます。
IT重説
契約前の重要事項説明(重説)をビデオ通話で行うことができます。
利用時の注意事項
- ビデオ通話については各不動産会社指定のものとなります。
- ビデオ通話利用時には通信が発生します。従量課金制通信サービスや通信量に上限があるネット回線・プランを利用する場合は、通信量にご注意ください。
- 通信速度やアプリの設定によってはビデオ通話の画質が低下することがあります。安定した画質で利用するためにも、Wi-Fi環境下での利用を推奨します。
- ご利用のビデオ通話アプリによっては、対象のOSやブラウザに制限がある場合があります。詳しくはお問合せ先不動産会社にご確認ください。
初期費用・月額費用をあわせて確認!この物件に住んだときの費用めやす
めやすを見るこの物件に住んだときの費用めやす
- 初期費用
- 月額費用
- 追加費用※ご確認ください
追加で費用が
かかる場合があります
必ずご確認ください
初期費用めやす約0円
追加で費用がかかります(※)敷金
0
- 礼金
0
- 保証金
124,000
賃料+共益費・管理費の1ヶ月分として換算
賃料の1ヶ月分+税として換算。不動産会社によって金額が異なるため正確な金額は不動産会社にお問合せください
※追加費用もチェック!
これらの項目以外にも費用がかかる場合があります。正確な金額は不動産会社にお問合せください。
- 初期費用
- 鍵交換費:33,000円
- 室内清掃費:不動産会社に要確認
- 火災保険費:不動産会社に要確認
- 月額費用
- 駐車場費:38,500円(税込)※近隣
- 保証会社
- 保証人あり:初回契約時、総賃料50%/保証人なし:初回契約時、総賃料30%
不動産会社より
情報量ナンバーワンのタウンハウジング西葛西店にお任せ下さい!
江戸川区・江東区・市川市・浦安市 情報量ナンバーワン!東京メトロ東西線 都営新宿線 JR京葉線でのお部屋探しはタウンハウジング西葛西店にお任せ下さい!ステキなお部屋探しを全力でサポート致します!
- 保存する
- 共有する
- ※各種情報と現状に差異がある場合は、現状優先となります
- ※不動産会社が入力した情報を基に物件の位置を表示しています。詳しくは不動産会社までお問合せください
- ※不動産会社の方からの上記電話番号によるお問合せはお断りしております。こちら不動産会社詳細からお問合せください
- ※LIFULL HOME'Sは物件鮮度No.1を目指していきます。閲覧中の物件が「成約済である」「実際の物件情報と異なる点がある」などの場合、「掲載110番」からお問合せください
- ※QRコードは株式会社デンソーウェーブの登録商標です
したい暮らしのタグから探す
LIFULL HOME'S 地図・周辺情報
買い物
- ローソン 永代橋店
- まいばすけっと江東佐賀2丁目店
- くすりの福太郎門前仲町店
- セブンイレブン 江東佐賀1丁目店
- マルエツプチ 新川一丁目店
グルメ
- らあめん花月嵐門前仲町店
- 大阪王将門前仲町店
- 松屋 門前仲町店
- 中華食堂日高屋門前仲町店
- 天下一門前仲町店
育児・教育
- 小鳩保育園永代
- 江東区立臨海小学校
- 中央区立佃中学校
- ハッピーマム福住
- 江東区立明治小学校
医療
- 石川島記念病院
- (財)聖路加国際病院
- 医療法人社団修世会木場病院
- 医社)青藍会鈴木病院
- 独立行政法人国立がん研究センター中央病院
公共施設・郵便局
- 江東永代郵便局
- 江東区立深川図書館
- 中央警察署
- 江東牡丹一郵便局
- 江東区立古石場図書館
公園
- 越中島公園
- 深川公園
- 石川島公園
- 中の島公園
- 古石場川親水公園
利用可能な駅
- 徒歩10分以内
東京メトロ東西線
- 門前仲町駅徒歩6分
- すべての駅
JR京葉線
- 越中島駅徒歩14分
- 八丁堀駅徒歩17分
東京メトロ日比谷線
- 茅場町駅徒歩15分
- 人形町駅徒歩24分
- 築地駅徒歩28分
- 小伝馬町駅徒歩31分
- 東銀座駅徒歩34分
東京メトロ半蔵門線
- 水天宮前駅徒歩17分
- 清澄白河駅徒歩24分
東京メトロ有楽町線
- 月島駅徒歩20分
- 新富町駅徒歩26分
- 銀座一丁目駅徒歩30分
- 豊洲駅3.2km
東京メトロ銀座線
- 日本橋駅徒歩22分
- 京橋駅徒歩27分
- 三越前駅徒歩28分
- 銀座駅徒歩36分
東京メトロ東西線
- 木場駅徒歩22分
都営浅草線
- 宝町駅徒歩25分
- 東日本橋駅徒歩33分
都営新宿線
- 浜町駅徒歩26分
- 森下駅徒歩28分
- 馬喰横山駅徒歩33分
- 菊川駅徒歩37分
JR東海道本線
- 東京駅徒歩31分
都営大江戸線
- 勝どき駅徒歩31分
- 築地市場駅徒歩37分
JR総武本線
- 新日本橋駅徒歩33分
- 馬喰町駅徒歩34分
- 周辺情報は2023年07月21日時点のものになります。
- 周辺情報は、参考情報としてのみご利用ください(周辺情報は、株式会社LIFULLが地図情報の提供事業者から提供を受けた情報とLIFULL HOME'Sの物件情報に基づき、独自の方法で抽出し提供しているものです。周辺情報は、移転や閉鎖等により情報が最新ではない、または正しくない場合がありますが、地図情報の提供事業者から提供された情報をそのまま周辺情報として表示しているため、正確かつ最新の情報へ修正することができないことがあります。)
- 周辺情報は、株式会社LIFULLが掲載するものであり、不動産物件情報を掲載している不動産会社が掲載するものではありません
- 交通情報の一部については、株式会社LIFULLが掲載するものであり、不動産物件情報を掲載している不動産会社が掲載するものではない場合があります。交通情報に関する質問などは株式会社LIFULLにお問合せください









