LIFULL HOME'Sは物件鮮度No.1!※評価について
京都市営烏丸線 四条駅 徒歩8分
17万円/管理費等29,600円
3時間前 更新
画像一覧
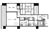
1/30間取り
2/30外観
3/30外観
4/30リビング/ダイニング
居室
5/30リビング/ダイニング
居室
6/30室内
洋室
7/30寝室
洋室
8/30寝室
洋室
9/30寝室
和室
10/30子供部屋
洋室
11/30キッチン
キッチン
12/30キッチン
シンク
13/30浴室
風呂
14/30浴室
風呂
15/30トイレ
トイレ
16/30洗面
洗面所
17/30収納
収納
18/30設備
下駄箱
19/30設備
冷蔵庫置場
20/30設備
洗濯機置場
21/30玄関
玄関
22/30バルコニー
ベランダ
23/30エントランス
エントランス
24/30駐車場
駐車場
25/30その他
廊下
26/30その他
眺望
27/30その他
エアコン
28/30その他
TVモニターフォン
29/30その他
インターフォン
30/30周辺
フレスコ 烏丸店まで500メートル
間取り
外観
外観
リビング/ダイニング
リビング/ダイニング
室内
寝室
寝室
寝室
子供部屋
キッチン
キッチン
浴室
浴室
トイレ
洗面
収納
設備
設備
設備
玄関
バルコニー
エントランス
駐車場
その他
その他
その他
その他
その他
周辺
お問合せ先 :株式会社エリッツ 深草店
住まい探し特典内容
電気・ガス・インターネットの手続き代行のご案内します。
- 利用条件
- 株式会社エリッツ 深草店で利用可
- 他特典との併用可
利用方法
来店時に本特典の画面をスマートフォンやタブレットでスタッフに提示、または画面印刷した用紙を提示ください。
有効期限 なし
【阪急電鉄京都線河原町駅 徒歩9分】分譲賃貸です。--パノラマ掲載--
基本情報
不動産用語- 賃料
- 17万円
- 管理費等
- 29,600円
初期費用などお気軽にお問合せください
- 敷金/礼金
- 1ヶ月/1ヶ月
- 保証金/敷引・償却金
- -/-
- 交通
京都市営烏丸線 四条駅 徒歩8分
阪急京都本線 京都河原町駅 徒歩9分
京阪本線 祇園四条駅 徒歩12分
- 所在地
京都府京都市中京区柳馬場通錦小路上る十文字町
地図を見る- 築年月
- 1990年12月(築35年)
- 主要採光面
- 西
- 専有面積
- 77.85㎡
- バルコニー面積
- -
- 所在階/階数
- 4階/10階建
- 現況
- 空家
- 入居可能時期
- 即時

人気物件はすぐに埋まってしまいます。
気になったらお早めにお問合せください。
- 情報公開日
2025/02/02
294日前 公開
- 情報更新日
2025/11/23
3時間前 更新
- 次回更新
予定日 - 2025/11/29
物件のこだわり/設備・条件
新築(非該当)
2階以上の物件(該当)
南向き(非該当)
駐車場あり(該当)
オートロック(該当)
エアコン(該当)
バス・トイレ別(該当)
追焚機能(非該当)
フローリング(該当)
ペット相談(非該当)
位置
角部屋入居条件
二人入居可、即入居可キッチン/バス・トイレ
設備・サービス
オートロック、防犯カメラ、TVモニタ付インターホン、エアコン、クローゼット、シューズボックス、BS対応、光ファイバー、公営水道、下水、オール電化、フローリング、バルコニー、室内洗濯機置場、エレベーター、ゴミ出し24時間OK、駐車場あり、バイク置き場あり、駐輪場ありその他
初期費用カード決済可、分譲賃貸、住まい探し特典あり備考
【京都地下鉄烏丸線 四条 徒歩8分】【お風呂トイレセパレート、独立洗面台、室内洗濯機、3口コンロキッチン、フローリング、モニターホン、角部屋、エレベーター、オートロック】お買い物にも便利なエリアです。・光ファイバーインターネット接続可・ピッキング対策錠MUL-T-LOCK設置 ハウスクリーニング110000円(退去時)
物件周辺の生活情報
学校
- 高倉小学校(350m)
- 御池中学校(700m)
買い物
- コンビニ(400m)
- スーパー(500m)
交通
- 京都市営烏丸線 四条駅 徒歩8分
- 普通(停車)
- 急行(停車)
- 阪急京都本線 京都河原町駅 徒歩9分
- 普通(停車)
- 準急(停車)
- 堺筋準急(停車)
- 通勤特急(停車)
- 特急(停車)
- 急行(停車)
- 準特急(停車)
※急行等の停車駅情報について
急行等の停車駅に関するデータは、随時更新をしておりますが、最新の内容であることを保証するものではありません。
最新かつ正確な情報につきましては、各鉄道会社のウェブサイトにてご確認ください
物件周辺の口コミ
- 京都府京都市下京区綾小路通新町西入下るに住む人の口コミ30代女性
交通の便が良いところと買い物をしやすい点。ただ、郊外にあるような大きな総合スーパーがないのは不便。
口コミを見る
この物件周辺に住む人の口コミ
口コミは、LIFULL HOME'Sが実際にこの物件の周辺に住む18歳~69歳の男女を対象に、WEBアンケート調査を実施しています。内容には回答者の主観的な表現が含まれる場合があるほか、事実と異なる場合もございます。ご了承ください。
- 京都府京都市下京区綾小路通新町西入下るに住む人の口コミ30代女性
- 交通の便が良いところと買い物をしやすい点。ただ、郊外にあるような大きな総合スーパーがないのは不便。
- 京都府京都市中京区錦小路通西洞院西入に住む人の口コミ40代女性
- 商業地なので、飲食店、コンビニ、百貨店、何でもあるし、交通の便も良い。だが観光地でもあるため、通勤時間に観光者とはちあわすことも多く、とても混雑している。
- 京都府京都市下京区河原町通高辻下るに住む人の口コミ60代男性
- 便利で住むには十分な条件が揃っている。家を出ると少し歩いただけで見るものがある。
- 京都府京都市中京区三条通油小路下るに住む人の口コミ50代女性
- 生活する上で便利がよく、安心安全に暮らせる。特に困ることがない。
- 京都府京都市下京区西洞院通高辻下る東入に住む人の口コミ40代男性
- 夜は静かで過ごしやすい、治安がいい。ですが旅行客が増えると騒がしく、スーパーも値下げをしなくなる。
- 京都府京都市下京区黒門通綾小路下るに住む人の口コミ30代女性
- 生活に不便な点が少ない。スーパー銭湯が近くにあれば良い。子育てには、やや難あり。
- 京都府京都市中京区堀川通錦小路下るに住む人の口コミ50代女性
- バス、地下鉄、電車が徒歩圏内で利用しやすいです。幹線道路から1本それた住宅地では騒音、排気ガスが減り掃除も楽になります。百貨店、有名ブランド店が徒歩圏内で歩いてかいにいけるのも非常に良い点です。
- 京都府京都市中京区錦小路通堀川東入に住む人の口コミ30代女性
- 近くにスーパーもコンビニも充実しているが、観光客や修学旅行生が多く、大通りはだいたい混んでいるから。
- 京都府京都市中京区堺町通三条上るに住む人の口コミ50代女性
- 生活、医療、交通の便がよく、歳を重ねても便利で快適に暮らせる街だから
- 京都府京都市中京区錦小路通室町東入に住む人の口コミ30代女性
- 交通の便がよくお店、病院など不自由しない点と治安も悪くなく安心して暮らせる
物件概要
- 建物構造
- SRC(鉄骨鉄筋コンクリート)
- 駐車場
- 空有 38,500円(税無)
- 総戸数
- 20戸
- 契約形態
- -
- 契約期間
- 2年間
- 更新料
- 200,000円
- その他費用
- 電子契約手数料(初回):11,000円、ベルヴィクラブ(初回):38,500円、その他(初回):1,100円
- 保証会社
加入要
保証会社利用料:114、800円
- 住宅保険
- 要
- 管理
- -
- LIFULL HOME'S
物件番号 - 0110592-0273155
- 自社管理番号
- 49055-0401
- 取引態様
- 仲介
- 会社名
- 株式会社エリッツ 深草店
営業スタッフコメント

株式会社エリッツ 深草店
大貝
龍谷大学周辺の他、近隣エリアもお任せください!
業界経験1年
- スタッフ情報
- 龍谷大学生様・伏見区のお部屋探しは賃貸のエリッツ深草店にお任せ下さい。賃貸のエリッツ深草店は、伏見区の賃貸物件を豊富に取り揃えております。龍谷大学の正面にあり、龍谷大学周辺の賃貸物件の取り扱い数は地域ナンバーワン。龍谷大学から徒歩1分なので、大学の授業の合間や授業終わりでもすぐに賃貸物件のご案内に行けますよ。もちろん龍谷大学の学生様以外にも、社会人の一人暮らしや、新婚、ご家族の方向けの賃貸物件もご紹介できます。伏見区深草エリアは、京阪・JR・地下鉄・近鉄と様々な沿線があり、商業施設も充実して、生活がとっても便利です。新婚様・ファミリー様にもオススメです。賃貸のエリッツ深草店には、龍大OBや伏見区で生まれ育ったスタッフが在籍しております。伏見区はもちろん、京都市内どのエリアでもお探しさせて頂きます。お部屋探し以外のことでもぜひご相談ください。ご来店スタッフ一同心よりお待ちしております。
龍谷大学生様・伏見区のお部屋探しは賃貸のエリッツ深草店にお任せ下さい。賃貸のエリッツ深草店は、伏見区の賃貸物件を豊富に取り揃えております。龍谷大学の正面にあり、龍谷大学周辺の賃貸物件の取り扱い数は地域ナンバーワン。龍谷大学から徒歩1分なので、大学の授業の合間や授業終わりでもすぐに賃貸物件のご案内に行けますよ。もちろん龍谷大学の学生様以外にも、社会人の一人暮らしや、新婚、ご家族の方向けの賃貸物件もご紹介できます。伏見区深草エリアは、京阪・JR・地下鉄・近鉄と様々な沿線があり、商業施設も充実して、生活がとっても便利です。新婚様・ファミリー様にもオススメです。賃貸のエリッツ深草店には、龍大OBや伏見区で生まれ育ったスタッフが在籍しております。伏見区はもちろん、京都市内どのエリアでもお探しさせて頂きます。お部屋探し以外のことでもぜひご相談ください。ご来店スタッフ一同心よりお待ちしております。
- 電話でお問合せ(通話無料)
お問合せ先 :株式会社エリッツ 深草店
不動産会社情報
株式会社エリッツ 深草店賃貸のエリッツ深草店

京都府京都市伏見区深草西浦町4丁目31番地
京阪本線 龍谷大前深草駅 徒歩5分
- 営業時間
- 10:00~19:00
- 定休日
- 水曜日(祝日を除く)、年末年始 ※部屋探しのお問い合わせは無休
優良店認定
伏見区のお部屋探しはエリッツ深草店へ。龍谷大学生様のお部屋探しは物件数NO,1のエリッツにお任せ下さい。新婚様向け物件も多数ございます。日本語学校の留学生も歓迎します。
- 店舗の特徴
- 引越し業者紹介可
- バリアフリー
- 社宅・寮物件取扱い
- オンライン相談可
- 保証人不要な物件あり
- 法人契約取扱い
電話でお問合せお客様の電話番号は不動産会社には通知されません
- 不動産会社に
つながります
お客様の電話番号は不動産会社に通知されません
- ※光IP電話、及びIP電話からはご利用になれません
- ※お電話によるお問合せは、店舗営業時間内にお願いします。つながらない場合は、お問合せフォームよりお問合せください
- ※不動産会社がお電話に出られなかった場合、お問合せいただいた後に不動産会社より折り返しのお電話がある場合がございます(お客様が非通知設定した場合は対象外です)
- ※株式会社LIFULLは電話会社が提供するサービスを介してお客様の発信者番号を受領後、折り返し専用の電話番号を発番してお問合せの不動産会社に通知します(お客様の発信者番号がお問合せの不動産会社に通知されることはございません)
- ※携帯電話からお問合せいただいた方に対し、株式会社LIFULLは電話会社が提供するメッセ―ジサービスを介してお客様の発信者番号を受領後、ショートメッセージ(SMS)またはLINE通知メッセージによるお問合せ内容に関する通知をお届けする場合があります
- ※お客様が通話中に不動産会社にお伝えになったお客様の個人情報及び、電話会社が発番する折り返し専用の電話番号は、お問合せ先不動産会社が資料送付・電子メール送信・電話連絡などの目的で保管する可能性があります。お問合せ先不動産会社が保管する個人情報の取扱いについては、各不動産会社に直接お問合せください
- ※株式会社LIFULLでは本サービスを円滑に運用するために、お客様の発信者番号をサービスご利用の控えとして一定期間保管いたします
- ※上記および株式会社LIFULLの個人情報の取扱い方針に同意のうえ、お電話ください
【LIFULL HOME'S物件番号】0110592-0273155【自社管理番号】49055-0401
オンライン対応
オンライン内見・オンライン相談・IT重説に対応している物件です

「オンライン内見」「オンライン相談」「IT重説」とは?
物件の内見や不動産会社スタッフとの相談、契約前の重要事項説明をオンライン(ビデオ通話)で行うことができるサービスです。
オンライン内見
ビデオ通話で現地(物件)にいる不動産会社スタッフと映像・音声を使ってリアルタイムで会話しながら内見ができます。
オンライン相談
「物件について聞きたいことがある」など不動産会社スタッフへの相談もビデオ通話で行うことができます。
IT重説
契約前の重要事項説明(重説)をビデオ通話で行うことができます。
利用時の注意事項
- ビデオ通話については各不動産会社指定のものとなります。
- ビデオ通話利用時には通信が発生します。従量課金制通信サービスや通信量に上限があるネット回線・プランを利用する場合は、通信量にご注意ください。
- 通信速度やアプリの設定によってはビデオ通話の画質が低下することがあります。安定した画質で利用するためにも、Wi-Fi環境下での利用を推奨します。
- ご利用のビデオ通話アプリによっては、対象のOSやブラウザに制限がある場合があります。詳しくはお問合せ先不動産会社にご確認ください。
初期費用・月額費用をあわせて確認!この物件に住んだときの費用めやす
めやすを見るこの物件に住んだときの費用めやす
- 初期費用
- 月額費用
- 追加費用※ご確認ください
追加で費用が
かかる場合があります
必ずご確認ください
初期費用めやす約0円
追加で費用がかかります(※)敷金
170,000
- 礼金
170,000
賃料+共益費・管理費の1ヶ月分として換算
賃料の1ヶ月分+税として換算。不動産会社によって金額が異なるため正確な金額は不動産会社にお問合せください
※追加費用もチェック!
これらの項目以外にも費用がかかる場合があります。正確な金額は不動産会社にお問合せください。
- 初期費用
- 鍵交換費:不動産会社に要確認
- 室内清掃費:不動産会社に要確認
- 火災保険費:不動産会社に要確認
- 月額費用
- 駐車場費:38,500円※契約任意
- その他
- 電子契約手数料(初回):11000円
- ベルヴィクラブ(初回):38500円
- その他(初回):1100円
- 保証会社
- 114、800円
不動産会社より
【阪急電鉄京都線河原町駅 徒歩9分】分譲賃貸です。--パノラマ掲載--
【京都地下鉄烏丸線 四条 徒歩8分】【お風呂トイレセパレート、独立洗面台、室内洗濯機、3口コンロキッチン、フローリング、モニターホン、角部屋、エレベーター、オートロック】お買い物にも便利なエリアです。・光ファイバーインターネット接続可・ピッキング対策錠MUL-T-LOCK設置 ハウスクリーニング110000円(退去時)
- 保存する
- 共有する
- ※各種情報と現状に差異がある場合は、現状優先となります
- ※不動産会社が入力した情報を基に物件の位置を表示しています。詳しくは不動産会社までお問合せください
- ※不動産会社の方からの上記電話番号によるお問合せはお断りしております。こちら不動産会社詳細からお問合せください
- ※LIFULL HOME'Sは物件鮮度No.1を目指していきます。閲覧中の物件が「成約済である」「実際の物件情報と異なる点がある」などの場合、「掲載110番」からお問合せください
- ※QRコードは株式会社デンソーウェーブの登録商標です
この物件を取扱う他の会社
LIFULL HOME'Sでは、主要項目が同一の物件をまとめて表示しています。所在地や営業時間、掲載画像等から不動産会社を選んでお問合せください。
株式会社エリッツ 西院店
優良店認定
京都府京都市右京区西院巽町37−1 TAKE7 1F
阪急京都本線 西院駅 徒歩2分
- 営業時間
- 10:00~19:00
- 定休日
- 年中無休(年末年始を除く)
株式会社エリッツ 七条京阪店
優良店認定
京都府京都市東山区本町6丁目1−5 藤本ビル1F
京阪本線 七条駅 徒歩2分
- 営業時間
- 10:00~19:00
- 定休日
- 水曜日(祝日を除く)、年末年始 ※部屋探しのお問い合わせは無休
最近見た賃貸物件
LIFULL HOME'S 地図・周辺情報
買い物
- ローソン ドラッグひかり蛸薬師高倉店
- ダイソー京都四条通店
- サンドラッグ錦店
- ローソンストア100 六角柳馬場店
- Can★Do寺町店
グルメ
- 小川珈琲堺町錦店
- ケンタッキーフライドチキン 烏丸錦小路店
- 大戸屋 ごはん処京都錦小路店
- スターバックスコーヒー京都四条通ヤサカビル店
- ドトールコーヒーショップ京都四条通り北店
育児・教育
- YMCA三条保育園
- 京都市立高倉小学校
- 京都市立洛風中学校
- 永興開智こども園
- 京都市立洛央小学校
医療
- 医療法人知音会京都新町病院
- 医療法人財団足立病院
- 山元病院
- 医療法人毛利病院
- 京都第二赤十字病院
公共施設・郵便局
- 京都東洞院錦郵便局
- 京都市下京図書館
- 京都府下京警察署
- 京都四条柳馬場郵便局
- 京都市こどもみらい館子育て図書館
公園
- 梅屋広場公園
- 円山公園
- 円山公園
- 岡崎公園
- 京都御苑
利用可能な駅
- 徒歩10分以内
京都市営烏丸線
- 四条駅徒歩8分
阪急京都本線
- 京都河原町駅徒歩9分
- その他交通
- 京阪本線 祇園四条駅 徒歩12分
- 周辺情報は2023年07月21日時点のものになります。
- 周辺情報は、参考情報としてのみご利用ください(周辺情報は、株式会社LIFULLが地図情報の提供事業者から提供を受けた情報とLIFULL HOME'Sの物件情報に基づき、独自の方法で抽出し提供しているものです。周辺情報は、移転や閉鎖等により情報が最新ではない、または正しくない場合がありますが、地図情報の提供事業者から提供された情報をそのまま周辺情報として表示しているため、正確かつ最新の情報へ修正することができないことがあります。)
- 周辺情報は、株式会社LIFULLが掲載するものであり、不動産物件情報を掲載している不動産会社が掲載するものではありません
- 交通情報の一部については、株式会社LIFULLが掲載するものであり、不動産物件情報を掲載している不動産会社が掲載するものではない場合があります。交通情報に関する質問などは株式会社LIFULLにお問合せください
















































