LIFULL HOME'Sは物件鮮度No.1!※評価について
物件概要
- お問合せ状況
- 現在この物件はお問合せできません
- 交通
JR函館本線 稲積公園駅 徒歩17分
バス 富丘下車 徒歩4分
- 所在地
北海道札幌市手稲区富丘四条4丁目
地図を見る- 築年月
- 1990年8月(築36年)
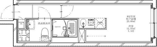
- 間取り
- 2LDK
- 専有面積
- 57㎡
- 所在階/階数
- 2階/2階建
- 建物構造
- 木造
- 総戸数
- 6戸
物件のこだわり/設備・条件
新築(非該当)
2階以上の物件(該当)
南向き(非該当)
駐車場あり(該当)
オートロック(非該当)
エアコン(非該当)
バス・トイレ別(該当)
追焚機能(非該当)
フローリング(該当)
ペット相談可(該当)
入居条件
二人入居可、ペット可、ルームシェア不可キッチン/バス・トイレ
給湯、専用バス、専用トイレ、バス・トイレ別、シャワー、シャワー付洗面化粧台、洗面所独立設備・サービス
石油暖房、クローゼット、シューズボックス、インターネット対応、公営水道、プロパンガス、下水、フローリング、バルコニー、室内洗濯機置場、耐震構造(新耐震基準適合)、駐車場あり
物件周辺の生活情報
学校
- 手稲中央小学校(1,120m)
- 手稲中学校(400m)
買い物
- コンビニ(305m)
- スーパー(1,045m)
その他施設
- 総合病院(783m)
交通
- JR函館本線 稲積公園駅 徒歩17分
- 普通(停車)
- 快速はこだてライナー(通過)
- 快速エアポート(通過)
- ニセコライナー(通過)
- ホームライナー(通過)
※急行等の停車駅情報について
急行等の停車駅に関するデータは、随時更新をしておりますが、最新の内容であることを保証するものではありません。
最新かつ正確な情報につきましては、各鉄道会社のウェブサイトにてご確認ください
LIFULL HOME'S 地図・周辺情報
買い物
- セブンイレブン 札幌富丘3条3丁目店
- スーパービバホーム 手稲富丘店
- ツルハドラッグ手稲富丘店
- セブンイレブン 札幌富丘1条店
- スーパーアークス 宮の沢店
グルメ
- COCO’S 富丘店
- からやま手稲富丘店
- ドトールコーヒーショップスーパービバホーム手稲富丘店
- びっくりドンキー 手稲富丘店
- 丸亀製麺西宮の沢店
育児・教育
- 富丘バオバブ保育園
- 札幌市立西宮の沢小学校
- 札幌市立手稲中学校
- 富丘つくし保育園
- 札幌市立富丘小学校
医療
- 医療法人タナカメディカル札幌田中病院
- 医療法人札幌緑誠病院
- 医療法人札幌宮の沢病院
- 医療法人札幌グリーン病院
- 医療法人社団アルデバラン手稲いなづみ病院
公共施設・郵便局
- 手稲富丘郵便局
- 札幌市新発寒地区センター図書室
- 手稲警察署
- 手稲本町郵便局
- 札幌市曙図書館
公園
- 富丘南公園
- 富丘西公園
- 富丘三樽別公園
- 富丘東公園
- 宮の沢公園
利用可能な駅
- 徒歩10分以内
バス
- 富丘下車徒歩4分
- すべての駅
JR函館本線
- 稲積公園駅徒歩17分
- 周辺情報は2023年07月21日時点のものになります。
- 周辺情報は、参考情報としてのみご利用ください(周辺情報は、株式会社LIFULLが地図情報の提供事業者から提供を受けた情報とLIFULL HOME'Sの物件情報に基づき、独自の方法で抽出し提供しているものです。周辺情報は、移転や閉鎖等により情報が最新ではない、または正しくない場合がありますが、地図情報の提供事業者から提供された情報をそのまま周辺情報として表示しているため、正確かつ最新の情報へ修正することができないことがあります。)
- 周辺情報は、株式会社LIFULLが掲載するものであり、不動産物件情報を掲載している不動産会社が掲載するものではありません
- 交通情報の一部については、株式会社LIFULLが掲載するものであり、不動産物件情報を掲載している不動産会社が掲載するものではない場合があります。交通情報に関する質問などは株式会社LIFULLにお問合せください











































