LIFULL HOME'Sは物件鮮度No.1!※評価について
ヴェルビュ二条城東 3階/307
13.5万円/管理費等7,000円
20時間前 更新
画像一覧
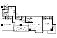
1/27間取り
2/27外観
3/27外観
4/27外観
5/27リビング/ダイニング
6/27リビング/ダイニング
7/27室内
8/27寝室
9/27寝室
10/27キッチン
11/27キッチン
12/27浴室
13/27浴室
14/27トイレ
15/27洗面
16/27収納
17/27設備
18/27玄関
19/27バルコニー
20/27エントランス
21/27エントランス
22/27その他
23/27その他
24/27その他
25/27その他
26/27その他
27/27周辺
間取り
外観
外観
外観
リビング/ダイニング
リビング/ダイニング
室内
寝室
寝室
キッチン
キッチン
浴室
浴室
トイレ
洗面
収納
設備
玄関
バルコニー
エントランス
エントランス
その他
その他
その他
その他
その他
周辺
LINEチャットでも 相談できます
お問合せ先 :株式会社ALIVE 賃貸住宅サービス FC四条烏丸店
仲介手数料割引
当社仲介手数料、家賃の50%(税別)で紹介可能です。
- 利用条件
- 株式会社ALIVE 賃貸住宅サービス FC四条烏丸店で利用可
- 他特典との併用可
- 個人契約住居のみ。
利用方法
来店時に本特典の画面をスマートフォンやタブレットでスタッフに提示、または画面印刷した用紙を提示ください。
有効期限 なし
基本情報
不動産用語- 賃料
- 13.5万円
- 管理費等
- 7,000円
初期費用などお気軽にお問合せください
- 敷金/礼金
- 無/1ヶ月
- 保証金/敷引・償却金
- -/-
- 交通
京都市営烏丸線 丸太町駅 徒歩7分
京都市営烏丸線 烏丸御池駅 徒歩14分
- 所在地
京都府京都市中京区油小路通竹屋町下る橋本町
地図を見る- 築年月
- 1992年3月(築34年)
- 主要採光面
- 南
- 専有面積
- 61.37㎡
- バルコニー面積
- 9.25㎡
- 所在階/階数
- 3階/3階建
入居可能日などお気軽にお問合せください
- 現況
- 居住中
- 入居可能時期
- 2025年12月 中旬

人気物件はすぐに埋まってしまいます。
気になったらお早めにお問合せください。
- 情報公開日
2025/10/07
47日前 公開
- 情報更新日
2025/11/22
20時間前 更新
- 次回更新
予定日 - 2025/12/06
物件のこだわり/設備・条件
新築(非該当)
2階以上の物件(該当)
南向き(該当)
駐車場(非該当)
オートロック(該当)
エアコン(該当)
バス・トイレ別(該当)
追焚機能(非該当)
フローリング(該当)
ペット相談(非該当)
位置
角部屋入居条件
二人入居可キッチン/バス・トイレ
設備・サービス
オートロック、エアコン、BS対応、有線放送、光ファイバー、公営水道、都市ガス、下水、フローリング、出窓、バルコニー、室内洗濯機置場、南面バルコニー、エレベーター、駐輪場ありその他
住まい探し特典あり備考
町会費500円 給湯器使用基本料 月額1527円 退去清掃費 退去時49500円 退去時 エアコン1台につき8800円 カギ交換費用 16500円 契約事務手数11000円
物件周辺の生活情報
学校
- 御所南小学校(1,081m)
- 京都御池中学校(1,446m)
買い物
- コンビニ(259m)
- スーパー(366m)
その他施設
- 総合病院(667m)
- ドラッグユタカ 烏丸三条店(1,249m)
交通
- 京都市営烏丸線 丸太町駅 徒歩7分
- 普通(停車)
- 急行(停車)
- 京都市営烏丸線 烏丸御池駅 徒歩14分
- 普通(停車)
- 急行(停車)
※急行等の停車駅情報について
急行等の停車駅に関するデータは、随時更新をしておりますが、最新の内容であることを保証するものではありません。
最新かつ正確な情報につきましては、各鉄道会社のウェブサイトにてご確認ください
物件周辺の口コミ
- 京都府京都市中京区油小路通竹屋町下る西入に住む人の口コミ40代女性
乳児からお年寄りまで、人生の様々なライフステージを充実させるモデル地域になっており、公教育や介護などが充実している。
口コミを見る
この物件周辺に住む人の口コミ
口コミは、LIFULL HOME'Sが実際にこの物件の周辺に住む18歳~69歳の男女を対象に、WEBアンケート調査を実施しています。内容には回答者の主観的な表現が含まれる場合があるほか、事実と異なる場合もございます。ご了承ください。
- 京都府京都市中京区油小路通竹屋町下る西入に住む人の口コミ40代女性
- 乳児からお年寄りまで、人生の様々なライフステージを充実させるモデル地域になっており、公教育や介護などが充実している。
- 京都府京都市上京区日暮通出水下る西入に住む人の口コミ50代男性
- 子供を育てるのに地域のつながりが良く安心している。買い物も便利。交通機関も便利
- 京都府京都市上京区西洞院通上長者町下るに住む人の口コミ40代男性
- 閑静な住宅街であるが、歴史があり、また四季の移ろいを感じられるため。
- 京都府京都市上京区日暮通丸太町上るに住む人の口コミ30代女性
- スーパー、コンビニが近い。市バスのバス停が近いので、どこにでも行きやすい
- 京都府京都市上京区猪熊通下長者町下るに住む人の口コミ30代男性
- 閑静な住宅街だが、繁華街へも徒歩圏内なので買い物には不自由なく暮らせる。
- 京都府京都市上京区黒門通一条上る東入に住む人の口コミ50代女性
- 品の良い下町で、ここ数年でスーパーマーケットがたくさん増えて買い物が格段に便利になった。
- 京都府京都市上京区中筋通千本東入に住む人の口コミ40代女性
- 一応徒歩圏内に御所がある。(満足)不便ではない程度に近くにスーパーマーケットがいくつもある。(まあ満足)病院が近くにない。(やや不満)の総合判断。
- 京都府京都市上京区仁和寺街道千本東入下るに住む人の口コミ30代女性
- 利便性が良く、治安も悪くない。観光地に近いので、友達が訪ねてきても案内しやすい。
- 京都府京都市上京区出水通千本東入に住む人の口コミ30代女性
- 程よい距離に買い物できる場所、飲食店がある。バスの路線も沢山ある。
- 京都府京都市上京区猪熊通下立売上るに住む人の口コミ30代男性
- 今までこの街で暮らしてきて不自由を感じてこなかった点とこれから一生涯この街で暮らしても不自由を感じないだろうと思う点から満足しています。
物件概要
- 建物構造
- RC(鉄筋コンクリート)
- 駐車場
- 無
- 総戸数
- 29戸
- 契約形態
- -
- 契約期間
- 2年間
- 更新料
- 新賃料の1ヶ月分
- その他費用
- 町費 月額:500円、火災保険月額:800円、町費 月額:165円
- 保証会社
加入要
保証会社利用料:初回賃料等50%~ 月額1、350円
- 住宅保険
- 要
- 管理
- 管理員:巡回
- LIFULL HOME'S
物件番号 - 0104066-0328215
- 自社管理番号
- 9637467
- 取引態様
- 仲介
- 会社名
- 株式会社ALIVE 賃貸住宅サービス FC四条烏丸店
営業スタッフコメント

株式会社ALIVE 賃貸住宅サービス FC四条烏丸店係長
梅原直也
その方らしさに、深く寄りそう。
業界経験13年
- 会社実績や特徴・サービス情報
- TVコマーシャルなどでおなじみの「ちんさくん」のキャラクターの「賃貸住宅サービス四条烏丸店」 京都市内、四条烏丸周辺を中心としたアパート、マンション等の賃貸物件情報。分譲、貸家、アパート、新築や、ワンルーム、ファミリー、デザイナーズ、テナント物件などの賃貸物件をに幅広くお探し可能です。賃貸物件はクレジット決済OK 賃貸以外でも、売買、リフォーム等不動産に関することは、何でも気軽にご相談ください。
TVコマーシャルなどでおなじみの「ちんさくん」のキャラクターの「賃貸住宅サービス四条烏丸店」 京都市内、四条烏丸周辺を中心としたアパート、マンション等の賃貸物件情報。分譲、貸家、アパート、新築や、ワンルーム、ファミリー、デザイナーズ、テナント物件などの賃貸物件をに幅広くお探し可能です。賃貸物件はクレジット決済OK 賃貸以外でも、売買、リフォーム等不動産に関することは、何でも気軽にご相談ください。
- 電話でお問合せ(通話無料)
お問合せ先 :株式会社ALIVE 賃貸住宅サービス FC四条烏丸店
不動産会社情報
株式会社ALIVE 賃貸住宅サービス FC四条烏丸店

京都府京都市下京区四条通新町東入月鉾町37-1
京都市営烏丸線 四条駅 徒歩3分
- 営業時間
- 10:00~19:00
- 定休日
- 無し (年末年始休み12/31〜1/3)
優良店認定
お部屋探しなら賃貸住宅サービス四条烏丸店へ、手数料半月分は当たり前。京都市内きっと見つかる理想のお部屋。迷ったらココへ。お任せ下さい。初回入居費用クレジット決済OK
- 店舗の特徴
- 賃貸管理業務
- リフォーム対応
- 引越し業者紹介可
- 送迎あり
- 系列店舗での対応可
- 保証人不要な物件あり
- 入居ローンあり
- 法人契約取扱い
- 女性スタッフ対応可
- 駅から歩いて3分以内
電話でお問合せお客様の電話番号は不動産会社には通知されません
- 不動産会社に
つながります
お客様の電話番号は不動産会社に通知されません
- ※光IP電話、及びIP電話からはご利用になれません
- ※お電話によるお問合せは、店舗営業時間内にお願いします。つながらない場合は、お問合せフォームよりお問合せください
- ※不動産会社がお電話に出られなかった場合、お問合せいただいた後に不動産会社より折り返しのお電話がある場合がございます(お客様が非通知設定した場合は対象外です)
- ※株式会社LIFULLは電話会社が提供するサービスを介してお客様の発信者番号を受領後、折り返し専用の電話番号を発番してお問合せの不動産会社に通知します(お客様の発信者番号がお問合せの不動産会社に通知されることはございません)
- ※携帯電話からお問合せいただいた方に対し、株式会社LIFULLは電話会社が提供するメッセ―ジサービスを介してお客様の発信者番号を受領後、ショートメッセージ(SMS)またはLINE通知メッセージによるお問合せ内容に関する通知をお届けする場合があります
- ※お客様が通話中に不動産会社にお伝えになったお客様の個人情報及び、電話会社が発番する折り返し専用の電話番号は、お問合せ先不動産会社が資料送付・電子メール送信・電話連絡などの目的で保管する可能性があります。お問合せ先不動産会社が保管する個人情報の取扱いについては、各不動産会社に直接お問合せください
- ※株式会社LIFULLでは本サービスを円滑に運用するために、お客様の発信者番号をサービスご利用の控えとして一定期間保管いたします
- ※上記および株式会社LIFULLの個人情報の取扱い方針に同意のうえ、お電話ください
【LIFULL HOME'S物件番号】0104066-0328215【自社管理番号】9637467
初期費用・月額費用をあわせて確認!この物件に住んだときの費用めやす
めやすを見るこの物件に住んだときの費用めやす
- 初期費用
- 月額費用
- 追加費用※ご確認ください
追加で費用が
かかる場合があります
必ずご確認ください
初期費用めやす約0円
追加で費用がかかります(※)敷金
0
- 礼金
135,000
- 保証金
0
賃料+共益費・管理費の1ヶ月分として換算
賃料の1ヶ月分+税として換算。不動産会社によって金額が異なるため正確な金額は不動産会社にお問合せください
※追加費用もチェック!
これらの項目以外にも費用がかかる場合があります。正確な金額は不動産会社にお問合せください。
- 初期費用
- 鍵交換費:不動産会社に要確認
- 室内清掃費:不動産会社に要確認
- 火災保険費:不動産会社に要確認
- その他
- 町費 月額:500円
- 火災保険月額:800円
- 町費 月額:165円
- 保証会社
- 初回賃料等50%~ 月額1、350円
不動産会社より
町会費500円 給湯器使用基本料 月額1527円 退去清掃費 退去時49500円 退去時 エアコン1台につき8800円 カギ交換費用 16500円 契約事務手数11000円
- 保存する
- 共有する
- ※各種情報と現状に差異がある場合は、現状優先となります
- ※不動産会社が入力した情報を基に物件の位置を表示しています。詳しくは不動産会社までお問合せください
- ※不動産会社の方からの上記電話番号によるお問合せはお断りしております。こちら不動産会社詳細からお問合せください
- ※LIFULL HOME'Sは物件鮮度No.1を目指していきます。閲覧中の物件が「成約済である」「実際の物件情報と異なる点がある」などの場合、「掲載110番」からお問合せください
- ※QRコードは株式会社デンソーウェーブの登録商標です
したい暮らしのタグから探す
LIFULL HOME'S 地図・周辺情報
買い物
- ローソン 丸太町小川店
- デイリーカナートイズミヤ 堀川丸太町店
- ココカラファインプラスイズミヤ堀川丸太町店
- セブンイレブン 堀川丸太町店
- Seriaイズミヤ堀川丸太町店
グルメ
- 餃子の王将 府庁前店
- モスバーガー イズミヤ堀川丸太町店
- CoCo壱番屋 堀川丸太町店
- すき家 烏丸丸太町店
- ガスト 京都丸太町店(から好し取扱店)
育児・教育
- こぐま保育園
- 京都市立二条城北小学校
- 私立平安女学院中学校
- ひまわり幼稚園
- 京都市立御所南小学校
医療
- 京都第二赤十字病院
- 医療法人毛利病院
- 医療法人財団足立病院
- 医療法人知音会京都新町病院
- 山元病院
公共施設・郵便局
- 京都衣棚夷川郵便局
- 京都市こどもみらい館子育て図書館
- 京都市中京区役所
- 京都二条油小路郵便局
- 京都市中央図書館
公園
- 梅屋広場公園
- 京都御苑
- 光徳公園
- 岡崎公園
- 船岡山公園
利用可能な駅
- 徒歩10分以内
京都市営烏丸線
- 丸太町駅徒歩7分
- すべての駅
京都市営烏丸線
- 烏丸御池駅徒歩14分
- 周辺情報は2023年07月21日時点のものになります。
- 周辺情報は、参考情報としてのみご利用ください(周辺情報は、株式会社LIFULLが地図情報の提供事業者から提供を受けた情報とLIFULL HOME'Sの物件情報に基づき、独自の方法で抽出し提供しているものです。周辺情報は、移転や閉鎖等により情報が最新ではない、または正しくない場合がありますが、地図情報の提供事業者から提供された情報をそのまま周辺情報として表示しているため、正確かつ最新の情報へ修正することができないことがあります。)
- 周辺情報は、株式会社LIFULLが掲載するものであり、不動産物件情報を掲載している不動産会社が掲載するものではありません
- 交通情報の一部については、株式会社LIFULLが掲載するものであり、不動産物件情報を掲載している不動産会社が掲載するものではない場合があります。交通情報に関する質問などは株式会社LIFULLにお問合せください
















