LIFULL HOME'Sは物件鮮度No.1!※評価について
レオパレスウイング近藤II 2階
4.6万円/管理費等6,500円
9時間前 更新
お問合せ先 :株式会社良和ハウス 岡山駅西口店
引越し料金割引
提携引越し業者を利用で特別割引
- 利用条件
- 株式会社良和ハウス 岡山駅西口店で利用可
- 他特典との併用はできませんので、ご注意ください。
利用方法
来店時に本特典の画面をスマートフォンやタブレットでスタッフに提示、または画面印刷した用紙を提示ください。
有効期限 なし
家具家電付き・水道料込み☆ALSOK防犯カメラ採用
基本情報
不動産用語- 賃料
- 4.6万円
- 管理費等
- 6,500円
初期費用などお気軽にお問合せください
- 敷金/礼金
- 無/1ヶ月
- 保証金/敷引・償却金
- -/-
- 交通
JR山陽本線 中庄駅 徒歩20分
JR山陽本線 倉敷駅 3.9km
- 所在地
岡山県倉敷市中庄
地図を見る- 築年月
- 2003年9月(築23年)
- 主要採光面
- 南
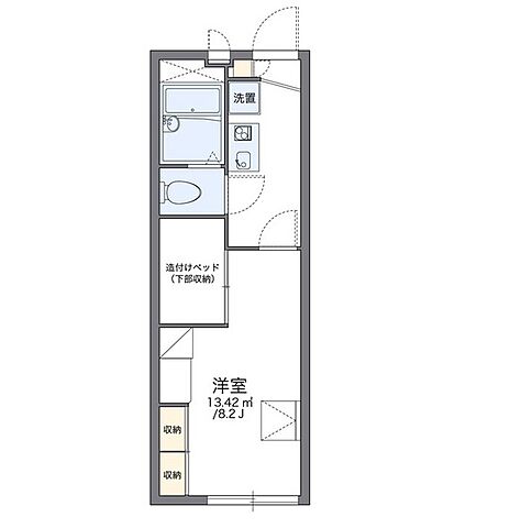
- 専有面積
- 22.35㎡
- バルコニー面積
- -
- 所在階/階数
- 2階/2階建
入居可能日などお気軽にお問合せください
- 現況
- 賃貸中
- 入居可能時期
- 2025年12月 上旬

人気物件はすぐに埋まってしまいます。
気になったらお早めにお問合せください。
- 情報公開日
2025/11/27
4日前 公開
- 情報更新日
2025/11/30
9時間前 更新
- 次回更新
予定日 - 2025/12/07
物件のこだわり/設備・条件
新築(非該当)
2階以上の物件(該当)
南向き(該当)
駐車場あり(該当)
オートロック(非該当)
エアコン(該当)
バス・トイレ別(該当)
追焚機能(非該当)
フローリング(非該当)
ペット相談(非該当)
位置
角部屋入居条件
二人入居可キッチン/バス・トイレ
設備・サービス
防犯カメラ、TVモニタ付インターホン、エアコン、室内洗濯機置場、宅配ボックス、駐車場ありその他
住まい探し特典あり備考
お車でご来店の際は、店舗前駐車場もしくは、周辺のコインパーキングをご利用いただければ、弊社の方でご精算させていただきます。
物件周辺の生活情報
学校
- 倉敷市立中庄小学校(1,008m)
- 倉敷市立北中学校(1,002m)
買い物
- コンビニ(515m)
- スーパー(1,308m)
- ドラッグストア(1,686m)
その他施設
- 総合病院(1,140m)
- 公園(2,788m)
- 銀行(938m)
交通
- JR山陽本線 中庄駅 徒歩20分
- 普通(停車)
- 新快速(通過)
- 快速(通過)
- サンライナー(通過)
- JR山陽本線 倉敷駅 3.9km
- 普通(停車)
- 新快速(通過)
- 快速(通過)
- サンライナー(停車)
※急行等の停車駅情報について
急行等の停車駅に関するデータは、随時更新をしておりますが、最新の内容であることを保証するものではありません。
最新かつ正確な情報につきましては、各鉄道会社のウェブサイトにてご確認ください
物件周辺の口コミ
- 岡山県倉敷市中庄に住む人の口コミ30代女性
24時間営業のスーパーや、大きな総合病院、駅が近いなど、環境は大変住みやすいが、保育園、幼稚園、こども園が少なく、待機児童が多いため、預けて働きたくても働ける環境ではないため、その点がマイナス。
口コミを見る
この物件周辺に住む人の口コミ
口コミは、LIFULL HOME'Sが実際にこの物件の周辺に住む18歳~69歳の男女を対象に、WEBアンケート調査を実施しています。内容には回答者の主観的な表現が含まれる場合があるほか、事実と異なる場合もございます。ご了承ください。
- 岡山県倉敷市中庄に住む人の口コミ30代女性
- 24時間営業のスーパーや、大きな総合病院、駅が近いなど、環境は大変住みやすいが、保育園、幼稚園、こども園が少なく、待機児童が多いため、預けて働きたくても働ける環境ではないため、その点がマイナス。
- 岡山県倉敷市中庄に住む人の口コミ30代女性
- 店が多く買い物しやすいが、騒がしい訳ではない。自然が多く空気が気持ちいい。
- 岡山県倉敷市中庄に住む人の口コミ30代女性
- スーパー、ホームセンターが近いので食料品、日用品などを買いに行きやすい。大通りが少し渋滞するのでそれがなければ◎
- 岡山県倉敷市中庄に住む人の口コミ30代女性
- 鉄道の駅が近く、中心市街地に出やすい。スーパーが多いので買い物がしやすい。飲食店も多い。
- 岡山県倉敷市中庄に住む人の口コミ30代女性
- 買い物、医療などに関しては、非常に満足できるが、自然が豊かとは言えない。保育所も足りておらず、公立の保育所もないし、子育てがしやすいとは思わない。
物件概要
- 建物構造
- 鉄骨造
- 駐車場
- 空有 (1台) 6,050円(税無) 物件からの距離0m
- 総戸数
- -
- 契約形態
- -
- 契約期間
- 2年間
- 更新料
- -
- その他費用
- 町内会費:550円、カギ交換代:16,500円、ハウスクリーニング:41,800円
- 保証会社
- -
- 住宅保険
- 不要
- 管理
- -
- LIFULL HOME'S
物件番号 - 0135646-0094447
- 自社管理番号
- 35-945172-9-201
- 取引態様
- 仲介
- 会社名
- 株式会社良和ハウス 岡山駅西口店
営業スタッフコメント

株式会社良和ハウス 岡山駅西口店
森永
新生活応援
業界経験1年
資格少額短期保険募集人
- 会社実績や特徴・サービス情報
- 良和ハウス岡山駅西口店は、「岡山市の玄関口」JR岡山駅の西口にございます。岡山駅から徒歩3分とアクセスがしやすい立地です。 物件の情報はもちろん、岡山の地域情報もしっかりご紹介させていただきます。 お車でご来店のお客様、周辺コインパーキングのご案内をさせていただきますので、いつでもご相談ください。 お客様のお越しをスタッフ一同、心よりお待ちしております。
良和ハウス岡山駅西口店は、「岡山市の玄関口」JR岡山駅の西口にございます。岡山駅から徒歩3分とアクセスがしやすい立地です。 物件の情報はもちろん、岡山の地域情報もしっかりご紹介させていただきます。 お車でご来店のお客様、周辺コインパーキングのご案内をさせていただきますので、いつでもご相談ください。 お客様のお越しをスタッフ一同、心よりお待ちしております。
- 電話でお問合せ(通話無料)
お問合せ先 :株式会社良和ハウス 岡山駅西口店
不動産会社情報
JR岡山駅から徒歩5分。目印はリョリョリョでお馴染みのさかなクンの大きな看板です。皆様のご来店、心よりお待ちしております。
- 店舗の特徴
- 賃貸管理業務
- 24時間管理物件取扱い
- 引越し業者紹介可
- 保証人不要な物件あり
- 法人契約取扱い
電話でお問合せお客様の電話番号は不動産会社には通知されません
- 不動産会社に
つながります
お客様の電話番号は不動産会社に通知されません
- ※光IP電話、及びIP電話からはご利用になれません
- ※お電話によるお問合せは、店舗営業時間内にお願いします。つながらない場合は、お問合せフォームよりお問合せください
- ※不動産会社がお電話に出られなかった場合、お問合せいただいた後に不動産会社より折り返しのお電話がある場合がございます(お客様が非通知設定した場合は対象外です)
- ※株式会社LIFULLは電話会社が提供するサービスを介してお客様の発信者番号を受領後、折り返し専用の電話番号を発番してお問合せの不動産会社に通知します(お客様の発信者番号がお問合せの不動産会社に通知されることはございません)
- ※携帯電話からお問合せいただいた方に対し、株式会社LIFULLは電話会社が提供するメッセ―ジサービスを介してお客様の発信者番号を受領後、ショートメッセージ(SMS)またはLINE通知メッセージによるお問合せ内容に関する通知をお届けする場合があります
- ※お客様が通話中に不動産会社にお伝えになったお客様の個人情報及び、電話会社が発番する折り返し専用の電話番号は、お問合せ先不動産会社が資料送付・電子メール送信・電話連絡などの目的で保管する可能性があります。お問合せ先不動産会社が保管する個人情報の取扱いについては、各不動産会社に直接お問合せください
- ※株式会社LIFULLでは本サービスを円滑に運用するために、お客様の発信者番号をサービスご利用の控えとして一定期間保管いたします
- ※上記および株式会社LIFULLの個人情報の取扱い方針に同意のうえ、お電話ください
【LIFULL HOME'S物件番号】0135646-0094447【自社管理番号】35-945172-9-201
初期費用・月額費用をあわせて確認!この物件に住んだときの費用めやす
めやすを見るこの物件に住んだときの費用めやす
- 初期費用
- 月額費用
- 追加費用※ご確認ください
追加で費用が
かかる場合があります
必ずご確認ください
初期費用めやす約0円
追加で費用がかかります(※)敷金
0
- 礼金
46,000
- 保証金
0
賃料+共益費・管理費の1ヶ月分として換算
賃料の1ヶ月分+税として換算。不動産会社によって金額が異なるため正確な金額は不動産会社にお問合せください
※追加費用もチェック!
これらの項目以外にも費用がかかる場合があります。正確な金額は不動産会社にお問合せください。
- 初期費用
- 鍵交換費:不動産会社に要確認
- 室内清掃費:不動産会社に要確認
- 火災保険費:不動産会社に要確認
- 月額費用
- 駐車場費:6,050円※契約任意
- その他
- 町内会費:550円
- カギ交換代:16500円
- ハウスクリーニング:41800円
- 保証会社
- 不動産会社に要確認
不動産会社より
家具家電付き・水道料込み☆ALSOK防犯カメラ採用
お車でご来店の際は、店舗前駐車場もしくは、周辺のコインパーキングをご利用いただければ、弊社の方でご精算させていただきます。
- 保存する
- 共有する
- ※各種情報と現状に差異がある場合は、現状優先となります
- ※不動産会社が入力した情報を基に物件の位置を表示しています。詳しくは不動産会社までお問合せください
- ※不動産会社の方からの上記電話番号によるお問合せはお断りしております。こちら不動産会社詳細からお問合せください
- ※LIFULL HOME'Sは物件鮮度No.1を目指していきます。閲覧中の物件が「成約済である」「実際の物件情報と異なる点がある」などの場合、「掲載110番」からお問合せください
- ※QRコードは株式会社デンソーウェーブの登録商標です
したい暮らしのタグから探す
この物件を取扱う他の会社
LIFULL HOME'Sでは、主要項目が同一の物件をまとめて表示しています。所在地や営業時間、掲載画像等から不動産会社を選んでお問合せください。
同じ建物の他の部屋
最近見た賃貸物件
LIFULL HOME'S 地図・周辺情報
買い物
- ファミリーマート 倉敷中庄店
- ダイソーマルナカ倉敷マスカット店
- ププレひまわり中庄店
- セブンイレブン 倉敷中庄店
- マルナカ マスカット店
グルメ
- ケンタッキーフライドチキン 倉敷中庄店
- ロッテリア 倉敷中庄店
- 北前そば高田屋 倉敷中庄店
- 星乃珈琲店倉敷中庄店
- CoCo壱番屋 倉敷中庄店
育児・教育
- 倉敷市立中庄幼稚園
- 倉敷市立中庄小学校
- 倉敷市立北中学校
- しらゆり幼稚園
- 倉敷市立菅生小学校
医療
- 医療法人和香会倉敷スイートホスピタル
- 川崎医科大学附属病院
- 三十会倉敷神経科病院
- 独立行政法人国立病院機構南岡山医療センター
- 医療法人創和会しげい病院
公共施設・郵便局
- 倉敷中庄駅前簡易郵便局
- 倉敷警察署
- 倉敷生坂簡易郵便局
- 倉敷中庄郵便局
- 庄郵便局
公園
- 岡山県倉敷スポーツ公園
利用可能な駅
- すべての駅
JR山陽本線
- 中庄駅徒歩20分
- 倉敷駅3.9km
- 周辺情報は2023年07月21日時点のものになります。
- 周辺情報は、参考情報としてのみご利用ください(周辺情報は、株式会社LIFULLが地図情報の提供事業者から提供を受けた情報とLIFULL HOME'Sの物件情報に基づき、独自の方法で抽出し提供しているものです。周辺情報は、移転や閉鎖等により情報が最新ではない、または正しくない場合がありますが、地図情報の提供事業者から提供された情報をそのまま周辺情報として表示しているため、正確かつ最新の情報へ修正することができないことがあります。)
- 周辺情報は、株式会社LIFULLが掲載するものであり、不動産物件情報を掲載している不動産会社が掲載するものではありません
- 交通情報の一部については、株式会社LIFULLが掲載するものであり、不動産物件情報を掲載している不動産会社が掲載するものではない場合があります。交通情報に関する質問などは株式会社LIFULLにお問合せください




























































