LIFULL HOME'Sは物件鮮度No.1!※評価について
お問合せ先 :株式会社エクシブ 京都六地蔵店
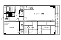
物件のこだわり/設備・条件
新築(非該当)
2階以上の物件(該当)
南向き(該当)
駐車場あり(該当)
オートロック(該当)
エアコン(該当)
バス・トイレ別(該当)
追焚機能(非該当)
フローリング(非該当)
ペット相談(非該当)
入居条件
事務所可(SOHO向け)、二人入居可、即入居可キッチン/バス・トイレ
ガスコンロ設置済、システムキッチン、給湯、専用バス、専用トイレ、バス・トイレ別、シャワー設備・サービス
オートロック、エアコン、BS対応、公営水道、都市ガス、下水、室内洗濯機置場、駐車場あり、駐輪場あり
物件周辺の生活情報
交通
- 近鉄京都線 近鉄丹波橋駅 徒歩11分
- 普通(停車)
- 準急(停車)
- 急行(停車)
- 京阪本線 丹波橋駅 徒歩9分
- 普通(停車)
- 区間急行(通過)
- 急行(停車)
- 特急(停車)
- 通勤準急・準急(停車)
- 快速特急 洛楽(通過)
- 通勤快急・快速急行(停車)
※急行等の停車駅情報について
急行等の停車駅に関するデータは、随時更新をしておりますが、最新の内容であることを保証するものではありません。
最新かつ正確な情報につきましては、各鉄道会社のウェブサイトにてご確認ください
物件周辺の口コミ
- 京都府京都市伏見区清水町に住む人の口コミ60代女性
交通の便良く、買い物、学校等が近くにあり、商店街も近い、観光地でも有り、散歩も出来る、住みやすい
口コミを見る
この物件周辺に住む人の口コミ
口コミは、LIFULL HOME'Sが実際にこの物件の周辺に住む18歳~69歳の男女を対象に、WEBアンケート調査を実施しています。内容には回答者の主観的な表現が含まれる場合があるほか、事実と異なる場合もございます。ご了承ください。
- 京都府京都市伏見区清水町に住む人の口コミ60代女性
- 交通の便良く、買い物、学校等が近くにあり、商店街も近い、観光地でも有り、散歩も出来る、住みやすい
- 京都府京都市伏見区鳥羽町に住む人の口コミ30代女性
- 24時間営業してるコンビニもスーパーもインターネットカフェが充実してます。でも、深夜にバイクの騒音に悩まされます。
- 京都府京都市伏見区白銀町に住む人の口コミ30代女性
- 交通や買い物の便が凄く良い。スーパーも何店舗かあり、コンビニや薬局も充実している。
- 京都府京都市伏見区京町北8丁目に住む人の口コミ30代女性
- 治安が良いとはいいがたいが、スーパーなどが多く生活しやすく、交通の便も便利だから。
- 京都府京都市伏見区舞台町に住む人の口コミ50代女性
- 治安も悪くないし 駅、スーパー、病院 、銀行、コンビニ、飲食店 など生活に必要な施設は徒歩圏内に幾つもあるし 便利で暮らしやすい。
- 京都府京都市伏見区堀詰町に住む人の口コミ30代女性
- 近鉄、京阪の2ウェイな上、急行停車駅で大変便利で市バスも通っている商店街も近く買い物しやすくカフェや居酒屋も多い
- 京都府京都市伏見区深草泓ノ壺町に住む人の口コミ50代女性
- 生まれたところに住んでいるから近所も知り合い、安心してすめる。バス近鉄地下鉄京阪が近い
- 京都府京都市伏見区中島御所ノ内町に住む人の口コミ50代女性
- 鉄道の駅まで徒歩だと20分かかるのが嬉しくない。今の場所にきて4年だがそれまでは鉄道の駅まで2分だったのでちょっと辛い。
- 京都府京都市伏見区深草新門丈町に住む人の口コミ60代女性
- 長年住んでいて愛着がある町です。住み続けてより良くなってほしい。
- 京都府京都市伏見区桝形町に住む人の口コミ30代女性
- 子育てにとても充実していると感じているから。学区もいいと評判の地域なので満足している。
物件概要
- 建物構造
- RC(鉄筋コンクリート)
- 駐車場
- 空有 14,300円
- 総戸数
- -
- 契約形態
- -
- 契約期間
- 2年間
- 更新料
- 新賃料の1ヶ月分
- その他費用
- -
- 保証会社
- -
- 住宅保険
- 要
- 管理
- -
- LIFULL HOME'S
物件番号 - 0114150-0097105
- 自社管理番号
- 001395303
- 取引態様
- 一般媒介
- 会社名
- 株式会社エクシブ 京都六地蔵店
- 電話でお問合せ(通話無料)
お問合せ先 :株式会社エクシブ 京都六地蔵店
不動産会社情報
電話でお問合せお客様の電話番号は不動産会社には通知されません
- 不動産会社に
つながります
お客様の電話番号は不動産会社に通知されません
- ※光IP電話、及びIP電話からはご利用になれません
- ※お電話によるお問合せは、店舗営業時間内にお願いします。つながらない場合は、お問合せフォームよりお問合せください
- ※不動産会社がお電話に出られなかった場合、お問合せいただいた後に不動産会社より折り返しのお電話がある場合がございます(お客様が非通知設定した場合は対象外です)
- ※株式会社LIFULLは電話会社が提供するサービスを介してお客様の発信者番号を受領後、折り返し専用の電話番号を発番してお問合せの不動産会社に通知します(お客様の発信者番号がお問合せの不動産会社に通知されることはございません)
- ※携帯電話からお問合せいただいた方に対し、株式会社LIFULLは電話会社が提供するメッセ―ジサービスを介してお客様の発信者番号を受領後、ショートメッセージ(SMS)またはLINE通知メッセージによるお問合せ内容に関する通知をお届けする場合があります
- ※お客様が通話中に不動産会社にお伝えになったお客様の個人情報及び、電話会社が発番する折り返し専用の電話番号は、お問合せ先不動産会社が資料送付・電子メール送信・電話連絡などの目的で保管する可能性があります。お問合せ先不動産会社が保管する個人情報の取扱いについては、各不動産会社に直接お問合せください
- ※株式会社LIFULLでは本サービスを円滑に運用するために、お客様の発信者番号をサービスご利用の控えとして一定期間保管いたします
- ※上記および株式会社LIFULLの個人情報の取扱い方針に同意のうえ、お電話ください
【LIFULL HOME'S物件番号】0114150-0097105【自社管理番号】001395303
初期費用・月額費用をあわせて確認!この物件に住んだときの費用めやす
めやすを見るこの物件に住んだときの費用めやす
- 初期費用
- 月額費用
- 追加費用※ご確認ください
追加で費用が
かかる場合があります
必ずご確認ください
初期費用めやす約0円
追加で費用がかかります(※)敷金
90,000
- 礼金
90,000
- 保証金
0
賃料+共益費・管理費の1ヶ月分として換算
賃料の1ヶ月分+税として換算。不動産会社によって金額が異なるため正確な金額は不動産会社にお問合せください
※追加費用もチェック!
これらの項目以外にも費用がかかる場合があります。正確な金額は不動産会社にお問合せください。
- 初期費用
- 鍵交換費:不動産会社に要確認
- 室内清掃費:不動産会社に要確認
- 火災保険費:不動産会社に要確認
- 月額費用
- 駐車場費:14,300円※契約任意
- 保証会社
- 不動産会社に要確認
- 保存する
- 共有する
- ※各種情報と現状に差異がある場合は、現状優先となります
- ※不動産会社が入力した情報を基に物件の位置を表示しています。詳しくは不動産会社までお問合せください
- ※不動産会社の方からの上記電話番号によるお問合せはお断りしております。こちら不動産会社詳細からお問合せください
- ※LIFULL HOME'Sは物件鮮度No.1を目指していきます。閲覧中の物件が「成約済である」「実際の物件情報と異なる点がある」などの場合、「掲載110番」からお問合せください
- ※QRコードは株式会社デンソーウェーブの登録商標です
したい暮らしのタグから探す
LIFULL HOME'S 地図・周辺情報
買い物
- ファミリーマート 伏見舞台町店
- ワッツ丹波橋店
- ダックス伏見丹波橋店
- ファミリーマート 伏見丹波橋通り店
- 万代 丹波橋店
グルメ
- ケンタッキーフライドチキン カナートモール伏見店
- 無添くら寿司 京都伏見店
- CoCo壱番屋 新堀川店
- かつや 京都新堀川店
- なか卯 新堀川店
育児・教育
- 第二あけぼの保育園
- 京都市立伏見板橋小学校
- 京都市立伏見中学校
- 京都市立伏見住吉幼稚園
- 京都市立伏見住吉小学校
医療
- 社会医療法人岡本病院(財団)伏見岡本病院
- 医療法人清水会京都リハビリテーション病院
- 社会福祉法人浩照会伏見桃山総合病院
- 医療法人社団蘇生会総合病院
- 医療法人社団蘇生会蘇生会総合病院介護医療院
公共施設・郵便局
- 京都御駕篭郵便局
- 京都市伏見中央図書館
- 京都市伏見区役所
- 伏見竹田口郵便局
- 京都市向島図書館
公園
- 竹田公園
- 三栖公園
- 下鳥羽公園
- 伏見桃山城運動公園
- 鳥羽離宮跡公園
利用可能な駅
- 徒歩10分以内
京阪本線
- 丹波橋駅徒歩9分
近鉄京都線
- 伏見駅徒歩9分
- すべての駅
近鉄京都線
- 近鉄丹波橋駅徒歩11分
- 桃山御陵前駅徒歩19分
- 竹田駅徒歩26分
- 上鳥羽口駅3.5km
京阪本線
- 伏見桃山駅徒歩18分
- 墨染駅徒歩19分
- 中書島駅徒歩22分
- 藤森駅徒歩31分
- 龍谷大前深草駅3.2km
JR奈良線
- 桃山駅徒歩24分
- JR藤森駅徒歩28分
京阪宇治線
- 観月橋駅徒歩29分
- 桃山南口駅3.5km
京都市営烏丸線
- くいな橋駅徒歩37分
- 周辺情報は2023年07月21日時点のものになります。
- 周辺情報は、参考情報としてのみご利用ください(周辺情報は、株式会社LIFULLが地図情報の提供事業者から提供を受けた情報とLIFULL HOME'Sの物件情報に基づき、独自の方法で抽出し提供しているものです。周辺情報は、移転や閉鎖等により情報が最新ではない、または正しくない場合がありますが、地図情報の提供事業者から提供された情報をそのまま周辺情報として表示しているため、正確かつ最新の情報へ修正することができないことがあります。)
- 周辺情報は、株式会社LIFULLが掲載するものであり、不動産物件情報を掲載している不動産会社が掲載するものではありません
- 交通情報の一部については、株式会社LIFULLが掲載するものであり、不動産物件情報を掲載している不動産会社が掲載するものではない場合があります。交通情報に関する質問などは株式会社LIFULLにお問合せください









