LIFULL HOME'Sは物件鮮度No.1!※評価について
コートハウステラード(2階/1LDK/69.03m²)
コートハウステラード(2階/1LDK/69.03m²)
7.1万円/管理費等6,000円
1時間前 更新
画像一覧
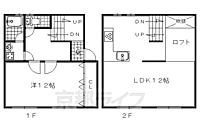
1/30間取り
2/30外観
3/30外観
4/30リビング/ダイニング
リビング
5/30リビング/ダイニング
リビング
6/30リビング/ダイニング
リビング
7/30室内
洋室
8/30寝室
洋室
9/30寝室
洋室
10/30子供部屋
洋室
11/30キッチン
キッチン
12/30キッチン
キッチン
13/30キッチン
キッチン
14/30浴室
風呂
15/30浴室
風呂
16/30トイレ
トイレ
17/30洗面
洗面所
18/30収納
収納
19/30設備
冷蔵庫置場
20/30設備
洗濯機置場
21/30玄関
玄関
22/30バルコニー
ベランダ
23/30エントランス
エントランス
24/30駐車場
駐車場
25/30その他
眺望
26/30その他
エアコン
27/30その他
給湯器リモコン
28/30その他
階段
29/30周辺
ライフ 寺田店まで950メートル
30/30周辺
ローソン 城陽寺田店まで450メートル
間取り
外観
外観
リビング/ダイニング
リビング/ダイニング
リビング/ダイニング
室内
寝室
寝室
子供部屋
キッチン
キッチン
キッチン
浴室
浴室
トイレ
洗面
収納
設備
設備
玄関
バルコニー
エントランス
駐車場
その他
その他
その他
その他
周辺
周辺
お問合せ先 :株式会社エリッツ 新田辺店
1〜4月は引越しシーズンのピークです。お問合せはお早めに!
住まい探し特典内容
電気・ガス・インターネットの手続き代行のご案内します。
- 利用条件
- 株式会社エリッツ 新田辺店で利用可
- 他特典との併用可
利用方法
来店時に本特典の画面をスマートフォンやタブレットでスタッフに提示、または画面印刷した用紙を提示ください。
有効期限 なし
※告知事項有り--パノラマ掲載--
物件のこだわり/設備・条件
新築(非該当)
2階以上の物件(該当)
南向き(該当)
駐車場あり(該当)
オートロック(非該当)
エアコン(該当)
バス・トイレ別(該当)
追焚機能(非該当)
フローリング(該当)
ペット相談(非該当)
入居条件
二人入居可、即入居可キッチン/バス・トイレ
設備・サービス
エアコン、クローゼット、シューズボックス、BS対応、光ファイバー、公営水道、都市ガス、下水、フローリング、バルコニー、室内洗濯機置場、南面バルコニー、駐車場あり、駐輪場ありその他
初期費用カード決済可、デザイナーズ、住まい探し特典あり備考
【寺田西小学校・西城陽中学校区】近鉄京都線寺田駅まで徒歩10分、JR奈良線城陽駅まで徒歩25分、環境の良い住宅地に広々キッチンにガス3口コンロ、独立洗面台付きデザイナーズ賃貸マンション。・光ファイバーインターネット接続可
物件周辺の生活情報
学校
- 寺田西小学校(600m)
- 西城陽中学校(600m)
買い物
- コンビニ(450m)
- スーパー(950m)
交通
- 近鉄京都線 寺田駅 徒歩10分
- 普通(停車)
- 準急(停車)
- 急行(通過)
- JR奈良線 城陽駅 徒歩25分
- 普通(停車)
- 区間快速(停車)
- 快速(停車)
- みやこ路快速(停車)
※急行等の停車駅情報について
急行等の停車駅に関するデータは、随時更新をしておりますが、最新の内容であることを保証するものではありません。
最新かつ正確な情報につきましては、各鉄道会社のウェブサイトにてご確認ください
物件周辺の口コミ
- 京都府城陽市寺田に住む人の口コミ30代男性
最寄り駅まで少し遠く、各駅停車ですのでマイナス1。しかし、行政の子育て支援事業や今後高速の開通やそれに伴う企業の誘致、店舗の増加など未来に期待ができます。
口コミを見る
この物件周辺に住む人の口コミ
口コミは、LIFULL HOME'Sが実際にこの物件の周辺に住む18歳~69歳の男女を対象に、WEBアンケート調査を実施しています。内容には回答者の主観的な表現が含まれる場合があるほか、事実と異なる場合もございます。ご了承ください。
- 京都府城陽市寺田に住む人の口コミ30代男性
- 最寄り駅まで少し遠く、各駅停車ですのでマイナス1。しかし、行政の子育て支援事業や今後高速の開通やそれに伴う企業の誘致、店舗の増加など未来に期待ができます。
- 京都府城陽市寺田に住む人の口コミ30代女性
- 分譲マンションの空きや駐車場の数が少ないけど学校の支援は充実している。最寄駅も2路線あり交通の便は凄く良いところ。
- 京都府城陽市寺田に住む人の口コミ60代女性
- 生鮮品の買い物が便利で安い。上をみれば切りがない。可もなく不可もなく、マアマアが一番と思う。
- 京都府城陽市寺田に住む人の口コミ30代女性
- 本屋や映画館など文化的な施設が不足しているが、日常の買い物や通院などには困らず、比較的穏やかな天候で、地元の農作物が手に入り、散策しやすい神社や公園などが多い。
- 京都府城陽市寺田に住む人の口コミ50代男性
- 夜は静かで住みやすいし自然がたくさんあり近くに運動公園がある
- 京都府城陽市寺田に住む人の口コミ40代男性
- 交通至便な割には都会化しておらずベットタウン、住む町の感覚。市内移動が自転車で可能なコンパクトな街、何より福祉、医療、子育てが充実している
- 京都府城陽市寺田に住む人の口コミ30代女性
- 子育てしやすい環境で助け合いができる。幼稚園も候補がいくつかあり比較して子供に合った園が選べた。子供が自転車に乗って一人で出かけるようになると坂の下りで速度が出過ぎてしまうのが心配
- 京都府城陽市寺田に住む人の口コミ50代男性
- 都会でなく田舎でない。大型商業施設もあり、欲しいものが揃うし、街はコンパクトに店がある。2年後には、高速道路ができさらに発展、便利になる。
- 京都府城陽市寺田に住む人の口コミ40代女性
- 必要なものはちゃんと揃ってて、都会のように、人が多すぎることもない。
- 京都府城陽市寺田に住む人の口コミ20代女性
- 生協、コンビニ、駅が近くにあるから、学校もあまり遠くないから、都会過ぎず、田舎過ぎないから
物件概要
- 建物構造
- RC(鉄筋コンクリート)
- 駐車場
- 空有 8,800円(税込)
- 総戸数
- 18戸
- 契約形態
- -
- 契約期間
- 2年間
- 更新料
- -
- その他費用
- 室内清掃費用:44,000円、駐輪代(自転車(月額):2,200円、駐輪代(自二輪(月額):3,300円、駐車場手数料(初回):6,600円
- 保証会社
加入要
保証会社利用料:66、880円
- 住宅保険
- 要
- 管理
- -
- LIFULL HOME'S
物件番号 - 0138024-0079496
- 自社管理番号
- 5365-C-2
- 取引態様
- 仲介
- 会社名
- 株式会社エリッツ 新田辺店
営業スタッフコメント

株式会社エリッツ 新田辺店
岸本
京田辺市、精華町、城陽市、宇治市のお部屋探しはお任せください!
業界経験2年
- 会社実績や特徴・サービス情報
- はじめまして。賃貸のエリッツ新田辺店の渡邉です。京田辺市を中心に、八幡市、精華町、木津川市や京都市内全域まで幅広く取り扱っております。お部屋探しの際はぜひ、「賃貸のエリッツ新田辺店」までお問い合わせください。全力でお客様のお部屋探しのサポートをさせていただきます。ご来店心よりお待ちしております。
はじめまして。賃貸のエリッツ新田辺店の渡邉です。京田辺市を中心に、八幡市、精華町、木津川市や京都市内全域まで幅広く取り扱っております。お部屋探しの際はぜひ、「賃貸のエリッツ新田辺店」までお問い合わせください。全力でお客様のお部屋探しのサポートをさせていただきます。ご来店心よりお待ちしております。
- 電話でお問合せ(通話無料)
お問合せ先 :株式会社エリッツ 新田辺店
不動産会社情報
株式会社エリッツ 新田辺店
京都府京田辺市田辺中央1丁目3番地1 新田辺ステーションパーク南館
近鉄京都線 新田辺駅 徒歩2分
- 営業時間
- 10:00~19:00
- 定休日
- 火・水曜日(祝日を除く)、年末年始 ※部屋探しのお問い合わせは無休
京田辺市(京田辺、新田辺、興戸、同志社前、三山木)でお部屋探しはお任せください!!同志社大学の学生さんの一人暮らし等、様々なニーズのお客様の希望にあったの賃貸物件を数多く取り扱っております。
- 店舗の特徴
- 賃貸管理業務
- 24時間管理物件取扱い
- リフォーム対応
- 引越し業者紹介可
- 系列店舗での対応可
- 社宅・寮物件取扱い
- オンライン相談可
- 保証人不要な物件あり
- 法人契約取扱い
- 駅から歩いて3分以内
電話でお問合せお客様の電話番号は不動産会社には通知されません
- 不動産会社に
つながります
お客様の電話番号は不動産会社に通知されません
- ※光IP電話、及びIP電話からはご利用になれません
- ※お電話によるお問合せは、店舗営業時間内にお願いします。つながらない場合は、お問合せフォームよりお問合せください
- ※不動産会社がお電話に出られなかった場合、お問合せいただいた後に不動産会社より折り返しのお電話がある場合がございます(お客様が非通知設定した場合は対象外です)
- ※株式会社LIFULLは電話会社が提供するサービスを介してお客様の発信者番号を受領後、折り返し専用の電話番号を発番してお問合せの不動産会社に通知します(お客様の発信者番号がお問合せの不動産会社に通知されることはございません)
- ※携帯電話からお問合せいただいた方に対し、株式会社LIFULLは電話会社が提供するメッセ―ジサービスを介してお客様の発信者番号を受領後、ショートメッセージ(SMS)またはLINE通知メッセージによるお問合せ内容に関する通知をお届けする場合があります
- ※お客様が通話中に不動産会社にお伝えになったお客様の個人情報及び、電話会社が発番する折り返し専用の電話番号は、お問合せ先不動産会社が資料送付・電子メール送信・電話連絡などの目的で保管する可能性があります。お問合せ先不動産会社が保管する個人情報の取扱いについては、各不動産会社に直接お問合せください
- ※株式会社LIFULLでは本サービスを円滑に運用するために、お客様の発信者番号をサービスご利用の控えとして一定期間保管いたします
- ※上記および株式会社LIFULLの個人情報の取扱い方針に同意のうえ、お電話ください
【LIFULL HOME'S物件番号】0138024-0079496【自社管理番号】5365-C-2
オンライン対応
オンライン内見・オンライン相談・IT重説に対応している物件です

「オンライン内見」「オンライン相談」「IT重説」とは?
物件の内見や不動産会社スタッフとの相談、契約前の重要事項説明をオンライン(ビデオ通話)で行うことができるサービスです。
オンライン内見
ビデオ通話で現地(物件)にいる不動産会社スタッフと映像・音声を使ってリアルタイムで会話しながら内見ができます。
オンライン相談
「物件について聞きたいことがある」など不動産会社スタッフへの相談もビデオ通話で行うことができます。
IT重説
契約前の重要事項説明(重説)をビデオ通話で行うことができます。
利用時の注意事項
- ビデオ通話については各不動産会社指定のものとなります。
- ビデオ通話利用時には通信が発生します。従量課金制通信サービスや通信量に上限があるネット回線・プランを利用する場合は、通信量にご注意ください。
- 通信速度やアプリの設定によってはビデオ通話の画質が低下することがあります。安定した画質で利用するためにも、Wi-Fi環境下での利用を推奨します。
- ご利用のビデオ通話アプリによっては、対象のOSやブラウザに制限がある場合があります。詳しくはお問合せ先不動産会社にご確認ください。
初期費用・月額費用をあわせて確認!この物件に住んだときの費用めやす
めやすを見るこの物件に住んだときの費用めやす
- 初期費用
- 月額費用
- 追加費用※ご確認ください
追加で費用が
かかる場合があります
必ずご確認ください
初期費用めやす約0円
追加で費用がかかります(※)敷金
71,000
- 礼金
71,000
賃料+共益費・管理費の1ヶ月分として換算
賃料の1ヶ月分+税として換算。不動産会社によって金額が異なるため正確な金額は不動産会社にお問合せください
※追加費用もチェック!
これらの項目以外にも費用がかかる場合があります。正確な金額は不動産会社にお問合せください。
- 初期費用
- 鍵交換費:不動産会社に要確認
- 室内清掃費:44,000円
- 火災保険費:不動産会社に要確認
- 月額費用
- 駐車場費:8,800円(税込)※契約任意
- その他
- 駐輪代(自転車(月額):2200円
- 駐輪代(自二輪(月額):3300円
- 駐車場手数料(初回):6600円
- 保証会社
- 66、880円
不動産会社より
※告知事項有り--パノラマ掲載--
【寺田西小学校・西城陽中学校区】近鉄京都線寺田駅まで徒歩10分、JR奈良線城陽駅まで徒歩25分、環境の良い住宅地に広々キッチンにガス3口コンロ、独立洗面台付きデザイナーズ賃貸マンション。・光ファイバーインターネット接続可
- 保存する
- 共有する
- ※各種情報と現状に差異がある場合は、現状優先となります
- ※不動産会社が入力した情報を基に物件の位置を表示しています。詳しくは不動産会社までお問合せください
- ※不動産会社の方からの上記電話番号によるお問合せはお断りしております。こちら不動産会社詳細からお問合せください
- ※LIFULL HOME'Sは物件鮮度No.1を目指していきます。閲覧中の物件が「成約済である」「実際の物件情報と異なる点がある」などの場合、「掲載110番」からお問合せください
- ※QRコードは株式会社デンソーウェーブの登録商標です
したい暮らしのタグから探す
LIFULL HOME'S 地図・周辺情報
買い物
- ファミリーマート 城陽樋尻店
- ライフ 寺田店
- ハーティドラッグマツノキ寺田店
- セブンイレブン 城陽インター店
- フレッシュバザール 城陽寺田店
グルメ
- 吉野家 大久保バイパス城陽店
- やよい軒 京都城陽店
- 丸亀製麺城陽店
- マクドナルド 24号城陽店
- すき家 城陽久世店
育児・教育
- 佐伯幼稚園
- 城陽市立寺田西小学校
- 城陽市立西城陽中学校
- 里の西保育園
- 城陽市立今池小学校
医療
- 医療法人晴風園ほうゆうリハビリテーション病院
- 医療法人啓信会京都きづ川病院
- 医療法人長安会中村病院
- 医療法人社団石鎚会京都田辺記念病院
- 社会医療法人岡本病院(財団)京都岡本記念病院
公共施設・郵便局
- 城陽今堀郵便局
- 城陽市立図書館
- 城陽市役所
- 城陽寺田郵便局
- 京田辺市立中央図書館北部分室
公園
- 木津川運動公園
- 尼塚第7幼児公園
- 八幡市民スポーツ公園
- 京都府立木津川運動公園
利用可能な駅
- 徒歩10分以内
近鉄京都線
- 寺田駅徒歩10分
- すべての駅
JR奈良線
- 城陽駅徒歩25分
- 長池駅3.2km
- 新田駅4km
近鉄京都線
- 富野荘駅徒歩25分
- 久津川駅徒歩31分
- 大久保駅3.8km
JR片町線(学研都市線)
- 大住駅3.5km
- 周辺情報は2023年07月21日時点のものになります。
- 周辺情報は、参考情報としてのみご利用ください(周辺情報は、株式会社LIFULLが地図情報の提供事業者から提供を受けた情報とLIFULL HOME'Sの物件情報に基づき、独自の方法で抽出し提供しているものです。周辺情報は、移転や閉鎖等により情報が最新ではない、または正しくない場合がありますが、地図情報の提供事業者から提供された情報をそのまま周辺情報として表示しているため、正確かつ最新の情報へ修正することができないことがあります。)
- 周辺情報は、株式会社LIFULLが掲載するものであり、不動産物件情報を掲載している不動産会社が掲載するものではありません
- 交通情報の一部については、株式会社LIFULLが掲載するものであり、不動産物件情報を掲載している不動産会社が掲載するものではない場合があります。交通情報に関する質問などは株式会社LIFULLにお問合せください









