LIFULL HOME'Sは物件鮮度No.1!※評価について
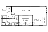
ヒゴエグゼクティブビル(4階/401/3LDK/49.74m²)
ヒゴエグゼクティブビル(4階/401/3LDK/49.74m²)
7.5万円/管理費等5,000円
2日前 更新
画像一覧
1/30間取り
間取
2/30外観
3/30外観
4/30外観
5/30リビング/ダイニング
6/30リビング/ダイニング
7/30リビング/ダイニング
8/30リビング/ダイニング
9/30リビング/ダイニング
10/30リビング/ダイニング
11/30キッチン
12/30キッチン
13/30キッチン
14/30浴室
15/30トイレ
16/30洗面
17/30洗面
18/30洗面
19/30収納
20/30設備
21/30設備
22/30玄関
23/30バルコニー
24/30エントランス
25/30エントランス
26/30その他
27/30その他
28/30その他
29/30その他
30/30周辺
京都七条米浜郵便局まで171m
間取り
外観
外観
外観
リビング/ダイニング
リビング/ダイニング
リビング/ダイニング
リビング/ダイニング
リビング/ダイニング
リビング/ダイニング
キッチン
キッチン
キッチン
浴室
トイレ
洗面
洗面
洗面
収納
設備
設備
玄関
バルコニー
エントランス
エントランス
その他
その他
その他
その他
周辺
1〜4月は引越しシーズンのピークです。お問合せはお早めに!
仲介手数料割引
ご成約時、仲介手数料は賃料の半月分(税別)です。
- 利用条件
- (株)京都ライフ 今出川店で利用可
- 他特典との併用可
- ※法人契約・事業用物件は除きます。 ※大東建託・積水ハウス物件は除きます。
利用方法
来店時に本特典の画面をスマートフォンやタブレットでスタッフに提示、または画面印刷した用紙を提示ください。
有効期限 なし
・大宮駅近く・ 阪急大宮駅まで徒歩4分の3LDKです。JR、京福、阪急、地下鉄にアクセス便利。
基本情報
不動産用語- 賃料
- 7.5万円
- 管理費等
- 5,000円
初期費用などお気軽にお問合せください
- 敷金/礼金
- 無/13万円
- 保証金/敷引・償却金
- -/-
- 交通
阪急京都本線 大宮駅 徒歩4分
京都市営烏丸線 四条駅 徒歩14分
- 所在地
京都府京都市下京区大宮通仏光寺下ル五坊大宮町
地図を見る- 築年月
- 1987年10月(築39年)
- 主要採光面
- 西
- 専有面積
- 49.74㎡
- バルコニー面積
- -
- 所在階/階数
- 4階/5階建
入居可能日などお気軽にお問合せください
- 現況
- 賃貸中
- 入居可能時期
- 2026年03月 下旬

人気物件はすぐに埋まってしまいます。
気になったらお早めにお問合せください。
- 情報公開日
2026/03/11
15日前 公開
- 情報更新日
2026/03/24
2日前 更新
- 次回更新
予定日 - 2026/04/07
物件周辺の生活情報
学校
- 下京中学校(686m)
買い物
- コンビニ(517m)
- スーパー(824m)
その他施設
- 総合病院(1,400m)
- 銀行(520m)
- 京都七条米浜郵便局(171m)
交通
- 阪急京都本線 大宮駅 徒歩4分
- 普通(停車)
- 準急(停車)
- 堺筋準急(停車)
- 通勤特急(停車)
- 特急(通過)
- 急行(停車)
- 準特急(停車)
- 京都市営烏丸線 四条駅 徒歩14分
- 普通(停車)
- 急行(停車)
※急行等の停車駅情報について
急行等の停車駅に関するデータは、随時更新をしておりますが、最新の内容であることを保証するものではありません。
最新かつ正確な情報につきましては、各鉄道会社のウェブサイトにてご確認ください
物件周辺の口コミ
- 京都府京都市下京区高辻通黒門東入に住む人の口コミ30代女性
24時間スーパーが近くにあり、大通りは夜中でも街灯も明るく女性も安心。近くに飲食街やカラオケなどの娯楽施設がある。わざわざ繁華街へ行かなくても楽しめる。また、その繁華街も徒歩でも行ける距離で便利。
口コミを見る
この物件周辺に住む人の口コミ
口コミは、LIFULL HOME'Sが実際にこの物件の周辺に住む18歳~69歳の男女を対象に、WEBアンケート調査を実施しています。内容には回答者の主観的な表現が含まれる場合があるほか、事実と異なる場合もございます。ご了承ください。
- 京都府京都市下京区高辻通黒門東入に住む人の口コミ30代女性
- 24時間スーパーが近くにあり、大通りは夜中でも街灯も明るく女性も安心。近くに飲食街やカラオケなどの娯楽施設がある。わざわざ繁華街へ行かなくても楽しめる。また、その繁華街も徒歩でも行ける距離で便利。
- 京都府京都市中京区黒門通姉小路上るに住む人の口コミ30代男性
- 交通の便はそれほど悪くないし、欲しいものは大抵ネットショッピングで手に入る。あまり不便に感じたことがない。
- 京都府京都市中京区西ノ京池ノ内町に住む人の口コミ50代男性
- 日常生活を送るのに、取り立てて不便に感じることもなく、たまの遠出が必要な程度であるため。繁華街から適度に離れているため、不特定多数の人が町内を歩くことは少ない。
- 京都府京都市中京区壬生相合町に住む人の口コミ60代女性
- 今のところ問題はなく満足できる状況ではあるが、自治体の財政が危機的状況ということなので将来的には不安がある。
- 京都府京都市中京区壬生坊城町に住む人の口コミ40代女性
- 近くに商店街があり、ちょっと頑張って歩いたら神社やお寺の観光もできるから
- 京都府京都市中京区聚楽廻東町に住む人の口コミ30代男性
- 基本的には満足しているが、民泊やホステルが増えてきているため、外国人をよく見かけるようになったことが不満。外国人は増えてほしくないので、外国人向けの宿泊施設を作らないでほしい。
- 京都府京都市上京区智恵光院通丸太町下る4筋目東入に住む人の口コミ50代女性
- 都会過ぎず田舎過ぎず 不便過ぎず便利過ぎず 観光客が多いのが困っていたけどコロナで静かな街になった
- 京都府京都市中京区壬生松原町に住む人の口コミ50代女性
- 静かで住みやすく、買い物をする為の沢山のスーパー や大型商業施設が、整っており 交通手段も 便利で 生活がしやすい場所です
- 京都府京都市中京区壬生天池町に住む人の口コミ50代女性
- 交通アクセスのしやすさ、買い物が便利な所は本当に生活していて快適だと思う。
- 京都府京都市中京区堀川通三条東入に住む人の口コミ30代女性
- 百貨店など繁華街に徒歩でいくことができ、バスや地下鉄、私鉄があり便利。閑静な住宅街で、治安も良い。ただ保育施設までが遠く、図書館や大型のショッピングモール、ホームセンターなどはないため不便。
物件概要
- 建物構造
- ALC造
- 駐車場
- 無
- 総戸数
- 10戸
- 契約形態
- -
- 契約期間
- 2年間
- 更新料
- 新賃料の1ヶ月分
- その他費用
- 鍵交換費用:11,000円、室内清掃費用:55,000円
- 保証会社
- -
- 住宅保険
- 要
- 管理
- 管理員:巡回
- LIFULL HOME'S
物件番号 - 0001367-0293294
- 自社管理番号
- 01868-401-04
- 取引態様
- 仲介
- 会社名
- (株)京都ライフ 今出川店
営業スタッフコメント

(株)京都ライフ 今出川店
國枝昴平
迅速果断
業界経験5年
- 会社実績や特徴・サービス情報
- 京都ライフは40年以上京都に根付いている老舗仲介店舗です。 長年培った物件情報は3万戸以上。 フレッシュでフットワークのよいスタッフが気持ちよいお部屋探しをお手伝いします。
京都ライフは40年以上京都に根付いている老舗仲介店舗です。 長年培った物件情報は3万戸以上。 フレッシュでフットワークのよいスタッフが気持ちよいお部屋探しをお手伝いします。
- 電話でお問合せ(通話無料)
お問合せ先 :(株)京都ライフ 今出川店
不動産会社情報
(株)京都ライフ 今出川店京都ライフ今出川店
京都府京都市上京区烏丸通今出川上る御所八幡町115 コーポ千尋 1階
京都市営烏丸線 今出川駅 徒歩1分
- 営業時間
- 09:30~19:00
- 定休日
- 年中無休(盆正月を除く)
京都ライフでは仲介手数料が家賃の半月分(一部除外有り)!京都のお部屋探しは、創業45年、地元密着企業の京都ライフにお任せください。京都ライフ今出川店は同志社エンタープライズ提携業者です。
- 店舗の特徴
- 24時間管理物件取扱い
- 引越し業者紹介可
- 年中無休
- 送迎あり
- 系列店舗での対応可
- オンライン相談可
- 保証人不要な物件あり
- 法人契約取扱い
- 駅から歩いて3分以内
電話でお問合せお客様の電話番号は不動産会社には通知されません
- 不動産会社に
つながります
お客様の電話番号は不動産会社に通知されません
- ※光IP電話、及びIP電話からはご利用になれません
- ※お電話によるお問合せは、店舗営業時間内にお願いします。つながらない場合は、お問合せフォームよりお問合せください
- ※不動産会社がお電話に出られなかった場合、お問合せいただいた後に不動産会社より折り返しのお電話がある場合がございます(お客様が非通知設定した場合は対象外です)
- ※株式会社LIFULLは電話会社が提供するサービスを介してお客様の発信者番号を受領後、折り返し専用の電話番号を発番してお問合せの不動産会社に通知します(お客様の発信者番号がお問合せの不動産会社に通知されることはございません)
- ※携帯電話からお問合せいただいた方に対し、株式会社LIFULLは電話会社が提供するメッセ―ジサービスを介してお客様の発信者番号を受領後、ショートメッセージ(SMS)またはLINE通知メッセージによるお問合せ内容に関する通知をお届けする場合があります
- ※お客様が通話中に不動産会社にお伝えになったお客様の個人情報及び、電話会社が発番する折り返し専用の電話番号は、お問合せ先不動産会社が資料送付・電子メール送信・電話連絡などの目的で保管する可能性があります。お問合せ先不動産会社が保管する個人情報の取扱いについては、各不動産会社に直接お問合せください
- ※株式会社LIFULLでは本サービスを円滑に運用するために、お客様の発信者番号をサービスご利用の控えとして一定期間保管いたします
- ※上記および株式会社LIFULLの個人情報の取扱い方針に同意のうえ、お電話ください
【LIFULL HOME'S物件番号】0001367-0293294【自社管理番号】01868-401-04
オンライン対応
オンライン相談に対応している物件です

「オンライン内見」「オンライン相談」「IT重説」とは?
物件の内見や不動産会社スタッフとの相談、契約前の重要事項説明をオンライン(ビデオ通話)で行うことができるサービスです。
オンライン内見
ビデオ通話で現地(物件)にいる不動産会社スタッフと映像・音声を使ってリアルタイムで会話しながら内見ができます。
オンライン相談
「物件について聞きたいことがある」など不動産会社スタッフへの相談もビデオ通話で行うことができます。
IT重説
契約前の重要事項説明(重説)をビデオ通話で行うことができます。
利用時の注意事項
- ビデオ通話については各不動産会社指定のものとなります。
- ビデオ通話利用時には通信が発生します。従量課金制通信サービスや通信量に上限があるネット回線・プランを利用する場合は、通信量にご注意ください。
- 通信速度やアプリの設定によってはビデオ通話の画質が低下することがあります。安定した画質で利用するためにも、Wi-Fi環境下での利用を推奨します。
- ご利用のビデオ通話アプリによっては、対象のOSやブラウザに制限がある場合があります。詳しくはお問合せ先不動産会社にご確認ください。
初期費用・月額費用をあわせて確認!この物件に住んだときの費用めやす
めやすを見るこの物件に住んだときの費用めやす
- 初期費用
- 月額費用
- 追加費用※ご確認ください
追加で費用が
かかる場合があります
必ずご確認ください
初期費用めやす約0円
追加で費用がかかります(※)敷金
0
- 礼金
130,000
賃料+共益費・管理費の1ヶ月分として換算
賃料の1ヶ月分+税として換算。不動産会社によって金額が異なるため正確な金額は不動産会社にお問合せください
※追加費用もチェック!
これらの項目以外にも費用がかかる場合があります。正確な金額は不動産会社にお問合せください。
- 初期費用
- 鍵交換費:11,000円
- 室内清掃費:55,000円
- 火災保険費:不動産会社に要確認
- 保証会社
- 不動産会社に要確認
不動産会社より
・大宮駅近く・ 阪急大宮駅まで徒歩4分の3LDKです。JR、京福、阪急、地下鉄にアクセス便利。
敷金ナシです。オートロックでセキュリティも安心。 物件情報はもちろん京都のエリア情報まで幅広く対応させていただきます!
- 保存する
- 共有する
- ※各種情報と現状に差異がある場合は、現状優先となります
- ※不動産会社が入力した情報を基に物件の位置を表示しています。詳しくは不動産会社までお問合せください
- ※不動産会社の方からの上記電話番号によるお問合せはお断りしております。こちら不動産会社詳細からお問合せください
- ※LIFULL HOME'Sは物件鮮度No.1を目指していきます。閲覧中の物件が「成約済である」「実際の物件情報と異なる点がある」などの場合、「掲載110番」からお問合せください
- ※QRコードは株式会社デンソーウェーブの登録商標です
したい暮らしのタグから探す
この物件を取扱う他の会社
LIFULL HOME'Sでは、主要項目が同一の物件をまとめて表示しています。所在地や営業時間、掲載画像等から不動産会社を選んでお問合せください。
株式会社京都ライフ 京都駅前店
京都府京都市下京区塩小路通東洞院西入東塩小路町717-1 京都駅前ビル2階
JR東海道・山陽本線 京都駅 徒歩2分
- 営業時間
- 09:30~19:00
- 定休日
- 年中無休(盆正月を除く)
LIFULL HOME'S 地図・周辺情報
買い物
- ファミリーマート 大宮高辻店
- フレスコ 大宮店
- ケアーズ薬局四条大宮店
- ローソン 堀川高辻店
- ダイソー四条大宮店
グルメ
- CoCo壱番屋 京都四条大宮店
- マクドナルド 四条大宮店
- ロッテリア 京都四条大宮店
- 松屋 四条大宮駅前店
- ガスト 京都四条大宮店(から好し取扱店)
育児・教育
- 光林保育園
- 京都市立下京雅小学校
- 京都市立洛友中学校
- たちばな保育園
- 京都市立洛中小学校
医療
- 山元病院
- 医療法人知音会京都新町病院
- 医療法人令寿会しまばら病院
- 医療法人回生会京都回生病院
- 医療法人毛利病院
公共施設・郵便局
- 京都四条大宮郵便局
- 京都市下京図書館
- 京都府中京警察署
- 京都堀川仏光寺郵便局
- 京都市こどもみらい館子育て図書館
公園
- 光徳公園
- 梅小路公園
- 梅小路公園
- 梅屋広場公園
- 唐橋西寺公園
利用可能な駅
- 徒歩10分以内
阪急京都本線
- 大宮駅徒歩4分
- すべての駅
京都市営烏丸線
- 四条駅徒歩14分
- 周辺情報は2023年07月21日時点のものになります。
- 周辺情報は、参考情報としてのみご利用ください(周辺情報は、株式会社LIFULLが地図情報の提供事業者から提供を受けた情報とLIFULL HOME'Sの物件情報に基づき、独自の方法で抽出し提供しているものです。周辺情報は、移転や閉鎖等により情報が最新ではない、または正しくない場合がありますが、地図情報の提供事業者から提供された情報をそのまま周辺情報として表示しているため、正確かつ最新の情報へ修正することができないことがあります。)
- 周辺情報は、株式会社LIFULLが掲載するものであり、不動産物件情報を掲載している不動産会社が掲載するものではありません
- 交通情報の一部については、株式会社LIFULLが掲載するものであり、不動産物件情報を掲載している不動産会社が掲載するものではない場合があります。交通情報に関する質問などは株式会社LIFULLにお問合せください











