LIFULL HOME'Sは物件鮮度No.1!※評価について
京都地下鉄東西線 京都市役所前駅 徒歩3分(9階/3LDK/85.4m²)
京都地下鉄東西線 京都市役所前駅 徒歩3分(9階/3LDK/85.4m²)
55万円/管理費等-
3日前 更新
画像一覧
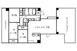
1/30間取り
間取
2/30外観
3/30外観
4/30リビング/ダイニング
5/30リビング/ダイニング
6/30リビング/ダイニング
7/30リビング/ダイニング
8/30リビング/ダイニング
9/30リビング/ダイニング
10/30リビング/ダイニング
11/30室内
12/30キッチン
13/30キッチン
14/30浴室
15/30浴室
16/30トイレ
17/30洗面
18/30収納
19/30収納
20/30収納
21/30設備
22/30設備
23/30設備
24/30設備
25/30玄関
26/30玄関
27/30バルコニー
28/30その他
29/30その他
30/30周辺
セブンイレブン 京都御幸町御池店まで95m
間取り
外観
外観
リビング/ダイニング
リビング/ダイニング
リビング/ダイニング
リビング/ダイニング
リビング/ダイニング
リビング/ダイニング
リビング/ダイニング
室内
キッチン
キッチン
浴室
浴室
トイレ
洗面
収納
収納
収納
設備
設備
設備
設備
玄関
玄関
バルコニー
その他
その他
周辺
仲介手数料割引
京都ライフなら、ご成約時に仲介手数料が家賃の50%(外税)です。
- 利用条件
- 株式会社京都ライフ 出町柳店で利用可
- 他特典との併用可
- ・法人契約時、事業用契約は除く。 ・積水ハウス、大東建託の管理物件は除く。
利用方法
来店時に本特典の画面をスマートフォンやタブレットでスタッフに提示、または画面印刷した用紙を提示ください。
有効期限 なし
ペットは小型犬1匹のみ ペツトは小型犬1匹のみ、ネコは不可となります。
基本情報
不動産用語- 賃料
- 55万円
- 管理費等
- -
初期費用などお気軽にお問合せください
- 敷金/礼金
- 55万円/110万円
- 保証金/敷引・償却金
- -/-
- 交通
京都地下鉄東西線 京都市役所前駅 徒歩3分
京都市営烏丸線 烏丸御池駅 徒歩8分
- 所在地
京都府京都市中京区御池通麩屋町東入上白山町
地図を見る- 築年月
- 2017年8月(築9年)
- 主要採光面
- 西
- 専有面積
- 85.4㎡
- バルコニー面積
- -
- 所在階/階数
- 9階/9階建
- 現況
- 空家
- 入居可能時期
- 即時

人気物件はすぐに埋まってしまいます。
気になったらお早めにお問合せください。
- 情報公開日
2025/10/06
223日前 公開
- 情報更新日
2026/05/14
3日前 更新
- 次回更新
予定日 - 2026/05/24
物件のこだわり/設備・条件
新築(非該当)
2階以上の物件(該当)
南向き(非該当)
駐車場(非該当)
オートロック(該当)
エアコン(該当)
バス・トイレ別(該当)
追焚機能(該当)
フローリング(該当)
ペット相談可(該当)
位置
角部屋入居条件
二人入居可、ペット相談、即入居可- 上記以外や相談可の
詳細はお問合せください キッチン/バス・トイレ
設備・サービス
オートロック、防犯カメラ、TVモニタ付インターホン、エアコン、床暖房、シューズボックス、CS対応、BS対応、インターネット使用料無料、公営水道、都市ガス、下水、フローリング、バルコニー、室内洗濯機置場、エレベーター、ゴミ出し24時間OK、宅配ボックス、駐輪場ありその他
住まい探し特典あり
物件周辺の生活情報
学校
- 御所南小学校(570m)
- 京都御池中学校(280m)
買い物
- コンビニ(95m)
- スーパー(250m)
その他施設
- 総合病院(1,560m)
- 銀行(156m)
- 京都府警察本部(1,660m)
交通
- 京都地下鉄東西線 京都市役所前駅 徒歩3分
- 普通(停車)
- 京都市営烏丸線 烏丸御池駅 徒歩8分
- 普通(停車)
- 急行(停車)
※急行等の停車駅情報について
急行等の停車駅に関するデータは、随時更新をしておりますが、最新の内容であることを保証するものではありません。
最新かつ正確な情報につきましては、各鉄道会社のウェブサイトにてご確認ください
物件周辺の口コミ
- 京都府京都市中京区御池通麩屋町東入に住む人の口コミ30代女性
職場に近く、ショッピングや映画などの娯楽施設も近いので利便性が良い。治安も良いので住みやすい。
口コミを見る
この物件周辺に住む人の口コミ
口コミは、LIFULL HOME'Sが実際にこの物件の周辺に住む18歳~69歳の男女を対象に、WEBアンケート調査を実施しています。内容には回答者の主観的な表現が含まれる場合があるほか、事実と異なる場合もございます。ご了承ください。
- 京都府京都市中京区御池通麩屋町東入に住む人の口コミ30代女性
- 職場に近く、ショッピングや映画などの娯楽施設も近いので利便性が良い。治安も良いので住みやすい。
- 京都府京都市中京区御池通麩屋町東入に住む人の口コミ50代女性
- 夫の会社に歩いて5分。地下鉄の駅も近く、バス路線も多い。少し南になると観光客でいっぱいだが、このあたりは静か。医者や買い物の便もいい。
- 京都府京都市中京区堺町通二条下るに住む人の口コミ60代男性
- 京都市の中心部で、歴史が有り、町内の人達とも仲良く暮らしている。
- 京都府京都市中京区二条通麩屋町下るに住む人の口コミ30代女性
- 大学病院が多く、難病の娘が病院に通いやすい。高所得の人が多いので学力が高く、治安がいい。
- 京都府京都市上京区葭屋町通丸太町上るに住む人の口コミ50代女性
- 交通の便が良く、治安もよい。地域のつながりが強く、安心安全な町である。
- 京都府京都市上京区中立売通油小路東入に住む人の口コミ30代女性
- 治安が良く、住民の方同士、子供にも目を向けてくれるので、ありがたい。小学校が近い
- 京都府京都市左京区吉田河原町に住む人の口コミ60代男性
- 自然が近くにあり、散歩に適している。商業施設、交通機関も近くにあり生活に便利。
- 京都府京都市中京区三条通寺町西入に住む人の口コミ50代女性
- 交通や買い物など、とても便利。治安も悪くないく、住みやすい。
- 京都府京都市左京区吉田河原町に住む人の口コミ30代女性
- 医療費負担(子どもの)か他の自治体より高いのが改善してほしい。子育てするには適してると思う。
- 京都府京都市中京区東洞院通押小路下るに住む人の口コミ60代男性
- 銀行が近くに多い、コンビニ、医院、交通機関が多い、車で外出する時に面倒臭い。
物件概要
- 建物構造
- RC(鉄筋コンクリート)
- 駐車場
- 無
- 総戸数
- 28戸
- 契約形態
- -
- 契約期間
- 2年間
- 更新料
- 新賃料の1ヶ月分
- その他費用
- 室内清掃費用:52,800円、ゴミ処理代:880円、駐輪ステッカー代:1,100円
- 保証会社
加入要
保証会社:オリコフォレント
保証会社利用料:初回:月額賃料等の50%、月額:システム利用料330円、更新時:1万円/1年
- 住宅保険
- 要
- 管理
- 管理員:巡回
- LIFULL HOME'S
物件番号 - 0104168-0247851
- 自社管理番号
- 05A86-901-12
- 取引態様
- 仲介
- 会社名
- 株式会社京都ライフ 出町柳店
営業スタッフコメント

株式会社京都ライフ 出町柳店マネージャー
向山達也
京都賃貸なら京都ライフへお任せください!
業界経験14年
資格宅地建物取引士、少額短期保険募集人
- 会社実績や特徴・サービス情報
- 京都市の賃貸お部屋探しは「創業40年以上。老舗の京都ライフ」へおまかせ下さい。 その他非掲載物件も多数ございます。ぜひ自社HPもご覧ください。 「京都ライフ」で検索でOK。 京都ライフでは仲介手数料は家賃の半月分です。
京都市の賃貸お部屋探しは「創業40年以上。老舗の京都ライフ」へおまかせ下さい。 その他非掲載物件も多数ございます。ぜひ自社HPもご覧ください。 「京都ライフ」で検索でOK。 京都ライフでは仲介手数料は家賃の半月分です。
- 電話でお問合せ(通話無料)
お問合せ先 :株式会社京都ライフ 出町柳店
不動産会社情報
株式会社京都ライフ 出町柳店京都ライフ出町柳店

京都府京都市左京区田中関田町22-13
京阪本線 出町柳駅 徒歩3分
- 営業時間
- 09:30~19:00
- 定休日
- 年中無休(盆正月を除く)
優良店認定
かんたんお部屋探しの京都ライフ「出町柳店」です。左京区を中心に周辺エリアの賃貸物件を長年にわたりご紹介しております。どのエリアも熟知しておりますので、学生様、ファミリー様のお部屋探しもお任せ下さい。
- 店舗の特徴
- 賃貸管理業務
- 24時間管理物件取扱い
- リフォーム対応
- 引越し業者紹介可
- 年中無休
- 保証人不要な物件あり
- 法人契約取扱い
- 女性スタッフ対応可
- 駅から歩いて3分以内
電話でお問合せお客様の電話番号は不動産会社には通知されません
- 不動産会社に
つながります
お客様の電話番号は不動産会社に通知されません
- ※光IP電話、及びIP電話からはご利用になれません
- ※お電話によるお問合せは、店舗営業時間内にお願いします。つながらない場合は、お問合せフォームよりお問合せください
- ※不動産会社がお電話に出られなかった場合、お問合せいただいた後に不動産会社より折り返しのお電話がある場合がございます(お客様が非通知設定した場合は対象外です)
- ※株式会社LIFULLは電話会社が提供するサービスを介してお客様の発信者番号を受領後、折り返し専用の電話番号を発番してお問合せの不動産会社に通知します(お客様の発信者番号がお問合せの不動産会社に通知されることはございません)
- ※携帯電話からお問合せいただいた方に対し、株式会社LIFULLは電話会社が提供するメッセ―ジサービスを介してお客様の発信者番号を受領後、ショートメッセージ(SMS)またはLINE通知メッセージによるお問合せ内容に関する通知をお届けする場合があります
- ※お客様が通話中に不動産会社にお伝えになったお客様の個人情報及び、電話会社が発番する折り返し専用の電話番号は、お問合せ先不動産会社が資料送付・電子メール送信・電話連絡などの目的で保管する可能性があります。お問合せ先不動産会社が保管する個人情報の取扱いについては、各不動産会社に直接お問合せください
- ※株式会社LIFULLでは本サービスを円滑に運用するために、お客様の発信者番号をサービスご利用の控えとして一定期間保管いたします
- ※上記および株式会社LIFULLの個人情報の取扱い方針に同意のうえ、お電話ください
【LIFULL HOME'S物件番号】
オンライン対応
オンライン相談に対応している物件です

「オンライン内見」「オンライン相談」「IT重説」とは?
物件の内見や不動産会社スタッフとの相談、契約前の重要事項説明をオンライン(ビデオ通話)で行うことができるサービスです。
オンライン内見
ビデオ通話で現地(物件)にいる不動産会社スタッフと映像・音声を使ってリアルタイムで会話しながら内見ができます。
オンライン相談
「物件について聞きたいことがある」など不動産会社スタッフへの相談もビデオ通話で行うことができます。
IT重説
契約前の重要事項説明(重説)をビデオ通話で行うことができます。
利用時の注意事項
- ビデオ通話については各不動産会社指定のものとなります。
- ビデオ通話利用時には通信が発生します。従量課金制通信サービスや通信量に上限があるネット回線・プランを利用する場合は、通信量にご注意ください。
- 通信速度やアプリの設定によってはビデオ通話の画質が低下することがあります。安定した画質で利用するためにも、Wi-Fi環境下での利用を推奨します。
- ご利用のビデオ通話アプリによっては、対象のOSやブラウザに制限がある場合があります。詳しくはお問合せ先不動産会社にご確認ください。
初期費用・月額費用をあわせて確認!この物件に住んだときの費用めやす
めやすを見るこの物件に住んだときの費用めやす
- 初期費用
- 月額費用
- 追加費用※ご確認ください
追加で費用が
かかる場合があります
必ずご確認ください
初期費用めやす約0円
追加で費用がかかります(※)敷金
550,000
- 礼金
1,100,000
賃料+共益費・管理費の1ヶ月分として換算
賃料の1ヶ月分+税として換算。不動産会社によって金額が異なるため正確な金額は不動産会社にお問合せください
※追加費用もチェック!
これらの項目以外にも費用がかかる場合があります。正確な金額は不動産会社にお問合せください。
- 初期費用
- 鍵交換費:不動産会社に要確認
- 室内清掃費:52,800円
- 火災保険費:不動産会社に要確認
- その他
- ゴミ処理代:880円
- 駐輪ステッカー代:1100円
- 保証会社
- 初回:月額賃料等の50%、月額:システム利用料330円、更新時:1万円/1年
不動産会社より
ペットは小型犬1匹のみ ペツトは小型犬1匹のみ、ネコは不可となります。
- 保存する
- 共有する
- ※各種情報と現状に差異がある場合は、現状優先となります
- ※不動産会社が入力した情報を基に物件の位置を表示しています。詳しくは不動産会社までお問合せください
- ※不動産会社の方からの上記電話番号によるお問合せはお断りしております。こちら不動産会社詳細からお問合せください
- ※LIFULL HOME'Sは物件鮮度No.1を目指していきます。閲覧中の物件が「成約済である」「実際の物件情報と異なる点がある」などの場合、「掲載110番」からお問合せください
- ※QRコードは株式会社デンソーウェーブの登録商標です
この物件を取扱う他の会社
LIFULL HOME'Sでは、主要項目が同一の物件をまとめて表示しています。所在地や営業時間、掲載画像等から不動産会社を選んでお問合せください。
株式会社京都ライフ 立命館大学前店
優良店認定
京都府京都市北区小松原北町26-5
京福電気鉄道北野線 等持院・立命館大学衣笠キャンパス前駅 徒歩8分
- 営業時間
- 09:30~19:00
- 定休日
- 水曜定休(4/21〜9/20の期間)、盆・正月
同じ建物の他の部屋
LIFULL HOME'S 地図・周辺情報
買い物
- セブンイレブン 京都御幸町御池店
- フレスコ 御池店
- サンドラッグゼスト御池店
- セブンイレブン 京都市役所西店
- Seriaゼスト御池店
グルメ
- 松屋 ホテルユニゾ京都烏丸御池店
- 上島珈琲店京都寺町店
- 丸亀製麺京都市役所前店
- カフェコロラドゼスト御池店
- かに道楽 京都本店
育児・教育
- 京都市御池保育所
- 京都市立御所南小学校
- 京都市立京都御池中学校
- 御所の杜ほいくえん
- 京都市立高倉小学校
医療
- 医療法人財団足立病院
- 医療法人知音会京都新町病院
- 京都第二赤十字病院
- 医療法人毛利病院
- 京都大学医学部附属病院
公共施設・郵便局
- 京都ゼスト御池内郵便局
- 京都市こどもみらい館子育て図書館
- 京都市役所
- 京都御池柳馬場郵便局
- 京都府立図書館
公園
- 梅屋広場公園
- 京都御苑
- 岡崎公園
- 円山公園
- 円山公園
利用可能な駅
- 徒歩10分以内
京都地下鉄東西線
- 京都市役所前駅徒歩3分
京都市営烏丸線
- 烏丸御池駅徒歩8分
- 周辺情報は2023年07月21日時点のものになります。
- 周辺情報は、参考情報としてのみご利用ください(周辺情報は、株式会社LIFULLが地図情報の提供事業者から提供を受けた情報とLIFULL HOME'Sの物件情報に基づき、独自の方法で抽出し提供しているものです。周辺情報は、移転や閉鎖等により情報が最新ではない、または正しくない場合がありますが、地図情報の提供事業者から提供された情報をそのまま周辺情報として表示しているため、正確かつ最新の情報へ修正することができないことがあります。)
- 周辺情報は、株式会社LIFULLが掲載するものであり、不動産物件情報を掲載している不動産会社が掲載するものではありません
- 交通情報の一部については、株式会社LIFULLが掲載するものであり、不動産物件情報を掲載している不動産会社が掲載するものではない場合があります。交通情報に関する質問などは株式会社LIFULLにお問合せください









