LIFULL HOME'Sは物件鮮度No.1!※評価について
向島ニュータウン 3階/G304
7.9万円/管理費等16,000円
20時間前 更新
画像一覧
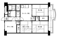
1/30間取り
間取
2/30外観
堂々とした外観
3/30エントランス
広々としたエントランス
4/30その他
たまには階段もご使用下さい
5/30その他
長く広がる共用部
6/30その他
エレベーター2基付き
7/30その他
階の入り口
8/30その他
9/30その他
10/30その他
11/30その他
12/30その他
13/30周辺
向島二の丸小学校まで194m 活気溢れる小学校です。
14/30周辺
向島幼稚園まで196m 近鉄向島駅からすぐ
15/30周辺
ローソン伏見向島駅前店まで264m 近鉄向島駅前のコンビニです。駐車場も広いです。
16/30周辺
セブンイレブン京都向島ニュ-タウン店まで275m 向島ニュータウン目の前です。
17/30周辺
向島中学校まで327m 活気のある中学校です。
18/30周辺
スーパーマエカワまで330m 向島の地元スーパー。
19/30周辺
向島交番まで386m 国道24号線沿いにある交番です。
20/30周辺
フレスコ 向島店まで448m 駐車場もございます。
21/30周辺
京都向島四ツ谷池郵便局まで467m 向島ニュータウン内郵便局。
22/30周辺
とりまさまで545m
23/30周辺
京都中央信用金庫 向島支店まで635m 向島ニュータウン内です。
24/30周辺
京都銀行 向島支店まで635m 向島ニュータウン内の京都銀行
25/30周辺
伏見港公園まで1200m 中書島すぐの立地
26/30周辺
ホームセンターコーナン 伏見大手筋店まで1300m 大手筋通り沿いにあるホームセンターです。駐車場は2階にもあります。
27/30周辺
三井住友銀行 伏見支店まで1400m 大手筋商店街内 雨に打たれません
28/30周辺
京都大橋総合病院まで1600m 大手筋近くの総合病院
29/30周辺
向島駅まで320m
30/30周辺
観月橋駅まで1567m
間取り
外観
エントランス
その他
その他
その他
その他
その他
その他
その他
その他
その他
周辺
周辺
周辺
周辺
周辺
周辺
周辺
周辺
周辺
周辺
周辺
周辺
周辺
周辺
周辺
周辺
周辺
周辺
お問合せ先 :(株)京都ライフ 小倉店
仲介手数料割引
成約時の仲介手数料半月分の税別でご紹介可能です。
- 利用条件
- (株)京都ライフ 小倉店で利用可
- 他特典との併用可
- 個人契約、居住用物件に限ります。 大東建託、積水ハウス物件は除く。
利用方法
来店時に本特典の画面をスマートフォンやタブレットでスタッフに提示、または画面印刷した用紙を提示ください。
有効期限 なし
リノベの分譲賃貸 近鉄向島駅まで徒歩4分の分譲賃貸マンションです。敷金ナシ。
物件のこだわり/設備・条件
新築(非該当)
2階以上の物件(該当)
南向き(該当)
駐車場(非該当)
オートロック(非該当)
エアコン(非該当)
バス・トイレ別(該当)
追焚機能(非該当)
フローリング(該当)
ペット相談(非該当)
入居条件
二人入居可キッチン/バス・トイレ
ガスコンロ設置済、コンロ三口、システムキッチン、カウンターキッチン、給湯、専用バス、専用トイレ、バス・トイレ別、シャワー、洗面所独立設備・サービス
公営水道、都市ガス、下水、フローリング、バルコニー、室内洗濯機置場、南面バルコニー、エレベーター、駐輪場ありその他
分譲賃貸、住まい探し特典あり備考
嬉しい3点セパレートなど充実の設備。コンビニ、スーパーなど近くにあって便利ですよ。 物件情報はもちろん京都のエリア情報まで幅広く対応させていただきます!
物件周辺の生活情報
買い物
- コンビニ(264m)
- スーパー(330m)
その他施設
- 総合病院(1,600m)
- 公園(1,200m)
- 銀行(635m)
- ホームセンターコーナン伏見大手筋店(1,300m)
交通
- 近鉄京都線 向島駅 徒歩4分
- 普通(停車)
- 準急(停車)
- 急行(通過)
- 京阪宇治線 観月橋駅 徒歩20分
- 普通(停車)
※急行等の停車駅情報について
急行等の停車駅に関するデータは、随時更新をしておりますが、最新の内容であることを保証するものではありません。
最新かつ正確な情報につきましては、各鉄道会社のウェブサイトにてご確認ください
物件周辺の口コミ
- 京都府京都市伏見区向島二ノ丸町に住む人の口コミ50代男性
病院やスーパー、図書館、公園、学校、生活に必要なものはそろっているから
口コミを見る
この物件周辺に住む人の口コミ
口コミは、LIFULL HOME'Sが実際にこの物件の周辺に住む18歳~69歳の男女を対象に、WEBアンケート調査を実施しています。内容には回答者の主観的な表現が含まれる場合があるほか、事実と異なる場合もございます。ご了承ください。
- 京都府京都市伏見区向島二ノ丸町に住む人の口コミ50代男性
- 病院やスーパー、図書館、公園、学校、生活に必要なものはそろっているから
- 京都府京都市伏見区向島二ノ丸町に住む人の口コミ40代女性
- 大学があるから若者の一人暮らしにも住みやすいし、田んぼがあるから昔ながらの農家も住んでいる。色んなタイプにも住みやすい環境なので、まずまずの住み良い街かと感じている。
- 京都府京都市伏見区向島二ノ丸町に住む人の口コミ30代女性
- 買い物に不自由はなく、何かあれば近くに病院もある。身体が動きさえすれば、問題なく生活できる。
- 京都府京都市伏見区向島二ノ丸町に住む人の口コミ40代女性
- 電車やバスの交通機関が複数あり、車でも付近に国道が2本と、他にも大きな道路があり、交通の便とスーパーも近くに何軒もあるところです
- 京都府京都市伏見区向島二ノ丸町に住む人の口コミ60代男性
- 幼稚園、小学校、中学校、図書館、スーパー、医院、理容美容、駅が徒歩圏内にある。
- 京都府京都市伏見区向島二ノ丸町に住む人の口コミ40代男性
- 不便を感じることが無く、京都大阪へのアクセスが良い。高速のICも近い。京都市が街づくりや小中一貫校に多くの予算を付けている。
- 京都府京都市伏見区向島二ノ丸町に住む人の口コミ60代女性
- 駅が近く、緑も多く、散歩もしやすい。スーパーも充実していて日々の買い物が安くできて暮らしやすい。
- 京都府京都市伏見区向島二ノ丸町に住む人の口コミ30代女性
- 適度に自然があり、2路線あり使いやすい。徒歩圏内に乳児クラブのある児童館、幼稚園が充実している。ボールを使えるグラウンドがあったり、公園も多数ある。子育てしやすく満足です。
- 京都府京都市伏見区向島庚申町に住む人の口コミ40代女性
- 子供の数がすくないので中学校へ進学すると部活などの数も少なく選びようがない。なのでもう少し子供の為にも対策してほしい
- 京都府宇治市槇島町に住む人の口コミ50代女性
- あまり周りに関心されず生活でき観光地の割にガヤガヤしていない生活のための買い物が徒歩圏内に沢山ある
物件概要
- 建物構造
- RC(鉄筋コンクリート)
- 駐車場
- 無
- 総戸数
- 111戸
- 契約形態
- -
- 契約期間
- 2年間
- 更新料
- 新賃料の1ヶ月分
- その他費用
- 鍵交換費用:22,000円、室内清掃費用:77,000円
- 保証会社
- -
- 住宅保険
- 要
- 管理
- -
- LIFULL HOME'S
物件番号 - 0100017-0220187
- 自社管理番号
- 21723-Gx304-11
- 取引態様
- 仲介
- 会社名
- (株)京都ライフ 小倉店
営業スタッフコメント

(株)京都ライフ 小倉店
中江
営業の立場ではなくお客様の立場でご紹介。
業界経験3年
資格少額短期保険募集人
- 会社実績や特徴・サービス情報
- 宇治市、城陽市、京田辺市、京都南エリアのお部屋探しは「京都ライフ」へお任せ下さい。仲介手数料は一律、家賃の50%(税別)。来客用ガレージも完備。学生様の新生活も全力でサポートいたします。
宇治市、城陽市、京田辺市、京都南エリアのお部屋探しは「京都ライフ」へお任せ下さい。仲介手数料は一律、家賃の50%(税別)。来客用ガレージも完備。学生様の新生活も全力でサポートいたします。
- 電話でお問合せ(通話無料)
お問合せ先 :(株)京都ライフ 小倉店
不動産会社情報
(株)京都ライフ 小倉店京都ライフ小倉店
京都府宇治市小倉町神楽田21-5 ア‐バネックス小倉ビル1F
近鉄京都線 小倉駅 徒歩2分
- 営業時間
- 09:30~19:00
- 定休日
- 年中無休(盆正月を除く)
京都全域くまなくネット!京都でのお部屋探しは創業40年の「かんたんお部屋探しは・・・京都ライフへ!!
- 店舗の特徴
- 賃貸管理業務
- 24時間管理物件取扱い
- リフォーム対応
- 引越し業者紹介可
- 年中無休
- 保証人不要な物件あり
- 法人契約取扱い
- 駅から歩いて3分以内
電話でお問合せお客様の電話番号は不動産会社には通知されません
- 不動産会社に
つながります
お客様の電話番号は不動産会社に通知されません
- ※光IP電話、及びIP電話からはご利用になれません
- ※お電話によるお問合せは、店舗営業時間内にお願いします。つながらない場合は、お問合せフォームよりお問合せください
- ※不動産会社がお電話に出られなかった場合、お問合せいただいた後に不動産会社より折り返しのお電話がある場合がございます(お客様が非通知設定した場合は対象外です)
- ※株式会社LIFULLは電話会社が提供するサービスを介してお客様の発信者番号を受領後、折り返し専用の電話番号を発番してお問合せの不動産会社に通知します(お客様の発信者番号がお問合せの不動産会社に通知されることはございません)
- ※携帯電話からお問合せいただいた方に対し、株式会社LIFULLは電話会社が提供するメッセ―ジサービスを介してお客様の発信者番号を受領後、ショートメッセージ(SMS)またはLINE通知メッセージによるお問合せ内容に関する通知をお届けする場合があります
- ※お客様が通話中に不動産会社にお伝えになったお客様の個人情報及び、電話会社が発番する折り返し専用の電話番号は、お問合せ先不動産会社が資料送付・電子メール送信・電話連絡などの目的で保管する可能性があります。お問合せ先不動産会社が保管する個人情報の取扱いについては、各不動産会社に直接お問合せください
- ※株式会社LIFULLでは本サービスを円滑に運用するために、お客様の発信者番号をサービスご利用の控えとして一定期間保管いたします
- ※上記および株式会社LIFULLの個人情報の取扱い方針に同意のうえ、お電話ください
【LIFULL HOME'S物件番号】0100017-0220187【自社管理番号】21723-Gx304-11
オンライン対応
オンライン相談に対応している物件です

「オンライン内見」「オンライン相談」「IT重説」とは?
物件の内見や不動産会社スタッフとの相談、契約前の重要事項説明をオンライン(ビデオ通話)で行うことができるサービスです。
オンライン内見
ビデオ通話で現地(物件)にいる不動産会社スタッフと映像・音声を使ってリアルタイムで会話しながら内見ができます。
オンライン相談
「物件について聞きたいことがある」など不動産会社スタッフへの相談もビデオ通話で行うことができます。
IT重説
契約前の重要事項説明(重説)をビデオ通話で行うことができます。
利用時の注意事項
- ビデオ通話については各不動産会社指定のものとなります。
- ビデオ通話利用時には通信が発生します。従量課金制通信サービスや通信量に上限があるネット回線・プランを利用する場合は、通信量にご注意ください。
- 通信速度やアプリの設定によってはビデオ通話の画質が低下することがあります。安定した画質で利用するためにも、Wi-Fi環境下での利用を推奨します。
- ご利用のビデオ通話アプリによっては、対象のOSやブラウザに制限がある場合があります。詳しくはお問合せ先不動産会社にご確認ください。
初期費用・月額費用をあわせて確認!この物件に住んだときの費用めやす
めやすを見るこの物件に住んだときの費用めやす
- 初期費用
- 月額費用
- 追加費用※ご確認ください
追加で費用が
かかる場合があります
必ずご確認ください
初期費用めやす約0円
追加で費用がかかります(※)敷金
0
- 礼金
158,000
賃料+共益費・管理費の1ヶ月分として換算
賃料の1ヶ月分+税として換算。不動産会社によって金額が異なるため正確な金額は不動産会社にお問合せください
※追加費用もチェック!
これらの項目以外にも費用がかかる場合があります。正確な金額は不動産会社にお問合せください。
- 初期費用
- 鍵交換費:22,000円
- 室内清掃費:77,000円
- 火災保険費:不動産会社に要確認
- 保証会社
- 不動産会社に要確認
不動産会社より
リノベの分譲賃貸 近鉄向島駅まで徒歩4分の分譲賃貸マンションです。敷金ナシ。
嬉しい3点セパレートなど充実の設備。コンビニ、スーパーなど近くにあって便利ですよ。 物件情報はもちろん京都のエリア情報まで幅広く対応させていただきます!
- 保存する
- 共有する
- ※各種情報と現状に差異がある場合は、現状優先となります
- ※不動産会社が入力した情報を基に物件の位置を表示しています。詳しくは不動産会社までお問合せください
- ※不動産会社の方からの上記電話番号によるお問合せはお断りしております。こちら不動産会社詳細からお問合せください
- ※LIFULL HOME'Sは物件鮮度No.1を目指していきます。閲覧中の物件が「成約済である」「実際の物件情報と異なる点がある」などの場合、「掲載110番」からお問合せください
- ※QRコードは株式会社デンソーウェーブの登録商標です
したい暮らしのタグから探す
この物件を取扱う他の会社
LIFULL HOME'Sでは、主要項目が同一の物件をまとめて表示しています。所在地や営業時間、掲載画像等から不動産会社を選んでお問合せください。
株式会社京都ライフ 山科店
京都府京都市山科区竹鼻竹ノ街道町11
JR東海道・山陽本線 山科駅 徒歩3分
- 営業時間
- 09:30~19:00
- 定休日
- 夏期休暇 8月13日〜8月16日 年末年始休暇 12月27日〜1月4日
LIFULL HOME'S 地図・周辺情報
買い物
- ローソン 伏見向島駅前店
- フレスコ 向島店
- ドラッグユタカ向島店
- セブンイレブン 伏見向島津田町店
- 万代 宇治槙島店
グルメ
- マクドナルド 槙島店
- 無添くら寿司 宇治槇島店
- ロイヤルホスト 宇治槇島店
- なか卯 宇治槇島店
- ガスト 宇治槇島店(から好し取扱店)
育児・教育
- 向島幼稚園
- 京都市立向島藤の木小学校
- 京都市立向島秀蓮小中学校
- 野の百合保育園
- 宇治市立北槙島小学校
医療
- 医療法人健幸会むかいじま病院
- 社会医療法人弘仁会大島病院
- 特定医療法人桃仁会桃仁会病院
- 社会福祉法人浩照会伏見桃山総合病院
- 医療法人徳洲会宇治徳洲会病院
公共施設・郵便局
- 京都向島四ツ谷池郵便局
- 京都市向島図書館
- 京都市伏見区役所
- 京都向島郵便局
- 京都市伏見中央図書館
公園
- 向島東公園
- 宇治川公園
- 西宇治公園
- 二子塚古墳公園
- 三栖公園
利用可能な駅
- 徒歩10分以内
近鉄京都線
- 向島駅徒歩4分
- すべての駅
京阪宇治線
- 観月橋駅徒歩20分
- 桃山南口駅3.1km
- 黄檗駅3.5km
- 木幡駅3.8km
- 六地蔵駅4km
JR奈良線
- 桃山駅徒歩28分
- 黄檗駅3.6km
- 木幡駅3.8km
- 六地蔵駅4.4km
近鉄京都線
- 桃山御陵前駅徒歩28分
- 近鉄丹波橋駅徒歩33分
- 小倉駅3.6km
京阪本線
- 伏見桃山駅徒歩29分
- 中書島駅徒歩30分
- 丹波橋駅徒歩36分
- 周辺情報は2023年07月21日時点のものになります。
- 周辺情報は、参考情報としてのみご利用ください(周辺情報は、株式会社LIFULLが地図情報の提供事業者から提供を受けた情報とLIFULL HOME'Sの物件情報に基づき、独自の方法で抽出し提供しているものです。周辺情報は、移転や閉鎖等により情報が最新ではない、または正しくない場合がありますが、地図情報の提供事業者から提供された情報をそのまま周辺情報として表示しているため、正確かつ最新の情報へ修正することができないことがあります。)
- 周辺情報は、株式会社LIFULLが掲載するものであり、不動産物件情報を掲載している不動産会社が掲載するものではありません
- 交通情報の一部については、株式会社LIFULLが掲載するものであり、不動産物件情報を掲載している不動産会社が掲載するものではない場合があります。交通情報に関する質問などは株式会社LIFULLにお問合せください











