LIFULL HOME'Sは物件鮮度No.1!※評価について
デジデンス宝ヶ池 2階/202
3.5万円/管理費等-
1日前 更新
画像一覧
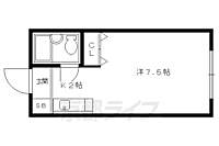
1/30間取り
間取
2/30外観
3/30外観
4/30リビング/ダイニング
5/30リビング/ダイニング
6/30リビング/ダイニング
7/30キッチン
8/30キッチン
9/30キッチン
10/30キッチン
11/30浴室
12/30トイレ
13/30洗面
14/30洗面
15/30収納
16/30収納
17/30収納
18/30収納
19/30設備
20/30設備
21/30設備
22/30設備
23/30設備
24/30設備
25/30設備
26/30設備
27/30設備
28/30玄関
29/30バルコニー
30/30周辺
修学院病院まで995m
間取り
外観
外観
リビング/ダイニング
リビング/ダイニング
リビング/ダイニング
キッチン
キッチン
キッチン
キッチン
浴室
トイレ
洗面
洗面
収納
収納
収納
収納
設備
設備
設備
設備
設備
設備
設備
設備
設備
玄関
バルコニー
周辺
仲介手数料割引
仲介手数料:家賃の50%(税別)でご紹介可能です!
- 利用条件
- アパマンショップ出町柳店 ウインズリンク株式会社で利用可
- 他特典との併用可
利用方法
来店時に本特典の画面をスマートフォンやタブレットでスタッフに提示、または画面印刷した用紙を提示ください。
有効期限 2025年12月10日まで
岩倉割安単身用 京都市左京区 上高野エリアのワンルームマンションです。
物件のこだわり/設備・条件
新築(非該当)
2階以上の物件(該当)
南向き(非該当)
駐車場(非該当)
オートロック(非該当)
エアコン(該当)
バス・トイレ別(非該当)
追焚機能(非該当)
フローリング(該当)
ペット相談(非該当)
入居条件
即入居可キッチン/バス・トイレ
設備・サービス
エアコン、シューズボックス、光ファイバー、公営水道、プロパンガス、下水、フローリング、駐輪場ありその他
住まい探し特典あり備考
京都市左京区 上高野エリアのワンルームマンションです。敷金、礼金ナシ。コンビニ、スーパー、ドラッグストア、ホームセンターなど近くにあって便利ですよ。光ファイバー対応しています。
物件周辺の生活情報
買い物
- コンビニ(149m)
- スーパー(632m)
- ドラッグストア(791m)
その他施設
- 総合病院(995m)
- ホームセンターコーナン宝ケ池上高野店(335m)
交通
- 京都市営烏丸線 国際会館駅 徒歩16分
- 普通(停車)
- 急行(停車)
- 叡山電鉄叡山本線 宝ケ池駅 徒歩2分
- 普通(停車)
※急行等の停車駅情報について
急行等の停車駅に関するデータは、随時更新をしておりますが、最新の内容であることを保証するものではありません。
最新かつ正確な情報につきましては、各鉄道会社のウェブサイトにてご確認ください
物件周辺の口コミ
- 京都府京都市左京区修学院川尻町に住む人の口コミ30代男性
政令指定都市で、ほどよく生活インフラが整っていながら、少し足を伸ばせば自然の多い場所にも行けるところに満足している。
口コミを見る
この物件周辺に住む人の口コミ
口コミは、LIFULL HOME'Sが実際にこの物件の周辺に住む18歳~69歳の男女を対象に、WEBアンケート調査を実施しています。内容には回答者の主観的な表現が含まれる場合があるほか、事実と異なる場合もございます。ご了承ください。
- 京都府京都市左京区修学院川尻町に住む人の口コミ30代男性
- 政令指定都市で、ほどよく生活インフラが整っていながら、少し足を伸ばせば自然の多い場所にも行けるところに満足している。
- 京都府京都市左京区修学院馬場脇町に住む人の口コミ30代男性
- 治安がよい。やんちゃそうな格好をした人がいない。性格が穏やか、落ち着いている人が多い。自然が多い。
- 京都府京都市左京区山端森本町に住む人の口コミ20代女性
- 24時間営業スーパー、高級スーパー、パン屋、ケーキ屋、薬局、酒屋、コンビニなど、買い物の選択肢が多い。また、郵便局や銀行も近くにあるため便利。
- 京都府京都市左京区岩倉中町に住む人の口コミ20代女性
- ファミリー層が多く、近所にスーパーや公園もあるので今後家族が増えた際にも住みやすく居心地のいい場所になりそうと思ったから。
- 京都府京都市左京区上高野三反田町に住む人の口コミ30代女性
- 静かな環境で、穏やかに過ごせる。散歩に適した広い公園があり、野性動物や野鳥が多く、豊か。
- 京都府京都市左京区岩倉西五田町に住む人の口コミ30代男性
- 近くに大きな公園があり、趣味が充実する。その他生活に困るような不便なところがない
- 京都府京都市左京区岩倉三宅町に住む人の口コミ20代女性
- 安いスーパーや大型商業施設などはないが、バスや電車に乗れば繁華街へ出られるから。
- 京都府京都市左京区岩倉長谷町に住む人の口コミ30代女性
- 関わりづらそうな人が比較的少ないので、公園や子育て支援施設を気兼ねなく利用しやすい。美容室が多い。 内科、歯科が多い。幼稚園、保育園が多い。
- 京都府京都市左京区岩倉南桑原町に住む人の口コミ20代女性
- 静かで、自然があり、生活に必要なお店もあるが、中心街から少し遠く、スーパーの閉店時間外が早いため。
- 京都府京都市左京区岩倉中町に住む人の口コミ20代女性
- 銀行、スーパー、ドラッグストア、ホームセンターが近くにあり、バス停も駅も徒歩圏内のため。
物件概要
- 建物構造
- RC(鉄筋コンクリート)
- 駐車場
- 無
- 総戸数
- 17戸
- 契約形態
- -
- 契約期間
- 2年間
- 更新料
- 新賃料の1ヶ月分
- その他費用
- 室内清掃費用:27,500円
- 保証会社
加入要
保証会社:全保連
保証会社利用料:初回:月額賃料等の50%、更新時:1.3万円/1年
- 住宅保険
- 要
- 管理
- 管理員:巡回
- LIFULL HOME'S
物件番号 - 0112427-0137178
- 自社管理番号
- 10709-202
- 取引態様
- 仲介
- 会社名
- アパマンショップ出町柳店 ウインズリンク株式会社
営業スタッフコメント

アパマンショップ出町柳店 ウインズリンク株式会社
伊藤駿希
真面目に誠実な対応を心がけております。
業界経験2年
- 会社実績や特徴・サービス情報
- 学生、社会人、ファミリーのお部屋探しは全てお任せ下さい。 ポンタポイントプレゼントを始めアパマンショップだけの各種キャンペーンもございます。 京都市一円、賃貸物件のお探しはアパマンショップ出町柳店にお任せ下さい。 もちろん仲介手数料は安心価格、家賃の50%(税別)です。 条件交渉・地域環境などのご相談・お問い合わせもお待ちしております。 是非ご一緒にお探しさせていただければと思います。
学生、社会人、ファミリーのお部屋探しは全てお任せ下さい。 ポンタポイントプレゼントを始めアパマンショップだけの各種キャンペーンもございます。 京都市一円、賃貸物件のお探しはアパマンショップ出町柳店にお任せ下さい。 もちろん仲介手数料は安心価格、家賃の50%(税別)です。 条件交渉・地域環境などのご相談・お問い合わせもお待ちしております。 是非ご一緒にお探しさせていただければと思います。
- 電話でお問合せ(通話無料)
お問合せ先 :アパマンショップ出町柳店 ウインズリンク株式会社
不動産会社情報
アパマンショップ出町柳店 ウインズリンク株式会社
京都府京都市左京区田中関田町28−9
京阪本線 出町柳駅 徒歩3分
- 営業時間
- 09:30~19:00(営業時間外のお部屋探しもちろん可能です。ご予約やお問合せ時にご確認下さい。)
- 定休日
- なし(盆休み8/13〜8/16・年末年始12/27〜1/4)
出町柳駅徒歩3分、今出川通沿いの南側にございます。学生さんから社会人・ご家族向け物件まで幅広くご紹介中、条件・ご希望、何でもお申し付け下さい。営業時間外のお部屋探しもご対応可能!ご相談下さい。
- 店舗の特徴
- 賃貸管理業務
- リフォーム対応
- 引越し業者紹介可
- 年中無休
- 保証人不要な物件あり
- 法人契約取扱い
- 女性スタッフ対応可
- 19時以降も営業
- 駅から歩いて3分以内
電話でお問合せお客様の電話番号は不動産会社には通知されません
- 不動産会社に
つながります
お客様の電話番号は不動産会社に通知されません
- ※光IP電話、及びIP電話からはご利用になれません
- ※お電話によるお問合せは、店舗営業時間内にお願いします。つながらない場合は、お問合せフォームよりお問合せください
- ※不動産会社がお電話に出られなかった場合、お問合せいただいた後に不動産会社より折り返しのお電話がある場合がございます(お客様が非通知設定した場合は対象外です)
- ※株式会社LIFULLは電話会社が提供するサービスを介してお客様の発信者番号を受領後、折り返し専用の電話番号を発番してお問合せの不動産会社に通知します(お客様の発信者番号がお問合せの不動産会社に通知されることはございません)
- ※携帯電話からお問合せいただいた方に対し、株式会社LIFULLは電話会社が提供するメッセ―ジサービスを介してお客様の発信者番号を受領後、ショートメッセージ(SMS)またはLINE通知メッセージによるお問合せ内容に関する通知をお届けする場合があります
- ※お客様が通話中に不動産会社にお伝えになったお客様の個人情報及び、電話会社が発番する折り返し専用の電話番号は、お問合せ先不動産会社が資料送付・電子メール送信・電話連絡などの目的で保管する可能性があります。お問合せ先不動産会社が保管する個人情報の取扱いについては、各不動産会社に直接お問合せください
- ※株式会社LIFULLでは本サービスを円滑に運用するために、お客様の発信者番号をサービスご利用の控えとして一定期間保管いたします
- ※上記および株式会社LIFULLの個人情報の取扱い方針に同意のうえ、お電話ください
【LIFULL HOME'S物件番号】0112427-0137178【自社管理番号】10709-202
初期費用・月額費用をあわせて確認!この物件に住んだときの費用めやす
めやすを見るこの物件に住んだときの費用めやす
- 初期費用
- 月額費用
- 追加費用※ご確認ください
追加で費用が
かかる場合があります
必ずご確認ください
初期費用めやす約0円
追加で費用がかかります(※)敷金
0
- 礼金
0
賃料+共益費・管理費の1ヶ月分として換算
賃料の1ヶ月分+税として換算。不動産会社によって金額が異なるため正確な金額は不動産会社にお問合せください
※追加費用もチェック!
これらの項目以外にも費用がかかる場合があります。正確な金額は不動産会社にお問合せください。
- 初期費用
- 鍵交換費:不動産会社に要確認
- 室内清掃費:27,500円
- 火災保険費:不動産会社に要確認
- 保証会社
- 初回:月額賃料等の50%、更新時:1.3万円/1年
不動産会社より
岩倉割安単身用 京都市左京区 上高野エリアのワンルームマンションです。
京都市左京区 上高野エリアのワンルームマンションです。敷金、礼金ナシ。コンビニ、スーパー、ドラッグストア、ホームセンターなど近くにあって便利ですよ。光ファイバー対応しています。
- 保存する
- 共有する
- ※各種情報と現状に差異がある場合は、現状優先となります
- ※不動産会社が入力した情報を基に物件の位置を表示しています。詳しくは不動産会社までお問合せください
- ※不動産会社の方からの上記電話番号によるお問合せはお断りしております。こちら不動産会社詳細からお問合せください
- ※LIFULL HOME'Sは物件鮮度No.1を目指していきます。閲覧中の物件が「成約済である」「実際の物件情報と異なる点がある」などの場合、「掲載110番」からお問合せください
- ※QRコードは株式会社デンソーウェーブの登録商標です
したい暮らしのタグから探す
最近見た賃貸物件
LIFULL HOME'S 地図・周辺情報
買い物
- ファミリーマート 北白川店
- ホームセンターコーナン 宝ケ池上高野店
- ダックス左京宝ケ池店
- セブンイレブン 京都白川通上高野店
- フレスコ 上高野店
グルメ
- にぎり長次郎 宝ヶ池店
- ガスト 京都宝ヶ池店(から好し取扱店)
- マクドナルド 宝ヶ池店
- サンマルク京都北山通り店
- 餃子の王将 宝ケ池店
育児・教育
- 菊の花幼稚園
- 京都市立上高野小学校
- 私立同志社中学校
- 葵保育園
- 京都市立修学院小学校
医療
- 社会福祉法人京都博愛会京都博愛会病院
- 医療法人社団順和会京都下鴨病院
- 医療法人一仁会脳神経リハビリ北大路病院
- 医療法人稲門会いわくら病院
- 医療法人財団康生会北山武田病院
公共施設・郵便局
- 京都上高野郵便局
- 京都市岩倉図書館
- 京都市左京区役所
- 京都山端郵便局
- 京都市左京図書館
公園
- 宝が池公園子どもの楽園
- 宝が池公園
- 岩倉南公園
- 長谷土田公園
利用可能な駅
- 徒歩10分以内
叡山電鉄叡山本線
- 宝ケ池駅徒歩2分
- 三宅八幡駅徒歩9分
- すべての駅
叡山電鉄鞍馬線
- 八幡前駅徒歩12分
- 岩倉駅徒歩24分
- 木野駅徒歩33分
- 京都精華大前駅3.6km
叡山電鉄叡山本線
- 修学院駅徒歩14分
- 一乗寺駅徒歩24分
- 八瀬比叡山口駅徒歩26分
- 茶山・京都芸術大学駅徒歩35分
- 元田中駅3.1km
京都市営烏丸線
- 国際会館駅徒歩16分
- 松ヶ崎駅徒歩27分
- 北山駅3.1km
- 周辺情報は2023年07月21日時点のものになります。
- 周辺情報は、参考情報としてのみご利用ください(周辺情報は、株式会社LIFULLが地図情報の提供事業者から提供を受けた情報とLIFULL HOME'Sの物件情報に基づき、独自の方法で抽出し提供しているものです。周辺情報は、移転や閉鎖等により情報が最新ではない、または正しくない場合がありますが、地図情報の提供事業者から提供された情報をそのまま周辺情報として表示しているため、正確かつ最新の情報へ修正することができないことがあります。)
- 周辺情報は、株式会社LIFULLが掲載するものであり、不動産物件情報を掲載している不動産会社が掲載するものではありません
- 交通情報の一部については、株式会社LIFULLが掲載するものであり、不動産物件情報を掲載している不動産会社が掲載するものではない場合があります。交通情報に関する質問などは株式会社LIFULLにお問合せください


















































