LIFULL HOME'Sは物件鮮度No.1!※評価について
レオパレス長根 2階/208
5.9万円/管理費等7,000円
15時間前 更新
画像一覧
1/23
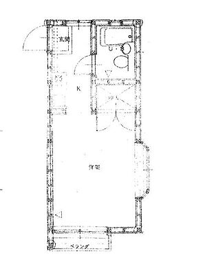
間取り
2/23
外観
3/23
リビング/ダイニング
1F フローリング 2F カーペット
4/23
室内
5/23
室内
6/23
寝室
7/23
キッチン
8/23
浴室
9/23
玄関
10/23
玄関
11/23
玄関
12/23
その他
13/23
その他
14/23
その他
15/23
その他
冷蔵庫・電子レンジ
16/23
その他
17/23
その他
18/23
その他
19/23
その他
20/23
その他
21/23
その他
モニター付きインターホン
22/23
その他
テーブル(折り畳み可能)
23/23
周辺
100m 徒歩2分
間取り
外観
リビング/ダイニング
室内
室内
寝室
キッチン
浴室
玄関
玄関
玄関
その他
その他
その他
その他
その他
その他
その他
その他
その他
その他
その他
周辺
お問合せ先 :レオパレスセンター新栄第5
インターネット使い放題・U-NEXT一般作品見放題プラン有
基本情報
不動産用語- 賃料
- 5.9万円
- 管理費等
- 7,000円
初期費用などお気軽にお問合せください
- 敷金/礼金
- 無/1ヶ月
- 保証金/敷引・償却金
- -/-
- 交通
名鉄常滑線 新舞子駅 バス18分 大興寺下車 徒歩9分
- 所在地
愛知県知多市大興寺字長根
地図を見る- 築年月
- 2007年10月(築19年)
- 主要採光面
- -
- 専有面積
- 22.35㎡
- バルコニー面積
- -
- 所在階/階数
- 2階/2階建
入居可能日などお気軽にお問合せください
- 現況
- 居住中
- 入居可能時期
- 2025年12月 下旬

人気物件はすぐに埋まってしまいます。
気になったらお早めにお問合せください。
- 情報公開日
2025/11/12
15日前 公開
- 情報更新日
2025/11/27
15時間前 更新
- 次回更新
予定日 - 2025/11/29
物件のこだわり/設備・条件
新築(非該当)
2階以上の物件(該当)
南向き(非該当)
駐車場(非該当)
オートロック(非該当)
エアコン(該当)
バス・トイレ別(該当)
追焚機能(非該当)
フローリング(非該当)
ペット相談(非該当)
キッチン/バス・トイレ
設備・サービス
防犯カメラ、TVモニタ付インターホン、エアコン、インターネット対応、室内洗濯機置場、家具・家電付き、駐輪場あり備考
環境維持費:1ヶ月550円(税込)、鍵交換費:ご契約時16500円(税込)、退去時清掃費:41800円(税込)、インターネット利用料:有料、更新手数料:16500円(税込)、保証委託料:必要、引落手数料:524円(税込)
物件周辺の生活情報
買い物
- ドラッグストア(100m)
交通
- 名鉄常滑線 新舞子駅 バス18分 大興寺下車 徒歩9分
- 普通(停車)
- 準急(停車)
- 急行(停車)
- 快速急行(停車)
- 特急(停車)
※急行等の停車駅情報について
急行等の停車駅に関するデータは、随時更新をしておりますが、最新の内容であることを保証するものではありません。
最新かつ正確な情報につきましては、各鉄道会社のウェブサイトにてご確認ください
物件概要
- 建物構造
- 軽量鉄骨造
- 駐車場
- -
- 総戸数
- 22戸
- 契約形態
- -
- 契約期間
- -
- 更新料
- 16,500円
- その他費用
- 鍵交換費用:16,500円、室内清掃費用:41,800円
- 保証会社
- -
- 住宅保険
- 要
- 管理
- -
- LIFULL HOME'S
物件番号 - 3706971-0002091
- 自社管理番号
- 34177-208
- 取引態様
- 貸主★
- 会社名
- レオパレスセンター新栄第5
- 電話でお問合せ(通話無料)
お問合せ先 :レオパレスセンター新栄第5
不動産会社情報
電話でお問合せお客様の電話番号は不動産会社には通知されません
- 不動産会社に
つながります
お客様の電話番号は不動産会社に通知されません
- ※光IP電話、及びIP電話からはご利用になれません
- ※お電話によるお問合せは、店舗営業時間内にお願いします。つながらない場合は、お問合せフォームよりお問合せください
- ※不動産会社がお電話に出られなかった場合、お問合せいただいた後に不動産会社より折り返しのお電話がある場合がございます(お客様が非通知設定した場合は対象外です)
- ※株式会社LIFULLは電話会社が提供するサービスを介してお客様の発信者番号を受領後、折り返し専用の電話番号を発番してお問合せの不動産会社に通知します(お客様の発信者番号がお問合せの不動産会社に通知されることはございません)
- ※携帯電話からお問合せいただいた方に対し、株式会社LIFULLは電話会社が提供するメッセ―ジサービスを介してお客様の発信者番号を受領後、ショートメッセージ(SMS)またはLINE通知メッセージによるお問合せ内容に関する通知をお届けする場合があります
- ※お客様が通話中に不動産会社にお伝えになったお客様の個人情報及び、電話会社が発番する折り返し専用の電話番号は、お問合せ先不動産会社が資料送付・電子メール送信・電話連絡などの目的で保管する可能性があります。お問合せ先不動産会社が保管する個人情報の取扱いについては、各不動産会社に直接お問合せください
- ※株式会社LIFULLでは本サービスを円滑に運用するために、お客様の発信者番号をサービスご利用の控えとして一定期間保管いたします
- ※上記および株式会社LIFULLの個人情報の取扱い方針に同意のうえ、お電話ください
【LIFULL HOME'S物件番号】3706971-0002091【自社管理番号】34177-208
オンライン対応
オンライン相談・IT重説に対応している物件です

「オンライン内見」「オンライン相談」「IT重説」とは?
物件の内見や不動産会社スタッフとの相談、契約前の重要事項説明をオンライン(ビデオ通話)で行うことができるサービスです。
オンライン内見
ビデオ通話で現地(物件)にいる不動産会社スタッフと映像・音声を使ってリアルタイムで会話しながら内見ができます。
オンライン相談
「物件について聞きたいことがある」など不動産会社スタッフへの相談もビデオ通話で行うことができます。
IT重説
契約前の重要事項説明(重説)をビデオ通話で行うことができます。
利用時の注意事項
- ビデオ通話については各不動産会社指定のものとなります。
- ビデオ通話利用時には通信が発生します。従量課金制通信サービスや通信量に上限があるネット回線・プランを利用する場合は、通信量にご注意ください。
- 通信速度やアプリの設定によってはビデオ通話の画質が低下することがあります。安定した画質で利用するためにも、Wi-Fi環境下での利用を推奨します。
- ご利用のビデオ通話アプリによっては、対象のOSやブラウザに制限がある場合があります。詳しくはお問合せ先不動産会社にご確認ください。
初期費用・月額費用をあわせて確認!この物件に住んだときの費用めやす
めやすを見るこの物件に住んだときの費用めやす
- 初期費用
- 月額費用
- 追加費用※ご確認ください
追加で費用が
かかる場合があります
必ずご確認ください
※追加費用もチェック!
これらの項目以外にも費用がかかる場合があります。正確な金額は不動産会社にお問合せください。
- 初期費用
- 鍵交換費:16,500円
- 室内清掃費:41,800円
- 火災保険費:不動産会社に要確認
- 保証会社
- 不動産会社に要確認
不動産会社より
インターネット使い放題・U-NEXT一般作品見放題プラン有
環境維持費:1ヶ月550円(税込)、鍵交換費:ご契約時16500円(税込)、退去時清掃費:41800円(税込)、インターネット利用料:有料、更新手数料:16500円(税込)、保証委託料:必要、引落手数料:524円(税込)
- 保存する
- 共有する
- ※各種情報と現状に差異がある場合は、現状優先となります
- ※不動産会社が入力した情報を基に物件の位置を表示しています。詳しくは不動産会社までお問合せください
- ※不動産会社の方からの上記電話番号によるお問合せはお断りしております。こちら不動産会社詳細からお問合せください
- ※LIFULL HOME'Sは物件鮮度No.1を目指していきます。閲覧中の物件が「成約済である」「実際の物件情報と異なる点がある」などの場合、「掲載110番」からお問合せください
- ※QRコードは株式会社デンソーウェーブの登録商標です
したい暮らしのタグから探す
この物件を取扱う他の会社
LIFULL HOME'Sでは、主要項目が同一の物件をまとめて表示しています。所在地や営業時間、掲載画像等から不動産会社を選んでお問合せください。
大東建託リーシング株式会社 名古屋南店
優良店認定
愛知県名古屋市緑区鴻仏目1丁目611番地
市営バス 篭山西下車 徒歩2分
- 営業時間
- 10:00~18:00(昼休憩12:30〜13:30)
- 定休日
- 毎週火・水曜日 12/11(木)休業、冬季休暇12/22(月)〜1/3(土)
最近見た賃貸物件
LIFULL HOME'S 地図・周辺情報
買い物
- ファミリーマート 知多新広見店
- ヤマナカ 粕谷台店
- ゲンキー旭桃台店
- セブンイレブン 知多旭3丁目店
- マックスバリュ 知多新知店
グルメ
- かつや 愛知新舞子店
- はま寿司知多新知店
- すき家 155号知多新舞子店
- 吉野家 155号線新舞子店
- あみやき亭 知多新舞子店
育児・教育
- 知多市立日長台保育園
- 知多市立旭東小学校
- 知多市立旭南中学校
- 知多市立岡田西保育園
- 知多市立旭北小学校
医療
- 医療法人平病院
- 医療法人メディライフ西知多リハビリテーション病院
公共施設・郵便局
- 知多日長台郵便局
- 知多市立中央図書館
- 知多岡田簡易郵便局
- 知多郵便局
- 尾張三和郵便局
公園
- 旭公園
- 第1号知多墓園
- 北池公園
利用可能な駅
- 徒歩10分以内
名鉄常滑線
- 新舞子駅 バス18分 大興寺下車徒歩9分
- 周辺情報は2023年07月21日時点のものになります。
- 周辺情報は、参考情報としてのみご利用ください(周辺情報は、株式会社LIFULLが地図情報の提供事業者から提供を受けた情報とLIFULL HOME'Sの物件情報に基づき、独自の方法で抽出し提供しているものです。周辺情報は、移転や閉鎖等により情報が最新ではない、または正しくない場合がありますが、地図情報の提供事業者から提供された情報をそのまま周辺情報として表示しているため、正確かつ最新の情報へ修正することができないことがあります。)
- 周辺情報は、株式会社LIFULLが掲載するものであり、不動産物件情報を掲載している不動産会社が掲載するものではありません
- 交通情報の一部については、株式会社LIFULLが掲載するものであり、不動産物件情報を掲載している不動産会社が掲載するものではない場合があります。交通情報に関する質問などは株式会社LIFULLにお問合せください



































