LIFULL HOME'Sは物件鮮度No.1!※評価について
アルテミス大久保1階/ワンルーム/29.07㎡
アルテミス大久保1階/ワンルーム/29.07㎡
4.8万円/管理費等4,000円
11時間前 更新
画像一覧
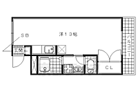
1/30間取り
間取
2/30外観
ネットはフレッッツ光対応済です。
3/30外観
外観です。
4/30リビング/ダイニング
5/30リビング/ダイニング
6/30リビング/ダイニング
7/30リビング/ダイニング
8/30キッチン
9/30キッチン
10/30キッチン
11/30キッチン
12/30キッチン
13/30キッチン
14/30浴室
15/30浴室
16/30トイレ
17/30洗面
18/30洗面
19/30洗面
20/30収納
21/30収納
22/30設備
23/30設備
24/30設備
25/30設備
26/30玄関
27/30バルコニー
28/30その他
29/30その他
30/30周辺
京都銀行 大久保支店まで106m
間取り
外観
外観
リビング/ダイニング
リビング/ダイニング
リビング/ダイニング
リビング/ダイニング
キッチン
キッチン
キッチン
キッチン
キッチン
キッチン
浴室
浴室
トイレ
洗面
洗面
洗面
収納
収納
設備
設備
設備
設備
玄関
バルコニー
その他
その他
周辺
住まい探し特典内容
仲介手数料が家賃の半月分(消費税)です。
- 利用条件
- 株式会社京都ライフ 伏見桃山店で利用可
- 他特典との併用可
- 法人様契約、事業用物件は対象外です。積水ハウス、大東建託の管理物件は除く。
利用方法
来店時に本特典の画面をスマートフォンやタブレットでスタッフに提示、または画面印刷した用紙を提示ください。
有効期限 なし
大久保駅が近い・ 2WAYアクセス可能 近鉄大久保駅まですぐのワンルームマンションです(徒歩3分)。
物件のこだわり/設備・条件
新築(非該当)
2階以上の物件(非該当)
南向き(該当)
駐車場(非該当)
オートロック(該当)
エアコン(該当)
バス・トイレ別(該当)
追焚機能(非該当)
フローリング(該当)
ペット相談(非該当)
入居条件
即入居可キッチン/バス・トイレ
設備・サービス
オートロック、エアコン、BS対応、光ファイバー、公営水道、都市ガス、下水、フローリング、バルコニー、室内洗濯機置場、南面バルコニー、駐輪場ありその他
住まい探し特典あり備考
JR、近鉄のダブルアクセス。敷金、更新料ナシです。嬉しい3点セパレートなど充実の設備。オートロックでセキュリティも安心です。コンビニ、スーパー、ホームセンターなど近くにあって便利ですよ。光ファイバー対応しています。 物件情報はもちろん京都のエリア情報まで幅広く対応させていただきます!
物件周辺の生活情報
買い物
- コンビニ(377m)
- スーパー(218m)
その他施設
- 総合病院(1,500m)
- 銀行(106m)
- コーナンPRO宇治大久保店(107m)
交通
- 近鉄京都線 大久保駅 徒歩3分
- 普通(停車)
- 準急(停車)
- 急行(停車)
- JR奈良線 新田駅 徒歩7分
- 普通(停車)
- 区間快速(停車)
- 快速(停車)
- みやこ路快速(通過)
※急行等の停車駅情報について
急行等の停車駅に関するデータは、随時更新をしておりますが、最新の内容であることを保証するものではありません。
最新かつ正確な情報につきましては、各鉄道会社のウェブサイトにてご確認ください
物件周辺の口コミ
- 京都府宇治市大久保町に住む人の口コミ30代女性
利便性があるが、子育てはしにくい。もっと安心して子育てまできるようになればと思う。それ以外はほぼ満足。
口コミを見る
この物件周辺に住む人の口コミ
口コミは、LIFULL HOME'Sが実際にこの物件の周辺に住む18歳~69歳の男女を対象に、WEBアンケート調査を実施しています。内容には回答者の主観的な表現が含まれる場合があるほか、事実と異なる場合もございます。ご了承ください。
- 京都府宇治市大久保町に住む人の口コミ30代女性
- 利便性があるが、子育てはしにくい。もっと安心して子育てまできるようになればと思う。それ以外はほぼ満足。
- 京都府宇治市大久保町に住む人の口コミ30代男性
- 徒歩圏内に駅が有るため交通の便が良い、自転車、バイクの距離だがスーパーマーケットがある、徒歩圏内にスーパー銭湯がある
- 京都府宇治市大久保町に住む人の口コミ30代男性
- 周辺環境は以前住んでいた所がほぼ完璧だったので敵わない。落ち着ける環境である事、子育てするには良い環境である点。評価出来るのでだいたいは満足です。
- 京都府宇治市大久保町に住む人の口コミ30代女性
- 自然と都会が混在している。サイクリングロードが川沿いに整備されていて、スポーツサイクルをしているのでとても動きやすい。
- 京都府宇治市大久保町に住む人の口コミ30代女性
- あと少し、並木道など四季を感じられながらウォーキングてまきる場所があればいいかなと思います。
- 京都府宇治市大久保町に住む人の口コミ30代女性
- もう少し近くにスーパーが、あればいいなっていいなと、想います。
- 京都府宇治市大久保町に住む人の口コミ10代女性
- 家の土地が広く、畑があり自然があるから。駅が近いから。地域住民との関わりがあるから。
- 京都府宇治市大久保町に住む人の口コミ30代女性
- 交通量は多いが、わりと静か。近くに駅やスーパーがある。小さいがお寺、神社があるから自然を感じられる。四季を感じられる。
- 京都府宇治市大久保町に住む人の口コミ30代女性
- 小さな子どもがいるが、子育てがしやすく、市のサポートも手厚いため安心して生活できる。
- 京都府宇治市伊勢田町に住む人の口コミ20代女性
- 全体的に不自由なく過ごせるので満足ではあるが、最近近所の安いスーパーがなくなってしまったのでその点が不便に感じるため。
物件概要
- 建物構造
- RC(鉄筋コンクリート)
- 駐車場
- 無
- 総戸数
- 24戸
- 契約形態
- -
- 契約期間
- 2年間
- 更新料
- -
- その他費用
- 室内清掃費用:55,000円、水道代:3,000円、抗菌除菌処理代:25,300円、入居者サポート:22,000円
- 保証会社
加入要
保証会社:ジャックス
保証会社利用料:初回:1万円、月額:保証料として月額賃料等の2%
- 住宅保険
- 要
- 管理
- 管理員:巡回
- LIFULL HOME'S
物件番号 - 0138141-0156343
- 自社管理番号
- 50845-A302-25
- 取引態様
- 仲介
- 会社名
- 株式会社京都ライフ 伏見桃山店
営業スタッフコメント

株式会社京都ライフ 伏見桃山店
奥田光貴
全力でサポート致します。
業界経験5年
- スタッフ情報
- 京都の賃貸は京都ライフまでお待ちしております。 伏見桃山に新店を出させて頂きました。新しいお店でお待ちしております。 ご質問、ご不明な点等がございましたらお気軽にお電話、メールにてお問い合わせくださいませ。
京都の賃貸は京都ライフまでお待ちしております。 伏見桃山に新店を出させて頂きました。新しいお店でお待ちしております。 ご質問、ご不明な点等がございましたらお気軽にお電話、メールにてお問い合わせくださいませ。
- 電話でお問合せ(通話無料)
お問合せ先 :株式会社京都ライフ 伏見桃山店
不動産会社情報
株式会社京都ライフ 伏見桃山店

京都府京都市伏見区観音寺町215-1 CONNECT桃山2F
近鉄京都線 桃山御陵前駅 徒歩1分
- 営業時間
- 09:30~19:00
- 定休日
- 年中無休(盆正月を除く)
優良店認定
桃山御陵前駅降りればスグ!人口の多い伏見区、沿線の多い伏見区、大阪へも出易い伏見区でお探しの方へ! もちろん京都市内どこでもご案内致します。全力でお部屋探しをサポートさせて頂きます!
- 店舗の特徴
- 賃貸管理業務
- 24時間管理物件取扱い
- リフォーム対応
- 引越し業者紹介可
- 年中無休
- 社宅・寮物件取扱い
- オンライン相談可
- 保証人不要な物件あり
- 法人契約取扱い
- 駅から歩いて3分以内
電話でお問合せお客様の電話番号は不動産会社には通知されません
- 不動産会社に
つながります
お客様の電話番号は不動産会社に通知されません
- ※光IP電話、及びIP電話からはご利用になれません
- ※お電話によるお問合せは、店舗営業時間内にお願いします。つながらない場合は、お問合せフォームよりお問合せください
- ※不動産会社がお電話に出られなかった場合、お問合せいただいた後に不動産会社より折り返しのお電話がある場合がございます(お客様が非通知設定した場合は対象外です)
- ※株式会社LIFULLは電話会社が提供するサービスを介してお客様の発信者番号を受領後、折り返し専用の電話番号を発番してお問合せの不動産会社に通知します(お客様の発信者番号がお問合せの不動産会社に通知されることはございません)
- ※携帯電話からお問合せいただいた方に対し、株式会社LIFULLは電話会社が提供するメッセ―ジサービスを介してお客様の発信者番号を受領後、ショートメッセージ(SMS)またはLINE通知メッセージによるお問合せ内容に関する通知をお届けする場合があります
- ※お客様が通話中に不動産会社にお伝えになったお客様の個人情報及び、電話会社が発番する折り返し専用の電話番号は、お問合せ先不動産会社が資料送付・電子メール送信・電話連絡などの目的で保管する可能性があります。お問合せ先不動産会社が保管する個人情報の取扱いについては、各不動産会社に直接お問合せください
- ※株式会社LIFULLでは本サービスを円滑に運用するために、お客様の発信者番号をサービスご利用の控えとして一定期間保管いたします
- ※上記および株式会社LIFULLの個人情報の取扱い方針に同意のうえ、お電話ください
【LIFULL HOME'S物件番号】0138141-0156343【自社管理番号】50845-A302-25
初期費用・月額費用をあわせて確認!この物件に住んだときの費用めやす
めやすを見るこの物件に住んだときの費用めやす
- 初期費用
- 月額費用
- 追加費用※ご確認ください
追加で費用が
かかる場合があります
必ずご確認ください
初期費用めやす約0円
追加で費用がかかります(※)敷金
0
- 礼金
0
賃料+共益費・管理費の1ヶ月分として換算
賃料の1ヶ月分+税として換算。不動産会社によって金額が異なるため正確な金額は不動産会社にお問合せください
※追加費用もチェック!
これらの項目以外にも費用がかかる場合があります。正確な金額は不動産会社にお問合せください。
- 初期費用
- 鍵交換費:不動産会社に要確認
- 室内清掃費:55,000円
- 火災保険費:不動産会社に要確認
- その他
- 水道代:3000円
- 抗菌除菌処理代:25300円
- 入居者サポート:22000円
- 保証会社
- 初回:1万円、月額:保証料として月額賃料等の2%
不動産会社より
大久保駅が近い・ 2WAYアクセス可能 近鉄大久保駅まですぐのワンルームマンションです(徒歩3分)。
JR、近鉄のダブルアクセス。敷金、更新料ナシです。嬉しい3点セパレートなど充実の設備。オートロックでセキュリティも安心です。コンビニ、スーパー、ホームセンターなど近くにあって便利ですよ。光ファイバー対応しています。 物件情報はもちろん京都のエリア情報まで幅広く対応させていただきます!
- 保存する
- 共有する
- ※各種情報と現状に差異がある場合は、現状優先となります
- ※不動産会社が入力した情報を基に物件の位置を表示しています。詳しくは不動産会社までお問合せください
- ※不動産会社の方からの上記電話番号によるお問合せはお断りしております。こちら不動産会社詳細からお問合せください
- ※LIFULL HOME'Sは物件鮮度No.1を目指していきます。閲覧中の物件が「成約済である」「実際の物件情報と異なる点がある」などの場合、「掲載110番」からお問合せください
- ※QRコードは株式会社デンソーウェーブの登録商標です
したい暮らしのタグから探す
LIFULL HOME'S 地図・周辺情報
買い物
- ローソン 大久保茶屋裏店
- ハーベス 大久保店
- ダックス城陽久津川店
- ファミリーマート 近鉄大久保駅店
- コーナンPRO宇治大久保店
グルメ
- マクドナルド 宇治大久保店
- ケンタッキーフライドチキン 宇治大久保店
- 無添くら寿司 宇治大久保店
- ブロンコビリー宇治店
- ガスト 城陽店(から好し取扱店)
育児・教育
- 京都文教短期大学附属家政城陽幼稚園
- 宇治市立大久保小学校
- 宇治市立西宇治中学校
- 広野保育所
- 宇治市立西大久保小学校
医療
- 医療法人長安会中村病院
- 医療法人啓信会京都きづ川病院
- 医療法人晴風園ほうゆうリハビリテーション病院
- 医療法人仁心会宇治川病院
- 社会医療法人岡本病院(財団)京都岡本記念病院
公共施設・郵便局
- 新田郵便局
- 宇治市西宇治図書館
- 城陽市役所
- 宇治大久保郵便局
- 久御山町立図書館
公園
- 城南荘児童公園
- 尼塚第7幼児公園
- 宇治市植物公園
- 山城総合運動公園
- 東山緑地
利用可能な駅
- 徒歩10分以内
近鉄京都線
- 大久保駅徒歩3分
JR奈良線
- 新田駅徒歩7分
- すべての駅
近鉄京都線
- 久津川駅徒歩13分
- 伊勢田駅徒歩18分
- 寺田駅徒歩32分
- 小倉駅徒歩32分
JR奈良線
- 城陽駅徒歩28分
- JR小倉駅徒歩30分
- 宇治駅3.5km
- 周辺情報は2023年07月21日時点のものになります。
- 周辺情報は、参考情報としてのみご利用ください(周辺情報は、株式会社LIFULLが地図情報の提供事業者から提供を受けた情報とLIFULL HOME'Sの物件情報に基づき、独自の方法で抽出し提供しているものです。周辺情報は、移転や閉鎖等により情報が最新ではない、または正しくない場合がありますが、地図情報の提供事業者から提供された情報をそのまま周辺情報として表示しているため、正確かつ最新の情報へ修正することができないことがあります。)
- 周辺情報は、株式会社LIFULLが掲載するものであり、不動産物件情報を掲載している不動産会社が掲載するものではありません
- 交通情報の一部については、株式会社LIFULLが掲載するものであり、不動産物件情報を掲載している不動産会社が掲載するものではない場合があります。交通情報に関する質問などは株式会社LIFULLにお問合せください










