LIFULL HOME'Sは物件鮮度No.1!※評価について
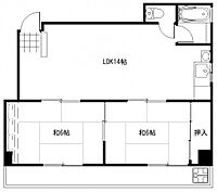
広島電鉄8系統 十日市町駅 徒歩3分(4階/1DK/28.9m²)
広島電鉄8系統 十日市町駅 徒歩3分(4階/1DK/28.9m²)
4.5万円/管理費等-
3時間前 更新
1〜3月は引越しシーズンのピークです。お問合せはお早めに!
住まい探し特典内容
ご来店時にアンケートをご記入いただいた方にPontaポイントプレゼント!
- 利用条件
- アパマンショップ広島駅前店 株式会社 ケイアイホームで利用可
- 他特典との併用可
利用方法
来店時に本特典の画面をスマートフォンやタブレットでスタッフに提示、または画面印刷した用紙を提示ください。
有効期限 なし
来店しないお部屋探し、オンライン来店実施しております♪
物件周辺の生活情報
学校
- 天満小学校(501m)
- 中広中学校(1,319m)
買い物
- コンビニ(128m)
- スーパー(309m)
その他施設
- 総合病院(46m)
交通
- 広島電鉄8系統 十日市町駅 徒歩3分
- 普通(停車)
- 広島電鉄2系統 小網町駅 徒歩5分
- 普通(停車)
※急行等の停車駅情報について
急行等の停車駅に関するデータは、随時更新をしておりますが、最新の内容であることを保証するものではありません。
最新かつ正確な情報につきましては、各鉄道会社のウェブサイトにてご確認ください
物件周辺の口コミ
- 広島県広島市西区上天満町に住む人の口コミ30代女性
スーパーも遅い時間まで開いているし、ドラッグストアや郵便局、銀行が近く便利。街に出るにも歩いて行ける距離だが、バスが少ない気がする。
口コミを見る
この物件周辺に住む人の口コミ
口コミは、LIFULL HOME'Sが実際にこの物件の周辺に住む18歳~69歳の男女を対象に、WEBアンケート調査を実施しています。内容には回答者の主観的な表現が含まれる場合があるほか、事実と異なる場合もございます。ご了承ください。
- 広島県広島市西区上天満町に住む人の口コミ30代女性
- スーパーも遅い時間まで開いているし、ドラッグストアや郵便局、銀行が近く便利。街に出るにも歩いて行ける距離だが、バスが少ない気がする。
- 広島県広島市西区観音町に住む人の口コミ20代女性
- ずっと住み続けるとは思っていない為、現状の生活で特にこだわりはなく、生活に不足がない為。
- 広島県広島市西区福島町に住む人の口コミ20代男性
- 街なかまで自転車で15分程で移動でき、街なかからは少し離れているので治安もわるくないから。なりより便利なナショナル会館に自転車で20分で行くことが出切るから
- 広島県広島市中区小網町に住む人の口コミ20代女性
- 利便性がよいのに静かに過ごせる。商業施設が充実しているので、普段の買い物も、お出かけにも困らない
- 広島県広島市西区観音町に住む人の口コミ20代女性
- 病院が近くにあるため重宝している。ただ音がうるさく、最初はなかなかが慣れなかった。
- 広島県広島市西区中広町に住む人の口コミ20代女性
- 交通の便がよく、スーパー、ドラッグストア、本屋、百円ショップなどが徒歩圏内にあるため。
- 広島県広島市西区福島町に住む人の口コミ30代女性
- 市電・JR・バスが利用できて移動するのに便利。だけど、気軽に入れる飲食店がないのが残念。
- 広島県広島市西区福島町に住む人の口コミ20代女性
- スーパーが近くになくて買い物には不便だけど駅が近くて交通の便がいい
物件概要
- 建物構造
- RC(鉄筋コンクリート)
- 駐車場
- 無
- 総戸数
- -
- 契約形態
- -
- 契約期間
- 2年間
- 更新料
- -
- その他費用
- -
- 保証会社
加入要
保証会社:あんしん保証
保証会社利用料:初回:賃料総額の50%、更新料10,000円/年、月額:880円/月(税込)
- 住宅保険
- 不要
- 管理
- -
- LIFULL HOME'S
物件番号 - 3103456-0304474
- 自社管理番号
- 71216940
- 取引態様
- 仲介
- 会社名
- アパマンショップ広島駅前店 株式会社 ケイアイホーム
営業スタッフコメント

アパマンショップ広島駅前店 株式会社 ケイアイホーム
藤木
営業の藤木です!
業界経験1年
- 会社実績や特徴・サービス情報
- 【広島駅南口より徒歩3分】 広島駅周辺の物件はもちろん、広島駅を中心に、JRは山陽本線・芸備線・呉線・可部線、広電は宮島線から宇品線まで、幅広くご案内可能です! 入学、就職、転勤、独立、同棲、結婚…etc 「どこから探していいのかわからない…なかなかいい物件に出会えない」 そんな悩みをお持ちの方は、是非一度弊社までお問い合わせ下さい! 広島中から、貴方にピッタリの物件をご提案致します!
【広島駅南口より徒歩3分】 広島駅周辺の物件はもちろん、広島駅を中心に、JRは山陽本線・芸備線・呉線・可部線、広電は宮島線から宇品線まで、幅広くご案内可能です! 入学、就職、転勤、独立、同棲、結婚…etc 「どこから探していいのかわからない…なかなかいい物件に出会えない」 そんな悩みをお持ちの方は、是非一度弊社までお問い合わせ下さい! 広島中から、貴方にピッタリの物件をご提案致します!
- 電話でお問合せ(通話無料)
お問合せ先 :アパマンショップ広島駅前店 株式会社 ケイアイホーム
不動産会社情報
アパマンショップ広島駅前店 株式会社 ケイアイホーム

広島県広島市南区大須賀町13-5田村ビル1階
広島電鉄5系統 広島駅駅 徒歩3分
- 営業時間
- 09:30~18:30((1月〜3月))
- 定休日
- お盆・年末年始
優良店認定
アパマンショップのネットワークにより広島市内全域のお部屋探しが可能です!!
- 店舗の特徴
- 引越し業者紹介可
- 送迎あり
- 系列店舗での対応可
- オンライン相談可
- 保証人不要な物件あり
- 法人契約取扱い
- 女性スタッフ対応可
- 駅から歩いて3分以内
電話でお問合せお客様の電話番号は不動産会社には通知されません
- 不動産会社に
つながります
お客様の電話番号は不動産会社に通知されません
- ※光IP電話、及びIP電話からはご利用になれません
- ※お電話によるお問合せは、店舗営業時間内にお願いします。つながらない場合は、お問合せフォームよりお問合せください
- ※不動産会社がお電話に出られなかった場合、お問合せいただいた後に不動産会社より折り返しのお電話がある場合がございます(お客様が非通知設定した場合は対象外です)
- ※株式会社LIFULLは電話会社が提供するサービスを介してお客様の発信者番号を受領後、折り返し専用の電話番号を発番してお問合せの不動産会社に通知します(お客様の発信者番号がお問合せの不動産会社に通知されることはございません)
- ※携帯電話からお問合せいただいた方に対し、株式会社LIFULLは電話会社が提供するメッセ―ジサービスを介してお客様の発信者番号を受領後、ショートメッセージ(SMS)またはLINE通知メッセージによるお問合せ内容に関する通知をお届けする場合があります
- ※お客様が通話中に不動産会社にお伝えになったお客様の個人情報及び、電話会社が発番する折り返し専用の電話番号は、お問合せ先不動産会社が資料送付・電子メール送信・電話連絡などの目的で保管する可能性があります。お問合せ先不動産会社が保管する個人情報の取扱いについては、各不動産会社に直接お問合せください
- ※株式会社LIFULLでは本サービスを円滑に運用するために、お客様の発信者番号をサービスご利用の控えとして一定期間保管いたします
- ※上記および株式会社LIFULLの個人情報の取扱い方針に同意のうえ、お電話ください
【LIFULL HOME'S物件番号】3103456-0304474【自社管理番号】71216940
初期費用・月額費用をあわせて確認!この物件に住んだときの費用めやす
めやすを見るこの物件に住んだときの費用めやす
- 初期費用
- 月額費用
- 追加費用※ご確認ください
追加で費用が
かかる場合があります
必ずご確認ください
初期費用めやす約0円
追加で費用がかかります(※)敷金
135,000
- 礼金
45,000
賃料+共益費・管理費の1ヶ月分として換算
賃料の1ヶ月分+税として換算。不動産会社によって金額が異なるため正確な金額は不動産会社にお問合せください
※追加費用もチェック!
これらの項目以外にも費用がかかる場合があります。正確な金額は不動産会社にお問合せください。
- 初期費用
- 鍵交換費:不動産会社に要確認
- 室内清掃費:不動産会社に要確認
- 火災保険費:不動産会社に要確認
- 保証会社
- 初回:賃料総額の50%、更新料10,000円/年、月額:880円/月(税込)
不動産会社より
来店しないお部屋探し、オンライン来店実施しております♪
- 保存する
- 共有する
- ※各種情報と現状に差異がある場合は、現状優先となります
- ※不動産会社が入力した情報を基に物件の位置を表示しています。詳しくは不動産会社までお問合せください
- ※不動産会社の方からの上記電話番号によるお問合せはお断りしております。こちら不動産会社詳細からお問合せください
- ※LIFULL HOME'Sは物件鮮度No.1を目指していきます。閲覧中の物件が「成約済である」「実際の物件情報と異なる点がある」などの場合、「掲載110番」からお問合せください
- ※QRコードは株式会社デンソーウェーブの登録商標です
LIFULL HOME'S 地図・周辺情報
買い物
- セブンイレブン 広島西十日市店
- ママチェーン十日市店
- ウォンツ中広町1丁目店
- ファミリーマート 西十日市店
- ユアーズ 十日市店
グルメ
- モスバーガー 広島十日市店
- なか卯 広島西十日市店
- 星乃珈琲店広島大手町店
- タリーズコーヒーエディオン広島本店西館店
- 松屋 広島紙屋町店
育児・教育
- なごみ保育園
- 広島市立天満小学校
- 広島市立中広中学校
- ひかり保育園
- 広島市立広瀬小学校
医療
- 医療法人社団正岡病院
- 医療法人社団光仁会梶川病院
- 国家公務員共済組合連合会広島記念病院
- 医療法人社団曙会シムラ病院
- 広島中央保健生活協同組合福島生協病院
公共施設・郵便局
- 広島十日市郵便局
- 5-Daysこども図書館
- 広島市西区役所
- 広島西郵便局
- 広島市立中区図書館
公園
- 平和記念公園
- 平和記念公園
- HIROSHIMA GATE PARK PLAZA
- 中央公園
- 西部河岸緑地
利用可能な駅
- 徒歩10分以内
広島電鉄8系統
- 十日市町駅徒歩3分
- 寺町駅徒歩10分
広島電鉄2系統
- 小網町駅徒歩5分
- 土橋駅徒歩6分
- 本川町駅徒歩9分
- 天満町駅徒歩9分
- すべての駅
広島電鉄2系統
- 観音町駅徒歩11分
- 原爆ドーム前駅徒歩13分
- 西観音町駅徒歩15分
- 紙屋町西駅徒歩16分
- 福島町駅徒歩19分
- 広電西広島(己斐)駅徒歩25分
広島電鉄6系統
- 舟入町駅徒歩13分
- 舟入本町駅徒歩18分
- 舟入幸町駅徒歩22分
広島電鉄8系統
- 別院前駅徒歩14分
- 横川一丁目駅徒歩18分
広島電鉄1系統
- 紙屋町東駅徒歩18分
- 袋町駅徒歩21分
- 立町駅徒歩21分
- 中電前駅徒歩22分
- 八丁堀駅徒歩25分
- 市役所前駅徒歩26分
- 鷹野橋駅徒歩31分
広島高速交通アストラムライン
- 県庁前駅徒歩19分
- 本通駅徒歩20分
- 城北駅徒歩28分
JR山陽本線
- 横川駅徒歩23分
- 西広島駅徒歩25分
広島電鉄9系統
- 女学院前駅徒歩30分
- 周辺情報は2023年07月21日時点のものになります。
- 周辺情報は、参考情報としてのみご利用ください(周辺情報は、株式会社LIFULLが地図情報の提供事業者から提供を受けた情報とLIFULL HOME'Sの物件情報に基づき、独自の方法で抽出し提供しているものです。周辺情報は、移転や閉鎖等により情報が最新ではない、または正しくない場合がありますが、地図情報の提供事業者から提供された情報をそのまま周辺情報として表示しているため、正確かつ最新の情報へ修正することができないことがあります。)
- 周辺情報は、株式会社LIFULLが掲載するものであり、不動産物件情報を掲載している不動産会社が掲載するものではありません
- 交通情報の一部については、株式会社LIFULLが掲載するものであり、不動産物件情報を掲載している不動産会社が掲載するものではない場合があります。交通情報に関する質問などは株式会社LIFULLにお問合せください




















