LIFULL HOME'Sは物件鮮度No.1!※評価について
京阪本線 鳥羽街道駅 徒歩4分(1階/1K/21.06m²)
京阪本線 鳥羽街道駅 徒歩4分(1階/1K/21.06m²)
5.4万円/管理費等5,000円
3時間前 更新
画像一覧
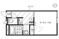
1/28間取り
2/28リビング/ダイニング
洋室
3/28室内
洋室
4/28寝室
洋室
5/28寝室
洋室
6/28子供部屋
洋室
7/28キッチン
キッチン
8/28キッチン
キッチン
9/28キッチン
キッチン
10/28浴室
風呂
11/28浴室
風呂
12/28トイレ
トイレ
13/28洗面
洗面所
14/28収納
収納
15/28収納
収納
16/28設備
セコム
17/28設備
冷蔵庫置場
18/28設備
洗濯機置場
19/28設備
下駄箱
20/28設備
洗濯機置場
21/28玄関
玄関
22/28その他
廊下
23/28その他
眺望
24/28その他
エアコン
25/28その他
インターフォン
26/28その他
眺望
27/28周辺
スーパースマイル 藤森店まで200メートル
28/28周辺
ファミリーマート 師団街道深草店まで200メートル
間取り
リビング/ダイニング
室内
寝室
寝室
子供部屋
キッチン
キッチン
キッチン
浴室
浴室
トイレ
洗面
収納
収納
設備
設備
設備
設備
設備
玄関
その他
その他
その他
その他
その他
周辺
周辺
お問合せ先 :株式会社エリッツ 深草店
1〜3月は引越しシーズンのピークです。お問合せはお早めに!
住まい探し特典内容
電気・ガス・インターネットの手続き代行のご案内します。
- 利用条件
- 株式会社エリッツ 深草店で利用可
- 他特典との併用可
利用方法
来店時に本特典の画面をスマートフォンやタブレットでスタッフに提示、または画面印刷した用紙を提示ください。
有効期限 なし
家具家電付きのレオパレスです--パノラマ掲載--
物件のこだわり/設備・条件
新築(非該当)
2階以上の物件(非該当)
南向き(該当)
駐車場(非該当)
オートロック(非該当)
エアコン(該当)
バス・トイレ別(該当)
追焚機能(非該当)
フローリング(該当)
ペット相談(非該当)
入居条件
二人入居可、保証人不要、即入居可キッチン/バス・トイレ
駐車・駐輪
駐輪場ありテレビ・通信
光ファイバー電気・ガス・水道
公営水道、プロパンガス、下水収納
クローゼット、シューズボックス室内
エアコン、フローリング、洗濯機置場あり、家具・家電付き特徴
ロフト付き、住まい探し特典ありバルコニー・庭
専用庭付き備考
【京阪鳥羽街道駅から徒歩3分】【京都女子大学から自転車で13分】バス・トイレ別です。ロフト付きです。2口コンロで料理しやすいです。スーパーコンビニまで徒歩3分です。・光ファイバーインターネット接続可
物件周辺の生活情報
学校
- 京都女子中学校(2,500m)
買い物
- コンビニ(200m)
- スーパー(200m)
その他施設
- 総合病院(1,300m)
交通
- 京阪本線 鳥羽街道駅 徒歩4分
- 普通(停車)
- 区間急行(通過)
- 急行(通過)
- 特急(通過)
- 通勤準急・準急(停車)
- 快速特急 洛楽(通過)
- 通勤快急・快速急行(通過)
- JR奈良線 東福寺駅 徒歩11分
- 普通(停車)
- 区間快速(停車)
- 快速(停車)
- みやこ路快速(停車)
※急行等の停車駅情報について
急行等の停車駅に関するデータは、随時更新をしておりますが、最新の内容であることを保証するものではありません。
最新かつ正確な情報につきましては、各鉄道会社のウェブサイトにてご確認ください
物件周辺の口コミ
- 京都府京都市東山区福稲御所ノ内町に住む人の口コミ30代男性
交通の便がよく、町の中心・繁華街までなら電車で乗り換えなしで行ける。
口コミを見る
この物件周辺に住む人の口コミ
口コミは、LIFULL HOME'Sが実際にこの物件の周辺に住む18歳~69歳の男女を対象に、WEBアンケート調査を実施しています。内容には回答者の主観的な表現が含まれる場合があるほか、事実と異なる場合もございます。ご了承ください。
- 京都府京都市東山区福稲御所ノ内町に住む人の口コミ30代男性
- 交通の便がよく、町の中心・繁華街までなら電車で乗り換えなしで行ける。
- 京都府京都市東山区福稲上高松町に住む人の口コミ20代女性
- 少し不便に感じることはありますが、おおむね住みやすい街と感じています。
- 京都府京都市伏見区深草下横縄町に住む人の口コミ20代女性
- スーパーが徒歩圏内にあるから助かる。しかし、外国人観光客が多いこともあり生活する際に邪魔になると思う時が多々ある。
- 京都府京都市南区上鳥羽勧進橋町に住む人の口コミ30代女性
- 駅が近いので近くにスーパーが無くても電車ですぐ買い物に行ける。地下鉄10分ほどで市内中心部に行けるのが良い。
- 京都府京都市東山区今熊野宝蔵町に住む人の口コミ30代男性
- 最新の設備などがないことは不満であるが、自然豊かな地域なので満足はしている
- 京都府京都市伏見区深草塚本町に住む人の口コミ20代女性
- 不便なところがないため。特に交通の便や、スーパーなど買い物に困ったことがないため。
- 京都府京都市南区東九条南松ノ木町に住む人の口コミ30代男性
- 交通機関やコンビニエンスストアや家電量販店などが場所的に近いところにあり近くに東福寺や伏見稲荷などの観光名所がありまた自然環境に恵まれている
- 京都府京都市南区上鳥羽勧進橋町に住む人の口コミ30代女性
- どこにいくにも便利で三路線使えて道も広く車も運転しやすい。コンビニやスーパーも近くにあるので便利。公園も近くにあり子供があそぶところもある。
- 京都府京都市下京区屋形町に住む人の口コミ30代男性
- 治安はいいとは言えないが駅、お店などが近くにあり、家賃なども安い方だと思います。
- 京都府京都市伏見区深草稲荷御前町に住む人の口コミ20代女性
- 店や病院が多くあり生活しやすい。観光客が多すぎて困ることが多々ある
物件概要
- 建物構造
- 鉄骨造
- 駐車場
- 近隣 11,000円(税込) 物件からの距離358m
- 総戸数
- 12戸
- 契約形態
- -
- 契約期間
- 2年間
- 更新料
- -
- その他費用
- 鍵交換費用:16,500円、室内清掃費用:41,800円、設備維持費(月額):550円、インターネット使用料(月額):3,630円
- 保証会社
加入要
保証会社利用料:63、180円
- 住宅保険
- 要
- 管理
- -
- LIFULL HOME'S
物件番号 - 0110592-0294107
- 自社管理番号
- 49339-0103
- 取引態様
- 仲介
- 会社名
- 株式会社エリッツ 深草店
営業スタッフコメント

株式会社エリッツ 深草店
井口太智
深草店の井口です! 誠心誠意をもってお部屋探しに携わらせていただきます!
業界経験3年
- スタッフ情報
- 龍谷大学生様・伏見区のお部屋探しは賃貸のエリッツ深草店にお任せ下さい。賃貸のエリッツ深草店は、伏見区の賃貸物件を豊富に取り揃えております。龍谷大学の正面にあり、龍谷大学周辺の賃貸物件の取り扱い数は地域ナンバーワン。龍谷大学から徒歩1分なので、大学の授業の合間や授業終わりでもすぐに賃貸物件のご案内に行けますよ。もちろん龍谷大学の学生様以外にも、社会人の一人暮らしや、新婚、ご家族の方向けの賃貸物件もご紹介できます。伏見区深草エリアは、京阪・JR・地下鉄・近鉄と様々な沿線があり、商業施設も充実して、生活がとっても便利です。新婚様・ファミリー様にもオススメです。賃貸のエリッツ深草店には、龍大OBや伏見区で生まれ育ったスタッフが在籍しております。伏見区はもちろん、京都市内どのエリアでもお探しさせて頂きます。お部屋探し以外のことでもぜひご相談ください。ご来店スタッフ一同心よりお待ちしております。
龍谷大学生様・伏見区のお部屋探しは賃貸のエリッツ深草店にお任せ下さい。賃貸のエリッツ深草店は、伏見区の賃貸物件を豊富に取り揃えております。龍谷大学の正面にあり、龍谷大学周辺の賃貸物件の取り扱い数は地域ナンバーワン。龍谷大学から徒歩1分なので、大学の授業の合間や授業終わりでもすぐに賃貸物件のご案内に行けますよ。もちろん龍谷大学の学生様以外にも、社会人の一人暮らしや、新婚、ご家族の方向けの賃貸物件もご紹介できます。伏見区深草エリアは、京阪・JR・地下鉄・近鉄と様々な沿線があり、商業施設も充実して、生活がとっても便利です。新婚様・ファミリー様にもオススメです。賃貸のエリッツ深草店には、龍大OBや伏見区で生まれ育ったスタッフが在籍しております。伏見区はもちろん、京都市内どのエリアでもお探しさせて頂きます。お部屋探し以外のことでもぜひご相談ください。ご来店スタッフ一同心よりお待ちしております。
- 電話でお問合せ(通話無料)
お問合せ先 :株式会社エリッツ 深草店
不動産会社情報
株式会社エリッツ 深草店賃貸のエリッツ深草店

京都府京都市伏見区深草西浦町4丁目31番地
京阪本線 龍谷大前深草駅 徒歩5分
- 営業時間
- 10:00~19:00
- 定休日
- 水曜日(祝日を除く)、年末年始 ※部屋探しのお問い合わせは無休
優良店認定
伏見区のお部屋探しはエリッツ深草店へ。龍谷大学生様のお部屋探しは物件数NO,1のエリッツにお任せ下さい。新婚様向け物件も多数ございます。日本語学校の留学生も歓迎します。
- 店舗の特徴
- 引越し業者紹介可
- バリアフリー
- 社宅・寮物件取扱い
- オンライン相談可
- 保証人不要な物件あり
- 法人契約取扱い
電話でお問合せお客様の電話番号は不動産会社には通知されません
- 不動産会社に
つながります
お客様の電話番号は不動産会社に通知されません
- ※光IP電話、及びIP電話からはご利用になれません
- ※お電話によるお問合せは、店舗営業時間内にお願いします。つながらない場合は、お問合せフォームよりお問合せください
- ※不動産会社がお電話に出られなかった場合、お問合せいただいた後に不動産会社より折り返しのお電話がある場合がございます(お客様が非通知設定した場合は対象外です)
- ※株式会社LIFULLは電話会社が提供するサービスを介してお客様の発信者番号を受領後、折り返し専用の電話番号を発番してお問合せの不動産会社に通知します(お客様の発信者番号がお問合せの不動産会社に通知されることはございません)
- ※携帯電話からお問合せいただいた方に対し、株式会社LIFULLは電話会社が提供するメッセ―ジサービスを介してお客様の発信者番号を受領後、ショートメッセージ(SMS)またはLINE通知メッセージによるお問合せ内容に関する通知をお届けする場合があります
- ※お客様が通話中に不動産会社にお伝えになったお客様の個人情報及び、電話会社が発番する折り返し専用の電話番号は、お問合せ先不動産会社が資料送付・電子メール送信・電話連絡などの目的で保管する可能性があります。お問合せ先不動産会社が保管する個人情報の取扱いについては、各不動産会社に直接お問合せください
- ※株式会社LIFULLでは本サービスを円滑に運用するために、お客様の発信者番号をサービスご利用の控えとして一定期間保管いたします
- ※上記および株式会社LIFULLの個人情報の取扱い方針に同意のうえ、お電話ください
【LIFULL HOME'S物件番号】0110592-0294107【自社管理番号】49339-0103
オンライン対応
オンライン内見・オンライン相談・IT重説に対応している物件です

「オンライン内見」「オンライン相談」「IT重説」とは?
物件の内見や不動産会社スタッフとの相談、契約前の重要事項説明をオンライン(ビデオ通話)で行うことができるサービスです。
オンライン内見
ビデオ通話で現地(物件)にいる不動産会社スタッフと映像・音声を使ってリアルタイムで会話しながら内見ができます。
オンライン相談
「物件について聞きたいことがある」など不動産会社スタッフへの相談もビデオ通話で行うことができます。
IT重説
契約前の重要事項説明(重説)をビデオ通話で行うことができます。
利用時の注意事項
- ビデオ通話については各不動産会社指定のものとなります。
- ビデオ通話利用時には通信が発生します。従量課金制通信サービスや通信量に上限があるネット回線・プランを利用する場合は、通信量にご注意ください。
- 通信速度やアプリの設定によってはビデオ通話の画質が低下することがあります。安定した画質で利用するためにも、Wi-Fi環境下での利用を推奨します。
- ご利用のビデオ通話アプリによっては、対象のOSやブラウザに制限がある場合があります。詳しくはお問合せ先不動産会社にご確認ください。
初期費用・月額費用をあわせて確認!この物件に住んだときの費用めやす
めやすを見るこの物件に住んだときの費用めやす
- 初期費用
- 月額費用
- 追加費用※ご確認ください
追加で費用が
かかる場合があります
必ずご確認ください
初期費用めやす約0円
追加で費用がかかります(※)敷金
0
- 礼金
54,000
賃料+共益費・管理費の1ヶ月分として換算
賃料の1ヶ月分+税として換算。不動産会社によって金額が異なるため正確な金額は不動産会社にお問合せください
※追加費用もチェック!
これらの項目以外にも費用がかかる場合があります。正確な金額は不動産会社にお問合せください。
- 初期費用
- 鍵交換費:16,500円
- 室内清掃費:41,800円
- 火災保険費:不動産会社に要確認
- 月額費用
- 駐車場費:11,000円(税込)※近隣
- その他
- 設備維持費(月額):550円
- インターネット使用料(月額):3630円
- 保証会社
- 63、180円
不動産会社より
家具家電付きのレオパレスです--パノラマ掲載--
【京阪鳥羽街道駅から徒歩3分】【京都女子大学から自転車で13分】バス・トイレ別です。ロフト付きです。2口コンロで料理しやすいです。スーパーコンビニまで徒歩3分です。・光ファイバーインターネット接続可
- 保存する
- 共有する
- ※各種情報と現状に差異がある場合は、現状優先となります
- ※不動産会社が入力した情報を基に物件の位置を表示しています。詳しくは不動産会社までお問合せください
- ※不動産会社の方からの上記電話番号によるお問合せはお断りしております。こちら不動産会社詳細からお問合せください
- ※LIFULL HOME'Sは物件鮮度No.1を目指していきます。閲覧中の物件が「成約済である」「実際の物件情報と異なる点がある」などの場合、「掲載110番」からお問合せください
- ※QRコードは株式会社デンソーウェーブの登録商標です
この物件を取扱う他の会社
LIFULL HOME'Sでは、主要項目が同一の物件をまとめて表示しています。所在地や営業時間、掲載画像等から不動産会社を選んでお問合せください。
株式会社エリッツ 六地蔵店
優良店認定
京都府宇治市六地蔵奈良町74番地1 パデシオン六地蔵 ザ・ミッドモール1階
京都地下鉄東西線 六地蔵駅 徒歩1分
- 営業時間
- 10:00~19:00
- 定休日
- 水曜日(祝日を除く)、年末年始 お部屋探しのお問い合わせは無休
株式会社エリッツ 京都駅前店
優良店認定
京都府京都市下京区塩小路通東洞院東入東塩小路町547番地 ステーションコートヤード1階
JR東海道・山陽本線 京都駅 徒歩2分
- 営業時間
- 10:00~19:00
- 定休日
- 年中無休(年末年始を除く)
株式会社エリッツ 竹田店
優良店認定
京都府京都市伏見区竹田段川原町258 アルデールB 1F
京都市営烏丸線 竹田駅 徒歩1分
- 営業時間
- 10:00~19:00
- 定休日
- 火・水曜日(祝日を除く)、年末年始 ※部屋探しのお問い合わせは無休
同じ建物の他の部屋
LIFULL HOME'S 地図・周辺情報
買い物
- ファミリーマート 師団街道深草店
- ライフ 伏見深草店
- ドラッグユタカ伏見フケノ内店
- セブンイレブン 京阪鳥羽街道駅前店
- フレスコ 深草店
グルメ
- コメダ珈琲店京都伏見稲荷店
- 和食さと 大石橋店
- マクドナルド 竹田街道店
- スターバックスコーヒー龍谷大学店
- CoCo壱番屋 南区八条口店
育児・教育
- 松ノ木保育園
- 京都市立稲荷小学校
- 京都市立凌風小中学校
- 稲荷砂川保育園
- 京都市立砂川小学校
医療
- 医療法人社団育成会京都久野病院介護医療院
- 医療法人財団医道会稲荷山武田病院
- 医療法人社団育生会京都久野病院
- 京都第一赤十字病院
- 医療法人五木田病院介護医療院
公共施設・郵便局
- 京都鳥羽道郵便局
- 京都市南図書館
- 京都府南警察署
- 伏見稲荷郵便局
- 京都市東山図書館
公園
- 深草墓園
- 深草西浦南公園
- 梅小路公園
- 梅小路公園
- 唐橋西寺公園
利用可能な駅
- 徒歩10分以内
京阪本線
- 鳥羽街道駅徒歩4分
- 伏見稲荷駅徒歩10分
- すべての駅
JR奈良線
- 東福寺駅徒歩11分
- 稲荷駅徒歩14分
- JR藤森駅3.7km
京都市営烏丸線
- 十条駅徒歩12分
- 九条駅徒歩18分
- くいな橋駅徒歩23分
- 五条駅3.4km
京阪本線
- 龍谷大前深草駅徒歩18分
- 七条駅徒歩24分
- 藤森駅徒歩28分
- 清水五条駅徒歩34分
- 墨染駅3.3km
近鉄京都線
- 十条駅徒歩19分
- 上鳥羽口駅徒歩23分
- 東寺駅徒歩27分
- 竹田駅徒歩33分
JR東海道・山陽本線
- 京都駅徒歩28分
JR山陰本線
- 梅小路京都西駅3.8km
- その他交通
- 京阪本線 東福寺駅 徒歩11分
- 周辺情報は2023年07月21日時点のものになります。
- 周辺情報は、参考情報としてのみご利用ください(周辺情報は、株式会社LIFULLが地図情報の提供事業者から提供を受けた情報とLIFULL HOME'Sの物件情報に基づき、独自の方法で抽出し提供しているものです。周辺情報は、移転や閉鎖等により情報が最新ではない、または正しくない場合がありますが、地図情報の提供事業者から提供された情報をそのまま周辺情報として表示しているため、正確かつ最新の情報へ修正することができないことがあります。)
- 周辺情報は、株式会社LIFULLが掲載するものであり、不動産物件情報を掲載している不動産会社が掲載するものではありません
- 交通情報の一部については、株式会社LIFULLが掲載するものであり、不動産物件情報を掲載している不動産会社が掲載するものではない場合があります。交通情報に関する質問などは株式会社LIFULLにお問合せください










