LIFULL HOME'Sは物件鮮度No.1!※評価について
パークヒルズ5番館 4階
8.4万円/管理費等-
3時間前 更新
画像一覧
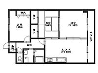
1/22間取り
2/22外観
3/22リビング/ダイニング
※別部屋の写真です
4/22室内
※別部屋の写真です
5/22キッチン
※別部屋の写真です
6/22浴室
※別部屋の写真です
7/22トイレ
※別部屋の写真です
8/22洗面
※別部屋の写真です
9/22収納
※別部屋の写真です
10/22設備
※別部屋の写真です
11/22玄関
※別部屋の写真です
12/22バルコニー
※別部屋の写真です
13/22その他
※別部屋の写真です
14/22その他
※別部屋の写真です
15/22その他
16/22その他
17/22その他
18/22周辺
ショッピングセンター「そごう広島店まで6071m」
19/22周辺
スーパー「フレスタ東山本店まで162m」
20/22周辺
コンビニ「セブンイレブン広島山本1丁目店まで315m」
21/22周辺
ドラックストア「ドラッグセガミ山本店まで309m」
22/22周辺
小学校「広島市立山本小学校まで288m」
間取り
外観
リビング/ダイニング
室内
キッチン
浴室
トイレ
洗面
収納
設備
玄関
バルコニー
その他
その他
その他
その他
その他
周辺
周辺
周辺
周辺
周辺
お問合せ先 :株式会社良和ハウス 祇園店
中四国管理戸数No.1☆の【良和ハウス】LINEで接客もOK
物件のこだわり/設備・条件
新築(非該当)
2階以上の物件(該当)
南向き(非該当)
駐車場あり(該当)
オートロック(該当)
エアコン(非該当)
バス・トイレ別(該当)
追焚機能(非該当)
フローリング(非該当)
ペット相談(非該当)
入居条件
二人入居可キッチン/バス・トイレ
設備・サービス
オートロック、TVモニタ付インターホン、BS対応、インターネット対応、インターネット使用料無料、都市ガス、バルコニー、室内洗濯機置場、エレベーター、駐車場あり、駐輪場ありその他
初期費用カード決済可備考
◆JR「下祗園駅」まで徒歩圏内◆都市ガス◆最寄りのスーパーまで徒歩2分◆ネット使用料無料※Wi-Fi対応◆駐車場1台込み◆相手が確認できるTVインターホン★お気軽に良和ハウスまでお問い合わせください★
物件周辺の生活情報
学校
- 広島市立山本小学校(288m)
- 広島市立祇園中学校(967m)
買い物
- コンビニ(315m)
- スーパー(162m)
- ドラッグストア(309m)
その他施設
- 総合病院(1,247m)
- 公園(1,206m)
- 銀行(235m)
交通
- JR可部線 下祇園駅 徒歩14分
- 普通(停車)
- JR可部線 安芸長束駅 徒歩20分
- 普通(停車)
※急行等の停車駅情報について
急行等の停車駅に関するデータは、随時更新をしておりますが、最新の内容であることを保証するものではありません。
最新かつ正確な情報につきましては、各鉄道会社のウェブサイトにてご確認ください
物件周辺の口コミ
- 広島県広島市安佐南区山本町に住む人の口コミ50代男性
都会過ぎず田舎過ぎず そして隣人との距離も近くなく遠くなくお互い干渉しないこともなくたまには話しと挨拶をしてほどほどで暮らしていけますまた必要なものはすべて家の周りに揃っています
口コミを見る
この物件周辺に住む人の口コミ
口コミは、LIFULL HOME'Sが実際にこの物件の周辺に住む18歳~69歳の男女を対象に、WEBアンケート調査を実施しています。内容には回答者の主観的な表現が含まれる場合があるほか、事実と異なる場合もございます。ご了承ください。
- 広島県広島市安佐南区山本町に住む人の口コミ50代男性
- 都会過ぎず田舎過ぎず そして隣人との距離も近くなく遠くなくお互い干渉しないこともなくたまには話しと挨拶をしてほどほどで暮らしていけますまた必要なものはすべて家の周りに揃っています
- 広島県広島市安佐南区山本町に住む人の口コミ40代男性
- 平地で通えるスーパーが複数ある。市内中心部に行くための交通手段が複数ある。治安は比較的良い。
- 広島県広島市安佐南区山本町に住む人の口コミ40代女性
- 住宅地なので静か 市街地中心部までもバスや電車で一本で行ける 日々の生活用品は徒歩圏内でほぼ揃う 道路は時間帯によってはとても混雑する
- 広島県広島市安佐南区山本町に住む人の口コミ30代女性
- スーパーが徒歩圏で3件あり、イオンモールも側なので普段の買い物には困らない。治安が悪化していることが心配。
- 広島県広島市安佐南区山本町に住む人の口コミ40代女性
- 学校、スーパー、交通機関など取り分け難しい場所ではなく、車で移動しているので住みやすい。持ち家なので、近所も割りと静か。
- 広島県広島市安佐南区山本町に住む人の口コミ50代男性
- 徒歩圏内にスーパーが数点ある。クリニックモール・個人病院が徒歩圏内にある。バス・JRが利用可能。大型ショッピングセンターが徒歩圏内にある。
- 広島県広島市安佐南区山本町に住む人の口コミ50代男性
- 中心街から比較的近距離でありながら静かで生活の利便施設も充実している
- 広島県広島市安佐南区山本町に住む人の口コミ40代男性
- 買い物しやすい環境。道路は渋滞することがあるが、海にも山にも田舎にもアクセスするのが容易なところ。
- 広島県広島市安佐南区山本町に住む人の口コミ40代男性
- 衣食住どれをとっても充実しているし何不自由なく暮らしていける。
- 広島県広島市安佐南区山本町に住む人の口コミ40代女性
- 生活するには、特に車がなくても徒歩圏内ですべて賄えると思うので生活しやすい場所だと思います。
物件概要
- 建物構造
- RC(鉄筋コンクリート)
- 駐車場
- 空有 (1台) 無料 物件からの距離0m
- 総戸数
- 28戸
- 契約形態
- -
- 契約期間
- 2年間
- 更新料
- -
- その他費用
- 仲介手数料:78,000円、カギ交換代:16,500円
- 保証会社
加入要
保証会社:その他
保証会社利用料:要確認
- 住宅保険
- 要
- 管理
- -
- LIFULL HOME'S
物件番号 - 0123160-0201165
- 自社管理番号
- 10-904361-24-403
- 取引態様
- 仲介
- 会社名
- 株式会社良和ハウス 祇園店
営業スタッフコメント

株式会社良和ハウス 祇園店
礒本葵
一生懸命ご対応いたします!
業界経験3年
- 会社実績や特徴・サービス情報
- 良和ハウス祇園店 他店舗や他社様が掲載されている物件でも同条件でまとめてご紹介可能です お客様駐車場有り ご予約なしのご来店でも大歓迎です お部屋探しは良和ハウス祇園店まで
良和ハウス祇園店 他店舗や他社様が掲載されている物件でも同条件でまとめてご紹介可能です お客様駐車場有り ご予約なしのご来店でも大歓迎です お部屋探しは良和ハウス祇園店まで
- 電話でお問合せ(通話無料)
お問合せ先 :株式会社良和ハウス 祇園店
不動産会社情報
電話でお問合せお客様の電話番号は不動産会社には通知されません
- 不動産会社に
つながります
お客様の電話番号は不動産会社に通知されません
- ※光IP電話、及びIP電話からはご利用になれません
- ※お電話によるお問合せは、店舗営業時間内にお願いします。つながらない場合は、お問合せフォームよりお問合せください
- ※不動産会社がお電話に出られなかった場合、お問合せいただいた後に不動産会社より折り返しのお電話がある場合がございます(お客様が非通知設定した場合は対象外です)
- ※株式会社LIFULLは電話会社が提供するサービスを介してお客様の発信者番号を受領後、折り返し専用の電話番号を発番してお問合せの不動産会社に通知します(お客様の発信者番号がお問合せの不動産会社に通知されることはございません)
- ※携帯電話からお問合せいただいた方に対し、株式会社LIFULLは電話会社が提供するメッセ―ジサービスを介してお客様の発信者番号を受領後、ショートメッセージ(SMS)またはLINE通知メッセージによるお問合せ内容に関する通知をお届けする場合があります
- ※お客様が通話中に不動産会社にお伝えになったお客様の個人情報及び、電話会社が発番する折り返し専用の電話番号は、お問合せ先不動産会社が資料送付・電子メール送信・電話連絡などの目的で保管する可能性があります。お問合せ先不動産会社が保管する個人情報の取扱いについては、各不動産会社に直接お問合せください
- ※株式会社LIFULLでは本サービスを円滑に運用するために、お客様の発信者番号をサービスご利用の控えとして一定期間保管いたします
- ※上記および株式会社LIFULLの個人情報の取扱い方針に同意のうえ、お電話ください
【LIFULL HOME'S物件番号】0123160-0201165【自社管理番号】10-904361-24-403
初期費用・月額費用をあわせて確認!この物件に住んだときの費用めやす
めやすを見るこの物件に住んだときの費用めやす
- 初期費用
- 月額費用
- 追加費用※ご確認ください
追加で費用が
かかる場合があります
必ずご確認ください
初期費用めやす約0円
追加で費用がかかります(※)敷金
252,000
- 礼金
84,000
- 保証金
0
賃料+共益費・管理費の1ヶ月分として換算
賃料1ヶ月分に対する割合から円に換算。正確な金額は不動産会社にお問合せください
※追加費用もチェック!
これらの項目以外にも費用がかかる場合があります。正確な金額は不動産会社にお問合せください。
- 初期費用
- 鍵交換費:不動産会社に要確認
- 室内清掃費:不動産会社に要確認
- 火災保険費:不動産会社に要確認
- 月額費用
- 駐車場費:無料
- その他
- カギ交換代:16500円
- 保証会社
- 要確認
不動産会社より
中四国管理戸数No.1☆の【良和ハウス】LINEで接客もOK
◆JR「下祗園駅」まで徒歩圏内◆都市ガス◆最寄りのスーパーまで徒歩2分◆ネット使用料無料※Wi-Fi対応◆駐車場1台込み◆相手が確認できるTVインターホン★お気軽に良和ハウスまでお問い合わせください★
- 保存する
- 共有する
- ※各種情報と現状に差異がある場合は、現状優先となります
- ※不動産会社が入力した情報を基に物件の位置を表示しています。詳しくは不動産会社までお問合せください
- ※不動産会社の方からの上記電話番号によるお問合せはお断りしております。こちら不動産会社詳細からお問合せください
- ※LIFULL HOME'Sは物件鮮度No.1を目指していきます。閲覧中の物件が「成約済である」「実際の物件情報と異なる点がある」などの場合、「掲載110番」からお問合せください
- ※QRコードは株式会社デンソーウェーブの登録商標です
この物件を取扱う他の会社
LIFULL HOME'Sでは、主要項目が同一の物件をまとめて表示しています。所在地や営業時間、掲載画像等から不動産会社を選んでお問合せください。
株式会社良和ハウス 上安店
優良店認定
広島県広島市安佐南区上安2丁目29−3
広島高速交通アストラムライン 上安駅 徒歩1分
- 営業時間
- 10:00~18:00(日祝 10:00〜18:00)
- 定休日
- 毎週水曜日
同じ建物の他の部屋
LIFULL HOME'S 地図・周辺情報
買い物
- セブンイレブン 広島山本1丁目店
- フレスタ 東山本店
- ドラッグセガミ山本店
- ファミリーマート 広島山本一丁目店
- マックスバリュ 祇園店
グルメ
- ジョイフル 山本店
- かつや 広島祇園店
- 無添くら寿司 広島祇園店
- マクドナルド イオンモール広島祇園店
- しゃぶしゃぶ温野菜長束店
育児・教育
- いちご保育園祇園
- 広島市立山本小学校
- 広島市立祇園中学校
- それいゆやまもと保育園
- 広島市立祇園小学校
医療
- 医療法人メディカルパーク野村病院
- 山口整形外科病院
- 頼島産婦人科病院
- 医療法人社団聖愛会ぎおん牛田病院
- 炭田内科胃腸科病院
公共施設・郵便局
- 山本郵便局
- マエダハウジング安佐南区図書館
- 安佐南警察署
- 中祇園郵便局
- 広島市安佐南区役所
公園
- 浅野山緑地
- 大芝公園
- 新牛田公園
- 三滝墓園
- 牛田総合公園
利用可能な駅
- すべての駅
JR可部線
- 下祇園駅徒歩14分
- 安芸長束駅徒歩20分
- 古市橋駅徒歩28分
- 三滝駅徒歩36分
- 大町駅3.2km
広島高速交通アストラムライン
- 祇園新橋北駅徒歩26分
- 西原駅徒歩30分
- 不動院前駅徒歩34分
- 中筋駅3.2km
- 古市駅3.3km
- 牛田駅3.7km
- 周辺情報は2023年07月21日時点のものになります。
- 周辺情報は、参考情報としてのみご利用ください(周辺情報は、株式会社LIFULLが地図情報の提供事業者から提供を受けた情報とLIFULL HOME'Sの物件情報に基づき、独自の方法で抽出し提供しているものです。周辺情報は、移転や閉鎖等により情報が最新ではない、または正しくない場合がありますが、地図情報の提供事業者から提供された情報をそのまま周辺情報として表示しているため、正確かつ最新の情報へ修正することができないことがあります。)
- 周辺情報は、株式会社LIFULLが掲載するものであり、不動産物件情報を掲載している不動産会社が掲載するものではありません
- 交通情報の一部については、株式会社LIFULLが掲載するものであり、不動産物件情報を掲載している不動産会社が掲載するものではない場合があります。交通情報に関する質問などは株式会社LIFULLにお問合せください





