LIFULL HOME'Sは物件鮮度No.1!※評価について
シルエラ御所南(9階/3LDK/85.4m²)
シルエラ御所南(9階/3LDK/85.4m²)
55万円/管理費等-
3時間前 更新
画像一覧
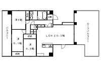
1/30間取り
2/30外観
3/30外観
4/30リビング/ダイニング
リビング
5/30リビング/ダイニング
リビング
6/30リビング/ダイニング
リビング
7/30室内
洋室
8/30寝室
洋室
9/30寝室
洋室
10/30寝室
洋室
11/30子供部屋
洋室
12/30キッチン
キッチン
13/30キッチン
キッチン
14/30キッチン
3口コンロ
15/30浴室
風呂
16/30トイレ
トイレ
17/30洗面
洗面所
18/30収納
収納
19/30設備
下駄箱
20/30設備
冷蔵庫置場
21/30設備
洗濯機置場
22/30設備
下駄箱
23/30玄関
玄関
24/30バルコニー
ベランダ
25/30エントランス
エントランス
26/30その他
廊下
27/30その他
眺望
28/30その他
屋上テラス
29/30周辺
フレスコ 御池店まで250メートル
30/30周辺
ファミリーマート 柳馬場押小路店まで210メートル
間取り
外観
外観
リビング/ダイニング
リビング/ダイニング
リビング/ダイニング
室内
寝室
寝室
寝室
子供部屋
キッチン
キッチン
キッチン
浴室
トイレ
洗面
収納
設備
設備
設備
設備
玄関
バルコニー
エントランス
その他
その他
その他
周辺
周辺
お問合せ先 :株式会社エリッツ 今出川店
1〜3月は引越しシーズンのピークです。お問合せはお早めに!
住まい探し特典内容
電気・ガス・インターネットの手続き代行のご案内します。
- 利用条件
- 株式会社エリッツ 今出川店で利用可
- 他特典との併用可
利用方法
来店時に本特典の画面をスマートフォンやタブレットでスタッフに提示、または画面印刷した用紙を提示ください。
有効期限 なし
屋上テラスがついてます。--パノラマ掲載--
基本情報
不動産用語- 賃料
- 55万円
- 管理費等
- -
初期費用などお気軽にお問合せください
- 敷金/礼金
- 1ヶ月/2ヶ月
- 保証金/敷引・償却金
- -/-
- 交通
京都地下鉄東西線 京都市役所前駅 徒歩5分
京都市営烏丸線 丸太町駅 徒歩13分
京都地下鉄烏丸線 烏丸御池駅 徒歩8分
- 所在地
京都府京都市中京区麩屋町通御池上る上白山町
地図を見る- 築年月
- 2017年8月(築9年)
- 主要採光面
- 東
- 専有面積
- 85.4㎡
- バルコニー面積
- -
- 所在階/階数
- 9階/9階建
- 現況
- 空家
- 入居可能時期
- 即時

人気物件はすぐに埋まってしまいます。
気になったらお早めにお問合せください。
- 情報公開日
2025/03/03
334日前 公開
- 情報更新日
2026/01/31
3時間前 更新
- 次回更新
予定日 - 2026/02/07
物件のこだわり/設備・条件
新築(非該当)
2階以上の物件(該当)
南向き(非該当)
駐車場(非該当)
オートロック(該当)
エアコン(該当)
バス・トイレ別(該当)
追焚機能(該当)
フローリング(該当)
ペット相談可(該当)
位置
角部屋入居条件
二人入居可、ペット相談、即入居可キッチン/バス・トイレ
設備・サービス
オートロック、防犯カメラ、TVモニタ付インターホン、エアコン、床暖房、クローゼット、シューズボックス、BS対応、インターネット対応、インターネット使用料無料、公営水道、都市ガス、下水、フローリング、バルコニー、室内洗濯機置場、エレベーター、宅配ボックス、駐輪場ありその他
初期費用カード決済可、住まい探し特典あり備考
【2017年築・85.4平米・3LDK】眺望・日当たり良好な最上階9階、広々とした屋上テラスで十分な洗濯物スペース、子どもやワンちゃんとの家族団らんタイム。人気の御所南小学校エリア。 ペット相談条件:小型犬二匹まで・インターネット無料 ハウスクリーニング52800円(退去時)
物件周辺の生活情報
学校
- 御所南小学校(600m)
- 御池中学校(200m)
買い物
- コンビニ(210m)
- スーパー(250m)
その他施設
- 総合病院(1,560m)
交通
- 京都地下鉄東西線 京都市役所前駅 徒歩5分
- 普通(停車)
- 京都市営烏丸線 丸太町駅 徒歩13分
- 普通(停車)
- 急行(停車)
※急行等の停車駅情報について
急行等の停車駅に関するデータは、随時更新をしておりますが、最新の内容であることを保証するものではありません。
最新かつ正確な情報につきましては、各鉄道会社のウェブサイトにてご確認ください
物件周辺の口コミ
- 京都府京都市中京区御池通麩屋町東入に住む人の口コミ50代女性
夫の会社に歩いて5分。地下鉄の駅も近く、バス路線も多い。少し南になると観光客でいっぱいだが、このあたりは静か。医者や買い物の便もいい。
口コミを見る
この物件周辺に住む人の口コミ
口コミは、LIFULL HOME'Sが実際にこの物件の周辺に住む18歳~69歳の男女を対象に、WEBアンケート調査を実施しています。内容には回答者の主観的な表現が含まれる場合があるほか、事実と異なる場合もございます。ご了承ください。
- 京都府京都市中京区御池通麩屋町東入に住む人の口コミ50代女性
- 夫の会社に歩いて5分。地下鉄の駅も近く、バス路線も多い。少し南になると観光客でいっぱいだが、このあたりは静か。医者や買い物の便もいい。
- 京都府京都市中京区御池通麩屋町東入に住む人の口コミ30代女性
- 職場に近く、ショッピングや映画などの娯楽施設も近いので利便性が良い。治安も良いので住みやすい。
- 京都府京都市中京区堺町通三条上るに住む人の口コミ50代女性
- 生活に必要なものが揃っていて便利。観光シーズンは何処へ行っても満員なのが少し憂鬱ではあるが落ち着けるお寺や御所、静かなカフェなどもあり、暮らしやすい場所である。病院も多く安心。
- 京都府京都市中京区二条通木屋町西入に住む人の口コミ60代女性
- 鴨川のそばで東山連峰、北山連峰が望め、京都御所、平安神宮へも徒歩10分以内んの風光明媚なところです
- 京都府京都市中京区東洞院通押小路下るに住む人の口コミ50代女性
- 都心部ですが近くに広々とした御所があり緑が多くスポーツや散歩ができる。とても生活しやすい。
- 京都府京都市上京区新烏丸通丸太町上る東入に住む人の口コミ50代女性
- 交通の便が良いしパン屋さんもカフェもたくさんある。川も歩くところもたくさんあるし満足しています。
- 京都府京都市中京区堺町通竹屋町上るに住む人の口コミ40代女性
- 治安が良くて穏やかな空気感が流れている。地域の人が子供たちを見守ってくれている。
- 京都府京都市中京区堺町通三条上るに住む人の口コミ50代男性
- 通勤が便利。徒歩圏内に商業施設、公共施設、医療機関などが揃っている。
- 京都府京都市中京区河原町通夷川下るに住む人の口コミ50代女性
- 街の中心で交通の便もよく、飲食店や他の店も程よくありいろいろな面で満足しています
- 京都府京都市中京区新椹木町通御霊図子東入に住む人の口コミ30代男性
- 京都の街中なので適度に都会だし近くに川や山もあり自然も身近にあるので
物件概要
- 建物構造
- RC(鉄筋コンクリート)
- 駐車場
- 近隣 25,000円(税無) 物件からの距離200m
- 総戸数
- 28戸
- 契約形態
- -
- 契約期間
- 2年間
- 更新料
- 新賃料の1ヶ月分
- その他費用
- 駐輪代(原付(月額):2,200円、ごみ処理代(月額):880円、駐輪ステッカー(初回):1,100円
- 保証会社
加入要
保証会社利用料:220、352円
- 住宅保険
- 要
- 管理
- -
- LIFULL HOME'S
物件番号 - 0110594-0313331
- 自社管理番号
- 91104-0901
- 取引態様
- 仲介
- 会社名
- 株式会社エリッツ 今出川店
営業スタッフコメント

株式会社エリッツ 今出川店
蔵本拓海
全力でお客様のお部屋探しをサポートします
業界経験1年
- 会社実績や特徴・サービス情報
- 同志社大学、同志社女子大学生様は賃貸のエリッツ今出川店賃貸のエリッツ今出川店は京都市営地下鉄烏丸線今出川駅4番出口より徒歩1分、烏丸今出川の北西角です。同志社大学今出川キャンパス正門の前にあり、広い店内には自転車置き場も完備しており、自転車でのご来店も駅前駐輪場の使用なしでご来店いただけますので、通勤・通学途中でお立ち寄りいただくことも可能です。 ご転勤のシーズンに向け、法人様向け賃貸も多数準備致しております。
同志社大学、同志社女子大学生様は賃貸のエリッツ今出川店賃貸のエリッツ今出川店は京都市営地下鉄烏丸線今出川駅4番出口より徒歩1分、烏丸今出川の北西角です。同志社大学今出川キャンパス正門の前にあり、広い店内には自転車置き場も完備しており、自転車でのご来店も駅前駐輪場の使用なしでご来店いただけますので、通勤・通学途中でお立ち寄りいただくことも可能です。 ご転勤のシーズンに向け、法人様向け賃貸も多数準備致しております。
- 電話でお問合せ(通話無料)
お問合せ先 :株式会社エリッツ 今出川店
不動産会社情報
株式会社エリッツ 今出川店賃貸のエリッツ今出川店

京都府京都市上京区北小路室町388 ファーストコート御所室町 1階
京都市営烏丸線 今出川駅 徒歩2分
- 営業時間
- 10:00~19:00
- 定休日
- 年中無休(年末年始を除く)
優良店認定
京都市上京区、同志社大学、地下鉄今出川駅周辺のお部屋探しはお任せ下さい。大学周辺では立命館大学や京都産業大学等どのエリアの物件も大丈夫です。単身者物件〜ファミリー物件まで情報力には自信あります。
- 店舗の特徴
- 賃貸管理業務
- 引越し業者紹介可
- 年中無休
- オンライン相談可
- 保証人不要な物件あり
- 法人契約取扱い
- 駅から歩いて3分以内
- 外国語を話せるスタッフ在籍
電話でお問合せお客様の電話番号は不動産会社には通知されません
- 不動産会社に
つながります
お客様の電話番号は不動産会社に通知されません
- ※光IP電話、及びIP電話からはご利用になれません
- ※お電話によるお問合せは、店舗営業時間内にお願いします。つながらない場合は、お問合せフォームよりお問合せください
- ※不動産会社がお電話に出られなかった場合、お問合せいただいた後に不動産会社より折り返しのお電話がある場合がございます(お客様が非通知設定した場合は対象外です)
- ※株式会社LIFULLは電話会社が提供するサービスを介してお客様の発信者番号を受領後、折り返し専用の電話番号を発番してお問合せの不動産会社に通知します(お客様の発信者番号がお問合せの不動産会社に通知されることはございません)
- ※携帯電話からお問合せいただいた方に対し、株式会社LIFULLは電話会社が提供するメッセ―ジサービスを介してお客様の発信者番号を受領後、ショートメッセージ(SMS)またはLINE通知メッセージによるお問合せ内容に関する通知をお届けする場合があります
- ※お客様が通話中に不動産会社にお伝えになったお客様の個人情報及び、電話会社が発番する折り返し専用の電話番号は、お問合せ先不動産会社が資料送付・電子メール送信・電話連絡などの目的で保管する可能性があります。お問合せ先不動産会社が保管する個人情報の取扱いについては、各不動産会社に直接お問合せください
- ※株式会社LIFULLでは本サービスを円滑に運用するために、お客様の発信者番号をサービスご利用の控えとして一定期間保管いたします
- ※上記および株式会社LIFULLの個人情報の取扱い方針に同意のうえ、お電話ください
【LIFULL HOME'S物件番号】0110594-0313331【自社管理番号】91104-0901
オンライン対応
オンライン内見・オンライン相談・IT重説に対応している物件です

「オンライン内見」「オンライン相談」「IT重説」とは?
物件の内見や不動産会社スタッフとの相談、契約前の重要事項説明をオンライン(ビデオ通話)で行うことができるサービスです。
オンライン内見
ビデオ通話で現地(物件)にいる不動産会社スタッフと映像・音声を使ってリアルタイムで会話しながら内見ができます。
オンライン相談
「物件について聞きたいことがある」など不動産会社スタッフへの相談もビデオ通話で行うことができます。
IT重説
契約前の重要事項説明(重説)をビデオ通話で行うことができます。
利用時の注意事項
- ビデオ通話については各不動産会社指定のものとなります。
- ビデオ通話利用時には通信が発生します。従量課金制通信サービスや通信量に上限があるネット回線・プランを利用する場合は、通信量にご注意ください。
- 通信速度やアプリの設定によってはビデオ通話の画質が低下することがあります。安定した画質で利用するためにも、Wi-Fi環境下での利用を推奨します。
- ご利用のビデオ通話アプリによっては、対象のOSやブラウザに制限がある場合があります。詳しくはお問合せ先不動産会社にご確認ください。
初期費用・月額費用をあわせて確認!この物件に住んだときの費用めやす
めやすを見るこの物件に住んだときの費用めやす
- 初期費用
- 月額費用
- 追加費用※ご確認ください
追加で費用が
かかる場合があります
必ずご確認ください
初期費用めやす約0円
追加で費用がかかります(※)敷金
550,000
- 礼金
1,100,000
賃料+共益費・管理費の1ヶ月分として換算
賃料の1ヶ月分+税として換算。不動産会社によって金額が異なるため正確な金額は不動産会社にお問合せください
※追加費用もチェック!
これらの項目以外にも費用がかかる場合があります。正確な金額は不動産会社にお問合せください。
- 初期費用
- 鍵交換費:不動産会社に要確認
- 室内清掃費:不動産会社に要確認
- 火災保険費:不動産会社に要確認
- 月額費用
- 駐車場費:25,000円※近隣
- その他
- 駐輪代(原付(月額):2200円
- ごみ処理代(月額):880円
- 駐輪ステッカー(初回):1100円
- 保証会社
- 220、352円
不動産会社より
屋上テラスがついてます。--パノラマ掲載--
【2017年築・85.4平米・3LDK】眺望・日当たり良好な最上階9階、広々とした屋上テラスで十分な洗濯物スペース、子どもやワンちゃんとの家族団らんタイム。人気の御所南小学校エリア。 ペット相談条件:小型犬二匹まで・インターネット無料 ハウスクリーニング52800円(退去時)
- 保存する
- 共有する
- ※各種情報と現状に差異がある場合は、現状優先となります
- ※不動産会社が入力した情報を基に物件の位置を表示しています。詳しくは不動産会社までお問合せください
- ※不動産会社の方からの上記電話番号によるお問合せはお断りしております。こちら不動産会社詳細からお問合せください
- ※LIFULL HOME'Sは物件鮮度No.1を目指していきます。閲覧中の物件が「成約済である」「実際の物件情報と異なる点がある」などの場合、「掲載110番」からお問合せください
- ※QRコードは株式会社デンソーウェーブの登録商標です
この物件を取扱う他の会社
LIFULL HOME'Sでは、主要項目が同一の物件をまとめて表示しています。所在地や営業時間、掲載画像等から不動産会社を選んでお問合せください。
株式会社ALIVE賃貸住宅サービス FC京都駅前店
優良店認定
京都府京都市下京区東塩小路町544−1 野口ビル1F
JR東海道・山陽本線 京都駅 徒歩1分
- 営業時間
- 10:00~19:00
- 定休日
- 無し(年末年始休み)
株式会社エリッツ 河原町三条店
優良店認定
京都府京都市中京区三条通河原町東入中島町83 はせ川ビル1F
京都地下鉄東西線 京都市役所前駅 徒歩4分
- 営業時間
- 10:00~19:00
- 定休日
- 火・水曜日 (祝日を除く)、 ※部屋探しのお問い合わせは無休
株式会社エリッツ 四条大宮店
優良店認定
京都府京都市中京区壬生坊城町1−10 宮崎ビル1F
阪急京都本線 大宮駅 徒歩2分
- 営業時間
- 10:00~19:00
- 定休日
- 水曜日(祝日を除く)、年末年始 ※部屋探しのお問い合わせは無休
株式会社エリッツ 七条京阪店
優良店認定
京都府京都市東山区本町6丁目1−5 藤本ビル1F
京阪本線 七条駅 徒歩2分
- 営業時間
- 10:00~19:00
- 定休日
- 水曜日(祝日を除く)、年末年始 ※部屋探しのお問い合わせは無休
株式会社エリッツ 京都駅前店
優良店認定
京都府京都市下京区塩小路通東洞院東入東塩小路町547番地 ステーションコートヤード1階
JR東海道・山陽本線 京都駅 徒歩2分
- 営業時間
- 10:00~19:00
- 定休日
- 年中無休(年末年始を除く)
LIFULL HOME'S 地図・周辺情報
買い物
- セブンイレブン 京都御幸町御池店
- Seriaゼスト御池店
- サンドラッグゼスト御池店
- セブンイレブン 京都市役所西店
- フレスコ 御池店
グルメ
- 上島珈琲店京都寺町店
- 松屋 ホテルユニゾ京都烏丸御池店
- 丸亀製麺京都市役所前店
- カフェコロラドゼスト御池店
- かに道楽 京都本店
育児・教育
- 京都市御池保育所
- 京都市立御所南小学校
- 京都市立京都御池中学校
- 御所の杜ほいくえん
- 京都市立高倉小学校
医療
- 医療法人財団足立病院
- 医療法人知音会京都新町病院
- 京都第二赤十字病院
- 医療法人毛利病院
- 京都大学医学部附属病院
公共施設・郵便局
- 京都ゼスト御池内郵便局
- 京都市こどもみらい館子育て図書館
- 京都市役所
- 京都御池柳馬場郵便局
- 京都府立図書館
公園
- 梅屋広場公園
- 京都御苑
- 岡崎公園
- 円山公園
- 円山公園
利用可能な駅
- 徒歩10分以内
京都地下鉄東西線
- 京都市役所前駅徒歩5分
- すべての駅
京都市営烏丸線
- 丸太町駅徒歩13分
- その他交通
- 京都地下鉄烏丸線 烏丸御池駅 徒歩8分
- 周辺情報は2023年07月21日時点のものになります。
- 周辺情報は、参考情報としてのみご利用ください(周辺情報は、株式会社LIFULLが地図情報の提供事業者から提供を受けた情報とLIFULL HOME'Sの物件情報に基づき、独自の方法で抽出し提供しているものです。周辺情報は、移転や閉鎖等により情報が最新ではない、または正しくない場合がありますが、地図情報の提供事業者から提供された情報をそのまま周辺情報として表示しているため、正確かつ最新の情報へ修正することができないことがあります。)
- 周辺情報は、株式会社LIFULLが掲載するものであり、不動産物件情報を掲載している不動産会社が掲載するものではありません
- 交通情報の一部については、株式会社LIFULLが掲載するものであり、不動産物件情報を掲載している不動産会社が掲載するものではない場合があります。交通情報に関する質問などは株式会社LIFULLにお問合せください













