LIFULL HOME'Sは物件鮮度No.1!※評価について
ダイキプレイス千本(7階/701/1LDK/42.5m²)
ダイキプレイス千本(7階/701/1LDK/42.5m²)
7.8万円/管理費等7,000円
15時間前 更新
画像一覧
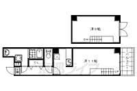
1/30間取り
間取
2/30外観
3/30外観
4/30リビング/ダイニング
5/30リビング/ダイニング
6/30リビング/ダイニング
7/30リビング/ダイニング
8/30キッチン
9/30キッチン
10/30キッチン
11/30キッチン
12/30浴室
13/30浴室
14/30浴室
15/30トイレ
16/30洗面
17/30収納
18/30収納
19/30収納
20/30収納
21/30設備
22/30設備
23/30設備
24/30設備
25/30設備
26/30設備
27/30玄関
28/30バルコニー
29/30その他
30/30周辺
ほていやまで28m
間取り
外観
外観
リビング/ダイニング
リビング/ダイニング
リビング/ダイニング
リビング/ダイニング
キッチン
キッチン
キッチン
キッチン
浴室
浴室
浴室
トイレ
洗面
収納
収納
収納
収納
設備
設備
設備
設備
設備
設備
玄関
バルコニー
その他
周辺
1〜3月は引越しシーズンのピークです。お問合せはお早めに!
仲介手数料割引
当店の仲介手数料は家賃の50%(外税)になります。(居住用物件に限ります)
- 利用条件
- アパマンショップ今出川店 ウインズリンク株式会社で利用可
- 他特典との併用可
利用方法
来店時に本特典の画面をスマートフォンやタブレットでスタッフに提示、または画面印刷した用紙を提示ください。
有効期限 2026年11月14日まで
全室角部屋仕様です。 初期費用も抑えられるのでお気軽にお引越し可能な物件です。
物件のこだわり/設備・条件
新築(非該当)
2階以上の物件(該当)
南向き(非該当)
駐車場(非該当)
オートロック(該当)
エアコン(該当)
バス・トイレ別(該当)
追焚機能(非該当)
フローリング(該当)
ペット相談(非該当)
位置
角部屋入居条件
学生歓迎、即入居可キッチン/バス・トイレ
設備・サービス
オートロック、防犯カメラ、エアコン、床暖房、CS対応、BS対応、光ファイバー、インターネット使用料無料、公営水道、都市ガス、下水、メゾネット、フローリング、バルコニー、室内洗濯機置場、エレベーター、宅配ボックス、駐輪場ありその他
住まい探し特典あり備考
京都市上京区西陣エリアのマンションです。オートロック・防犯カメラセット済 安心の防犯対策です。コンビニ、スーパーなど近くにあって便利ですよ。インターネットは光対応、無料でご利用いただけます。大通り沿いの物件で夜道も安心してご帰宅できます。バス停も徒歩1分とかなり近い所にありますのでお出かけも簡単に行けます。バイク置き場・駐輪場は屋根付きですので、雨の日なんかにも便利です。 京都のお部屋探しは...
物件周辺の生活情報
買い物
- コンビニ(61m)
- スーパー(28m)
- ドラッグストア(40m)
その他施設
- 総合病院(195m)
- 京都千本寺之内郵便局(80m)
交通
- 京福電気鉄道北野線 北野白梅町駅 徒歩20分
- 普通(停車)
- 京都市営烏丸線 今出川駅 徒歩26分
- 普通(停車)
- 急行(停車)
※急行等の停車駅情報について
急行等の停車駅に関するデータは、随時更新をしておりますが、最新の内容であることを保証するものではありません。
最新かつ正確な情報につきましては、各鉄道会社のウェブサイトにてご確認ください
物件概要
- 建物構造
- 鉄骨造
- 駐車場
- 無
- 総戸数
- 18戸
- 契約形態
- -
- 契約期間
- 2年間
- 更新料
- -
- その他費用
- 鍵交換費用:22,000円、室内清掃費用:55,000円、水道代:3,000円
- 保証会社
加入要
保証会社:全保連
保証会社利用料:初回:月額賃料等の50%、更新時:1.3万円/1年
- 住宅保険
- 要
- 管理
- 管理員:巡回
- LIFULL HOME'S
物件番号 - 0113628-0258966
- 自社管理番号
- 89325-701
- 取引態様
- 仲介
- 会社名
- アパマンショップ今出川店 ウインズリンク株式会社
営業スタッフコメント

アパマンショップ今出川店 ウインズリンク株式会社営業
河崎圭汰
ありがとうの言葉を大切にしています。
業界経験1年
資格少額短期保険募集人
- 会社実績や特徴・サービス情報
- アパマンショップ今出川店は、地下鉄 今出川駅 4番出口より北へ徒歩1分のところにあります。店舗の目の前には同志社大学(今出川キャンパス)があります。毎年同志社大学、同志社女子大学生さんのお部屋探しをサポートさせていただいています。ファミリーの方に好まれる室町小学校、新町小学校、西陣小学、御所南小学校等の校区の賃貸物件も紹介させていただきます。地下鉄鞍馬口駅、今出川駅、丸太町駅等、通勤のためお部屋を探される方もサポートもさせていただきます。ぜひ信頼のアパマンブランド、アパマンショップ今出川店にご来店ください
アパマンショップ今出川店は、地下鉄 今出川駅 4番出口より北へ徒歩1分のところにあります。店舗の目の前には同志社大学(今出川キャンパス)があります。毎年同志社大学、同志社女子大学生さんのお部屋探しをサポートさせていただいています。ファミリーの方に好まれる室町小学校、新町小学校、西陣小学、御所南小学校等の校区の賃貸物件も紹介させていただきます。地下鉄鞍馬口駅、今出川駅、丸太町駅等、通勤のためお部屋を探される方もサポートもさせていただきます。ぜひ信頼のアパマンブランド、アパマンショップ今出川店にご来店ください
- 電話でお問合せ(通話無料)
お問合せ先 :アパマンショップ今出川店 ウインズリンク株式会社
不動産会社情報
アパマンショップ今出川店 ウインズリンク株式会社アパマンショップ今出川店
京都府京都市上京区烏丸通今出川上る岡松町272 クローバービル1階
京都市営烏丸線 今出川駅 徒歩1分
- 営業時間
- 09:30~19:00
- 定休日
- なし(盆休み8/13〜8/16・年末年始12/27〜1/4)
京都市上京区・中京区・北区・左京区・右京区等、地下鉄烏丸線今出川・鞍馬口・丸太町駅等地下鉄沿線、同志社大学・京都大学・立命館大学等でのお部屋探しはアパマンショップ今出川店にお任せ下さい!
- 店舗の特徴
- 賃貸管理業務
- 24時間管理物件取扱い
- リフォーム対応
- 引越し業者紹介可
- 年中無休
- 保証人不要な物件あり
- 法人契約取扱い
- 女性スタッフ対応可
- 駅から歩いて3分以内
電話でお問合せお客様の電話番号は不動産会社には通知されません
- 不動産会社に
つながります
お客様の電話番号は不動産会社に通知されません
- ※光IP電話、及びIP電話からはご利用になれません
- ※お電話によるお問合せは、店舗営業時間内にお願いします。つながらない場合は、お問合せフォームよりお問合せください
- ※不動産会社がお電話に出られなかった場合、お問合せいただいた後に不動産会社より折り返しのお電話がある場合がございます(お客様が非通知設定した場合は対象外です)
- ※株式会社LIFULLは電話会社が提供するサービスを介してお客様の発信者番号を受領後、折り返し専用の電話番号を発番してお問合せの不動産会社に通知します(お客様の発信者番号がお問合せの不動産会社に通知されることはございません)
- ※携帯電話からお問合せいただいた方に対し、株式会社LIFULLは電話会社が提供するメッセ―ジサービスを介してお客様の発信者番号を受領後、ショートメッセージ(SMS)またはLINE通知メッセージによるお問合せ内容に関する通知をお届けする場合があります
- ※お客様が通話中に不動産会社にお伝えになったお客様の個人情報及び、電話会社が発番する折り返し専用の電話番号は、お問合せ先不動産会社が資料送付・電子メール送信・電話連絡などの目的で保管する可能性があります。お問合せ先不動産会社が保管する個人情報の取扱いについては、各不動産会社に直接お問合せください
- ※株式会社LIFULLでは本サービスを円滑に運用するために、お客様の発信者番号をサービスご利用の控えとして一定期間保管いたします
- ※上記および株式会社LIFULLの個人情報の取扱い方針に同意のうえ、お電話ください
【LIFULL HOME'S物件番号】0113628-0258966【自社管理番号】89325-701
初期費用・月額費用をあわせて確認!この物件に住んだときの費用めやす
めやすを見るこの物件に住んだときの費用めやす
- 初期費用
- 月額費用
- 追加費用※ご確認ください
追加で費用が
かかる場合があります
必ずご確認ください
初期費用めやす約0円
追加で費用がかかります(※)敷金
0
- 礼金
0
賃料+共益費・管理費の1ヶ月分として換算
賃料の1ヶ月分+税として換算。不動産会社によって金額が異なるため正確な金額は不動産会社にお問合せください
※追加費用もチェック!
これらの項目以外にも費用がかかる場合があります。正確な金額は不動産会社にお問合せください。
- 初期費用
- 鍵交換費:22,000円
- 室内清掃費:55,000円
- 火災保険費:不動産会社に要確認
- その他
- 水道代:3000円
- 保証会社
- 初回:月額賃料等の50%、更新時:1.3万円/1年
不動産会社より
全室角部屋仕様です。 初期費用も抑えられるのでお気軽にお引越し可能な物件です。
京都市上京区西陣エリアのマンションです。オートロック・防犯カメラセット済 安心の防犯対策です。コンビニ、スーパーなど近くにあって便利ですよ。インターネットは光対応、無料でご利用いただけます。大通り沿いの物件で夜道も安心してご帰宅できます。バス停も徒歩1分とかなり近い所にありますのでお出かけも簡単に行けます。バイク置き場・駐輪場は屋根付きですので、雨の日なんかにも便利です。 京都のお部屋探しは...
- 保存する
- 共有する
- ※各種情報と現状に差異がある場合は、現状優先となります
- ※不動産会社が入力した情報を基に物件の位置を表示しています。詳しくは不動産会社までお問合せください
- ※不動産会社の方からの上記電話番号によるお問合せはお断りしております。こちら不動産会社詳細からお問合せください
- ※LIFULL HOME'Sは物件鮮度No.1を目指していきます。閲覧中の物件が「成約済である」「実際の物件情報と異なる点がある」などの場合、「掲載110番」からお問合せください
- ※QRコードは株式会社デンソーウェーブの登録商標です
したい暮らしのタグから探す
この物件を取扱う他の会社
LIFULL HOME'Sでは、主要項目が同一の物件をまとめて表示しています。所在地や営業時間、掲載画像等から不動産会社を選んでお問合せください。
株式会社京都ライフ 二条駅前店
京都府京都市中京区西ノ京職司町72 ウエストフィールド1階
京都地下鉄東西線 二条駅 徒歩3分
- 営業時間
- 09:30~19:00
- 定休日
- 年中無休(盆正月を除く)
株式会社京都ライフ 立命館大学前店
優良店認定
京都府京都市北区小松原北町26-5
京福電気鉄道北野線 等持院・立命館大学衣笠キャンパス前駅 徒歩8分
- 営業時間
- 09:30~19:00
- 定休日
- 水曜定休(4/21〜9/20の期間)、盆・正月
株式会社京都ライフ 三条烏丸店
優良店認定
京都府京都市中京区三条通烏丸東入梅忠町24 三条COHJUBLDG 1階
京都市営烏丸線 烏丸御池駅 徒歩3分
- 営業時間
- 09:30~19:00
- 定休日
- 年中無休(夏期・年末年始を除く)
LIFULL HOME'S 地図・周辺情報
買い物
- ローソンストア100 千本寺之内店
- シルク千本寺之内店
- ドラッグひかり千本今出川店
- ファミリーマート 千本鞍馬口店
- FOOD SHOPエムジー 鞍馬口店
グルメ
- 無添くら寿司 西陣店
- マクドナルド 金閣寺店
- 焼肉酒家牛角衣笠店
- はま寿司金閣寺店
- 松屋 立命館大前店
育児・教育
- 北野保育園
- 京都市立乾隆小学校
- 京都市立嘉楽中学校
- 京都市立乾隆幼稚園
- 京都市立翔鸞小学校
医療
- 社会福祉法人京都社会事業財団西陣病院
- 医療法人相馬病院
- 社会福祉法人聖ヨゼフ会聖ヨゼフ医療福祉センター
- 社会医療法人西陣健康会堀川病院
- 医療法人愛智会京都北野病院
公共施設・郵便局
- 京都千本寺之内郵便局
- 京都市北図書館
- 京都府上京警察署
- 京都北野郵便局
- 京都市中央図書館
公園
- 船岡山公園
- 大宮交通公園
- 梅屋広場公園
- 京都御苑
- 土堂公園
利用可能な駅
- すべての駅
京福電気鉄道北野線
- 北野白梅町駅徒歩20分
- 等持院・立命館大学衣笠キャンパス前駅徒歩30分
- 龍安寺駅徒歩34分
- 妙心寺駅3.1km
- 御室仁和寺駅3.2km
- 宇多野駅3.6km
京都市営烏丸線
- 鞍馬口駅徒歩24分
- 今出川駅徒歩26分
- 北大路駅徒歩29分
- 丸太町駅3.7km
- 北山駅3.8km
JR山陰本線
- 二条駅徒歩33分
- 円町駅徒歩34分
- 花園駅3.8km
京都地下鉄東西線
- 二条城前駅3.3km
- 西大路御池駅3.6km
京阪本線
- 出町柳駅3.4km
- 周辺情報は2023年07月21日時点のものになります。
- 周辺情報は、参考情報としてのみご利用ください(周辺情報は、株式会社LIFULLが地図情報の提供事業者から提供を受けた情報とLIFULL HOME'Sの物件情報に基づき、独自の方法で抽出し提供しているものです。周辺情報は、移転や閉鎖等により情報が最新ではない、または正しくない場合がありますが、地図情報の提供事業者から提供された情報をそのまま周辺情報として表示しているため、正確かつ最新の情報へ修正することができないことがあります。)
- 周辺情報は、株式会社LIFULLが掲載するものであり、不動産物件情報を掲載している不動産会社が掲載するものではありません
- 交通情報の一部については、株式会社LIFULLが掲載するものであり、不動産物件情報を掲載している不動産会社が掲載するものではない場合があります。交通情報に関する質問などは株式会社LIFULLにお問合せください























