LIFULL HOME'Sは物件鮮度No.1!※評価について
グランシャリオ(1階/108/1K/30.03m²)
グランシャリオ(1階/108/1K/30.03m²)
6.4万円/管理費等7,000円
8時間前 更新
画像一覧
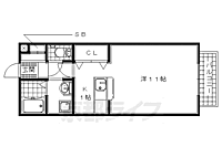
1/30間取り
間取
2/30外観
電子ロック付
3/30外観
4/30リビング/ダイニング
日当たり良好な部屋です。
5/30リビング/ダイニング
広々とした部屋です。
6/30リビング/ダイニング
広々とした部屋です。
7/30リビング/ダイニング
広々とした部屋です。
8/30室内
シューズボックスです。
9/30室内
洗濯機を置くスペースです。
10/30室内
安心のTVホン付きです。
11/30室内
電子ロック付きで防犯良好です。
12/30キッチン
二口ガスコンロ&グリル付きシステムキッチンです。
13/30キッチン
キッチン全体です。
14/30キッチン
キッチン風景です。
15/30キッチン
システムキッチンです。
16/30キッチン
キッチン収納です。
17/30浴室
お風呂です。
18/30浴室
お風呂風景です。
19/30トイレ
ウォシュレット付きのトイレです。
20/30洗面
シャンプードレッサ付きの独立洗面台です。
21/30洗面
シャンプードレッサ付きの独立洗面台です。
22/30洗面
洗面所風景です。
23/30収納
大きな収納です。
24/30収納
ハンガー掛けとしても使えます。
25/30玄関
玄関風景です。
26/30玄関
玄関風景です。
27/30バルコニー
日当たり良好なベランダです。
28/30バルコニー
日当たり良好なベランダです。
29/30その他
廊下風景です。
30/30周辺
ハーティドラッグ マツノキ 寺田店まで160m
間取り
外観
外観
リビング/ダイニング
リビング/ダイニング
リビング/ダイニング
リビング/ダイニング
室内
室内
室内
室内
キッチン
キッチン
キッチン
キッチン
キッチン
浴室
浴室
トイレ
洗面
洗面
洗面
収納
収納
玄関
玄関
バルコニー
バルコニー
その他
周辺
お問合せ先 :(株)京都ライフ 小倉店
1〜3月は引越しシーズンのピークです。お問合せはお早めに!
仲介手数料割引
成約時の仲介手数料半月分の税別でご紹介可能です。
- 利用条件
- (株)京都ライフ 小倉店で利用可
- 他特典との併用可
- 個人契約、居住用物件に限ります。 大東建託、積水ハウス物件は除く。
利用方法
来店時に本特典の画面をスマートフォンやタブレットでスタッフに提示、または画面印刷した用紙を提示ください。
有効期限 なし
2005年築、単身。 2005年築、広々単身マンション。
物件のこだわり/設備・条件
新築(非該当)
2階以上の物件(非該当)
南向き(非該当)
駐車場あり(該当)
オートロック(非該当)
エアコン(該当)
バス・トイレ別(該当)
追焚機能(非該当)
フローリング(該当)
ペット相談(非該当)
キッチン/バス・トイレ
セキュリティ
TVモニタ付インターホン駐車・駐輪
駐車場あり、駐輪場ありテレビ・通信
CATV、BS対応、光ファイバー、インターネット使用料無料電気・ガス・水道
公営水道、都市ガス、下水室内
エアコン、フローリング、室内洗濯機置場バルコニー・庭
バルコニー備考
近鉄寺田駅まで徒歩4分の1Kです。JR、近鉄のダブルアクセス。嬉しい3点セパレートなど充実の設備。TVホンでセキュリティも安心です。コンビニ、スーパー、ドラッグストアなど近くにあって便利ですよ。光ファイバー対応しています。 物件情報はもちろん京都のエリア情報まで幅広く対応させていただきます!
物件周辺の生活情報
買い物
- コンビニ(374m)
- スーパー(307m)
- ドラッグストア(160m)
その他施設
- 総合病院(2,900m)
- 銀行(166m)
- 城陽寺田郵便局(273m)
交通
- 近鉄京都線 寺田駅 徒歩4分
- 普通(停車)
- 準急(停車)
- 急行(通過)
- JR奈良線 城陽駅 徒歩14分
- 普通(停車)
- 区間快速(停車)
- 快速(停車)
- みやこ路快速(停車)
※急行等の停車駅情報について
急行等の停車駅に関するデータは、随時更新をしておりますが、最新の内容であることを保証するものではありません。
最新かつ正確な情報につきましては、各鉄道会社のウェブサイトにてご確認ください
物件周辺の口コミ
- 京都府城陽市寺田に住む人の口コミ30代女性
賃貸暮らしで、この先永住しようとは思わないが、今のところ不便なく暮らせている。
口コミを見る
この物件周辺に住む人の口コミ
口コミは、LIFULL HOME'Sが実際にこの物件の周辺に住む18歳~69歳の男女を対象に、WEBアンケート調査を実施しています。内容には回答者の主観的な表現が含まれる場合があるほか、事実と異なる場合もございます。ご了承ください。
- 京都府城陽市寺田に住む人の口コミ30代女性
- 賃貸暮らしで、この先永住しようとは思わないが、今のところ不便なく暮らせている。
- 京都府城陽市寺田に住む人の口コミ20代女性
- 治安がよく、大きな神社の中にペットも連れて入れる森林散歩コースの様なものがあってとても気持ちが良い。動物病院も歩いて行ける距離にあるので助かる。不便なのは坂道が多く、駅から少し遠いこと。
- 京都府城陽市寺田に住む人の口コミ20代女性
- 都会ではないが都会に行くまでは電車でそれほど掛からない距離に位置し、住宅付近は自転車で行ける範囲内で大概のものが揃うようになっているので今まで特別不便を感じたことがない
- 京都府城陽市寺田に住む人の口コミ20代女性
- とても便利という程では無いが不便でもないし必要最低限のものは揃えられる。
- 京都府城陽市寺田に住む人の口コミ30代女性
- 子育てしやすい環境で助け合いができる。幼稚園も候補がいくつかあり比較して子供に合った園が選べた。子供が自転車に乗って一人で出かけるようになると坂の下りで速度が出過ぎてしまうのが心配
- 京都府城陽市寺田に住む人の口コミ30代女性
- 分譲マンションの空きや駐車場の数が少ないけど学校の支援は充実している。最寄駅も2路線あり交通の便は凄く良いところ。
- 京都府城陽市寺田に住む人の口コミ30代女性
- 生活必需品なども近くの店で買え、充実している。 治安が良くて生活しやすい。
- 京都府城陽市寺田に住む人の口コミ30代女性
- 都会すぎず田舎すぎず、交通の便もそれほど悪くなく近くにスーパーもあるし、車を少し使えばショッピングモールもある。
- 京都府城陽市寺田に住む人の口コミ30代女性
- 近所も仲良く、子育てもしやすい、スーパーも病院も充実している
- 京都府城陽市寺田に住む人の口コミ30代女性
- アルプラザに行けば、生活用品が買えます。公園に行くのも近いです。ほどよく、自然があるので、気に入っています。
物件概要
- 建物構造
- 軽量鉄骨造
- 駐車場
- 空有 8,800円(税込)
- 総戸数
- 20戸
- 契約形態
- -
- 契約期間
- 2年間
- 更新料
- 新賃料の1ヶ月分
- その他費用
- 室内清掃費用:49,500円、放送受信料:770円、害虫駆除費:22,000円、ファイテック消火剤:4,950円
- 保証会社
加入要
保証会社利用料:初回:3.5万円、月額:保証料として月額賃料等の1%+800円
- 住宅保険
- 要
- 契約条件
- 保証人不要、即入居可、住まい探し特典あり
- 管理
- 管理員:巡回
- LIFULL HOME'S
物件番号 - 0100017-0222235
- 自社管理番号
- 26177-108
- 取引態様
- 仲介
- 会社名
- (株)京都ライフ 小倉店
営業スタッフコメント

(株)京都ライフ 小倉店
中江
営業の立場ではなくお客様の立場でご紹介。
業界経験3年
資格少額短期保険募集人
- 会社実績や特徴・サービス情報
- 宇治市、城陽市、京田辺市、京都南エリアのお部屋探しは「京都ライフ」へお任せ下さい。仲介手数料は一律、家賃の50%(税別)。来客用ガレージも完備。学生様の新生活も全力でサポートいたします。
宇治市、城陽市、京田辺市、京都南エリアのお部屋探しは「京都ライフ」へお任せ下さい。仲介手数料は一律、家賃の50%(税別)。来客用ガレージも完備。学生様の新生活も全力でサポートいたします。
- 電話でお問合せ(通話無料)
お問合せ先 :(株)京都ライフ 小倉店
不動産会社情報
(株)京都ライフ 小倉店京都ライフ小倉店

京都府宇治市小倉町神楽田21-5 ア‐バネックス小倉ビル1F
近鉄京都線 小倉駅 徒歩2分
- 営業時間
- 09:30~19:00
- 定休日
- 年中無休(盆正月を除く)
優良店認定
京都全域くまなくネット!京都でのお部屋探しは創業40年の「かんたんお部屋探しは・・・京都ライフへ!!
- 店舗の特徴
- 賃貸管理業務
- 24時間管理物件取扱い
- リフォーム対応
- 引越し業者紹介可
- 年中無休
- 保証人不要な物件あり
- 法人契約取扱い
- 駅から歩いて3分以内
電話でお問合せお客様の電話番号は不動産会社には通知されません
- 不動産会社に
つながります
お客様の電話番号は不動産会社に通知されません
- ※光IP電話、及びIP電話からはご利用になれません
- ※お電話によるお問合せは、店舗営業時間内にお願いします。つながらない場合は、お問合せフォームよりお問合せください
- ※不動産会社がお電話に出られなかった場合、お問合せいただいた後に不動産会社より折り返しのお電話がある場合がございます(お客様が非通知設定した場合は対象外です)
- ※株式会社LIFULLは電話会社が提供するサービスを介してお客様の発信者番号を受領後、折り返し専用の電話番号を発番してお問合せの不動産会社に通知します(お客様の発信者番号がお問合せの不動産会社に通知されることはございません)
- ※携帯電話からお問合せいただいた方に対し、株式会社LIFULLは電話会社が提供するメッセ―ジサービスを介してお客様の発信者番号を受領後、ショートメッセージ(SMS)またはLINE通知メッセージによるお問合せ内容に関する通知をお届けする場合があります
- ※お客様が通話中に不動産会社にお伝えになったお客様の個人情報及び、電話会社が発番する折り返し専用の電話番号は、お問合せ先不動産会社が資料送付・電子メール送信・電話連絡などの目的で保管する可能性があります。お問合せ先不動産会社が保管する個人情報の取扱いについては、各不動産会社に直接お問合せください
- ※株式会社LIFULLでは本サービスを円滑に運用するために、お客様の発信者番号をサービスご利用の控えとして一定期間保管いたします
- ※上記および株式会社LIFULLの個人情報の取扱い方針に同意のうえ、お電話ください
【LIFULL HOME'S物件番号】0100017-0222235【自社管理番号】26177-108
オンライン対応
オンライン内見・オンライン相談・IT重説に対応している物件です

「オンライン内見」「オンライン相談」「IT重説」とは?
物件の内見や不動産会社スタッフとの相談、契約前の重要事項説明をオンライン(ビデオ通話)で行うことができるサービスです。
オンライン内見
ビデオ通話で現地(物件)にいる不動産会社スタッフと映像・音声を使ってリアルタイムで会話しながら内見ができます。
オンライン相談
「物件について聞きたいことがある」など不動産会社スタッフへの相談もビデオ通話で行うことができます。
IT重説
契約前の重要事項説明(重説)をビデオ通話で行うことができます。
利用時の注意事項
- ビデオ通話については各不動産会社指定のものとなります。
- ビデオ通話利用時には通信が発生します。従量課金制通信サービスや通信量に上限があるネット回線・プランを利用する場合は、通信量にご注意ください。
- 通信速度やアプリの設定によってはビデオ通話の画質が低下することがあります。安定した画質で利用するためにも、Wi-Fi環境下での利用を推奨します。
- ご利用のビデオ通話アプリによっては、対象のOSやブラウザに制限がある場合があります。詳しくはお問合せ先不動産会社にご確認ください。
初期費用・月額費用をあわせて確認!この物件に住んだときの費用めやす
めやすを見るこの物件に住んだときの費用めやす
- 初期費用
- 月額費用
- 追加費用※ご確認ください
追加で費用が
かかる場合があります
必ずご確認ください
初期費用めやす約0円
追加で費用がかかります(※)敷金
0
- 礼金
100,000
賃料+共益費・管理費の1ヶ月分として換算
賃料の1ヶ月分+税として換算。不動産会社によって金額が異なるため正確な金額は不動産会社にお問合せください
※追加費用もチェック!
これらの項目以外にも費用がかかる場合があります。正確な金額は不動産会社にお問合せください。
- 初期費用
- 鍵交換費:不動産会社に要確認
- 室内清掃費:49,500円
- 火災保険費:不動産会社に要確認
- 月額費用
- 駐車場費:8,800円(税込)※契約任意
- その他
- 放送受信料:770円
- 害虫駆除費:22000円
- ファイテック消火剤:4950円
- 保証会社
- 初回:3.5万円、月額:保証料として月額賃料等の1%+800円
不動産会社より
2005年築、単身。 2005年築、広々単身マンション。
近鉄寺田駅まで徒歩4分の1Kです。JR、近鉄のダブルアクセス。嬉しい3点セパレートなど充実の設備。TVホンでセキュリティも安心です。コンビニ、スーパー、ドラッグストアなど近くにあって便利ですよ。光ファイバー対応しています。 物件情報はもちろん京都のエリア情報まで幅広く対応させていただきます!
- 保存する
- 共有する
- ※各種情報と現状に差異がある場合は、現状優先となります
- ※不動産会社が入力した情報を基に物件の位置を表示しています。詳しくは不動産会社までお問合せください
- ※不動産会社の方からの上記電話番号によるお問合せはお断りしております。こちら不動産会社詳細からお問合せください
- ※LIFULL HOME'Sは物件鮮度No.1を目指していきます。閲覧中の物件が「成約済である」「実際の物件情報と異なる点がある」などの場合、「掲載110番」からお問合せください
- ※QRコードは株式会社デンソーウェーブの登録商標です
したい暮らしのタグから探す
LIFULL HOME'S 地図・周辺情報
買い物
- ファミリーマート 城陽樋尻店
- ライフ 寺田店
- ハーティドラッグマツノキ寺田店
- ファミリーマート 城陽寺田店
- 業務スーパー 城陽店
グルメ
- 吉野家 大久保バイパス城陽店
- すき家 城陽久世店
- やよい軒 京都城陽店
- 丸亀製麺城陽店
- スシロー 城陽店
育児・教育
- 里の西保育園
- 城陽市立寺田西小学校
- 城陽市立西城陽中学校
- 佐伯幼稚園
- 城陽市立寺田小学校
医療
- 医療法人晴風園ほうゆうリハビリテーション病院
- 医療法人啓信会京都きづ川病院
- 医療法人長安会中村病院
- 社会医療法人岡本病院(財団)京都岡本記念病院
公共施設・郵便局
- 城陽寺田郵便局
- 城陽市立図書館
- 城陽市役所
- 城陽今堀郵便局
- 城陽警察署
公園
- 尼塚第7幼児公園
- 木津川運動公園
- 八幡市民スポーツ公園
- 京都府立木津川運動公園
- 城陽市総合運動公園
利用可能な駅
- 徒歩10分以内
近鉄京都線
- 寺田駅徒歩4分
- すべての駅
JR奈良線
- 城陽駅徒歩14分
- 長池駅徒歩34分
- 新田駅3.2km
近鉄京都線
- 久津川駅徒歩21分
- 富野荘駅徒歩24分
- 大久保駅徒歩37分
- 周辺情報は2023年07月21日時点のものになります。
- 周辺情報は、参考情報としてのみご利用ください(周辺情報は、株式会社LIFULLが地図情報の提供事業者から提供を受けた情報とLIFULL HOME'Sの物件情報に基づき、独自の方法で抽出し提供しているものです。周辺情報は、移転や閉鎖等により情報が最新ではない、または正しくない場合がありますが、地図情報の提供事業者から提供された情報をそのまま周辺情報として表示しているため、正確かつ最新の情報へ修正することができないことがあります。)
- 周辺情報は、株式会社LIFULLが掲載するものであり、不動産物件情報を掲載している不動産会社が掲載するものではありません
- 交通情報の一部については、株式会社LIFULLが掲載するものであり、不動産物件情報を掲載している不動産会社が掲載するものではない場合があります。交通情報に関する質問などは株式会社LIFULLにお問合せください








