LIFULL HOME'Sは物件鮮度No.1!※評価について
JR奈良線 木幡駅 徒歩3分
3.9万円/管理費等4,000円
19時間前 更新
画像一覧
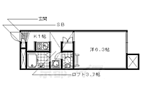
1/30間取り
間取
2/30外観
外観です。
3/30外観
外観です。
4/30リビング/ダイニング
ロフトのある広々とした部屋です。
5/30リビング/ダイニング
ロフトです。
6/30リビング/ダイニング
日当たりの良い部屋です。
7/30リビング/ダイニング
開放感のある部屋です。
8/30リビング/ダイニング
広々としたロフトです。
9/30リビング/ダイニング
明るく広いロフトです。
10/30リビング/ダイニング
ロフトから部屋を見渡せます。
11/30リビング/ダイニング
広く明るい部屋です。
12/30リビング/ダイニング
ロフトがあり、開放感があります。
13/30キッチン
明るくキレイなキッチンです。
14/30キッチン
たっぷり収納できます。
15/30浴室
ゆったり浸かれます。
16/30トイレ
明るいトイレです。
17/30収納
たくさん収納できる下駄箱です。
18/30収納
たくさん収納できます。
19/30設備
大きな冷蔵庫です。
20/30設備
充分な大きさの洗濯機です。
21/30設備
インターフォンです。
22/30設備
物干し竿を置けます。
23/30玄関
広々とした玄関です。
24/30玄関
収納スペースのある玄関です。
25/30バルコニー
風通しがよいです。
26/30その他
明るい廊下です。
27/30その他
廊下です。
28/30その他
階段です。
29/30その他
ゴミ捨て場です。
30/30周辺
ファミリーマート宇治木幡店まで48m
間取り
外観
外観
リビング/ダイニング
リビング/ダイニング
リビング/ダイニング
リビング/ダイニング
リビング/ダイニング
リビング/ダイニング
リビング/ダイニング
リビング/ダイニング
リビング/ダイニング
キッチン
キッチン
浴室
トイレ
収納
収納
設備
設備
設備
設備
玄関
玄関
バルコニー
その他
その他
その他
その他
周辺
住まい探し特典内容
仲介手数料が家賃の半月分(消費税)です。
- 利用条件
- 株式会社京都ライフ 伏見桃山店で利用可
- 他特典との併用可
- 法人様契約、事業用物件は対象外です。積水ハウス、大東建託の管理物件は除く。
利用方法
来店時に本特典の画面をスマートフォンやタブレットでスタッフに提示、または画面印刷した用紙を提示ください。
有効期限 なし
条件変更で猫飼育可能 幹線道路から一歩入ります。 JR木幡駅まですぐの1Kです(徒歩3分)。
基本情報
不動産用語- 賃料
- 3.9万円
- 管理費等
- 4,000円
初期費用などお気軽にお問合せください
物件のこだわり/設備・条件
新築(非該当)
2階以上の物件(非該当)
南向き(該当)
駐車場(非該当)
オートロック(非該当)
エアコン(該当)
バス・トイレ別(該当)
追焚機能(非該当)
フローリング(該当)
ペット相談可(該当)
入居条件
単身者限定、ペット相談、即入居可キッチン/バス・トイレ
設備・サービス
エアコン、シューズボックス、公営水道、プロパンガス、下水、フローリング、ロフト付き、室内洗濯機置場、駐輪場ありその他
住まい探し特典あり備考
JR、京阪のダブルアクセス。礼金、更新料ナシです。コンビニ、スーパー、ドラッグストアなど近くにあって便利ですよ。条件変更で猫飼育可能です。 物件情報はもちろん京都のエリア情報まで幅広く対応させていただきます!
物件周辺の生活情報
買い物
- コンビニ(48m)
- スーパー(574m)
- ドラッグストア(311m)
その他施設
- 総合病院(1,397m)
- 銀行(296m)
- ホームセンターコーナンJR宇治駅北店(1,597m)
交通
- JR奈良線 木幡駅 徒歩3分
- 普通(停車)
- 区間快速(通過)
- 快速(通過)
- みやこ路快速(通過)
- 京阪宇治線 木幡駅 徒歩5分
- 普通(停車)
※急行等の停車駅情報について
急行等の停車駅に関するデータは、随時更新をしておりますが、最新の内容であることを保証するものではありません。
最新かつ正確な情報につきましては、各鉄道会社のウェブサイトにてご確認ください
物件周辺の口コミ
- 京都府宇治市木幡に住む人の口コミ20代女性
一番良いのは、京阪、JR、京都地下鉄が徒歩圏内にあり、用途によって選べるところです。
口コミを見る
この物件周辺に住む人の口コミ
口コミは、LIFULL HOME'Sが実際にこの物件の周辺に住む18歳~69歳の男女を対象に、WEBアンケート調査を実施しています。内容には回答者の主観的な表現が含まれる場合があるほか、事実と異なる場合もございます。ご了承ください。
- 京都府宇治市木幡に住む人の口コミ20代女性
- 一番良いのは、京阪、JR、京都地下鉄が徒歩圏内にあり、用途によって選べるところです。
- 京都府宇治市木幡に住む人の口コミ30代女性
- 車があれば近くに大きいスーパーや大きい病院があるが、車がないと不便。免許証を返還したら、何かしらのサービスが欲しい。電車が二つあるので、京都市内や大阪に行きやすい京都アニメーションの本社が在り
- 京都府宇治市木幡に住む人の口コミ30代女性
- 欲を言えば、もっと近くにコンビニや本屋、遊具の多い広い公園が欲しいと思うが、車を出せば、比較的近い距離にそれらはあるので、まあ満足。お年寄りが多く、落ち着いた雰囲気で、治安はいいと思う。
- 京都府宇治市木幡に住む人の口コミ20代女性
- 子供が生まれてから初めてこの土地に引っ越し、はじめは不安でいっぱいだったが約2年過ごしてみて何一つ不自由なく子育てができている。
- 京都府宇治市木幡に住む人の口コミ30代女性
- 交通の便がよく、大阪、京都、奈良の中心部へも行きやすい。住宅街は落ち着いている。スーパー、病院、飲食店など一通りの店はそろっている。
- 京都府宇治市木幡に住む人の口コミ20代女性
- 昔ながらの街並みで、子育てもしやすい。地域で見守られている感じがする。
- 京都府宇治市木幡に住む人の口コミ30代女性
- 環境が良くてすみやすいと思います。ただ駅まで少し歩くのがしんどいです。
- 京都府宇治市木幡に住む人の口コミ20代男性
- 交通の便も良く24時間営業のスーパーもあるため買い忘れた物なども買いに行きやすい
- 京都府宇治市木幡に住む人の口コミ20代男性
- 駅は複数あり便利。交通も運雑がない。スーパーが多いので便利。コンビニもある
- 京都府宇治市木幡に住む人の口コミ30代女性
- 住んでいる住宅街は閑静な住宅街だか、徒歩で駅周辺まで出かけるとショッピングや病院、美容院などがあるので、便利なところである。しかし、住宅街が高台にあり、坂道の登り降りが大変である。
物件概要
- 建物構造
- 鉄骨造
- 駐車場
- 空無
- 総戸数
- 16戸
- 契約形態
- -
- 契約期間
- 2年間
- 更新料
- -
- その他費用
- 室内清掃費用:33,000円、害虫駆除費:22,000円、ファイテック消火剤:4,950円、解約事務手数料:5,500円
- 保証会社
加入要
保証会社:日本セーフティー
保証会社利用料:初回:月額賃料等の50%、月額:800円+330円
- 住宅保険
- 要
- 管理
- -
- LIFULL HOME'S
物件番号 - 0138141-0151172
- 自社管理番号
- 51056-106-25
- 取引態様
- 仲介
- 会社名
- 株式会社京都ライフ 伏見桃山店
営業スタッフコメント

株式会社京都ライフ 伏見桃山店
奥田光貴
全力でサポート致します。
業界経験5年
- スタッフ情報
- 京都の賃貸は京都ライフまでお待ちしております。 伏見桃山に新店を出させて頂きました。新しいお店でお待ちしております。 ご質問、ご不明な点等がございましたらお気軽にお電話、メールにてお問い合わせくださいませ。
京都の賃貸は京都ライフまでお待ちしております。 伏見桃山に新店を出させて頂きました。新しいお店でお待ちしております。 ご質問、ご不明な点等がございましたらお気軽にお電話、メールにてお問い合わせくださいませ。
- 電話でお問合せ(通話無料)
お問合せ先 :株式会社京都ライフ 伏見桃山店
不動産会社情報
株式会社京都ライフ 伏見桃山店

京都府京都市伏見区観音寺町215-1 CONNECT桃山2F
近鉄京都線 桃山御陵前駅 徒歩1分
- 営業時間
- 09:30~19:00
- 定休日
- 年中無休(盆正月を除く)
優良店認定
桃山御陵前駅降りればスグ!人口の多い伏見区、沿線の多い伏見区、大阪へも出易い伏見区でお探しの方へ! もちろん京都市内どこでもご案内致します。全力でお部屋探しをサポートさせて頂きます!
- 店舗の特徴
- 賃貸管理業務
- 24時間管理物件取扱い
- リフォーム対応
- 引越し業者紹介可
- 年中無休
- 社宅・寮物件取扱い
- オンライン相談可
- 保証人不要な物件あり
- 法人契約取扱い
- 駅から歩いて3分以内
電話でお問合せお客様の電話番号は不動産会社には通知されません
- 不動産会社に
つながります
お客様の電話番号は不動産会社に通知されません
- ※光IP電話、及びIP電話からはご利用になれません
- ※お電話によるお問合せは、店舗営業時間内にお願いします。つながらない場合は、お問合せフォームよりお問合せください
- ※不動産会社がお電話に出られなかった場合、お問合せいただいた後に不動産会社より折り返しのお電話がある場合がございます(お客様が非通知設定した場合は対象外です)
- ※株式会社LIFULLは電話会社が提供するサービスを介してお客様の発信者番号を受領後、折り返し専用の電話番号を発番してお問合せの不動産会社に通知します(お客様の発信者番号がお問合せの不動産会社に通知されることはございません)
- ※携帯電話からお問合せいただいた方に対し、株式会社LIFULLは電話会社が提供するメッセ―ジサービスを介してお客様の発信者番号を受領後、ショートメッセージ(SMS)またはLINE通知メッセージによるお問合せ内容に関する通知をお届けする場合があります
- ※お客様が通話中に不動産会社にお伝えになったお客様の個人情報及び、電話会社が発番する折り返し専用の電話番号は、お問合せ先不動産会社が資料送付・電子メール送信・電話連絡などの目的で保管する可能性があります。お問合せ先不動産会社が保管する個人情報の取扱いについては、各不動産会社に直接お問合せください
- ※株式会社LIFULLでは本サービスを円滑に運用するために、お客様の発信者番号をサービスご利用の控えとして一定期間保管いたします
- ※上記および株式会社LIFULLの個人情報の取扱い方針に同意のうえ、お電話ください
【LIFULL HOME'S物件番号】0138141-0151172【自社管理番号】51056-106-25
初期費用・月額費用をあわせて確認!この物件に住んだときの費用めやす
めやすを見るこの物件に住んだときの費用めやす
- 初期費用
- 月額費用
- 追加費用※ご確認ください
追加で費用が
かかる場合があります
必ずご確認ください
初期費用めやす約0円
追加で費用がかかります(※)敷金
39,000
- 礼金
0
賃料+共益費・管理費の1ヶ月分として換算
賃料の1ヶ月分+税として換算。不動産会社によって金額が異なるため正確な金額は不動産会社にお問合せください
※追加費用もチェック!
これらの項目以外にも費用がかかる場合があります。正確な金額は不動産会社にお問合せください。
- 初期費用
- 鍵交換費:不動産会社に要確認
- 室内清掃費:33,000円
- 火災保険費:不動産会社に要確認
- その他
- 害虫駆除費:22000円
- ファイテック消火剤:4950円
- 解約事務手数料:5500円
- 保証会社
- 初回:月額賃料等の50%、月額:800円+330円
不動産会社より
条件変更で猫飼育可能 幹線道路から一歩入ります。 JR木幡駅まですぐの1Kです(徒歩3分)。
JR、京阪のダブルアクセス。礼金、更新料ナシです。コンビニ、スーパー、ドラッグストアなど近くにあって便利ですよ。条件変更で猫飼育可能です。 物件情報はもちろん京都のエリア情報まで幅広く対応させていただきます!
- 保存する
- 共有する
- ※各種情報と現状に差異がある場合は、現状優先となります
- ※不動産会社が入力した情報を基に物件の位置を表示しています。詳しくは不動産会社までお問合せください
- ※不動産会社の方からの上記電話番号によるお問合せはお断りしております。こちら不動産会社詳細からお問合せください
- ※LIFULL HOME'Sは物件鮮度No.1を目指していきます。閲覧中の物件が「成約済である」「実際の物件情報と異なる点がある」などの場合、「掲載110番」からお問合せください
- ※QRコードは株式会社デンソーウェーブの登録商標です
この物件を取扱う他の会社
LIFULL HOME'Sでは、主要項目が同一の物件をまとめて表示しています。所在地や営業時間、掲載画像等から不動産会社を選んでお問合せください。
株式会社京都ライフ 京田辺店
優良店認定
京都府京田辺市田辺中央1丁目7-11
JR片町線(学研都市線) 京田辺駅 徒歩4分
- 営業時間
- 09:30~19:00
- 定休日
- 水曜定休(4/21〜9/20の期間)、盆・正月
同じ建物の他の部屋
最近見た賃貸物件
LIFULL HOME'S 地図・周辺情報
買い物
- ファミリーマート 宇治木幡店
- 新鮮激安市場!木幡店
- ドラッグユタカ宇治木幡店
- セブンイレブン 宇治木幡店
- 新鮮激安市場!六地蔵店
グルメ
- マクドナルド 宇治木幡店
- さん天宇治木幡店
- ジョリーパスタ 木幡店
- ビッグボーイ 宇治六地蔵店
- 天下一品六地蔵店
育児・教育
- 宇治市立木幡保育所
- 宇治市立木幡小学校
- 宇治市立木幡中学校
- 宇治市立木幡幼稚園
- 宇治市立御蔵山小学校
医療
- 社会福祉法人宇治病院
- 医療法人徳洲会六地蔵総合病院
- 医療法人財団桜花会醍醐病院
- 京都府立洛南病院
- 医療法人医仁会武田総合病院
公共施設・郵便局
- 宇治木幡郵便局
- 宇治市東宇治図書館
- 京都市伏見区役所醍醐支所
- 宇治御蔵山郵便局
- 京都市醍醐図書館
公園
- 二子塚古墳公園
- 黄檗公園
- 向島東公園
- 東隼上り児童公園
- 伏見北堀公園
利用可能な駅
- 徒歩10分以内
JR奈良線
- 木幡駅徒歩3分
京阪宇治線
- 木幡駅徒歩5分
- 周辺情報は2023年07月21日時点のものになります。
- 周辺情報は、参考情報としてのみご利用ください(周辺情報は、株式会社LIFULLが地図情報の提供事業者から提供を受けた情報とLIFULL HOME'Sの物件情報に基づき、独自の方法で抽出し提供しているものです。周辺情報は、移転や閉鎖等により情報が最新ではない、または正しくない場合がありますが、地図情報の提供事業者から提供された情報をそのまま周辺情報として表示しているため、正確かつ最新の情報へ修正することができないことがあります。)
- 周辺情報は、株式会社LIFULLが掲載するものであり、不動産物件情報を掲載している不動産会社が掲載するものではありません
- 交通情報の一部については、株式会社LIFULLが掲載するものであり、不動産物件情報を掲載している不動産会社が掲載するものではない場合があります。交通情報に関する質問などは株式会社LIFULLにお問合せください










































