LIFULL HOME'Sは物件鮮度No.1!※評価について
双和苑 4階/306
7.1万円/管理費等6,000円
1時間前 更新
画像一覧
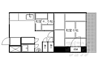
1/30間取り
間取
2/30外観
3/30外観
4/30外観
5/30エントランス
6/30駐車場
7/30その他
8/30その他
9/30その他
10/30その他
11/30その他
12/30その他
13/30その他
14/30周辺
15/30周辺
16/30周辺
フレスコ堀川店まで220m お惣菜もりだくさん 9:00~22:00
17/30周辺
アイハート 堀川店まで220m
18/30周辺
ファミリーマート丸太町猪熊店まで273m
19/30周辺
イズミヤ 堀川丸太町店まで379m
20/30周辺
二条城北小学校まで449m
21/30周辺
セブンイレブン二条城北店まで522m
22/30周辺
京都第二赤十字病院まで730m
23/30周辺
二条中学校まで761m
24/30周辺
同志社大学(今出川)まで1905m
25/30周辺
同志社女子大学(今出川)まで2179m
26/30周辺
京都府立医科大学まで2481m
27/30周辺
立命館大学(衣笠)まで3384m
28/30周辺
二条駅まで925m
29/30周辺
丸太町駅まで1054m
30/30周辺
二条駅まで1337m
間取り
外観
外観
外観
エントランス
駐車場
その他
その他
その他
その他
その他
その他
その他
周辺
周辺
周辺
周辺
周辺
周辺
周辺
周辺
周辺
周辺
周辺
周辺
周辺
周辺
周辺
周辺
周辺
LINEチャットでも 相談できます
お問合せ先 :アパマンショップ今出川店 ウインズリンク株式会社
仲介手数料割引
当店の仲介手数料は家賃の50%(外税)になります。(居住用物件に限ります)
- 利用条件
- アパマンショップ今出川店 ウインズリンク株式会社で利用可
- 他特典との併用可
利用方法
来店時に本特典の画面をスマートフォンやタブレットでスタッフに提示、または画面印刷した用紙を提示ください。
有効期限 2026年11月14日まで
JR二条駅徒歩12分 新生活を便利な周辺環境でスタートしてみてはいかがでしょうか
基本情報
不動産用語- 賃料
- 7.1万円
- 管理費等
- 6,000円
初期費用などお気軽にお問合せください
- 敷金/礼金
- 無/7.1万円
- 保証金/敷引・償却金
- -/-
- 交通
JR山陰本線 二条駅 徒歩12分
京都市営烏丸線 丸太町駅 徒歩14分
- 所在地
京都府京都市上京区大宮通下立売下ル菱屋町
地図を見る- 築年月
- 1980年4月(築46年)
- 主要採光面
- 南
- 専有面積
- 34.7㎡
- バルコニー面積
- -
- 所在階/階数
- 4階/6階建
入居可能日などお気軽にお問合せください
- 現況
- 賃貸中
- 入居可能時期
- 2025年12月 中旬

人気物件はすぐに埋まってしまいます。
気になったらお早めにお問合せください。
- 情報公開日
2025/11/13
14日前 公開
- 情報更新日
2025/11/27
1時間前 更新
- 次回更新
予定日 - 2025/12/10
物件のこだわり/設備・条件
新築(非該当)
2階以上の物件(該当)
南向き(該当)
駐車場(非該当)
オートロック(非該当)
エアコン(該当)
バス・トイレ別(該当)
追焚機能(該当)
フローリング(該当)
ペット相談可(該当)
入居条件
二人入居可、ペット相談キッチン/バス・トイレ
ガスコンロ設置済、コンロ二口、システムキッチン、給湯、専用バス、専用トイレ、バス・トイレ別、追焚機能、シャワー、シャワー付洗面化粧台、温水洗浄便座、洗面所独立設備・サービス
防犯カメラ、TVモニタ付インターホン、エアコン、インターネット使用料無料、公営水道、都市ガス、下水、フローリング、バルコニー、室内洗濯機置場、南面バルコニー、エレベーター、ゴミ出し24時間OK、宅配ボックス、バイク置き場あり、駐輪場ありその他
リノベーション物件、住まい探し特典あり備考
新婚さんにオススメのリノベーション物件です。ゆったりした間取りを希望の方にもオススメです。閑静な住宅街で新生活をスタートしませんか。京都の賃貸ならアパマンショップにお任せください。
リノベーション
- 施工内容
2015年10月 実施
キッチン、脱衣洗面所、フローリング等、大幅リノベーション済み
物件周辺の生活情報
学校
- 二条城北小学校(449m)
- 二条中学校(761m)
買い物
- コンビニ(273m)
- スーパー(379m)
その他施設
- 総合病院(730m)
交通
- 京都市営烏丸線 丸太町駅 徒歩14分
- 普通(停車)
- 急行(停車)
- JR山陰本線 二条駅 徒歩12分
- 普通(停車)
- 快速とっとりライナー(通過)
- 快速通勤ライナー(通過)
- 快速(停車)
※急行等の停車駅情報について
急行等の停車駅に関するデータは、随時更新をしておりますが、最新の内容であることを保証するものではありません。
最新かつ正確な情報につきましては、各鉄道会社のウェブサイトにてご確認ください
物件概要
- 建物構造
- RC(鉄筋コンクリート)
- 駐車場
- 空無
- 総戸数
- 30戸
- 契約形態
- -
- 契約期間
- 2年間
- 更新料
- 新賃料の1ヶ月分
- その他費用
- 室内清掃費用:27,500円、スマイルパック:25,000円
- 保証会社
加入要
保証会社:グリーン保証
保証会社利用料:初回:月額賃料等の50%、更新時:月額賃料等の50%(初回保証料および更新保証料ともに最低保証料22000円)
- 住宅保険
- 要
- 管理
- 管理員:巡回
- LIFULL HOME'S
物件番号 - 0113628-0253727
- 自社管理番号
- 11083-306
- 取引態様
- 仲介
- 会社名
- アパマンショップ今出川店 ウインズリンク株式会社
営業スタッフコメント

アパマンショップ今出川店 ウインズリンク株式会社営業
河崎圭汰
ありがとうの言葉を大切にしています。
業界経験1年
資格少額短期保険募集人
- 会社実績や特徴・サービス情報
- アパマンショップ今出川店は、地下鉄 今出川駅 4番出口より北へ徒歩1分のところにあります。店舗の目の前には同志社大学(今出川キャンパス)があります。毎年同志社大学、同志社女子大学生さんのお部屋探しをサポートさせていただいています。ファミリーの方に好まれる室町小学校、新町小学校、西陣小学、御所南小学校等の校区の賃貸物件も紹介させていただきます。地下鉄鞍馬口駅、今出川駅、丸太町駅等、通勤のためお部屋を探される方もサポートもさせていただきます。ぜひ信頼のアパマンブランド、アパマンショップ今出川店にご来店ください
アパマンショップ今出川店は、地下鉄 今出川駅 4番出口より北へ徒歩1分のところにあります。店舗の目の前には同志社大学(今出川キャンパス)があります。毎年同志社大学、同志社女子大学生さんのお部屋探しをサポートさせていただいています。ファミリーの方に好まれる室町小学校、新町小学校、西陣小学、御所南小学校等の校区の賃貸物件も紹介させていただきます。地下鉄鞍馬口駅、今出川駅、丸太町駅等、通勤のためお部屋を探される方もサポートもさせていただきます。ぜひ信頼のアパマンブランド、アパマンショップ今出川店にご来店ください
- 電話でお問合せ(通話無料)
お問合せ先 :アパマンショップ今出川店 ウインズリンク株式会社
不動産会社情報
アパマンショップ今出川店 ウインズリンク株式会社アパマンショップ今出川店
京都府京都市上京区烏丸通今出川上る岡松町272 クローバービル1階
京都市営烏丸線 今出川駅 徒歩1分
- 営業時間
- 09:30~19:00
- 定休日
- なし(盆休み8/13〜8/16・年末年始12/27〜1/4)
京都市上京区・中京区・北区・左京区・右京区等、地下鉄烏丸線今出川・鞍馬口・丸太町駅等地下鉄沿線、同志社大学・京都大学・立命館大学等でのお部屋探しはアパマンショップ今出川店にお任せ下さい!
- 店舗の特徴
- 賃貸管理業務
- 24時間管理物件取扱い
- リフォーム対応
- 引越し業者紹介可
- 年中無休
- 保証人不要な物件あり
- 法人契約取扱い
- 女性スタッフ対応可
- 駅から歩いて3分以内
電話でお問合せお客様の電話番号は不動産会社には通知されません
- 不動産会社に
つながります
お客様の電話番号は不動産会社に通知されません
- ※光IP電話、及びIP電話からはご利用になれません
- ※お電話によるお問合せは、店舗営業時間内にお願いします。つながらない場合は、お問合せフォームよりお問合せください
- ※不動産会社がお電話に出られなかった場合、お問合せいただいた後に不動産会社より折り返しのお電話がある場合がございます(お客様が非通知設定した場合は対象外です)
- ※株式会社LIFULLは電話会社が提供するサービスを介してお客様の発信者番号を受領後、折り返し専用の電話番号を発番してお問合せの不動産会社に通知します(お客様の発信者番号がお問合せの不動産会社に通知されることはございません)
- ※携帯電話からお問合せいただいた方に対し、株式会社LIFULLは電話会社が提供するメッセ―ジサービスを介してお客様の発信者番号を受領後、ショートメッセージ(SMS)またはLINE通知メッセージによるお問合せ内容に関する通知をお届けする場合があります
- ※お客様が通話中に不動産会社にお伝えになったお客様の個人情報及び、電話会社が発番する折り返し専用の電話番号は、お問合せ先不動産会社が資料送付・電子メール送信・電話連絡などの目的で保管する可能性があります。お問合せ先不動産会社が保管する個人情報の取扱いについては、各不動産会社に直接お問合せください
- ※株式会社LIFULLでは本サービスを円滑に運用するために、お客様の発信者番号をサービスご利用の控えとして一定期間保管いたします
- ※上記および株式会社LIFULLの個人情報の取扱い方針に同意のうえ、お電話ください
【LIFULL HOME'S物件番号】0113628-0253727【自社管理番号】11083-306
初期費用・月額費用をあわせて確認!この物件に住んだときの費用めやす
めやすを見るこの物件に住んだときの費用めやす
- 初期費用
- 月額費用
- 追加費用※ご確認ください
追加で費用が
かかる場合があります
必ずご確認ください
初期費用めやす約0円
追加で費用がかかります(※)敷金
0
- 礼金
71,000
賃料+共益費・管理費の1ヶ月分として換算
賃料の1ヶ月分+税として換算。不動産会社によって金額が異なるため正確な金額は不動産会社にお問合せください
※追加費用もチェック!
これらの項目以外にも費用がかかる場合があります。正確な金額は不動産会社にお問合せください。
- 初期費用
- 鍵交換費:不動産会社に要確認
- 室内清掃費:27,500円
- 火災保険費:不動産会社に要確認
- その他
- スマイルパック:25000円
- 保証会社
- 初回:月額賃料等の50%、更新時:月額賃料等の50%(初回保証料および更新保証料ともに最低保証料22000円)
不動産会社より
JR二条駅徒歩12分 新生活を便利な周辺環境でスタートしてみてはいかがでしょうか
新婚さんにオススメのリノベーション物件です。ゆったりした間取りを希望の方にもオススメです。閑静な住宅街で新生活をスタートしませんか。京都の賃貸ならアパマンショップにお任せください。
- 保存する
- 共有する
- ※各種情報と現状に差異がある場合は、現状優先となります
- ※不動産会社が入力した情報を基に物件の位置を表示しています。詳しくは不動産会社までお問合せください
- ※不動産会社の方からの上記電話番号によるお問合せはお断りしております。こちら不動産会社詳細からお問合せください
- ※LIFULL HOME'Sは物件鮮度No.1を目指していきます。閲覧中の物件が「成約済である」「実際の物件情報と異なる点がある」などの場合、「掲載110番」からお問合せください
- ※QRコードは株式会社デンソーウェーブの登録商標です
LIFULL HOME'S 地図・周辺情報
買い物
- ファミリーマート 丸太町猪熊店
- フレスコ 堀川店
- ココカラファインプラスイズミヤ堀川丸太町店
- セブンイレブン 堀川丸太町店
- 新鮮食品館アイハート堀川店
グルメ
- CoCo壱番屋 堀川丸太町店
- モスバーガー イズミヤ堀川丸太町店
- 餃子の王将 府庁前店
- 餃子の王将 中立売店
- マクドナルド 千本中立売店
育児・教育
- 信愛保育園
- 京都市立二条城北小学校
- 京都市立二条中学校
- 京都市立待賢幼稚園
- 京都市立正親小学校
医療
- 京都第二赤十字病院
- 医療法人社団洛和会洛和会丸太町病院
- 医療法人毛利病院
- 医療法人愛寿会同仁病院
- 社会医療法人西陣健康会堀川病院
公共施設・郵便局
- 京都大宮丸太町郵便局
- 京都市中央図書館
- 京都府警察本部
- 京都堀川下長者町郵便局
- 京都市こどもみらい館子育て図書館
公園
- 梅屋広場公園
- 京都御苑
- 船岡山公園
- 光徳公園
利用可能な駅
- すべての駅
JR山陰本線
- 二条駅徒歩12分
京都市営烏丸線
- 丸太町駅徒歩14分
- 周辺情報は2023年07月21日時点のものになります。
- 周辺情報は、参考情報としてのみご利用ください(周辺情報は、株式会社LIFULLが地図情報の提供事業者から提供を受けた情報とLIFULL HOME'Sの物件情報に基づき、独自の方法で抽出し提供しているものです。周辺情報は、移転や閉鎖等により情報が最新ではない、または正しくない場合がありますが、地図情報の提供事業者から提供された情報をそのまま周辺情報として表示しているため、正確かつ最新の情報へ修正することができないことがあります。)
- 周辺情報は、株式会社LIFULLが掲載するものであり、不動産物件情報を掲載している不動産会社が掲載するものではありません
- 交通情報の一部については、株式会社LIFULLが掲載するものであり、不動産物件情報を掲載している不動産会社が掲載するものではない場合があります。交通情報に関する質問などは株式会社LIFULLにお問合せください









