LIFULL HOME'Sは物件鮮度No.1!※評価について
ハイランドコート錦 4階/403
22万円/管理費等42,500円
7時間前 更新
画像一覧
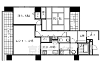
1/30間取り
間取
2/30外観
3/30外観
4/30リビング/ダイニング
5/30リビング/ダイニング
6/30リビング/ダイニング
7/30リビング/ダイニング
8/30キッチン
9/30キッチン
10/30キッチン
11/30キッチン
12/30浴室
13/30トイレ
14/30洗面
15/30洗面
16/30収納
17/30収納
18/30収納
19/30収納
20/30収納
21/30設備
22/30設備
23/30設備
24/30設備
25/30設備
26/30玄関
27/30バルコニー
28/30その他
29/30その他
30/30周辺
サークルK高倉泉正寺町店まで165m 蛸薬師通高倉を西に入るところにございます。
間取り
外観
外観
リビング/ダイニング
リビング/ダイニング
リビング/ダイニング
リビング/ダイニング
キッチン
キッチン
キッチン
キッチン
浴室
トイレ
洗面
洗面
収納
収納
収納
収納
収納
設備
設備
設備
設備
設備
玄関
バルコニー
その他
その他
周辺
仲介手数料割引
京都ライフなら、ご成約時に仲介手数料が家賃の50%(外税)です。
- 利用条件
- 株式会社京都ライフ 河原町四条店で利用可
- 他特典との併用可
- .法人契約、事業用物件は除く .積水ハウス、大東建託の管理物件は除く
利用方法
来店時に本特典の画面をスマートフォンやタブレットでスタッフに提示、または画面印刷した用紙を提示ください。
有効期限 なし
中心街分譲物件 ・時代・タイムスリップ・ 地下鉄四条駅まで徒歩7分の分譲賃貸マンションです。
物件のこだわり/設備・条件
新築(非該当)
2階以上の物件(該当)
南向き(該当)
駐車場あり(該当)
オートロック(該当)
エアコン(該当)
バス・トイレ別(該当)
追焚機能(非該当)
フローリング(該当)
ペット相談(非該当)
入居条件
二人入居可、即入居可キッチン/バス・トイレ
設備・サービス
オートロック、TVモニタ付インターホン、エアコン、シューズボックス、BS対応、光ファイバー、公営水道、都市ガス、下水、フローリング、バルコニー、室内洗濯機置場、南面バルコニー、エレベーター、ゴミ出し24時間OK、宅配ボックス、駐車場あり、駐輪場ありその他
分譲賃貸、住まい探し特典あり備考
京阪、阪急、地下鉄のトリプルアクセス。嬉しい3点セパレートなど充実の設備。オートロックでセキュリティも安心です。コンビニ、スーパー、ドラッグストアなど近くにあって便利ですよ。 物件情報はもちろん京都のエリア情報まで幅広く対応させていただきます!
物件周辺の生活情報
学校
- 高倉小学校(200m)
- 京都御池中学校(525m)
買い物
- コンビニ(165m)
- スーパー(459m)
- ドラッグストア(277m)
その他施設
- 総合病院(736m)
- 銀行(403m)
- 京都四条柳馬場郵便局(272m)
交通
- 京都市営烏丸線 四条駅 徒歩7分
- 普通(停車)
- 急行(停車)
- 京都市営烏丸線 烏丸御池駅 徒歩10分
- 普通(停車)
- 急行(停車)
※急行等の停車駅情報について
急行等の停車駅に関するデータは、随時更新をしておりますが、最新の内容であることを保証するものではありません。
最新かつ正確な情報につきましては、各鉄道会社のウェブサイトにてご確認ください
物件周辺の口コミ
- 京都府京都市中京区高倉通六角上るに住む人の口コミ30代女性
治安がよく街もキレイ、自治会は少し面倒だが治安に貢献している。店が多く買い物が便利、公立学校も安心して通えるレベルにある。地域や地元企業がスポンサーになり、子どもの為のイベントや活動を行ってくれる
口コミを見る
この物件周辺に住む人の口コミ
口コミは、LIFULL HOME'Sが実際にこの物件の周辺に住む18歳~69歳の男女を対象に、WEBアンケート調査を実施しています。内容には回答者の主観的な表現が含まれる場合があるほか、事実と異なる場合もございます。ご了承ください。
- 京都府京都市中京区高倉通六角上るに住む人の口コミ30代女性
- 治安がよく街もキレイ、自治会は少し面倒だが治安に貢献している。店が多く買い物が便利、公立学校も安心して通えるレベルにある。地域や地元企業がスポンサーになり、子どもの為のイベントや活動を行ってくれる
- 京都府京都市中京区西洞院通二条下るに住む人の口コミ40代女性
- スーパーが徒歩圏すぐには小さいコンビニサイズしかなく、隣のブロックまで買いに行かなくてはまともにそろわないこと。
- 京都府京都市中京区壬生坊城町に住む人の口コミ30代男性
- 交通の便が非常に良く市内ならば,ほぼ乗換無しで移動できる。又,利用できる鉄道路線が多いため近隣の町に行くのも非常に便利
- 京都府京都市中京区釜座通二条上るに住む人の口コミ40代女性
- 世界遺産が多く、教育熱心な家庭が多く、治安が良くて街に活気があるから。
- 京都府京都市中京区小川通丸太町上るに住む人の口コミ40代女性
- 適度に都会で、交通も便利で、住むのに不満がないが、車通りが多いので、少しうるさい。
- 京都府京都市中京区蛸薬師通柳馬場西入に住む人の口コミ40代女性
- 交通手段・病院・買い物等、利用しやすい環境だが、近年の外国人旅行者の増加で、住人にとって家の周りにゴミ投棄や破壊、バスの異常な混雑、観光地のマナー違反で、雰囲気が無くなってしまった場所もあるから。
- 京都府京都市中京区衣棚通二条下るに住む人の口コミ60代女性
- 歴史のある町なので、歴史の残る街並みで、歩いていても多くの発見があり、楽しい。交通も便利。繁華街にもすぐに行けるし、鴨川や御所など落ち着く場所も近くにある。買い物も便利。
- 京都府京都市下京区仏光寺通堀川東入に住む人の口コミ40代女性
- 交通の便の良さ。仕事に行くのも旅行に行くのも便利。堀川沿いでけやき通りはあるし、山も空も良く見える。二条城も近い河原町は余裕の徒歩圏内。問題はスーパーが四条通りはフレスコしかないこと。
- 京都府京都市中京区西洞院通錦小路下るに住む人の口コミ40代女性
- 街の中心部にあるため、自然が少なく、四季が感じられないが、それ以外は概ね満足している
- 京都府京都市上京区猪熊通下立売上るに住む人の口コミ30代男性
- 今までこの街で暮らしてきて不自由を感じてこなかった点とこれから一生涯この街で暮らしても不自由を感じないだろうと思う点から満足しています。
物件概要
- 建物構造
- SRC(鉄骨鉄筋コンクリート)
- 駐車場
- 空有 38,500円(税込)
- 総戸数
- 20戸
- 契約形態
- -
- 契約期間
- 2年間
- 更新料
- 250,000円
- その他費用
- -
- 保証会社
- -
- 住宅保険
- 要
- 管理
- 管理員:巡回
- LIFULL HOME'S
物件番号 - 0140999-0211999
- 自社管理番号
- 11693-403-26
- 取引態様
- 仲介
- 会社名
- 株式会社京都ライフ 河原町四条店
営業スタッフコメント

株式会社京都ライフ 河原町四条店
島名萌々花
お客様満足度100%を目標にしております!
業界経験3年
資格少額短期保険募集人
- 会社実績や特徴・サービス情報
- 京都市のお部屋探しは「創業40年以上。老舗の京都ライフ」へおまかせ下さい。 その他非掲載物件も多数ございます。ぜひ自社HPもご覧ください。 「京都ライフ」で検索でOK。京都ライフでは仲介手数料は家賃の半月分です。
京都市のお部屋探しは「創業40年以上。老舗の京都ライフ」へおまかせ下さい。 その他非掲載物件も多数ございます。ぜひ自社HPもご覧ください。 「京都ライフ」で検索でOK。京都ライフでは仲介手数料は家賃の半月分です。
- 電話でお問合せ(通話無料)
お問合せ先 :株式会社京都ライフ 河原町四条店
不動産会社情報
株式会社京都ライフ 河原町四条店
京都府京都市中京区奈良屋町291-2 wise core BLD.1階
阪急京都本線 京都河原町駅 徒歩4分
- 営業時間
- 09:30~19:00
- 定休日
- 年中無休(盆正月を除く)
京都市の中心街である河原町エリアは、様々なお店で賑わう京都屈指の繁華街です。このエリアでのお部屋探しは京都ライフ河原町四条店へお任せください!
- 店舗の特徴
- 賃貸管理業務
- 24時間管理物件取扱い
- 引越し業者紹介可
- 年中無休
- 社宅・寮物件取扱い
- オンライン相談可
- 保証人不要な物件あり
- 法人契約取扱い
- 女性スタッフ対応可
- 19時以降も営業
電話でお問合せお客様の電話番号は不動産会社には通知されません
- 不動産会社に
つながります
お客様の電話番号は不動産会社に通知されません
- ※光IP電話、及びIP電話からはご利用になれません
- ※お電話によるお問合せは、店舗営業時間内にお願いします。つながらない場合は、お問合せフォームよりお問合せください
- ※不動産会社がお電話に出られなかった場合、お問合せいただいた後に不動産会社より折り返しのお電話がある場合がございます(お客様が非通知設定した場合は対象外です)
- ※株式会社LIFULLは電話会社が提供するサービスを介してお客様の発信者番号を受領後、折り返し専用の電話番号を発番してお問合せの不動産会社に通知します(お客様の発信者番号がお問合せの不動産会社に通知されることはございません)
- ※携帯電話からお問合せいただいた方に対し、株式会社LIFULLは電話会社が提供するメッセ―ジサービスを介してお客様の発信者番号を受領後、ショートメッセージ(SMS)またはLINE通知メッセージによるお問合せ内容に関する通知をお届けする場合があります
- ※お客様が通話中に不動産会社にお伝えになったお客様の個人情報及び、電話会社が発番する折り返し専用の電話番号は、お問合せ先不動産会社が資料送付・電子メール送信・電話連絡などの目的で保管する可能性があります。お問合せ先不動産会社が保管する個人情報の取扱いについては、各不動産会社に直接お問合せください
- ※株式会社LIFULLでは本サービスを円滑に運用するために、お客様の発信者番号をサービスご利用の控えとして一定期間保管いたします
- ※上記および株式会社LIFULLの個人情報の取扱い方針に同意のうえ、お電話ください
【LIFULL HOME'S物件番号】0140999-0211999【自社管理番号】11693-403-26
オンライン対応
オンライン相談に対応している物件です

「オンライン内見」「オンライン相談」「IT重説」とは?
物件の内見や不動産会社スタッフとの相談、契約前の重要事項説明をオンライン(ビデオ通話)で行うことができるサービスです。
オンライン内見
ビデオ通話で現地(物件)にいる不動産会社スタッフと映像・音声を使ってリアルタイムで会話しながら内見ができます。
オンライン相談
「物件について聞きたいことがある」など不動産会社スタッフへの相談もビデオ通話で行うことができます。
IT重説
契約前の重要事項説明(重説)をビデオ通話で行うことができます。
利用時の注意事項
- ビデオ通話については各不動産会社指定のものとなります。
- ビデオ通話利用時には通信が発生します。従量課金制通信サービスや通信量に上限があるネット回線・プランを利用する場合は、通信量にご注意ください。
- 通信速度やアプリの設定によってはビデオ通話の画質が低下することがあります。安定した画質で利用するためにも、Wi-Fi環境下での利用を推奨します。
- ご利用のビデオ通話アプリによっては、対象のOSやブラウザに制限がある場合があります。詳しくはお問合せ先不動産会社にご確認ください。
初期費用・月額費用をあわせて確認!この物件に住んだときの費用めやす
めやすを見るこの物件に住んだときの費用めやす
- 初期費用
- 月額費用
- 追加費用※ご確認ください
追加で費用が
かかる場合があります
必ずご確認ください
初期費用めやす約0円
追加で費用がかかります(※)敷金
220,000
- 礼金
220,000
賃料+共益費・管理費の1ヶ月分として換算
賃料の1ヶ月分+税として換算。不動産会社によって金額が異なるため正確な金額は不動産会社にお問合せください
※追加費用もチェック!
これらの項目以外にも費用がかかる場合があります。正確な金額は不動産会社にお問合せください。
- 初期費用
- 鍵交換費:不動産会社に要確認
- 室内清掃費:不動産会社に要確認
- 火災保険費:不動産会社に要確認
- 月額費用
- 駐車場費:38,500円(税込)※契約任意
- 保証会社
- 不動産会社に要確認
不動産会社より
中心街分譲物件 ・時代・タイムスリップ・ 地下鉄四条駅まで徒歩7分の分譲賃貸マンションです。
京阪、阪急、地下鉄のトリプルアクセス。嬉しい3点セパレートなど充実の設備。オートロックでセキュリティも安心です。コンビニ、スーパー、ドラッグストアなど近くにあって便利ですよ。 物件情報はもちろん京都のエリア情報まで幅広く対応させていただきます!
- 保存する
- 共有する
- ※各種情報と現状に差異がある場合は、現状優先となります
- ※不動産会社が入力した情報を基に物件の位置を表示しています。詳しくは不動産会社までお問合せください
- ※不動産会社の方からの上記電話番号によるお問合せはお断りしております。こちら不動産会社詳細からお問合せください
- ※LIFULL HOME'Sは物件鮮度No.1を目指していきます。閲覧中の物件が「成約済である」「実際の物件情報と異なる点がある」などの場合、「掲載110番」からお問合せください
- ※QRコードは株式会社デンソーウェーブの登録商標です
この物件を取扱う他の会社
LIFULL HOME'Sでは、主要項目が同一の物件をまとめて表示しています。所在地や営業時間、掲載画像等から不動産会社を選んでお問合せください。
ウインズリンク株式会社 アパマンショップ河原町三条店
優良店認定
京都府京都市中京区河原町通三条上る恵比須町435番地5
京都地下鉄東西線 京都市役所前駅 徒歩3分
- 営業時間
- 09:30~19:00
- 定休日
- 年中無休(盆・正月を除く)
株式会社京都ライフ 三条烏丸店
優良店認定
京都府京都市中京区三条通烏丸東入梅忠町24 三条COHJUBLDG 1階
京都市営烏丸線 烏丸御池駅 徒歩3分
- 営業時間
- 09:30~19:00
- 定休日
- 年中無休(夏期・年末年始を除く)
株式会社京都ライフ 二条駅前店
京都府京都市中京区西ノ京職司町72 ウエストフィールド1階
京都地下鉄東西線 二条駅 徒歩3分
- 営業時間
- 09:30~19:00
- 定休日
- 年中無休(盆正月を除く)
最近見た賃貸物件
LIFULL HOME'S 地図・周辺情報
買い物
- ローソン ドラッグひかり蛸薬師高倉店
- ダイソー京都四条通店
- サンドラッグ錦店
- ローソンストア100 六角柳馬場店
- Can★Do寺町店
グルメ
- 小川珈琲堺町錦店
- ケンタッキーフライドチキン 烏丸錦小路店
- 大戸屋 ごはん処京都錦小路店
- はなまるうどん 京都錦店
- スターバックスコーヒー京都四条通ヤサカビル店
育児・教育
- YMCA三条保育園
- 京都市立高倉小学校
- 京都市立洛風中学校
- 永興開智こども園
- 京都市立洛央小学校
医療
- 医療法人知音会京都新町病院
- 医療法人財団足立病院
- 山元病院
- 医療法人毛利病院
- 京都第二赤十字病院
公共施設・郵便局
- 京都東洞院錦郵便局
- 京都市下京図書館
- 京都府下京警察署
- 京都四条柳馬場郵便局
- 京都市こどもみらい館子育て図書館
公園
- 梅屋広場公園
- 円山公園
- 円山公園
- 岡崎公園
- 京都御苑
利用可能な駅
- 徒歩10分以内
京都市営烏丸線
- 四条駅徒歩7分
- 烏丸御池駅徒歩10分
阪急京都本線
- 烏丸駅徒歩9分
- 京都河原町駅徒歩9分
- すべての駅
京都地下鉄東西線
- 烏丸御池駅徒歩12分
- 京都市役所前駅徒歩14分
- 三条京阪駅徒歩17分
- 東山駅徒歩23分
- 二条城前駅徒歩25分
- 蹴上駅徒歩37分
京阪本線
- 祇園四条駅徒歩13分
- 三条駅徒歩17分
- 清水五条駅徒歩20分
- 神宮丸太町駅徒歩27分
- 七条駅徒歩27分
- 出町柳駅3.4km
京都市営烏丸線
- 五条駅徒歩20分
- 丸太町駅徒歩20分
- 今出川駅3.2km
- 九条駅3.5km
阪急京都本線
- 大宮駅徒歩21分
- 西院駅3.2km
京福電気鉄道嵐山本線
- 四条大宮駅徒歩22分
- 西院駅3.1km
- 西大路三条駅3.2km
JR山陰本線
- 二条駅徒歩31分
- 丹波口駅3.2km
- 梅小路京都西駅4km
JR東海道・山陽本線
- 京都駅徒歩36分
JR奈良線
- 東福寺駅3.4km
- 周辺情報は2023年07月21日時点のものになります。
- 周辺情報は、参考情報としてのみご利用ください(周辺情報は、株式会社LIFULLが地図情報の提供事業者から提供を受けた情報とLIFULL HOME'Sの物件情報に基づき、独自の方法で抽出し提供しているものです。周辺情報は、移転や閉鎖等により情報が最新ではない、または正しくない場合がありますが、地図情報の提供事業者から提供された情報をそのまま周辺情報として表示しているため、正確かつ最新の情報へ修正することができないことがあります。)
- 周辺情報は、株式会社LIFULLが掲載するものであり、不動産物件情報を掲載している不動産会社が掲載するものではありません
- 交通情報の一部については、株式会社LIFULLが掲載するものであり、不動産物件情報を掲載している不動産会社が掲載するものではない場合があります。交通情報に関する質問などは株式会社LIFULLにお問合せください
























































