LIFULL HOME'Sは物件鮮度No.1!※評価について
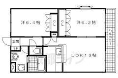
京都地下鉄東西線 石田駅 徒歩13分(2階/2LDK/57.3m²)
京都地下鉄東西線 石田駅 徒歩13分(2階/2LDK/57.3m²)
7.4万円/管理費等5,000円
1日前 更新
画像一覧
1/30間取り
間取
2/30外観
3/30外観
4/30リビング/ダイニング
広々としたLDKです。
5/30リビング/ダイニング
6.4帖の洋室です。
6/30リビング/ダイニング
日当たりがよく明るい室内です。
7/30リビング/ダイニング
6.2帖の洋室です。
8/30リビング/ダイニング
大きな収納があるお部屋です。
9/30リビング/ダイニング
LDKと分けてお使いできます。
10/30キッチン
おしゃれなシステムキッチンです。
11/30キッチン
収納スペース豊富で使い勝手のよいキッチンです。
12/30キッチン
人気のカウンターキッチンとなっております。
13/30浴室
広々としたバスルームです。
14/30トイレ
収納スペースのあるトイレです。
15/30洗面
独立の脱衣場
16/30洗面
シャンプードレッサ搭載の洗面台です。
17/30収納
シューズボックス完備
18/30収納
大容量の収納完備
19/30収納
キッチン横にある収納スペースです。
20/30収納
大容量の収納です。
21/30設備
洗面所に洗濯機置き場完備
22/30設備
浴室乾燥機完備
23/30設備
防犯対策にもなるモニター付きインターホンです。
24/30設備
自動給湯器完備
25/30設備
冷暖房完備
26/30玄関
広い玄関です。
27/30バルコニー
日当たり・風通し共に良好です。
28/30その他
LDKへと続く廊下です。
29/30その他
高台に位置しているので眺望良好です。
30/30周辺
小栗栖宮山小学校まで158m
間取り
外観
外観
リビング/ダイニング
リビング/ダイニング
リビング/ダイニング
リビング/ダイニング
リビング/ダイニング
リビング/ダイニング
キッチン
キッチン
キッチン
浴室
トイレ
洗面
洗面
収納
収納
収納
収納
設備
設備
設備
設備
設備
玄関
バルコニー
その他
その他
周辺
仲介手数料割引
ご成約時仲介手数料家賃の50%(税別)に割引させていただきます。
- 利用条件
- 株式会社京都ライフ 長岡店で利用可
- 他特典との併用はできませんので、ご注意ください。
- ・法人契約、事業用物件は対象外 ・積水ハウス、大東建託の管理物件は対象外
利用方法
来店時に本特典の画面をスマートフォンやタブレットでスタッフに提示、または画面印刷した用紙を提示ください。
有効期限 なし
小栗栖宮山小学校区物件 小栗栖宮山小学校区から2LDK物件のご紹介 学校近いですよ
基本情報
不動産用語- 賃料
- 7.4万円
- 管理費等
- 5,000円
初期費用などお気軽にお問合せください
- 敷金/礼金
- 7.4万円/無
- 保証金/敷引・償却金
- -/-
- 交通
京都地下鉄東西線 石田駅 徒歩13分
JR奈良線 六地蔵駅 徒歩25分
- 所在地
京都府京都市伏見区小栗栖石川町
地図を見る- 築年月
- 2009年4月(築18年)
- 主要採光面
- 南
- 専有面積
- 57.3㎡
- バルコニー面積
- -
- 所在階/階数
- 2階/3階建
- 現況
- 空家
- 入居可能時期
- 即時

人気物件はすぐに埋まってしまいます。
気になったらお早めにお問合せください。
- 情報公開日
2026/02/20
90日前 公開
- 情報更新日
2026/05/20
1日前 更新
- 次回更新
予定日 - 2026/05/24
物件のこだわり/設備・条件
新築(非該当)
2階以上の物件(該当)
南向き(該当)
駐車場あり(該当)
オートロック(非該当)
エアコン(該当)
バス・トイレ別(該当)
追焚機能(該当)
フローリング(該当)
ペット相談(非該当)
位置
角部屋入居条件
二人入居可、即入居可- 上記以外や相談可の
詳細はお問合せください キッチン/バス・トイレ
設備・サービス
TVモニタ付インターホン、エアコン、BS対応、光ファイバー、公営水道、プロパンガス、下水、フローリング、出窓、バルコニー、室内洗濯機置場、南面バルコニー、駐車場あり、駐輪場ありその他
住まい探し特典あり備考
京都市伏見区 小栗栖エリアの2LDKマンションです。更新料ナシ。浴室乾燥機、追い焚き機能付浴室、温水洗浄便座など充実の設備。TVホンでセキュリティも安心です。コンビニ、スーパー、ドラッグストア、ホームセンターなど近くにあって便利ですよ。光ファイバー対応しています。 物件情報はもちろん京都のエリア情報まで幅広く対応させていただきます!
物件周辺の生活情報
買い物
- コンビニ(357m)
- スーパー(348m)
- ドラッグストア(734m)
その他施設
- 総合病院(684m)
- 銀行(464m)
- ホームセンターコーナン六地蔵店(538m)
交通
- 京都地下鉄東西線 石田駅 徒歩13分
- 普通(停車)
- JR奈良線 六地蔵駅 徒歩25分
- 普通(停車)
- 区間快速(停車)
- 快速(停車)
- みやこ路快速(停車)
※急行等の停車駅情報について
急行等の停車駅に関するデータは、随時更新をしておりますが、最新の内容であることを保証するものではありません。
最新かつ正確な情報につきましては、各鉄道会社のウェブサイトにてご確認ください
物件概要
- 建物構造
- 鉄骨造
- 駐車場
- 空有 11,000円(税込)
- 総戸数
- 12戸
- 契約形態
- -
- 契約期間
- 2年間
- 更新料
- -
- その他費用
- 室内清掃費用:59,290円
- 保証会社
- -
- 住宅保険
- 要
- 管理
- -
- LIFULL HOME'S
物件番号 - 0100861-0216423
- 自社管理番号
- 32549-201-08
- 取引態様
- 仲介
- 会社名
- 株式会社京都ライフ 長岡店
営業スタッフコメント

株式会社京都ライフ 長岡店マネージャー
池田泰雅
貴方の希望の物件必ず見つけます。
業界経験10年
資格宅地建物取引士、少額短期保険募集人
- 会社実績や特徴・サービス情報
- 当店は長岡京市を中心に向日市、大山崎町、久世、羽束師と周辺地域全ての物件情報を網羅していると自負しております。豊富な物件情報はもちろん、エリア情報に至るまで「お客様第一主義」の心でサポートさせて頂きますので、ご来店いただけば「満足のいく1日」を提供させて頂けると確信しております。来客用ガレージ・キッズスペースをご用意しておりますので、お気軽にご来店下さい。 創業40年、地域密着に拘らせて頂いた京都最大級の物件情報をもとに、誠心誠意、ご満足頂けるお部屋をご紹介させて頂きます。 お部屋を探しは京都ライフ 長岡店へ、お気軽にお立ち寄りください。
当店は長岡京市を中心に向日市、大山崎町、久世、羽束師と周辺地域全ての物件情報を網羅していると自負しております。豊富な物件情報はもちろん、エリア情報に至るまで「お客様第一主義」の心でサポートさせて頂きますので、ご来店いただけば「満足のいく1日」を提供させて頂けると確信しております。来客用ガレージ・キッズスペースをご用意しておりますので、お気軽にご来店下さい。 創業40年、地域密着に拘らせて頂いた京都最大級の物件情報をもとに、誠心誠意、ご満足頂けるお部屋をご紹介させて頂きます。 お部屋を探しは京都ライフ 長岡店へ、お気軽にお立ち寄りください。
- 電話でお問合せ(通話無料)
お問合せ先 :株式会社京都ライフ 長岡店
不動産会社情報
京都のお部屋探しでしたら創業40年、京都を知り尽くしている京都ライフにお任せ下さい。
- 店舗の特徴
- 賃貸管理業務
- 24時間管理物件取扱い
- 引越し業者紹介可
- 年中無休
- 送迎あり
- オンライン相談可
- 保証人不要な物件あり
- 法人契約取扱い
- 女性スタッフ対応可
- 駅から歩いて3分以内
電話でお問合せお客様の電話番号は不動産会社には通知されません
- 不動産会社に
つながります
お客様の電話番号は不動産会社に通知されません
- ※光IP電話、及びIP電話からはご利用になれません
- ※お電話によるお問合せは、店舗営業時間内にお願いします。つながらない場合は、お問合せフォームよりお問合せください
- ※不動産会社がお電話に出られなかった場合、お問合せいただいた後に不動産会社より折り返しのお電話がある場合がございます(お客様が非通知設定した場合は対象外です)
- ※株式会社LIFULLは電話会社が提供するサービスを介してお客様の発信者番号を受領後、折り返し専用の電話番号を発番してお問合せの不動産会社に通知します(お客様の発信者番号がお問合せの不動産会社に通知されることはございません)
- ※携帯電話からお問合せいただいた方に対し、株式会社LIFULLは電話会社が提供するメッセ―ジサービスを介してお客様の発信者番号を受領後、ショートメッセージ(SMS)またはLINE通知メッセージによるお問合せ内容に関する通知をお届けする場合があります
- ※お客様が通話中に不動産会社にお伝えになったお客様の個人情報及び、電話会社が発番する折り返し専用の電話番号は、お問合せ先不動産会社が資料送付・電子メール送信・電話連絡などの目的で保管する可能性があります。お問合せ先不動産会社が保管する個人情報の取扱いについては、各不動産会社に直接お問合せください
- ※株式会社LIFULLでは本サービスを円滑に運用するために、お客様の発信者番号をサービスご利用の控えとして一定期間保管いたします
- ※上記および株式会社LIFULLの個人情報の取扱い方針に同意のうえ、お電話ください
【LIFULL HOME'S物件番号】0100861-0216423【自社管理番号】32549-201-08
初期費用・月額費用をあわせて確認!この物件に住んだときの費用めやす
めやすを見るこの物件に住んだときの費用めやす
- 初期費用
- 月額費用
- 追加費用※ご確認ください
追加で費用が
かかる場合があります
必ずご確認ください
初期費用めやす約0円
追加で費用がかかります(※)敷金
74,000
- 礼金
0
賃料+共益費・管理費の1ヶ月分として換算
賃料の1ヶ月分+税として換算。不動産会社によって金額が異なるため正確な金額は不動産会社にお問合せください
※追加費用もチェック!
これらの項目以外にも費用がかかる場合があります。正確な金額は不動産会社にお問合せください。
- 初期費用
- 鍵交換費:不動産会社に要確認
- 室内清掃費:59,290円
- 火災保険費:不動産会社に要確認
- 月額費用
- 駐車場費:11,000円(税込)※契約任意
- 保証会社
- 不動産会社に要確認
不動産会社より
小栗栖宮山小学校区物件 小栗栖宮山小学校区から2LDK物件のご紹介 学校近いですよ
京都市伏見区 小栗栖エリアの2LDKマンションです。更新料ナシ。浴室乾燥機、追い焚き機能付浴室、温水洗浄便座など充実の設備。TVホンでセキュリティも安心です。コンビニ、スーパー、ドラッグストア、ホームセンターなど近くにあって便利ですよ。光ファイバー対応しています。 物件情報はもちろん京都のエリア情報まで幅広く対応させていただきます!
- 保存する
- 共有する
- ※各種情報と現状に差異がある場合は、現状優先となります
- ※不動産会社が入力した情報を基に物件の位置を表示しています。詳しくは不動産会社までお問合せください
- ※不動産会社の方からの上記電話番号によるお問合せはお断りしております。こちら不動産会社詳細からお問合せください
- ※LIFULL HOME'Sは物件鮮度No.1を目指していきます。閲覧中の物件が「成約済である」「実際の物件情報と異なる点がある」などの場合、「掲載110番」からお問合せください
- ※QRコードは株式会社デンソーウェーブの登録商標です
したい暮らしのタグから探す
この物件を取扱う他の会社
LIFULL HOME'Sでは、主要項目が同一の物件をまとめて表示しています。所在地や営業時間、掲載画像等から不動産会社を選んでお問合せください。
株式会社エリッツ 伏見桃山店
優良店認定
京都府京都市伏見区観音寺町212-1 伏見ビル1階
近鉄京都線 桃山御陵前駅 徒歩1分
- 営業時間
- 10:00~19:00
- 定休日
- 年中無休(年末年始を除く)
株式会社エリッツ 深草店
優良店認定
京都府京都市伏見区深草西浦町4丁目31番地
京阪本線 龍谷大前深草駅 徒歩5分
- 営業時間
- 10:00~19:00
- 定休日
- 水曜日(祝日を除く)、年末年始 ※部屋探しのお問い合わせは無休
株式会社エリッツ 椥辻店
優良店認定
京都府京都市山科区椥辻中在家町17 プラザ椥ノ辻1F
京都地下鉄東西線 椥辻駅 徒歩3分
- 営業時間
- 10:00~19:00
- 定休日
- 水曜日(祝日を除く)、年末年始 ※部屋探しのお問い合わせは無休
LIFULL HOME'S 地図・周辺情報
買い物
- ファミリーマート 伏見小栗栖南店
- ダイソーホームセンターコーナン六地蔵店
- ウエルシア伏見小栗栖店
- ファミリーマート 伏見桃山東店
- ホームセンターコーナン 六地蔵店
グルメ
- CoCo壱番屋 伏見醍醐店
- 和食さと 醍醐店
- すき家 伏見石田店
- サンマルクカフェMOMOテラス店
- イタリアントマトカフェジュニアMOMOテラス店
育児・教育
- 石田幼稚園
- 京都市立小栗栖宮山小学校
- 京都市立小栗栖中学校
- くりのみ保育園
- 京都市立石田小学校
医療
- 京都市桃陽病院
- 医療法人医仁会武田総合病院
- 医療法人徳洲会六地蔵総合病院
- 医療法人財団桜花会醍醐病院
- 医療法人新生十全会なごみの里病院
公共施設・郵便局
- 伏見小栗栖郵便局
- 京都市醍醐図書館
- 京都市伏見区役所醍醐支所
- 伏見桃山西尾郵便局
- 京都市醍醐中央図書館
公園
- 伏見北堀公園
- 伏見桃山城運動公園
- 二子塚古墳公園
利用可能な駅
- すべての駅
京都地下鉄東西線
- 石田駅徒歩13分
JR奈良線
- 六地蔵駅徒歩25分
- 周辺情報は2023年07月21日時点のものになります。
- 周辺情報は、参考情報としてのみご利用ください(周辺情報は、株式会社LIFULLが地図情報の提供事業者から提供を受けた情報とLIFULL HOME'Sの物件情報に基づき、独自の方法で抽出し提供しているものです。周辺情報は、移転や閉鎖等により情報が最新ではない、または正しくない場合がありますが、地図情報の提供事業者から提供された情報をそのまま周辺情報として表示しているため、正確かつ最新の情報へ修正することができないことがあります。)
- 周辺情報は、株式会社LIFULLが掲載するものであり、不動産物件情報を掲載している不動産会社が掲載するものではありません
- 交通情報の一部については、株式会社LIFULLが掲載するものであり、不動産物件情報を掲載している不動産会社が掲載するものではない場合があります。交通情報に関する質問などは株式会社LIFULLにお問合せください















