LIFULL HOME'Sは物件鮮度No.1!※評価について
U residence修学院(5階/506/3LDK/63.3m²)
U residence修学院(5階/506/3LDK/63.3m²)
11万円/管理費等5,000円
4時間前 更新
画像一覧
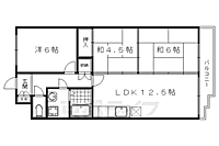
1/30間取り
間取
2/30外観
3/30リビング/ダイニング
白が映える綺麗なお部屋・
4/30リビング/ダイニング
5/30リビング/ダイニング
6/30リビング/ダイニング
7/30寝室
8/30寝室
9/30子供部屋
10/30キッチン
広いキッチン・使い勝手良好・
11/30キッチン
12/30キッチン
13/30浴室
清潔感のあるお風呂・
14/30浴室
15/30トイレ
落ち着きの空間・
16/30洗面
清潔感のある洗面台・
17/30収納
大きな収納・
18/30収納
19/30設備
洗濯機はこちらに・
20/30設備
21/30設備
22/30玄関
シューズボックス付きの玄関・
23/30玄関
24/30バルコニー
広いバルコニー・
25/30その他
前面抜けていて日当たりいいです・
26/30その他
27/30その他
28/30その他
29/30その他
30/30周辺
フレスコ修学院店まで320m 24時間営業でいつでも買い物できますよ
間取り
外観
リビング/ダイニング
リビング/ダイニング
リビング/ダイニング
リビング/ダイニング
寝室
寝室
子供部屋
キッチン
キッチン
キッチン
浴室
浴室
トイレ
洗面
収納
収納
設備
設備
設備
玄関
玄関
バルコニー
その他
その他
その他
その他
その他
周辺
お問合せ先 :株式会社京都ライフ 立命館大学前店
1〜4月は引越しシーズンのピークです。お問合せはお早めに!
修学院商店街すぐ なんでも揃って実はとても利便性の高いエリアなんです
物件のこだわり/設備・条件
新築(非該当)
2階以上の物件(該当)
南向き(非該当)
駐車場あり(該当)
オートロック(該当)
エアコン(非該当)
バス・トイレ別(該当)
追焚機能(非該当)
フローリング(該当)
ペット相談(非該当)
入居条件
二人入居可、保証人不要、即入居可キッチン/バス・トイレ
設備・サービス
オートロック、TVモニタ付インターホン、シューズボックス、BS対応、光ファイバー、公営水道、都市ガス、下水、フローリング、バルコニー、室内洗濯機置場、エレベーター、駐車場あり、駐輪場あり備考
叡山修学院駅まで徒歩5分の3LDKマンションです。嬉しい3点セパレートなど充実の設備。オートロックでセキュリティも安心です。コンビニ、スーパー、ドラッグストアなど近くにあって便利ですよ。光ファイバー対応しています。 物件情報はもちろん京都のエリア情報まで幅広く対応させていただきます!
物件周辺の生活情報
学校
- 修学院小学校(144m)
- 修学院中学校(955m)
買い物
- コンビニ(237m)
- スーパー(320m)
- ドラッグストア(278m)
その他施設
- 総合病院(1,600m)
- 銀行(216m)
- カナート洛北(1,500m)
交通
- 叡山電鉄叡山本線 修学院駅 徒歩5分
- 普通(停車)
- 京都市営烏丸線 松ヶ崎駅 徒歩19分
- 普通(停車)
- 急行(停車)
※急行等の停車駅情報について
急行等の停車駅に関するデータは、随時更新をしておりますが、最新の内容であることを保証するものではありません。
最新かつ正確な情報につきましては、各鉄道会社のウェブサイトにてご確認ください
物件周辺の口コミ
- 京都府京都市左京区一乗寺東浦町に住む人の口コミ30代男性
山が近く、自然が多い。それでいて便利なスーパーにも歩いていける。
口コミを見る
この物件周辺に住む人の口コミ
口コミは、LIFULL HOME'Sが実際にこの物件の周辺に住む18歳~69歳の男女を対象に、WEBアンケート調査を実施しています。内容には回答者の主観的な表現が含まれる場合があるほか、事実と異なる場合もございます。ご了承ください。
- 京都府京都市左京区一乗寺東浦町に住む人の口コミ30代男性
- 山が近く、自然が多い。それでいて便利なスーパーにも歩いていける。
- 京都府京都市左京区松ケ崎河原田町に住む人の口コミ50代男性
- 周りに緑がありゆったりとした生活環境だが、夜遅くまで開いている店もあり、利便性と快適さを兼ね備えている。さらに、地下鉄駅が近く、街中に20分ほどで行けるので、不便な点がない。
- 京都府京都市左京区修学院馬場脇町に住む人の口コミ40代女性
- 住民同士が助け合って暮らしているので、安心して子育てができること、地域的に柄が悪くない。治安が良いことなど。
- 京都府京都市左京区修学院坪江町に住む人の口コミ30代女性
- 自然が身近で治安も良く、子どもたちがのびのび遊べるスポットが多く子育てしやすそうな街です。
- 京都府京都市左京区松ケ崎河原田町に住む人の口コミ50代男性
- 大型ショッピングセンターが徒歩圏にあるにもかかわらず閑静な住宅地で、何よりも住人がまとも。大学も地域にあり、教育レベルが高い。地下鉄で20分ほどで、繁華街や京都駅に行ける。
- 京都府京都市左京区上高野前田町に住む人の口コミ40代男性
- 周辺の環境が落ち着いていて治安もとてもいいので精神面でもとてもいい。
- 京都府京都市左京区一乗寺東浦町に住む人の口コミ30代男性
- 治安がよく、適度に田舎で買い物も便利。町内の役員だけめんどう
- 京都府京都市左京区上高野東山に住む人の口コミ40代女性
- 自然に囲まれている。近所付き合いがいらない。電車もバスもあり、市の中心まで出やすい。
- 京都府京都市左京区上高野上荒蒔町に住む人の口コミ50代女性
- 交通の便があまり良くないが、山や川が近くにあり景色が良い。空気が美味しいと思う。
- 京都府京都市左京区修学院泉殿町に住む人の口コミ40代女性
- 駅前が汚ない(駅前を過ぎればきれい)。夜でも駅〜自宅まで暗い場所はないのだが、夜に駅前や自宅周辺で知らない人に声をかけられたり、しばらく後をつけられたりしたことがあるので夜は怖い。
物件概要
- 建物構造
- RC(鉄筋コンクリート)
- 駐車場
- 空有 16,500円(税込)
- 総戸数
- 26戸
- 契約形態
- -
- 契約期間
- 2年間
- 更新料
- 新賃料の1ヶ月分
- その他費用
- 鍵交換費用:24,200円、室内清掃費用:66,000円、入居者サポート:7,700円、駐輪ステッカー代:1,100円
- 保証会社
加入要
保証会社:オリコ
保証会社利用料:初回:月額賃料等の60%、月額:支払い手数料として月額賃料等の1%
- 住宅保険
- 要
- 管理
- 管理員:巡回
- LIFULL HOME'S
物件番号 - 0143972-0119507
- 自社管理番号
- 10735-506-14
- 取引態様
- 仲介
- 会社名
- 株式会社京都ライフ 立命館大学前店
営業スタッフコメント

株式会社京都ライフ 立命館大学前店
田邉みらい
笑顔で頑張ります!
業界経験1年
- 会社実績や特徴・サービス情報
- 京都ライフは40年以上京都に根付いている老舗仲介店舗です。長年培った物件情報は3万戸以上。地元密着企業ならではの情報力を元にお客様に喜んでいただけるお部屋探しを提供いたします。
京都ライフは40年以上京都に根付いている老舗仲介店舗です。長年培った物件情報は3万戸以上。地元密着企業ならではの情報力を元にお客様に喜んでいただけるお部屋探しを提供いたします。
- 電話でお問合せ(通話無料)
お問合せ先 :株式会社京都ライフ 立命館大学前店
不動産会社情報
株式会社京都ライフ 立命館大学前店

京都府京都市北区小松原北町26-5
京福電気鉄道北野線 等持院・立命館大学衣笠キャンパス前駅 徒歩8分
- 営業時間
- 09:30~19:00
- 定休日
- 水曜定休(4/21〜9/20の期間)、盆・正月
優良店認定
電話でお問合せお客様の電話番号は不動産会社には通知されません
- 不動産会社に
つながります
お客様の電話番号は不動産会社に通知されません
- ※光IP電話、及びIP電話からはご利用になれません
- ※お電話によるお問合せは、店舗営業時間内にお願いします。つながらない場合は、お問合せフォームよりお問合せください
- ※不動産会社がお電話に出られなかった場合、お問合せいただいた後に不動産会社より折り返しのお電話がある場合がございます(お客様が非通知設定した場合は対象外です)
- ※株式会社LIFULLは電話会社が提供するサービスを介してお客様の発信者番号を受領後、折り返し専用の電話番号を発番してお問合せの不動産会社に通知します(お客様の発信者番号がお問合せの不動産会社に通知されることはございません)
- ※携帯電話からお問合せいただいた方に対し、株式会社LIFULLは電話会社が提供するメッセ―ジサービスを介してお客様の発信者番号を受領後、ショートメッセージ(SMS)またはLINE通知メッセージによるお問合せ内容に関する通知をお届けする場合があります
- ※お客様が通話中に不動産会社にお伝えになったお客様の個人情報及び、電話会社が発番する折り返し専用の電話番号は、お問合せ先不動産会社が資料送付・電子メール送信・電話連絡などの目的で保管する可能性があります。お問合せ先不動産会社が保管する個人情報の取扱いについては、各不動産会社に直接お問合せください
- ※株式会社LIFULLでは本サービスを円滑に運用するために、お客様の発信者番号をサービスご利用の控えとして一定期間保管いたします
- ※上記および株式会社LIFULLの個人情報の取扱い方針に同意のうえ、お電話ください
【LIFULL HOME'S物件番号】0143972-0119507【自社管理番号】10735-506-14
オンライン対応
オンライン内見・オンライン相談・IT重説に対応している物件です

「オンライン内見」「オンライン相談」「IT重説」とは?
物件の内見や不動産会社スタッフとの相談、契約前の重要事項説明をオンライン(ビデオ通話)で行うことができるサービスです。
オンライン内見
ビデオ通話で現地(物件)にいる不動産会社スタッフと映像・音声を使ってリアルタイムで会話しながら内見ができます。
オンライン相談
「物件について聞きたいことがある」など不動産会社スタッフへの相談もビデオ通話で行うことができます。
IT重説
契約前の重要事項説明(重説)をビデオ通話で行うことができます。
利用時の注意事項
- ビデオ通話については各不動産会社指定のものとなります。
- ビデオ通話利用時には通信が発生します。従量課金制通信サービスや通信量に上限があるネット回線・プランを利用する場合は、通信量にご注意ください。
- 通信速度やアプリの設定によってはビデオ通話の画質が低下することがあります。安定した画質で利用するためにも、Wi-Fi環境下での利用を推奨します。
- ご利用のビデオ通話アプリによっては、対象のOSやブラウザに制限がある場合があります。詳しくはお問合せ先不動産会社にご確認ください。
初期費用・月額費用をあわせて確認!この物件に住んだときの費用めやす
めやすを見るこの物件に住んだときの費用めやす
- 初期費用
- 月額費用
- 追加費用※ご確認ください
追加で費用が
かかる場合があります
必ずご確認ください
初期費用めやす約0円
追加で費用がかかります(※)敷金
110,000
- 礼金
0
賃料+共益費・管理費の1ヶ月分として換算
賃料の1ヶ月分+税として換算。不動産会社によって金額が異なるため正確な金額は不動産会社にお問合せください
※追加費用もチェック!
これらの項目以外にも費用がかかる場合があります。正確な金額は不動産会社にお問合せください。
- 初期費用
- 鍵交換費:24,200円
- 室内清掃費:66,000円
- 火災保険費:不動産会社に要確認
- 月額費用
- 駐車場費:16,500円(税込)※契約任意
- その他
- 入居者サポート:7700円
- 駐輪ステッカー代:1100円
- 保証会社
- 初回:月額賃料等の60%、月額:支払い手数料として月額賃料等の1%
不動産会社より
修学院商店街すぐ なんでも揃って実はとても利便性の高いエリアなんです
叡山修学院駅まで徒歩5分の3LDKマンションです。嬉しい3点セパレートなど充実の設備。オートロックでセキュリティも安心です。コンビニ、スーパー、ドラッグストアなど近くにあって便利ですよ。光ファイバー対応しています。 物件情報はもちろん京都のエリア情報まで幅広く対応させていただきます!
- 保存する
- 共有する
- ※各種情報と現状に差異がある場合は、現状優先となります
- ※不動産会社が入力した情報を基に物件の位置を表示しています。詳しくは不動産会社までお問合せください
- ※不動産会社の方からの上記電話番号によるお問合せはお断りしております。こちら不動産会社詳細からお問合せください
- ※LIFULL HOME'Sは物件鮮度No.1を目指していきます。閲覧中の物件が「成約済である」「実際の物件情報と異なる点がある」などの場合、「掲載110番」からお問合せください
- ※QRコードは株式会社デンソーウェーブの登録商標です
この物件を取扱う他の会社
LIFULL HOME'Sでは、主要項目が同一の物件をまとめて表示しています。所在地や営業時間、掲載画像等から不動産会社を選んでお問合せください。
株式会社京都ライフ 山科店
京都府京都市山科区竹鼻竹ノ街道町11
JR東海道・山陽本線 山科駅 徒歩3分
- 営業時間
- 09:30~19:00
- 定休日
- 夏期休暇 8月13日〜8月16日 年末年始休暇 12月27日〜1月4日
株式会社京都ライフ 四条烏丸店
優良店認定
京都府京都市下京区四条通新町東入月鉾町47-15
京都市営烏丸線 四条駅 徒歩3分
- 営業時間
- 09:30~19:00
- 定休日
- 年中無休(盆正月を除く)
LIFULL HOME'S 地図・周辺情報
買い物
- ファミリーマート 川端修学院店
- 八百民
- ダックス左京修学院店
- セブンイレブン 京都修学院駅前店
- イオンスタイル修学院小町
グルメ
- サンマルク京都北山通り店
- なか卯 一乗寺店
- 焼肉屋さかい 京都一乗寺店
- マクドナルド 北白川店
- にぎり長次郎 宝ヶ池店
育児・教育
- 修学院保育園
- 京都市立修学院小学校
- 京都市立修学院中学校
- 幼稚園型認定こども園聖光幼稚園
- 京都市立修学院第二小学校
医療
- 医療法人一仁会脳神経リハビリ北大路病院
- 医療法人社団順和会京都下鴨病院
- 社会福祉法人京都博愛会京都博愛会病院
- (財)日本バプテスト連盟医療団総合病院日本バプテスト病院
- 医療法人財団康生会北山武田病院
公共施設・郵便局
- 京都山端郵便局
- 京都市左京図書館
- 京都市左京区役所
- 京都上高野郵便局
- 京都市岩倉図書館
公園
- 宝が池公園子どもの楽園
- 宝が池公園
- 岩倉南公園
- 長谷土田公園
利用可能な駅
- 徒歩10分以内
叡山電鉄叡山本線
- 修学院駅徒歩5分
- 宝ケ池駅徒歩9分
- すべての駅
叡山電鉄叡山本線
- 一乗寺駅徒歩16分
- 三宅八幡駅徒歩17分
- 茶山・京都芸術大学駅徒歩27分
- 元田中駅徒歩31分
- 八瀬比叡山口駅徒歩35分
京都市営烏丸線
- 松ヶ崎駅徒歩19分
- 国際会館駅徒歩24分
- 北山駅徒歩32分
叡山電鉄鞍馬線
- 八幡前駅徒歩21分
- 岩倉駅徒歩34分
- 木野駅3.5km
- 周辺情報は2023年07月21日時点のものになります。
- 周辺情報は、参考情報としてのみご利用ください(周辺情報は、株式会社LIFULLが地図情報の提供事業者から提供を受けた情報とLIFULL HOME'Sの物件情報に基づき、独自の方法で抽出し提供しているものです。周辺情報は、移転や閉鎖等により情報が最新ではない、または正しくない場合がありますが、地図情報の提供事業者から提供された情報をそのまま周辺情報として表示しているため、正確かつ最新の情報へ修正することができないことがあります。)
- 周辺情報は、株式会社LIFULLが掲載するものであり、不動産物件情報を掲載している不動産会社が掲載するものではありません
- 交通情報の一部については、株式会社LIFULLが掲載するものであり、不動産物件情報を掲載している不動産会社が掲載するものではない場合があります。交通情報に関する質問などは株式会社LIFULLにお問合せください











