LIFULL HOME'Sは物件鮮度No.1!※評価について
エステムプラザ京都河原町通(1階/103/1SDK/42.43m²)
エステムプラザ京都河原町通(1階/103/1SDK/42.43m²)
12.2万円/管理費等13,000円
6時間前 更新
画像一覧
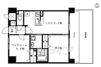
1/30間取り
間取
2/30外観
3/30リビング/ダイニング
4/30リビング/ダイニング
5/30リビング/ダイニング
6/30リビング/ダイニング
7/30室内
8/30室内
9/30室内
10/30キッチン
11/30キッチン
12/30キッチン
13/30キッチン
14/30浴室
15/30浴室
16/30浴室
17/30トイレ
18/30洗面
19/30洗面
20/30収納
21/30収納
22/30設備
23/30設備
24/30玄関
25/30バルコニー
26/30バルコニー
27/30バルコニー
28/30その他
29/30その他
30/30周辺
セブンイレブン京都七条大橋店まで280m
間取り
外観
リビング/ダイニング
リビング/ダイニング
リビング/ダイニング
リビング/ダイニング
室内
室内
室内
キッチン
キッチン
キッチン
キッチン
浴室
浴室
浴室
トイレ
洗面
洗面
収納
収納
設備
設備
玄関
バルコニー
バルコニー
バルコニー
その他
その他
周辺
仲介手数料割引
京都タワーまでお迎えサービスございます。
- 利用条件
- ウインズリンク株式会社 アパマンショップ京都駅前店 で利用可
- 他特典との併用可
- 事前にご予約下さいませ。
利用方法
来店時に本特典の画面をスマートフォンやタブレットでスタッフに提示、または画面印刷した用紙を提示ください。
有効期限 なし
カウンターキッチン 自動湯張り追い炊き機能付バスで、しかも浴室TV(7インチ)付
物件のこだわり/設備・条件
新築(非該当)
2階以上の物件(非該当)
南向き(非該当)
駐車場(非該当)
オートロック(該当)
エアコン(非該当)
バス・トイレ別(該当)
追焚機能(該当)
フローリング(該当)
ペット相談可(該当)
入居条件
二人入居可、ペット相談、即入居可- 上記以外や相談可の
詳細はお問合せください - 上記以外や相談可の詳細は
お電話ください(通話無料)電話でお問合せ キッチン/バス・トイレ
設備・サービス
オートロック、防犯カメラ、TVモニタ付インターホン、シューズボックス、CATV、CS対応、BS対応、光ファイバー、インターネット使用料無料、公営水道、都市ガス、下水、フローリング、室内洗濯機置場、照明器具付き、エレベーター、宅配ボックス、駐輪場ありその他
分譲賃貸、住まい探し特典あり備考
「京都駅前店のこだわり…室内写真は広角レンズ等を使わずに出来る限り現状のお部屋をお伝え出来るよう撮影してます。」京都駅徒歩圏内のファミリーマンションならココ JR・地下鉄・京阪本線の3WAYアクセス可能。ペットも小型犬2匹までOKです。自動湯張り追い炊き機能付バスで、しかも浴室TV(7インチ)付です。大通りから少し入っているので静かな環境です。近くを流れる高瀬川では春は桜、夏はホタルがキレイ...
物件周辺の生活情報
買い物
- コンビニ(280m)
- スーパー(600m)
- ドラッグストア(700m)
その他施設
- 総合病院(1,100m)
- ヨドバシカメラ(700m)
交通
- JR東海道・山陽本線 京都駅 徒歩8分
- 普通(停車)
- 新快速(停車)
- 快速(停車)
- 緩行電車(停車)
- 特別快速(通過)
- 区間快速(通過)
- 京阪本線 七条駅 徒歩5分
- 普通(停車)
- 区間急行(通過)
- 急行(停車)
- 特急(停車)
- 通勤準急・準急(停車)
- 快速特急 洛楽(停車)
- 通勤快急・快速急行(停車)
※急行等の停車駅情報について
急行等の停車駅に関するデータは、随時更新をしておりますが、最新の内容であることを保証するものではありません。
最新かつ正確な情報につきましては、各鉄道会社のウェブサイトにてご確認ください
物件周辺の口コミ
- 京都府京都市下京区土手町通正面下る東入に住む人の口コミ20代女性
コンビニが徒歩圏内に何ヵ所かあり、すぐに行ける点は良い。ただ、薬局や衣料品店が少し遠い。また、バス内での利用客同士のマナーが気になるため、とても満足しているとはいえない。
口コミを見る
この物件周辺に住む人の口コミ
口コミは、LIFULL HOME'Sが実際にこの物件の周辺に住む18歳~69歳の男女を対象に、WEBアンケート調査を実施しています。内容には回答者の主観的な表現が含まれる場合があるほか、事実と異なる場合もございます。ご了承ください。
- 京都府京都市下京区土手町通正面下る東入に住む人の口コミ20代女性
- コンビニが徒歩圏内に何ヵ所かあり、すぐに行ける点は良い。ただ、薬局や衣料品店が少し遠い。また、バス内での利用客同士のマナーが気になるため、とても満足しているとはいえない。
- 京都府京都市下京区新町通七条下るに住む人の口コミ20代女性
- 交通・買い物等利便性が高いから。観光客含め人が多すぎることが難点。
- 京都府京都市東山区今熊野日吉町に住む人の口コミ30代女性
- 住んでいる場所にはとても満足しているが、市としては非常に住みにくく不便な点が多い。他の市に比べて子育てには向いていないのでそこが改善されればファミリー世帯ももっと増えて活気が出るのにと残念に思うから。
- 京都府京都市下京区不明門通七条下るに住む人の口コミ30代女性
- 交通の便がよく、商業施設が多く買い物が便利。観光客が多く、静かではないが自分は子育てをしているわけではないので問題はない。
- 京都府京都市下京区烏丸通七条下る2筋目西入に住む人の口コミ30代女性
- 歩いていける範囲内に、生活に必要なほぼ全ての施設が揃っており 交通の便も良い。駅の付近だからなのか昨今の世情かは不明だが、(観光客が道を聞いてくるのは別で)ナンパが多く辟易する。
- 京都府京都市下京区万寿寺通室町西入に住む人の口コミ20代男性
- 交通の便。都会の近く。立地。この3点において自分の求めている基準を超えているから。
- 京都府京都市下京区烏丸通七条下る2筋目西入に住む人の口コミ20代女性
- 自然がたくさんないのは残念だが、都会にしては多いと思うし、お店がたくさんあり何でも揃う。
- 京都府京都市下京区東洞院通正面上るに住む人の口コミ20代女性
- 京都の中でも一番都会なので、スーパーやコンビニだけではなく京都駅も徒歩県内でとても便利です。またマンションも多く、子供連れも安心して住むことができると思います。自転車は使った方がいいと思います。
- 京都府京都市下京区六条通堀川東入に住む人の口コミ20代女性
- 特に不自由もなく、せかせかとしていない雰囲気のため、過ごしやすい。
- 京都府京都市東山区本町9丁目に住む人の口コミ20代女性
- 交通機関が豊富に選べたり、スーパーやコンビニ等必要最低限の店がそろうほか、個人商店が充実している。ただ登下校時間帯はかなりの学生が狭い道を行き来しているので、見回り等が大変だろうと思う。
物件概要
- 建物構造
- RC(鉄筋コンクリート)
- 駐車場
- 近隣 25,300円(税込) 物件からの距離300m
- 総戸数
- 49戸
- 契約形態
- -
- 契約期間
- 2年間
- 更新料
- 新賃料の1ヶ月分
- その他費用
- 室内清掃費用:55,000円、抗菌除菌処理代:19,250円
- 保証会社
加入要
保証会社:Casa
保証会社利用料:初回:月額賃料等の50%、更新時:1万円/1年
- 住宅保険
- 要
- 管理
- -
- LIFULL HOME'S
物件番号 - 0113625-0317821
- 自社管理番号
- 12764-103
- 取引態様
- 仲介
- 会社名
- ウインズリンク株式会社 アパマンショップ京都駅前店
営業スタッフコメント

ウインズリンク株式会社 アパマンショップ京都駅前店 係長
石田凛太郎
どのような条件でもお任せください!全力でお探しいたします!
業界経験7年
- 会社実績や特徴・サービス情報
- 「京都駅前店のこだわり…室内写真は広角レンズ等を使わずに出来る限り現状のお部屋をお伝え出来るよう撮影してます。」お問い合わせはアパマンショップ京都駅前店までお待ちしております。
「京都駅前店のこだわり…室内写真は広角レンズ等を使わずに出来る限り現状のお部屋をお伝え出来るよう撮影してます。」お問い合わせはアパマンショップ京都駅前店までお待ちしております。
- 電話でお問合せ(通話無料)
お問合せ先 :ウインズリンク株式会社 アパマンショップ京都駅前店
不動産会社情報
ウインズリンク株式会社 アパマンショップ京都駅前店 アパマンショップ京都駅前店

京都府京都市下京区東洞院通七条下る東塩小路町541−1
JR東海道・山陽本線 京都駅 徒歩3分
- 営業時間
- 09:30~19:00
- 定休日
- なし(盆休み8/13〜8/16・年末年始12/27〜1/4)
優良店認定
お部屋探しは全国ネットで安心の「アパマンショップ」へ!オンラインでのご相談・ご内見もお任せ下さい!京都駅から歩いてスグ、他府県からお越しのお客様、地理に自信の無い方は京都タワーまでお迎えに上がります!
- 店舗の特徴
- 賃貸管理業務
- 引越し業者紹介可
- 年中無休
- 駐車場あり
- 送迎あり
- オンライン相談可
- 保証人不要な物件あり
- 法人契約取扱い
- 19時以降も営業
- 駅から歩いて3分以内
電話でお問合せお客様の電話番号は不動産会社には通知されません
- 不動産会社に
つながります
お客様の電話番号は不動産会社に通知されません
- ※光IP電話、及びIP電話からはご利用になれません
- ※お電話によるお問合せは、店舗営業時間内にお願いします。つながらない場合は、お問合せフォームよりお問合せください
- ※不動産会社がお電話に出られなかった場合、お問合せいただいた後に不動産会社より折り返しのお電話がある場合がございます(お客様が非通知設定した場合は対象外です)
- ※株式会社LIFULLは電話会社が提供するサービスを介してお客様の発信者番号を受領後、折り返し専用の電話番号を発番してお問合せの不動産会社に通知します(お客様の発信者番号がお問合せの不動産会社に通知されることはございません)
- ※携帯電話からお問合せいただいた方に対し、株式会社LIFULLは電話会社が提供するメッセ―ジサービスを介してお客様の発信者番号を受領後、ショートメッセージ(SMS)またはLINE通知メッセージによるお問合せ内容に関する通知をお届けする場合があります
- ※お客様が通話中に不動産会社にお伝えになったお客様の個人情報及び、電話会社が発番する折り返し専用の電話番号は、お問合せ先不動産会社が資料送付・電子メール送信・電話連絡などの目的で保管する可能性があります。お問合せ先不動産会社が保管する個人情報の取扱いについては、各不動産会社に直接お問合せください
- ※株式会社LIFULLでは本サービスを円滑に運用するために、お客様の発信者番号をサービスご利用の控えとして一定期間保管いたします
- ※上記および株式会社LIFULLの個人情報の取扱い方針に同意のうえ、お電話ください
【LIFULL HOME'S物件番号】0113625-0317821【自社管理番号】12764-103
初期費用・月額費用をあわせて確認!この物件に住んだときの費用めやす
めやすを見るこの物件に住んだときの費用めやす
- 初期費用
- 月額費用
- 追加費用※ご確認ください
追加で費用が
かかる場合があります
必ずご確認ください
初期費用めやす約0円
追加で費用がかかります(※)敷金
0
- 礼金
122,000
賃料+共益費・管理費の1ヶ月分として換算
賃料の1ヶ月分+税として換算。不動産会社によって金額が異なるため正確な金額は不動産会社にお問合せください
※追加費用もチェック!
これらの項目以外にも費用がかかる場合があります。正確な金額は不動産会社にお問合せください。
- 初期費用
- 鍵交換費:不動産会社に要確認
- 室内清掃費:55,000円
- 火災保険費:不動産会社に要確認
- 月額費用
- 駐車場費:25,300円(税込)※近隣
- その他
- 抗菌除菌処理代:19250円
- 保証会社
- 初回:月額賃料等の50%、更新時:1万円/1年
不動産会社より
カウンターキッチン 自動湯張り追い炊き機能付バスで、しかも浴室TV(7インチ)付
「京都駅前店のこだわり…室内写真は広角レンズ等を使わずに出来る限り現状のお部屋をお伝え出来るよう撮影してます。」京都駅徒歩圏内のファミリーマンションならココ JR・地下鉄・京阪本線の3WAYアクセス可能。ペットも小型犬2匹までOKです。自動湯張り追い炊き機能付バスで、しかも浴室TV(7インチ)付です。大通りから少し入っているので静かな環境です。近くを流れる高瀬川では春は桜、夏はホタルがキレイ...
- 保存する
- 共有する
- ※各種情報と現状に差異がある場合は、現状優先となります
- ※不動産会社が入力した情報を基に物件の位置を表示しています。詳しくは不動産会社までお問合せください
- ※不動産会社の方からの上記電話番号によるお問合せはお断りしております。こちら不動産会社詳細からお問合せください
- ※LIFULL HOME'Sは物件鮮度No.1を目指していきます。閲覧中の物件が「成約済である」「実際の物件情報と異なる点がある」などの場合、「掲載110番」からお問合せください
- ※QRコードは株式会社デンソーウェーブの登録商標です
LIFULL HOME'S 地図・周辺情報
買い物
- セブンイレブン 京都七条大橋店
- ドン・キホーテ 京都烏丸七条店
- KoKuMiN京都PORTA東エリア店
- ミニストップ 七条高倉店
- フレスコ 五条大橋店
グルメ
- マクドナルド 七条京阪店
- すき家 烏丸七条店
- 餃子の王将 七条烏丸店
- シアトルズベストコーヒーAPAヴィラホテル京都駅前店
- 珈琲館京都東本願寺前店
育児・教育
- たかせ保育園
- 京都市立下京渉成小学校
- 京都市立下京中学校
- 稚松保育園
- 私立京都女子大学附属小学校
医療
- 原田病院
- 医療法人財団康生会武田病院
- 木津屋橋武田病院
- 京都第一赤十字病院
- 医療法人社団親和会京都脊椎脊髄外科・眼科病院
公共施設・郵便局
- 京都七条米浜郵便局
- 京都市下京図書館
- 京都市下京区役所
- 京都塩小路郵便局
- 京都市南図書館
公園
- 梅小路公園
- 梅小路公園
- 円山公園
- 円山公園
- 光徳公園
利用可能な駅
- 徒歩10分以内
京阪本線
- 七条駅徒歩5分
JR東海道・山陽本線
- 京都駅徒歩8分
- すべての駅
京阪本線
- 清水五条駅徒歩12分
- 祇園四条駅徒歩22分
- 鳥羽街道駅徒歩30分
- 三条駅徒歩33分
- 伏見稲荷駅徒歩37分
京都市営烏丸線
- 五条駅徒歩14分
- 九条駅徒歩21分
- 四条駅徒歩25分
- 十条駅徒歩33分
- 烏丸御池駅徒歩34分
- 丸太町駅3.4km
JR奈良線
- 東福寺駅徒歩20分
- 稲荷駅3.2km
阪急京都本線
- 京都河原町駅徒歩21分
- 烏丸駅徒歩25分
- 大宮駅徒歩36分
近鉄京都線
- 東寺駅徒歩28分
- 十条駅徒歩36分
JR山陰本線
- 梅小路京都西駅徒歩29分
- 丹波口駅徒歩36分
京都地下鉄東西線
- 京都市役所前駅徒歩31分
- 三条京阪駅徒歩32分
- 烏丸御池駅徒歩35分
- 東山駅3.2km
- 二条城前駅3.7km
京福電気鉄道嵐山本線
- 四条大宮駅徒歩37分
- 周辺情報は2023年07月21日時点のものになります。
- 周辺情報は、参考情報としてのみご利用ください(周辺情報は、株式会社LIFULLが地図情報の提供事業者から提供を受けた情報とLIFULL HOME'Sの物件情報に基づき、独自の方法で抽出し提供しているものです。周辺情報は、移転や閉鎖等により情報が最新ではない、または正しくない場合がありますが、地図情報の提供事業者から提供された情報をそのまま周辺情報として表示しているため、正確かつ最新の情報へ修正することができないことがあります。)
- 周辺情報は、株式会社LIFULLが掲載するものであり、不動産物件情報を掲載している不動産会社が掲載するものではありません
- 交通情報の一部については、株式会社LIFULLが掲載するものであり、不動産物件情報を掲載している不動産会社が掲載するものではない場合があります。交通情報に関する質問などは株式会社LIFULLにお問合せください

















