LIFULL HOME'Sは物件鮮度No.1!※評価について
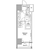
ザ・パークハビオ麻布十番(2階/310/1LDK/47m²)
ザ・パークハビオ麻布十番(2階/310/1LDK/47m²)
27.8万円/管理費等25,000円
2時間前 更新
画像一覧
1/30間取り
2/30外観
3/30外観
4/30外観
5/30外観
6/30リビング/ダイニング
キッチン
7/30リビング/ダイニング
バルコニー
8/30寝室
バルコニー
9/30寝室
洗面
10/30子供部屋
玄関
11/30キッチン
キッチン
12/30キッチン
キッチン
13/30キッチン
キッチン
14/30浴室
バルコニー
15/30浴室
バス
16/30トイレ
トイレ
17/30洗面
洗面
18/30洗面
洗面
19/30収納
収納
20/30設備
21/30設備
22/30玄関
玄関
23/30エントランス
24/30駐車場
25/30その他
26/30その他
27/30その他
28/30その他
29/30地図
30/30周辺
麻布十番駅(都営地下鉄 大江戸線) 徒歩4分。 510m
間取り
外観
外観
外観
外観
リビング/ダイニング
リビング/ダイニング
寝室
寝室
子供部屋
キッチン
キッチン
キッチン
浴室
浴室
トイレ
洗面
洗面
収納
設備
設備
玄関
エントランス
駐車場
その他
その他
その他
その他
地図
周辺
お問合せ先 :スタートライン MINATO浜松町店(スタートライングループ株式会社)
1〜4月は引越しシーズンのピークです。お問合せはお早めに!
商品券・ギフトカードプレゼント
【ご成約者様限定】無印良品 東京有明店 特別ご優待券プレゼント
- 利用条件
- スタートライン MINATO浜松町店(スタートライングループ株式会社)で利用可
- 他特典との併用可
- ご成約の方に、無印良品店 東京有明店でご利用できるご優待券を配布
利用方法
来店時に本特典の画面をスマートフォンやタブレットでスタッフに提示、または画面印刷した用紙を提示ください。
有効期限 なし
礼金0 麻布十番駅徒歩4分 インターネット無料 ペット・楽器相談可 追焚 浴室乾燥機 宅配BOX
物件のこだわり/設備・条件
新築(非該当)
2階以上の物件(該当)
南向き(非該当)
駐車場(非該当)
オートロック(該当)
エアコン(該当)
バス・トイレ別(該当)
追焚機能(該当)
フローリング(該当)
ペット相談可(該当)
位置
角部屋入居条件
楽器相談可、二人入居可、ペット可、保証人不要、即入居可- 上記以外や相談可の
詳細はお問合せください - 上記以外や相談可の詳細は
お電話ください(通話無料)電話でお問合せ キッチン/バス・トイレ
設備・サービス
オートロック、防犯カメラ、TVモニタ付インターホン、エアコン、クローゼット、シューズボックス、CS対応、BS対応、光ファイバー、インターネット使用料無料、公営水道、都市ガス、下水、フローリング、バルコニー、室内洗濯機置場、照明器具付き、エレベーター、宅配ボックスその他
住まい探し特典あり備考
ペット飼育:敷金1ヶ月積増、小型犬・猫計2匹迄 解約予告2ヶ月前 SOHO相談可:敷金1ヶ月積増
物件周辺の生活情報
地図を見る
物件周辺の学校、スーパーなどを地図で確認できます。
学校
- 私立東洋英和女学院小学部(480m)
買い物
- コンビニ(310m)
- スーパー(680m)
その他施設
- 総合病院(1,150m)
- 麻布十番駅(都営地下鉄 大江戸線)(510m)
交通
- 東京メトロ南北線 麻布十番駅 徒歩4分
- 普通(停車)
- 東京メトロ南北線 六本木一丁目駅 徒歩9分
- 普通(停車)
※急行等の停車駅情報について
急行等の停車駅に関するデータは、随時更新をしておりますが、最新の内容であることを保証するものではありません。
最新かつ正確な情報につきましては、各鉄道会社のウェブサイトにてご確認ください
物件周辺の口コミ
- 東京都港区六本木に住む人の口コミ60代男性
休日は人が多く、自然が少ない。自宅近くはビルばかり、小さな公園もリニューアルされ、土やり桜の樹もなくなり、人工的な公園になった。東京のど真ん中なので、利便性は良いが、自然や四季が感じられない。
口コミを見る
この物件周辺に住む人の口コミ
口コミは、LIFULL HOME'Sが実際にこの物件の周辺に住む18歳~69歳の男女を対象に、WEBアンケート調査を実施しています。内容には回答者の主観的な表現が含まれる場合があるほか、事実と異なる場合もございます。ご了承ください。
- 東京都港区六本木に住む人の口コミ60代男性
- 休日は人が多く、自然が少ない。自宅近くはビルばかり、小さな公園もリニューアルされ、土やり桜の樹もなくなり、人工的な公園になった。東京のど真ん中なので、利便性は良いが、自然や四季が感じられない。
- 東京都港区六本木に住む人の口コミ30代女性
- レストランやカフェが多くて飽きないため。公園が多くて自然と触れ合えることも出来るため
- 東京都港区六本木に住む人の口コミ50代女性
- 治安も良く、街が清潔で店も洗練されたものが多い。飲食店も質の良いものを安く買えるところもある。緑も多く文化施設もあるので落ち着ける。交通機関も発達していてどこへでも行きやすい。
- 東京都港区六本木に住む人の口コミ40代男性
- 仕事先への交通の便がよいことと、近くに商業施設があるので生活用品などはだいたい手に入る。友人たちと会う時の都心部への移動も近く、タクシーで帰ってもそこまで気にならない値段になる。街周辺は清潔感がある。
- 東京都港区六本木に住む人の口コミ60代男性
- 不便さを感じていないだけで、特に利便性を感じているわけではない
- 東京都港区六本木に住む人の口コミ30代女性
- ベビーカーを使うことが多かったので、バリアフリーの商業施設やベビーカーのまま入れるお店が近くにたくさんあるのはよかった。またバスや電車の公共交通手段も充実している。
- 東京都港区六本木に住む人の口コミ60代男性
- 多様性や情報の発信地であり毎日が刺激的であり過ぎるために、逆に時には様々な情報から隔絶したくなる場合を感じるがそんな時には周囲に美術館が多くある
- 東京都港区六本木に住む人の口コミ50代男性
- はっきり言って便利。ただ、子供や高齢者には住みにくい街だと思う。
- 東京都港区六本木に住む人の口コミ60代男性
- 高台で地盤強く、水害懸念なし。交通便利、買い物、外食、スポーツクラブ、病院関係が充実。都心なのに緑が多く閑静で清潔感あり。街路には桜、紫陽花と目を楽しませる。付近に大使館が多く警官多く治安に不安なし。
- 東京都港区六本木に住む人の口コミ40代女性
- どこに行くにも便利で、生活も食品スーパーは結構あるので普段は便利。坂道が多いのが難点だが、図書館や地区の支所など綺麗な施設も多い。
物件概要
- 建物構造
- RC(鉄筋コンクリート)
- 駐車場
- -
- 総戸数
- -
- 契約形態
- -
- 契約期間
- 2年間
- 更新料
- 278,000円
- その他費用
- 駐輪ステッカー代:1,100円
- 保証会社
加入要
保証会社:その他
保証会社利用料:初年度保証料:賃料等合計額の40%(最低保証料2万円)2年目以降:1年毎8千円
- 住宅保険
- 不要
- 管理
- -
- LIFULL HOME'S
物件番号 - 0115120-0509201
- 自社管理番号
- R02130-017227
- 取引態様
- 仲介
- 会社名
- スタートライン MINATO浜松町店(スタートライングループ株式会社)
営業スタッフコメント

スタートライン MINATO浜松町店(スタートライングループ株式会社)
飯島友恵
お部屋探しからご入居まででなく、入居後のアフターフォロー含め何でもお任せ下さい!
業界経験4年
- 会社実績や特徴・サービス情報
- ■お問い合わせ物件の最寄り店舗でご対応させていただきます。 ■お電話にてご連絡いただければ、最優先でご対応いたします。 『店舗一覧』 【中央区】 ・スタートライン築地聖路加通り店 ・スタートライン日本橋人形町店 ・スタートラインベイフロント勝どき店 ・スタートライン東京ソリューションセンター 【江東区】 ・スタートライン湾岸豊洲店 ・スタートラインパークサイド木場店 ・スタートライン清澄白河資料館通り店 ・スタートライン亀戸副都心店 【港区】 ・スタートラインMINATO浜松町店 ・スタートライン田町三田口店 ・スタートライン白金高輪店 【台東区・荒川区】 ・スタートライン台東蔵前店 ・スタートライン三ノ輪店 【千代田区・文京区】 ・スタートライン御茶ノ水店 【新宿区】 ・スタートライン花街神楽坂店 ・スタートライン四谷店 【品川区・大田区】 ・スタートライン大森店
■お問い合わせ物件の最寄り店舗でご対応させていただきます。 ■お電話にてご連絡いただければ、最優先でご対応いたします。 『店舗一覧』 【中央区】 ・スタートライン築地聖路加通り店 ・スタートライン日本橋人形町店 ・スタートラインベイフロント勝どき店 ・スタートライン東京ソリューションセンター 【江東区】 ・スタートライン湾岸豊洲店 ・スタートラインパークサイド木場店 ・スタートライン清澄白河資料館通り店 ・スタートライン亀戸副都心店 【港区】 ・スタートラインMINATO浜松町店 ・スタートライン田町三田口店 ・スタートライン白金高輪店 【台東区・荒川区】 ・スタートライン台東蔵前店 ・スタートライン三ノ輪店 【千代田区・文京区】 ・スタートライン御茶ノ水店 【新宿区】 ・スタートライン花街神楽坂店 ・スタートライン四谷店 【品川区・大田区】 ・スタートライン大森店
- 電話でお問合せ(通話無料)
お問合せ先 :スタートライン MINATO浜松町店(スタートライングループ株式会社)
不動産会社情報
スタートライン MINATO浜松町店(スタートライングループ株式会社)
東京都港区芝大門1丁目16−3 芝大門116ビル1F
都営大江戸線 大門駅 徒歩1分
- 営業時間
- 10:00~19:00
- 定休日
- 受付:年中無休 店舗:毎週水曜定休日
湾岸エリアを中心に都心16店舗あるスタートラインでございます。ネットに公開されていない未公開物件も多数取り扱い。来店不要のオンライン相談・内覧も対応しておりますので、お気軽にお申し付け下さい。
- 店舗の特徴
- 賃貸管理業務
- 引越し業者紹介可
- 保証人不要な物件あり
- 法人契約取扱い
- 女性スタッフ対応可
- 駅から歩いて3分以内
- 外国語を話せるスタッフ在籍
電話でお問合せお客様の電話番号は不動産会社には通知されません
- 不動産会社に
つながります
お客様の電話番号は不動産会社に通知されません
- ※光IP電話、及びIP電話からはご利用になれません
- ※お電話によるお問合せは、店舗営業時間内にお願いします。つながらない場合は、お問合せフォームよりお問合せください
- ※不動産会社がお電話に出られなかった場合、お問合せいただいた後に不動産会社より折り返しのお電話がある場合がございます(お客様が非通知設定した場合は対象外です)
- ※株式会社LIFULLは電話会社が提供するサービスを介してお客様の発信者番号を受領後、折り返し専用の電話番号を発番してお問合せの不動産会社に通知します(お客様の発信者番号がお問合せの不動産会社に通知されることはございません)
- ※携帯電話からお問合せいただいた方に対し、株式会社LIFULLは電話会社が提供するメッセ―ジサービスを介してお客様の発信者番号を受領後、ショートメッセージ(SMS)またはLINE通知メッセージによるお問合せ内容に関する通知をお届けする場合があります
- ※お客様が通話中に不動産会社にお伝えになったお客様の個人情報及び、電話会社が発番する折り返し専用の電話番号は、お問合せ先不動産会社が資料送付・電子メール送信・電話連絡などの目的で保管する可能性があります。お問合せ先不動産会社が保管する個人情報の取扱いについては、各不動産会社に直接お問合せください
- ※株式会社LIFULLでは本サービスを円滑に運用するために、お客様の発信者番号をサービスご利用の控えとして一定期間保管いたします
- ※上記および株式会社LIFULLの個人情報の取扱い方針に同意のうえ、お電話ください
【LIFULL HOME'S物件番号】0115120-0509201【自社管理番号】R02130-017227
オンライン対応
オンライン内見・オンライン相談・IT重説に対応している物件です

「オンライン内見」「オンライン相談」「IT重説」とは?
物件の内見や不動産会社スタッフとの相談、契約前の重要事項説明をオンライン(ビデオ通話)で行うことができるサービスです。
オンライン内見
ビデオ通話で現地(物件)にいる不動産会社スタッフと映像・音声を使ってリアルタイムで会話しながら内見ができます。
オンライン相談
「物件について聞きたいことがある」など不動産会社スタッフへの相談もビデオ通話で行うことができます。
IT重説
契約前の重要事項説明(重説)をビデオ通話で行うことができます。
利用時の注意事項
- ビデオ通話については各不動産会社指定のものとなります。
- ビデオ通話利用時には通信が発生します。従量課金制通信サービスや通信量に上限があるネット回線・プランを利用する場合は、通信量にご注意ください。
- 通信速度やアプリの設定によってはビデオ通話の画質が低下することがあります。安定した画質で利用するためにも、Wi-Fi環境下での利用を推奨します。
- ご利用のビデオ通話アプリによっては、対象のOSやブラウザに制限がある場合があります。詳しくはお問合せ先不動産会社にご確認ください。
初期費用・月額費用をあわせて確認!この物件に住んだときの費用めやす
めやすを見るこの物件に住んだときの費用めやす
- 初期費用
- 月額費用
- 追加費用※ご確認ください
追加で費用が
かかる場合があります
必ずご確認ください
初期費用めやす約0円
追加で費用がかかります(※)敷金
278,000
- 礼金
0
賃料+共益費・管理費の1ヶ月分として換算
賃料の1ヶ月分+税として換算。不動産会社によって金額が異なるため正確な金額は不動産会社にお問合せください
※追加費用もチェック!
これらの項目以外にも費用がかかる場合があります。正確な金額は不動産会社にお問合せください。
- 初期費用
- 鍵交換費:不動産会社に要確認
- 室内清掃費:不動産会社に要確認
- 火災保険費:不動産会社に要確認
- その他
- 駐輪ステッカー代:1100円
- 保証会社
- 初年度保証料:賃料等合計額の40%(最低保証料2万円)2年目以降:1年毎8千円
不動産会社より
礼金0 麻布十番駅徒歩4分 インターネット無料 ペット・楽器相談可 追焚 浴室乾燥機 宅配BOX
ペット飼育:敷金1ヶ月積増、小型犬・猫計2匹迄 解約予告2ヶ月前 SOHO相談可:敷金1ヶ月積増
- 保存する
- 共有する
- ※各種情報と現状に差異がある場合は、現状優先となります
- ※不動産会社が入力した情報を基に物件の位置を表示しています。詳しくは不動産会社までお問合せください
- ※不動産会社の方からの上記電話番号によるお問合せはお断りしております。こちら不動産会社詳細からお問合せください
- ※LIFULL HOME'Sは物件鮮度No.1を目指していきます。閲覧中の物件が「成約済である」「実際の物件情報と異なる点がある」などの場合、「掲載110番」からお問合せください
- ※QRコードは株式会社デンソーウェーブの登録商標です
この物件を取扱う他の会社
LIFULL HOME'Sでは、主要項目が同一の物件をまとめて表示しています。所在地や営業時間、掲載画像等から不動産会社を選んでお問合せください。
グランデ銀座店 (株式会社グランデ)
優良店認定
東京都中央区銀座8丁目9-17 KDX銀座8丁目ビル 4階
東京メトロ銀座線 銀座駅 徒歩3分
- 営業時間
- 10:00~19:00(※時間外対応出来る場合もございます)
- 定休日
- 年中無休(年末年始などを除く)
MINATO STYLE 上野店(株式会社3B ARROWS)
優良店認定
東京都台東区上野7丁目3-9-203
JR山手線 上野駅 徒歩1分
- 営業時間
- 10:00~19:00
- 定休日
- 年末年始
グランデ田町店 (株式会社グランデ)
優良店認定
東京都港区芝5丁目31-16 YCC田町ビル 10階
JR山手線 田町駅 徒歩2分
- 営業時間
- 10:00~19:00(※時間外対応出来る場合もございます。)
- 定休日
- 年中無休(年末年始などを除く)
株式会社タウンハウジング東京 タウンハウジング 恵比寿店
優良店認定
東京都渋谷区恵比寿1丁目7-12 LA CITY EBISU2 3階
JR山手線 恵比寿駅 徒歩2分
- 営業時間
- 10:00~19:00(毎週水曜日 年末年始 GW 夏季休暇)
- 定休日
- 水曜日
株式会社タウンハウジング東京 芝公園店
優良店認定
東京都港区芝3丁目5-7 CarettaSHIBA 1F
都営三田線 芝公園駅 徒歩1分
- 営業時間
- 10:00~19:00
- 定休日
- 水曜日
LIFULL HOME'S 地図・周辺情報
買い物
- ファミリーマート 一の橋店
- Can★Do麻布十番店
- くすりの福太郎麻布十番店
- デイリーヤマザキ 六本木5丁目店
- ドン・キホーテ 六本木店
グルメ
- フレッシュネスバーガー 麻布十番店
- 焼肉トラジ麻布十番店
- Caffer Bar&Lounge by上島珈琲店
- スターバックスコーヒー麻布十番店
- マクドナルド 麻布十番店
育児・教育
- 麻布十番ちとせ保育園
- 私立東洋英和女学院小学部
- 私立東洋英和女学院中学部
- 港区立麻布保育園
- 港区立麻布小学校
医療
- 公益財団法人心臓血管研究所付属病院
- 国際医療福祉大学三田病院
- 東京都済生会中央病院
- 医療法人財団厚生会古川橋病院
- 国家公務員共済組合連合会虎の門病院
公共施設・郵便局
- 麻布十番郵便局
- 港区立麻布図書館
- 麻布警察署
- 六本木駅前郵便局
- (財)三康文化研究所附属三康図書館
公園
- 区立檜町公園
- ミッドタウンガーデン
- 都立青山公園
- 有栖川宮記念公園
- 白金公園
利用可能な駅
- 徒歩10分以内
東京メトロ南北線
- 麻布十番駅徒歩4分
- 六本木一丁目駅徒歩9分
- すべての駅
東京メトロ日比谷線
- 六本木駅徒歩11分
- 神谷町駅徒歩15分
- 虎ノ門ヒルズ駅徒歩23分
- 広尾駅徒歩26分
都営大江戸線
- 赤羽橋駅徒歩13分
- 汐留駅徒歩37分
東京メトロ銀座線
- 溜池山王駅徒歩21分
- 虎ノ門駅徒歩28分
- 赤坂見附駅徒歩28分
- 青山一丁目駅徒歩29分
- 外苑前駅3.1km
- 表参道駅3.1km
東京メトロ千代田線
- 乃木坂駅徒歩21分
- 赤坂駅徒歩23分
都営三田線
- 芝公園駅徒歩23分
- 御成門駅徒歩24分
- 内幸町駅徒歩36分
東京メトロ南北線
- 白金高輪駅徒歩25分
都営浅草線
- 大門駅徒歩26分
- 三田駅徒歩29分
- 泉岳寺駅徒歩32分
東京メトロ丸ノ内線
- 国会議事堂前駅徒歩28分
- 霞ケ関駅徒歩32分
JR山手線
- 田町駅徒歩30分
- 浜松町駅徒歩33分
東京メトロ有楽町線
- 永田町駅徒歩34分
新交通ゆりかもめ
- 日の出駅3.1km
- 周辺情報は2023年07月21日時点のものになります。
- 周辺情報は、参考情報としてのみご利用ください(周辺情報は、株式会社LIFULLが地図情報の提供事業者から提供を受けた情報とLIFULL HOME'Sの物件情報に基づき、独自の方法で抽出し提供しているものです。周辺情報は、移転や閉鎖等により情報が最新ではない、または正しくない場合がありますが、地図情報の提供事業者から提供された情報をそのまま周辺情報として表示しているため、正確かつ最新の情報へ修正することができないことがあります。)
- 周辺情報は、株式会社LIFULLが掲載するものであり、不動産物件情報を掲載している不動産会社が掲載するものではありません
- 交通情報の一部については、株式会社LIFULLが掲載するものであり、不動産物件情報を掲載している不動産会社が掲載するものではない場合があります。交通情報に関する質問などは株式会社LIFULLにお問合せください





















