LIFULL HOME'Sは物件鮮度No.1!※評価について
京阪宇治線 木幡駅 徒歩5分
8.1万円/管理費等-
12時間前 更新
画像一覧
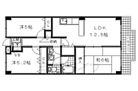
1/30間取り
間取
2/30外観
ガレージ1台2年間無料キャンペーン中です。
3/30外観
外観です。
4/30リビング/ダイニング
明るい色の室内となってます
5/30リビング/ダイニング
窓が外に出てるのでオシャレで便利です
6/30リビング/ダイニング
窓が多く明るいです
7/30リビング/ダイニング
フローリングがオシャレです
8/30リビング/ダイニング
室内が全体的に白で明るく見えます
9/30リビング/ダイニング
こちらの部屋にも服を置けます
10/30リビング/ダイニング
室内からキッチンが隠れる造りです
11/30リビング/ダイニング
収納が目立つ和室です
12/30リビング/ダイニング
バルコニーもすぐ出れます
13/30リビング/ダイニング
柵があり開放的です
14/30キッチン
横に広いキッチンとなります
15/30キッチン
縦にも横にも大きいキッチンです
16/30キッチン
多くの物が収納できます
17/30キッチン
広いので洗いやすいです
18/30キッチン
コンロの置く場所も十分大きいです
19/30浴室
縦に広い鏡が特徴的です
20/30トイレ
トイレに入るとき段差ありません
21/30トイレ
段差ないので入るとき楽です
22/30洗面
独立洗面台です
23/30収納
壁一面ほどの収納です
24/30収納
キレイに靴を並べられる収納です
25/30収納
服がキレイに収納できます
26/30設備
洗濯機は洗面台の横です
27/30設備
防犯になります
28/30玄関
正方形型の玄関です
29/30バルコニー
横にも広いです
30/30周辺
ドラッグユタカ 宇治木幡店まで460m
間取り
外観
外観
リビング/ダイニング
リビング/ダイニング
リビング/ダイニング
リビング/ダイニング
リビング/ダイニング
リビング/ダイニング
リビング/ダイニング
リビング/ダイニング
リビング/ダイニング
リビング/ダイニング
キッチン
キッチン
キッチン
キッチン
キッチン
浴室
トイレ
トイレ
洗面
収納
収納
収納
設備
設備
玄関
バルコニー
周辺
LINEチャットでも 相談できます
お問合せ先 :株式会社京都ライフ 丹波橋店
仲介手数料割引
仲介手数料が家賃の半月分(税別)です。
- 利用条件
- 株式会社京都ライフ 丹波橋店で利用可
- 他特典との併用可
- ・法人契約、事業用物件は除く。 ・積水ハウス、大東建託の管理物件は除く。
利用方法
来店時に本特典の画面をスマートフォンやタブレットでスタッフに提示、または画面印刷した用紙を提示ください。
有効期限 なし
JRと京阪に2WAYアク JRと京阪にダブルアクセスできる点も好評
物件のこだわり/設備・条件
新築(非該当)
2階以上の物件(該当)
南向き(該当)
駐車場あり(該当)
オートロック(該当)
エアコン(非該当)
バス・トイレ別(該当)
追焚機能(該当)
フローリング(該当)
ペット相談(非該当)
入居条件
二人入居可キッチン/バス・トイレ
設備・サービス
オートロック、シューズボックス、BS対応、光ファイバー、公営水道、都市ガス、下水、フローリング、バルコニー、室内洗濯機置場、南面バルコニー、エレベーター、宅配ボックス、駐車場あり、駐輪場ありその他
住まい探し特典あり備考
JRと京阪に2WAYアクセスが可能のお部屋です。 3LDKと4LDKのお部屋は12帖以上の広々リビングに広々収納の洋室・和室と家具や荷物が多くても安心です。 建物前には公園もあり、お子さんがマンションの目の前で遊んでも大丈夫。スーパーも近くにあり、生活しやすいエリアです。 物件情報はもちろん京都のエリア情報まで幅広く対応させていただきます!
物件周辺の生活情報
買い物
- コンビニ(415m)
- スーパー(301m)
- ドラッグストア(460m)
その他施設
- 総合病院(1,200m)
- 銀行(460m)
- 宇治木幡郵便局(394m)
交通
- 京阪宇治線 木幡駅 徒歩5分
- 普通(停車)
- JR奈良線 木幡駅 徒歩10分
- 普通(停車)
- 区間快速(通過)
- 快速(通過)
- みやこ路快速(通過)
※急行等の停車駅情報について
急行等の停車駅に関するデータは、随時更新をしておりますが、最新の内容であることを保証するものではありません。
最新かつ正確な情報につきましては、各鉄道会社のウェブサイトにてご確認ください
物件周辺の口コミ
- 京都府宇治市木幡に住む人の口コミ50代女性
とても便利で生活しやすいところです。子供から高齢者まで人口分布の偏りが少ないように思います。学校も荒れていないので治安はいいと思います。
口コミを見る
この物件周辺に住む人の口コミ
口コミは、LIFULL HOME'Sが実際にこの物件の周辺に住む18歳~69歳の男女を対象に、WEBアンケート調査を実施しています。内容には回答者の主観的な表現が含まれる場合があるほか、事実と異なる場合もございます。ご了承ください。
- 京都府宇治市木幡に住む人の口コミ50代女性
- とても便利で生活しやすいところです。子供から高齢者まで人口分布の偏りが少ないように思います。学校も荒れていないので治安はいいと思います。
- 京都府宇治市木幡に住む人の口コミ50代女性
- 物心ついてからずーと同じ市内に住んでいます。郊外なので中心地に行くのにやや不便な点はあるのですが、その他はここしか知らずここを離れたくない気持ちが強い。多少の不便な点はあるものの満足しています。
- 京都府宇治市木幡に住む人の口コミ30代女性
- 生活に必要な買い物が徒歩圏内で済ませられるから。駅が近いから。
- 京都府宇治市木幡に住む人の口コミ50代女性
- 大きなショッピングセンターやホームセンター等は、隣町まで行かないとないけれど、スーパーやコンビニやドラッグストア等は充実していて、とても住み良いです。
- 京都府宇治市木幡に住む人の口コミ50代女性
- 治安もいいし、安心して住めるし、散歩するには適した道も神社もある。買い物には物足りないもしれないけど、食料や生活用品は揃う。住んでいる人も、穏やかで優しい印象があるから。
- 京都府宇治市木幡に住む人の口コミ30代女性
- 交通の便がよく、大阪、京都、奈良の中心部へも行きやすい。住宅街は落ち着いている。スーパー、病院、飲食店など一通りの店はそろっている。
- 京都府宇治市木幡に住む人の口コミ40代女性
- 閑静な住宅街で、騒音などの問題はない。幼稚園、小学校は近い所にあるので、良い。ただ、中学校が遠いのと、住宅街が丘というか山の斜面にあるため、坂道が大変である。電動付き自転車でないと移動は困難。
- 京都府宇治市木幡に住む人の口コミ30代女性
- 新しい住宅地も多く、全体的に同世代の家庭が多く、子育てにはかなり良い環境だからです。こどもも同級生だらけで同じように子育てできる環境が気に入っています。
- 京都府宇治市木幡に住む人の口コミ30代女性
- 公民館や銀行・スーパーなど徒歩圏内に必要最低限の施設が揃っているから。
- 京都府宇治市木幡に住む人の口コミ50代男性
- 都会でもなく田舎でもなく静かに暮らせる。また都会へのアクセスも良い。
物件概要
- 建物構造
- RC(鉄筋コンクリート)
- 駐車場
- 空有 11,000円(税込)
- 総戸数
- 72戸
- 契約形態
- -
- 契約期間
- 2年間
- 更新料
- -
- その他費用
- 室内清掃費用:55,000円、解約時事務手数料:11,000円
- 保証会社
加入要
保証会社:日本セーフティー
保証会社利用料:初回:月額賃料等の50%、月額:保証料800円+330円
- 住宅保険
- 要
- 管理
- 管理員:巡回
- LIFULL HOME'S
物件番号 - 0100118-0250581
- 自社管理番号
- 03381-411-05
- 取引態様
- 仲介
- 会社名
- 株式会社京都ライフ 丹波橋店
営業スタッフコメント

株式会社京都ライフ 丹波橋店
横山琢己
良い部屋ご紹介させて頂きます!ご希望条件のお部屋探しをお手伝いいたします!
業界経験4年
資格少額短期保険募集人
- 会社実績や特徴・サービス情報
- 京都市内部屋付け数3年連続1位。(株式会社全国賃貸住宅新聞調べ) 当店は京阪本線と近鉄京都線が交わり伏見区でも人気の高い「丹波橋」にある京阪丹波橋駅の西に位置しております。
京都市内部屋付け数3年連続1位。(株式会社全国賃貸住宅新聞調べ) 当店は京阪本線と近鉄京都線が交わり伏見区でも人気の高い「丹波橋」にある京阪丹波橋駅の西に位置しております。
- 電話でお問合せ(通話無料)
お問合せ先 :株式会社京都ライフ 丹波橋店
不動産会社情報
伏見区全域くまなくネット!京都ライフでは仲介手数料が家賃の半月分!京都のお部屋探しは、創業45年、京都ライフにお任せ下さい!
- 店舗の特徴
- 賃貸管理業務
- 24時間管理物件取扱い
- 引越し業者紹介可
- 年中無休
- 駐車場あり
- 系列店舗での対応可
- オンライン相談可
- 保証人不要な物件あり
- 法人契約取扱い
- 駅から歩いて3分以内
電話でお問合せお客様の電話番号は不動産会社には通知されません
- 不動産会社に
つながります
お客様の電話番号は不動産会社に通知されません
- ※光IP電話、及びIP電話からはご利用になれません
- ※お電話によるお問合せは、店舗営業時間内にお願いします。つながらない場合は、お問合せフォームよりお問合せください
- ※不動産会社がお電話に出られなかった場合、お問合せいただいた後に不動産会社より折り返しのお電話がある場合がございます(お客様が非通知設定した場合は対象外です)
- ※株式会社LIFULLは電話会社が提供するサービスを介してお客様の発信者番号を受領後、折り返し専用の電話番号を発番してお問合せの不動産会社に通知します(お客様の発信者番号がお問合せの不動産会社に通知されることはございません)
- ※携帯電話からお問合せいただいた方に対し、株式会社LIFULLは電話会社が提供するメッセ―ジサービスを介してお客様の発信者番号を受領後、ショートメッセージ(SMS)またはLINE通知メッセージによるお問合せ内容に関する通知をお届けする場合があります
- ※お客様が通話中に不動産会社にお伝えになったお客様の個人情報及び、電話会社が発番する折り返し専用の電話番号は、お問合せ先不動産会社が資料送付・電子メール送信・電話連絡などの目的で保管する可能性があります。お問合せ先不動産会社が保管する個人情報の取扱いについては、各不動産会社に直接お問合せください
- ※株式会社LIFULLでは本サービスを円滑に運用するために、お客様の発信者番号をサービスご利用の控えとして一定期間保管いたします
- ※上記および株式会社LIFULLの個人情報の取扱い方針に同意のうえ、お電話ください
【LIFULL HOME'S物件番号】0100118-0250581【自社管理番号】03381-411-05
オンライン対応
オンライン内見・オンライン相談・IT重説に対応している物件です

「オンライン内見」「オンライン相談」「IT重説」とは?
物件の内見や不動産会社スタッフとの相談、契約前の重要事項説明をオンライン(ビデオ通話)で行うことができるサービスです。
オンライン内見
ビデオ通話で現地(物件)にいる不動産会社スタッフと映像・音声を使ってリアルタイムで会話しながら内見ができます。
オンライン相談
「物件について聞きたいことがある」など不動産会社スタッフへの相談もビデオ通話で行うことができます。
IT重説
契約前の重要事項説明(重説)をビデオ通話で行うことができます。
利用時の注意事項
- ビデオ通話については各不動産会社指定のものとなります。
- ビデオ通話利用時には通信が発生します。従量課金制通信サービスや通信量に上限があるネット回線・プランを利用する場合は、通信量にご注意ください。
- 通信速度やアプリの設定によってはビデオ通話の画質が低下することがあります。安定した画質で利用するためにも、Wi-Fi環境下での利用を推奨します。
- ご利用のビデオ通話アプリによっては、対象のOSやブラウザに制限がある場合があります。詳しくはお問合せ先不動産会社にご確認ください。
初期費用・月額費用をあわせて確認!この物件に住んだときの費用めやす
めやすを見るこの物件に住んだときの費用めやす
- 初期費用
- 月額費用
- 追加費用※ご確認ください
追加で費用が
かかる場合があります
必ずご確認ください
初期費用めやす約0円
追加で費用がかかります(※)敷金
100,000
- 礼金
0
賃料+共益費・管理費の1ヶ月分として換算
賃料の1ヶ月分+税として換算。不動産会社によって金額が異なるため正確な金額は不動産会社にお問合せください
※追加費用もチェック!
これらの項目以外にも費用がかかる場合があります。正確な金額は不動産会社にお問合せください。
- 初期費用
- 鍵交換費:不動産会社に要確認
- 室内清掃費:55,000円
- 火災保険費:不動産会社に要確認
- 月額費用
- 駐車場費:11,000円(税込)※契約任意
- その他
- 解約時事務手数料:11000円
- 保証会社
- 初回:月額賃料等の50%、月額:保証料800円+330円
不動産会社より
JRと京阪に2WAYアク JRと京阪にダブルアクセスできる点も好評
JRと京阪に2WAYアクセスが可能のお部屋です。 3LDKと4LDKのお部屋は12帖以上の広々リビングに広々収納の洋室・和室と家具や荷物が多くても安心です。 建物前には公園もあり、お子さんがマンションの目の前で遊んでも大丈夫。スーパーも近くにあり、生活しやすいエリアです。 物件情報はもちろん京都のエリア情報まで幅広く対応させていただきます!
- 保存する
- 共有する
- ※各種情報と現状に差異がある場合は、現状優先となります
- ※不動産会社が入力した情報を基に物件の位置を表示しています。詳しくは不動産会社までお問合せください
- ※不動産会社の方からの上記電話番号によるお問合せはお断りしております。こちら不動産会社詳細からお問合せください
- ※LIFULL HOME'Sは物件鮮度No.1を目指していきます。閲覧中の物件が「成約済である」「実際の物件情報と異なる点がある」などの場合、「掲載110番」からお問合せください
- ※QRコードは株式会社デンソーウェーブの登録商標です
したい暮らしのタグから探す
この物件を取扱う他の会社
LIFULL HOME'Sでは、主要項目が同一の物件をまとめて表示しています。所在地や営業時間、掲載画像等から不動産会社を選んでお問合せください。
株式会社京都ライフ 京田辺店
優良店認定
京都府京田辺市田辺中央1丁目7-11
JR片町線(学研都市線) 京田辺駅 徒歩4分
- 営業時間
- 09:30~19:00
- 定休日
- 水曜定休(4/21〜9/20の期間)、盆・正月
株式会社京都ライフ 山科店
京都府京都市山科区竹鼻竹ノ街道町11
JR東海道・山陽本線 山科駅 徒歩3分
- 営業時間
- 09:30~19:00
- 定休日
- 夏期休暇 8月13日〜8月16日 年末年始休暇 12月27日〜1月4日
株式会社京都ライフ 伏見桃山店
優良店認定
京都府京都市伏見区観音寺町215-1 CONNECT桃山2F
近鉄京都線 桃山御陵前駅 徒歩1分
- 営業時間
- 09:30~19:00
- 定休日
- 年中無休(盆正月を除く)
株式会社エリッツ 椥辻店
優良店認定
京都府京都市山科区椥辻中在家町17 プラザ椥ノ辻1F
京都地下鉄東西線 椥辻駅 徒歩3分
- 営業時間
- 10:00~19:00
- 定休日
- 水曜日(祝日を除く)、年末年始 ※部屋探しのお問い合わせは無休
株式会社エリッツ 新田辺店
京都府京田辺市田辺中央1丁目3番地1 新田辺ステーションパーク南館
近鉄京都線 新田辺駅 徒歩2分
- 営業時間
- 10:00~19:00
- 定休日
- 火・水曜日(祝日を除く)、年末年始 ※部屋探しのお問い合わせは無休
LIFULL HOME'S 地図・周辺情報
買い物
- セブンイレブン 宇治京阪木幡駅前店
- スーパー山田屋桃山店
- ドラッグユタカ宇治木幡店
- ファミリーマート 宇治木幡店
- 新鮮激安市場!木幡店
グルメ
- マクドナルド 宇治木幡店
- さん天宇治木幡店
- ジョリーパスタ 木幡店
- 焼肉きんぐ京都桃山店
- マクドナルド 槙島店
育児・教育
- みんなのき木幡こども園
- 宇治市立岡屋小学校
- 宇治市立木幡中学校
- 宇治市立木幡保育所
- 京都市立桃山南小学校
医療
- 社会福祉法人宇治病院
- 京都府立洛南病院
- 医療法人徳洲会六地蔵総合病院
- 特定医療法人桃仁会桃仁会病院
- 医療法人栄仁会・宇治おうばく病院
公共施設・郵便局
- 宇治木幡郵便局
- 宇治市東宇治図書館
- 宇治五ヶ庄郵便局
- 京都市醍醐図書館
- 宇治御蔵山郵便局
公園
- 二子塚古墳公園
- 向島東公園
- 黄檗公園
- 東隼上り児童公園
- 莵道公園
利用可能な駅
- 徒歩10分以内
京阪宇治線
- 木幡駅徒歩5分
JR奈良線
- 木幡駅徒歩10分
- すべての駅
京阪宇治線
- 黄檗駅徒歩18分
- 六地蔵駅徒歩22分
- 桃山南口駅徒歩25分
- 三室戸駅3.2km
- 観月橋駅3.4km
JR奈良線
- 黄檗駅徒歩19分
- 六地蔵駅徒歩19分
- 桃山駅3.6km
京都地下鉄東西線
- 石田駅徒歩35分
近鉄京都線
- 向島駅3.2km
- 桃山御陵前駅4km
- 周辺情報は2023年07月21日時点のものになります。
- 周辺情報は、参考情報としてのみご利用ください(周辺情報は、株式会社LIFULLが地図情報の提供事業者から提供を受けた情報とLIFULL HOME'Sの物件情報に基づき、独自の方法で抽出し提供しているものです。周辺情報は、移転や閉鎖等により情報が最新ではない、または正しくない場合がありますが、地図情報の提供事業者から提供された情報をそのまま周辺情報として表示しているため、正確かつ最新の情報へ修正することができないことがあります。)
- 周辺情報は、株式会社LIFULLが掲載するものであり、不動産物件情報を掲載している不動産会社が掲載するものではありません
- 交通情報の一部については、株式会社LIFULLが掲載するものであり、不動産物件情報を掲載している不動産会社が掲載するものではない場合があります。交通情報に関する質問などは株式会社LIFULLにお問合せください
















