LIFULL HOME'Sは物件鮮度No.1!※評価について
グリーンハイツ(1階/2DK/32㎡)
グリーンハイツ(1階/2DK/32㎡)
4.5万円/管理費等-
13時間前 更新
画像一覧
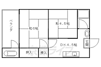
1/30間取り
間取
2/30外観
・お問い合わせは京都ライフまで・
3/30外観
4/30リビング/ダイニング
お部屋です
5/30リビング/ダイニング
お部屋の別角度です
6/30室内
キッチンスペースです
7/30室内
キッチンスペースです
8/30室内
和室です
9/30室内
和室の別角度です
10/30キッチン
キッチンです
11/30キッチン
シンクです
12/30キッチン
コンロ置場です
13/30キッチン
換気扇です
14/30キッチン
キッチン下段収納です
15/30浴室
バスルームです
16/30浴室
バスルームの洗面台です
17/30浴室
バスタブです
18/30トイレ
トイレです
19/30洗面
洗面台です
20/30洗面
洗面所です
21/30洗面
洗面台です
22/30洗面
洗面台下段収納です
23/30収納
収納です
24/30収納
収納です
25/30設備
洗濯機置き場です
26/30設備
収納です
27/30玄関
玄関です
28/30バルコニー
テラス風です
29/30その他
室外風景です
30/30周辺
上高野小学校まで130m 色々な課外授業を実践しています。
間取り
外観
外観
リビング/ダイニング
リビング/ダイニング
室内
室内
室内
室内
キッチン
キッチン
キッチン
キッチン
キッチン
浴室
浴室
浴室
トイレ
洗面
洗面
洗面
洗面
収納
収納
設備
設備
玄関
バルコニー
その他
周辺
仲介手数料割引
仲介手数料が家賃の半月分(外税)です。
- 利用条件
- 株式会社京都ライフ 北山店で利用可
- 他特典との併用可
- ・法人契約、事業用物件は除く。 ・積水ハウス、大東建託の管理物件は除く。
利用方法
来店時に本特典の画面をスマートフォンやタブレットでスタッフに提示、または画面印刷した用紙を提示ください。
有効期限 なし
広々収納アパート きれいにリフォームされています。ぜひご内覧下さい
物件のこだわり/設備・条件
新築(非該当)
2階以上の物件(非該当)
南向き(該当)
駐車場(非該当)
オートロック(非該当)
エアコン(該当)
バス・トイレ別(該当)
追焚機能(非該当)
フローリング(非該当)
ペット相談(非該当)
入居条件
二人入居可、即入居可キッチン/バス・トイレ
設備・サービス
エアコン、インターネット対応、インターネット使用料無料、公営水道、都市ガス、下水、バルコニー、南面バルコニー、駐輪場ありその他
住まい探し特典あり備考
叡山三宅八幡駅まで徒歩4分の2DKです。敷金、礼金、更新料ナシ。嬉しい3点セパレートなど充実の設備。コンビニ、スーパー、ホームセンターなど近くにあって便利ですよ。 物件情報はもちろん京都のエリア情報まで幅広く対応させていただきます!
物件周辺の生活情報
学校
- 上高野小学校(130m)
- 修学院中学校(2,000m)
買い物
- コンビニ(450m)
- スーパー(420m)
- ドラッグストア(1,000m)
その他施設
- 総合病院(2,500m)
- 銀行(520m)
- 蔦屋白川店(1,600m)
交通
- 叡山電鉄叡山本線 三宅八幡駅 徒歩4分
- 普通(停車)
- 京都市営烏丸線 国際会館駅 徒歩19分
- 普通(停車)
- 急行(停車)
※急行等の停車駅情報について
急行等の停車駅に関するデータは、随時更新をしておりますが、最新の内容であることを保証するものではありません。
最新かつ正確な情報につきましては、各鉄道会社のウェブサイトにてご確認ください
物件周辺の口コミ
- 京都府京都市左京区上高野畑ケ田町に住む人の口コミ30代女性
静かで住みやすい環境が気に入っている。数キロ先の施設で稀に花火があがり、自宅から見えるのも良い。スーパーがやや遠く、閉店時間も早いことに少し不満がある。
口コミを見る
この物件周辺に住む人の口コミ
口コミは、LIFULL HOME'Sが実際にこの物件の周辺に住む18歳~69歳の男女を対象に、WEBアンケート調査を実施しています。内容には回答者の主観的な表現が含まれる場合があるほか、事実と異なる場合もございます。ご了承ください。
- 京都府京都市左京区上高野畑ケ田町に住む人の口コミ30代女性
- 静かで住みやすい環境が気に入っている。数キロ先の施設で稀に花火があがり、自宅から見えるのも良い。スーパーがやや遠く、閉店時間も早いことに少し不満がある。
- 京都府京都市左京区岩倉花園町に住む人の口コミ40代女性
- 静かに、のんびりできる、四季を楽しめるきれいな都市だと思います。
- 京都府京都市左京区修学院馬場脇町に住む人の口コミ50代女性
- 緑が多く、山や森に囲まれているにもかかわらず街としては洗練されている。典型的な裕福層の居住している京都の地域。おしゃれなカフェなども多くあって飽きない。
- 京都府京都市左京区修学院泉殿町に住む人の口コミ40代女性
- 交通の便が悪く、坂もあり、通勤通学には不便であるが、京都市内では、自然も身近に感じられて、暮らすにはよい。
- 京都府京都市左京区山端壱町田町に住む人の口コミ30代女性
- 必要最低限のものが近くで揃い、遊べる川があり、子供も大人も休日を楽しめる。
- 京都府京都市左京区上高野北田町に住む人の口コミ50代男性
- 前が田んぼで、刈り取った雑草などを燃やされることがあり、煙で困ることがたまにあるから。
- 京都府京都市左京区修学院水川原町に住む人の口コミ60代男性
- 騒音に悩まされる事なき周りには自然が多く四季の移り変わりを感じられるから。
- 京都府京都市左京区岩倉南大鷺町に住む人の口コミ40代女性
- 買い物しやすい場所に行くのも、地下鉄で15分ほどで行けるし、始発の駅なので必ず座れるところ。コンビニや、ドラッグストア、小さなスーパーは家の近くにあるので生活に不便はないところ。
- 京都府京都市左京区上高野上荒蒔町に住む人の口コミ50代女性
- 交通の便があまり良くないが、山や川が近くにあり景色が良い。空気が美味しいと思う。
- 京都府京都市左京区岩倉長谷町に住む人の口コミ50代女性
- 日常の買い物に不便を感じる事もなく、車で少し行けば、大型店舗にも行ける。その割に自然が多く、空気も良く、静かな日常を過ごす事ができるところに満足しています。
物件概要
- 建物構造
- RC(鉄筋コンクリート)
- 駐車場
- 無
- 総戸数
- 10戸
- 契約形態
- -
- 契約期間
- 2年間
- 更新料
- -
- その他費用
- -
- 保証会社
- -
- 住宅保険
- 要
- 管理
- 管理員:巡回
- LIFULL HOME'S
物件番号 - 0119809-0210957
- 自社管理番号
- 38948-105-13
- 取引態様
- 仲介
- 会社名
- 株式会社京都ライフ 北山店
営業スタッフコメント

株式会社京都ライフ 北山店営業
松下幸平
楽しいお部屋探し
業界経験2年
- 会社実績や特徴・サービス情報
- 地下鉄烏丸線沿線を中心に京都市内全域のお部屋探しは京都ライフ北山店へお任せください。ファミリー様向き物件、社会人様向きのお部屋はもちろん各大学の学生様向き物件も多数ございます。京都大学、同志社大学、同志社女子大学、京都産業大学、大谷大学、立命館大学、京都府立大学、ノートルダム女子大学の学生さんは当店までご相談ください。 当店では居住用物件個人契約の仲介手数料は家賃の半月分(外税)です。※一部物件を除く
地下鉄烏丸線沿線を中心に京都市内全域のお部屋探しは京都ライフ北山店へお任せください。ファミリー様向き物件、社会人様向きのお部屋はもちろん各大学の学生様向き物件も多数ございます。京都大学、同志社大学、同志社女子大学、京都産業大学、大谷大学、立命館大学、京都府立大学、ノートルダム女子大学の学生さんは当店までご相談ください。 当店では居住用物件個人契約の仲介手数料は家賃の半月分(外税)です。※一部物件を除く
- 電話でお問合せ(通話無料)
お問合せ先 :株式会社京都ライフ 北山店
不動産会社情報
株式会社京都ライフ 北山店京都ライフ北山店

京都府京都市北区上賀茂岩ケ垣内町98−2
京都市営烏丸線 北山駅 徒歩1分
- 営業時間
- 09:30~19:00
- 定休日
- 年中無休(盆・正月を除く)
優良店認定
地下鉄烏丸線「北山」から徒歩1分。キッズスペースも備えた明るく綺麗な店内で、ゆっくりとお部屋探ししていただけます。活気あふれるスタッフが皆様のご来店をお待ちしています。
- 店舗の特徴
- 賃貸管理業務
- 24時間管理物件取扱い
- リフォーム対応
- 引越し業者紹介可
- 年中無休
- 系列店舗での対応可
- 保証人不要な物件あり
- 法人契約取扱い
- 駅から歩いて3分以内
電話でお問合せお客様の電話番号は不動産会社には通知されません
- 不動産会社に
つながります
お客様の電話番号は不動産会社に通知されません
- ※光IP電話、及びIP電話からはご利用になれません
- ※お電話によるお問合せは、店舗営業時間内にお願いします。つながらない場合は、お問合せフォームよりお問合せください
- ※不動産会社がお電話に出られなかった場合、お問合せいただいた後に不動産会社より折り返しのお電話がある場合がございます(お客様が非通知設定した場合は対象外です)
- ※株式会社LIFULLは電話会社が提供するサービスを介してお客様の発信者番号を受領後、折り返し専用の電話番号を発番してお問合せの不動産会社に通知します(お客様の発信者番号がお問合せの不動産会社に通知されることはございません)
- ※携帯電話からお問合せいただいた方に対し、株式会社LIFULLは電話会社が提供するメッセ―ジサービスを介してお客様の発信者番号を受領後、ショートメッセージ(SMS)またはLINE通知メッセージによるお問合せ内容に関する通知をお届けする場合があります
- ※お客様が通話中に不動産会社にお伝えになったお客様の個人情報及び、電話会社が発番する折り返し専用の電話番号は、お問合せ先不動産会社が資料送付・電子メール送信・電話連絡などの目的で保管する可能性があります。お問合せ先不動産会社が保管する個人情報の取扱いについては、各不動産会社に直接お問合せください
- ※株式会社LIFULLでは本サービスを円滑に運用するために、お客様の発信者番号をサービスご利用の控えとして一定期間保管いたします
- ※上記および株式会社LIFULLの個人情報の取扱い方針に同意のうえ、お電話ください
【LIFULL HOME'S物件番号】0119809-0210957【自社管理番号】38948-105-13
オンライン対応
オンライン内見・オンライン相談・IT重説に対応している物件です

「オンライン内見」「オンライン相談」「IT重説」とは?
物件の内見や不動産会社スタッフとの相談、契約前の重要事項説明をオンライン(ビデオ通話)で行うことができるサービスです。
オンライン内見
ビデオ通話で現地(物件)にいる不動産会社スタッフと映像・音声を使ってリアルタイムで会話しながら内見ができます。
オンライン相談
「物件について聞きたいことがある」など不動産会社スタッフへの相談もビデオ通話で行うことができます。
IT重説
契約前の重要事項説明(重説)をビデオ通話で行うことができます。
利用時の注意事項
- ビデオ通話については各不動産会社指定のものとなります。
- ビデオ通話利用時には通信が発生します。従量課金制通信サービスや通信量に上限があるネット回線・プランを利用する場合は、通信量にご注意ください。
- 通信速度やアプリの設定によってはビデオ通話の画質が低下することがあります。安定した画質で利用するためにも、Wi-Fi環境下での利用を推奨します。
- ご利用のビデオ通話アプリによっては、対象のOSやブラウザに制限がある場合があります。詳しくはお問合せ先不動産会社にご確認ください。
初期費用・月額費用をあわせて確認!この物件に住んだときの費用めやす
めやすを見るこの物件に住んだときの費用めやす
- 初期費用
- 月額費用
- 追加費用※ご確認ください
追加で費用が
かかる場合があります
必ずご確認ください
初期費用めやす約0円
追加で費用がかかります(※)敷金
0
- 礼金
0
賃料+共益費・管理費の1ヶ月分として換算
賃料の1ヶ月分+税として換算。不動産会社によって金額が異なるため正確な金額は不動産会社にお問合せください
※追加費用もチェック!
これらの項目以外にも費用がかかる場合があります。正確な金額は不動産会社にお問合せください。
- 初期費用
- 鍵交換費:不動産会社に要確認
- 室内清掃費:不動産会社に要確認
- 火災保険費:不動産会社に要確認
- 保証会社
- 不動産会社に要確認
不動産会社より
広々収納アパート きれいにリフォームされています。ぜひご内覧下さい
叡山三宅八幡駅まで徒歩4分の2DKです。敷金、礼金、更新料ナシ。嬉しい3点セパレートなど充実の設備。コンビニ、スーパー、ホームセンターなど近くにあって便利ですよ。 物件情報はもちろん京都のエリア情報まで幅広く対応させていただきます!
- 保存する
- 共有する
- ※各種情報と現状に差異がある場合は、現状優先となります
- ※不動産会社が入力した情報を基に物件の位置を表示しています。詳しくは不動産会社までお問合せください
- ※不動産会社の方からの上記電話番号によるお問合せはお断りしております。こちら不動産会社詳細からお問合せください
- ※LIFULL HOME'Sは物件鮮度No.1を目指していきます。閲覧中の物件が「成約済である」「実際の物件情報と異なる点がある」などの場合、「掲載110番」からお問合せください
- ※QRコードは株式会社デンソーウェーブの登録商標です
したい暮らしのタグから探す
LIFULL HOME'S 地図・周辺情報
買い物
- セブンイレブン 京都白川通上高野店
- ホームセンターコーナン 宝ケ池上高野店
- ドラッグユタカ三宅八幡店
- ミニストップ 白川通上高野店
- フレスコ 上高野店
グルメ
- にぎり長次郎 宝ヶ池店
- ガスト 京都宝ヶ池店(から好し取扱店)
- マクドナルド 宝ヶ池店
- 餃子の王将 宝ケ池店
- サンマルク京都北山通り店
育児・教育
- 菊の花幼稚園
- 京都市立上高野小学校
- 私立同志社中学校
- 葵保育園
- 京都市立修学院小学校
医療
- 社会福祉法人京都博愛会京都博愛会病院
- 医療法人稲門会いわくら病院
- 医療法人寿尚会洛陽病院
- 医療法人三幸会第二北山病院
- 医療法人三幸会北山病院
公共施設・郵便局
- 京都上高野郵便局
- 京都市岩倉図書館
- 京都市左京区役所
- 京都山端郵便局
- 京都岩倉郵便局
公園
- 宝が池公園
- 宝が池公園子どもの楽園
- 岩倉南公園
- 長谷土田公園
利用可能な駅
- 徒歩10分以内
叡山電鉄叡山本線
- 三宅八幡駅徒歩4分
- 宝ケ池駅徒歩8分
- すべての駅
叡山電鉄鞍馬線
- 八幡前駅徒歩11分
- 岩倉駅徒歩23分
- 木野駅徒歩33分
- 京都精華大前駅3.6km
京都市営烏丸線
- 国際会館駅徒歩19分
- 松ヶ崎駅徒歩34分
- 北山駅3.6km
叡山電鉄叡山本線
- 八瀬比叡山口駅徒歩19分
- 修学院駅徒歩21分
- 一乗寺駅徒歩31分
- 茶山・京都芸術大学駅3.5km
- 周辺情報は2023年07月21日時点のものになります。
- 周辺情報は、参考情報としてのみご利用ください(周辺情報は、株式会社LIFULLが地図情報の提供事業者から提供を受けた情報とLIFULL HOME'Sの物件情報に基づき、独自の方法で抽出し提供しているものです。周辺情報は、移転や閉鎖等により情報が最新ではない、または正しくない場合がありますが、地図情報の提供事業者から提供された情報をそのまま周辺情報として表示しているため、正確かつ最新の情報へ修正することができないことがあります。)
- 周辺情報は、株式会社LIFULLが掲載するものであり、不動産物件情報を掲載している不動産会社が掲載するものではありません
- 交通情報の一部については、株式会社LIFULLが掲載するものであり、不動産物件情報を掲載している不動産会社が掲載するものではない場合があります。交通情報に関する質問などは株式会社LIFULLにお問合せください















