LIFULL HOME'Sは物件鮮度No.1!※評価について
京阪宇治線 三室戸駅 徒歩5分(7階/3LDK/61.1m²)
京阪宇治線 三室戸駅 徒歩5分(7階/3LDK/61.1m²)
7万円/管理費等8,000円
3日前 更新
画像一覧
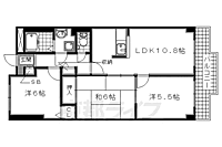
1/30間取り
間取
2/30外観
外観です。
3/30外観
外観です。
4/30リビング/ダイニング
5/30リビング/ダイニング
6/30リビング/ダイニング
7/30リビング/ダイニング
8/30キッチン
9/30キッチン
10/30キッチン
11/30キッチン
12/30浴室
13/30浴室
14/30トイレ
15/30洗面
16/30洗面
17/30洗面
18/30洗面
19/30収納
20/30収納
21/30収納
22/30設備
23/30玄関
24/30バルコニー
25/30バルコニー
26/30その他
27/30その他
28/30その他
29/30その他
30/30周辺
京都銀行 三室戸支店まで170m
間取り
外観
外観
リビング/ダイニング
リビング/ダイニング
リビング/ダイニング
リビング/ダイニング
キッチン
キッチン
キッチン
キッチン
浴室
浴室
トイレ
洗面
洗面
洗面
洗面
収納
収納
収納
設備
玄関
バルコニー
バルコニー
その他
その他
その他
その他
周辺
お問合せ先 :株式会社京都ライフ 百万遍店
仲介手数料割引
京都ライフなら、ご成約時に仲介手数料が家賃の50%(外税)です。
- 利用条件
- 株式会社京都ライフ 百万遍店で利用可
- 他特典との併用可
- ・法人契約時、事業用契約は除く。 ・積水ハウス、大東建託の管理物件は除く。
利用方法
来店時に本特典の画面をスマートフォンやタブレットでスタッフに提示、または画面印刷した用紙を提示ください。
有効期限 なし
安住の地、三室戸 スーパーや銀行、商業施設が近隣に多数有り
物件のこだわり/設備・条件
新築(非該当)
2階以上の物件(該当)
南向き(非該当)
駐車場あり(該当)
オートロック(該当)
エアコン(非該当)
バス・トイレ別(該当)
追焚機能(非該当)
フローリング(該当)
ペット相談(非該当)
入居条件
二人入居可- 上記以外や相談可の
詳細はお問合せください キッチン/バス・トイレ
設備・サービス
オートロック、BS対応、光ファイバー、公営水道、都市ガス、下水、フローリング、バルコニー、室内洗濯機置場、エレベーター、駐車場あり、駐輪場ありその他
住まい探し特典あり備考
京阪三室戸駅まで徒歩5分の3LDKマンションです。礼金、更新料ナシ。嬉しい3点セパレートなど充実の設備。オートロックでセキュリティも安心です。コンビニ、スーパー、ホームセンターなど近くにあって便利ですよ。 物件情報はもちろん京都のエリア情報まで幅広く対応させていただきます!
物件周辺の生活情報
買い物
- コンビニ(620m)
- スーパー(357m)
- ドラッグストア(1,600m)
その他施設
- 総合病院(966m)
- 銀行(170m)
- 宇治菟道郵便局(466m)
交通
- 京阪宇治線 三室戸駅 徒歩5分
- 普通(停車)
- JR奈良線 宇治駅 徒歩15分
- 普通(停車)
- 区間快速(停車)
- 快速(停車)
- みやこ路快速(停車)
※急行等の停車駅情報について
急行等の停車駅に関するデータは、随時更新をしておりますが、最新の内容であることを保証するものではありません。
最新かつ正確な情報につきましては、各鉄道会社のウェブサイトにてご確認ください
物件周辺の口コミ
- 京都府宇治市莵道に住む人の口コミ50代男性
歴史ある街で観光スポットがたくさんある割に人混みを気にしなくてよい。また名産品は日本でも一番と言われていて自慢できる。
口コミを見る
この物件周辺に住む人の口コミ
口コミは、LIFULL HOME'Sが実際にこの物件の周辺に住む18歳~69歳の男女を対象に、WEBアンケート調査を実施しています。内容には回答者の主観的な表現が含まれる場合があるほか、事実と異なる場合もございます。ご了承ください。
- 京都府宇治市莵道に住む人の口コミ50代男性
- 歴史ある街で観光スポットがたくさんある割に人混みを気にしなくてよい。また名産品は日本でも一番と言われていて自慢できる。
- 京都府宇治市莵道に住む人の口コミ40代女性
- 近くに駅やスーパーがあり、便利です。治安もさほど悪くないので、住みやすいところだと思います。
- 京都府宇治市莵道に住む人の口コミ50代男性
- 元々環境もいい歴史的な田舎町ですが、市政が停滞しておりサポート体制が弱い。従って、市民税も高いし公共サービスが悪いし、公共設備も充実していない。海外からの観光客で潤ってはいるが、寂しい田舎町です。
- 京都府宇治市莵道に住む人の口コミ60代女性
- ウグイスなどの鳥の鳴き声がしたり空気が綺麗で観光スポットも近くにあり、スーパーもたくさんあり住みやすい町です。
- 京都府宇治市莵道に住む人の口コミ30代男性
- 静かな環境で、自然も多いが、電車や高速道路の便がよく住みやすい
- 京都府宇治市莵道に住む人の口コミ30代女性
- 年配の世帯が周りに多いためか、静かで落ち着いている。近くに有名な川や寺院があり、散歩や観光がいつでもできる。土地や物価が安い。
- 京都府宇治市莵道に住む人の口コミ30代女性
- 自然に恵まれていて,子供も近所に多いので,今子育てをするにはとてもよい環境だと思うけれど,交通の便が悪いので,年を取ったときには買い物にも苦労すると思うから。
- 京都府宇治市莵道に住む人の口コミ60代男性
- 古事記、日本書紀にも記載されている古代からの地域で、世界文化遺産にも指定されている、自然が豊かで閑静な町である。また、治安も良く、自然災害もほとんどない。
- 京都府宇治市莵道に住む人の口コミ40代男性
- 終電が遅くまである(JR奈良線京都駅23時58分発、京阪宇治線中書島駅24時19分発)、交通の便が良い(JR奈良線30分毎、京阪宇治線10分毎)
- 京都府宇治市莵道に住む人の口コミ50代女性
- 京都市内に比べて静かで物価も安い。自然が多いので子育てしやすい。ただ、川が近いので春先に虫の大群が発生するのでそれだけが難点です。
物件概要
- 建物構造
- RC(鉄筋コンクリート)
- 駐車場
- 空有 10,000円(税込)
- 総戸数
- 77戸
- 契約形態
- -
- 契約期間
- 2年間
- 更新料
- 33,000円
- その他費用
- 害虫駆除費:22,000円、ファイテック消火剤:4,950円
- 保証会社
加入要
保証会社:グリーン保証
保証会社利用料:初回:月額賃料等の50%、更新時:月額賃料等の50%(初回保証料および更新保証料ともに最低保証料22000円)
- 住宅保険
- 要
- 管理
- 管理員:巡回
- LIFULL HOME'S
物件番号 - 0148837-0123428
- 自社管理番号
- 06225-710-28
- 取引態様
- 仲介
- 会社名
- 株式会社京都ライフ 百万遍店
営業スタッフコメント

株式会社京都ライフ 百万遍店
今西駿平
京都賃貸なら京都ライフへお任せください!
業界経験2年
資格少額短期保険募集人
- 会社実績や特徴・サービス情報
- 百万遍交差点から東へすぐ!住まいに関するご相談はお任せ下さい。 国内外から多くの学生、研究者の集まる京都大学のメインキャンパスである吉田キャンパス。その北側、今出川通を挟んで向かい側に京都ライフ百万遍店がございます。 学生向けのワンルーム、1K物件や、左京区近辺のファミリー物件など、豊富な物件情報からお客様に合った物件をご提案いたします。 京都大学以外にも京都工芸繊維大学、京都芸術大学、京都精華大学、京都府立大学、ノートルダム女子大学、京都産業大学といった近隣の大学生向けのお部屋探しもお任せください!京都ライフ百万遍店のスタッフがお手伝いいたします。
百万遍交差点から東へすぐ!住まいに関するご相談はお任せ下さい。 国内外から多くの学生、研究者の集まる京都大学のメインキャンパスである吉田キャンパス。その北側、今出川通を挟んで向かい側に京都ライフ百万遍店がございます。 学生向けのワンルーム、1K物件や、左京区近辺のファミリー物件など、豊富な物件情報からお客様に合った物件をご提案いたします。 京都大学以外にも京都工芸繊維大学、京都芸術大学、京都精華大学、京都府立大学、ノートルダム女子大学、京都産業大学といった近隣の大学生向けのお部屋探しもお任せください!京都ライフ百万遍店のスタッフがお手伝いいたします。
- 電話でお問合せ(通話無料)
お問合せ先 :株式会社京都ライフ 百万遍店
不動産会社情報
京阪電鉄・叡山電鉄「出町柳駅」から徒歩9分、叡山電鉄「元田中駅」から徒歩10分。京都大学からは今出川通を挟んですぐ向かい。京都大学周辺、百万遍エリア、左京区のお部屋探しならお任せ下さい。
- 店舗の特徴
- 賃貸管理業務
- リフォーム対応
- 引越し業者紹介可
- 年中無休
- 系列店舗での対応可
- 保証人不要な物件あり
- 法人契約取扱い
電話でお問合せお客様の電話番号は不動産会社には通知されません
- 不動産会社に
つながります
お客様の電話番号は不動産会社に通知されません
- ※光IP電話、及びIP電話からはご利用になれません
- ※お電話によるお問合せは、店舗営業時間内にお願いします。つながらない場合は、お問合せフォームよりお問合せください
- ※不動産会社がお電話に出られなかった場合、お問合せいただいた後に不動産会社より折り返しのお電話がある場合がございます(お客様が非通知設定した場合は対象外です)
- ※株式会社LIFULLは電話会社が提供するサービスを介してお客様の発信者番号を受領後、折り返し専用の電話番号を発番してお問合せの不動産会社に通知します(お客様の発信者番号がお問合せの不動産会社に通知されることはございません)
- ※携帯電話からお問合せいただいた方に対し、株式会社LIFULLは電話会社が提供するメッセ―ジサービスを介してお客様の発信者番号を受領後、ショートメッセージ(SMS)またはLINE通知メッセージによるお問合せ内容に関する通知をお届けする場合があります
- ※お客様が通話中に不動産会社にお伝えになったお客様の個人情報及び、電話会社が発番する折り返し専用の電話番号は、お問合せ先不動産会社が資料送付・電子メール送信・電話連絡などの目的で保管する可能性があります。お問合せ先不動産会社が保管する個人情報の取扱いについては、各不動産会社に直接お問合せください
- ※株式会社LIFULLでは本サービスを円滑に運用するために、お客様の発信者番号をサービスご利用の控えとして一定期間保管いたします
- ※上記および株式会社LIFULLの個人情報の取扱い方針に同意のうえ、お電話ください
【LIFULL HOME'S物件番号】0148837-0123428【自社管理番号】06225-710-28
初期費用・月額費用をあわせて確認!この物件に住んだときの費用めやす
めやすを見るこの物件に住んだときの費用めやす
- 初期費用
- 月額費用
- 追加費用※ご確認ください
追加で費用が
かかる場合があります
必ずご確認ください
初期費用めやす約0円
追加で費用がかかります(※)敷金
0
- 礼金
0
賃料+共益費・管理費の1ヶ月分として換算
賃料の1ヶ月分+税として換算。不動産会社によって金額が異なるため正確な金額は不動産会社にお問合せください
※追加費用もチェック!
これらの項目以外にも費用がかかる場合があります。正確な金額は不動産会社にお問合せください。
- 初期費用
- 鍵交換費:不動産会社に要確認
- 室内清掃費:不動産会社に要確認
- 火災保険費:不動産会社に要確認
- 月額費用
- 駐車場費:10,000円(税込)※契約任意
- その他
- 害虫駆除費:22000円
- ファイテック消火剤:4950円
- 保証会社
- 初回:月額賃料等の50%、更新時:月額賃料等の50%(初回保証料および更新保証料ともに最低保証料22000円)
不動産会社より
安住の地、三室戸 スーパーや銀行、商業施設が近隣に多数有り
京阪三室戸駅まで徒歩5分の3LDKマンションです。礼金、更新料ナシ。嬉しい3点セパレートなど充実の設備。オートロックでセキュリティも安心です。コンビニ、スーパー、ホームセンターなど近くにあって便利ですよ。 物件情報はもちろん京都のエリア情報まで幅広く対応させていただきます!
- 保存する
- 共有する
- ※各種情報と現状に差異がある場合は、現状優先となります
- ※不動産会社が入力した情報を基に物件の位置を表示しています。詳しくは不動産会社までお問合せください
- ※不動産会社の方からの上記電話番号によるお問合せはお断りしております。こちら不動産会社詳細からお問合せください
- ※LIFULL HOME'Sは物件鮮度No.1を目指していきます。閲覧中の物件が「成約済である」「実際の物件情報と異なる点がある」などの場合、「掲載110番」からお問合せください
- ※QRコードは株式会社デンソーウェーブの登録商標です
したい暮らしのタグから探す
この物件を取扱う他の会社
LIFULL HOME'Sでは、主要項目が同一の物件をまとめて表示しています。所在地や営業時間、掲載画像等から不動産会社を選んでお問合せください。
株式会社京都ライフ 京田辺店
京都府京田辺市田辺中央1丁目7-11
JR片町線(学研都市線) 京田辺駅 徒歩4分
- 営業時間
- 09:30~19:00
- 定休日
- 水曜定休(4/21〜9/20の期間)、盆・正月
株式会社京都ライフ 山科店
京都府京都市山科区竹鼻竹ノ街道町11
JR東海道・山陽本線 山科駅 徒歩3分
- 営業時間
- 09:30~19:00
- 定休日
- 夏期休暇 8月13日〜8月16日 年末年始休暇 12月27日〜1月4日
株式会社京都ライフ 三条烏丸店
優良店認定
京都府京都市中京区三条通烏丸東入梅忠町24 三条COHJUBLDG 1階
京都市営烏丸線 烏丸御池駅 徒歩3分
- 営業時間
- 09:30~19:00
- 定休日
- 年中無休(夏期・年末年始を除く)
LIFULL HOME'S 地図・周辺情報
買い物
- セブンイレブン 宇治三室戸店
- ハッピー六原三室戸店
- ダックス宇治三室戸店
- ローソン 宇治菟道店
- ワッツウィズ宇治莵道フレンドマート店
グルメ
- ガスト 宇治東店(から好し取扱店)
- サガミ 宇治東店
- すし処函館市場京阪宇治店
- マクドナルド 宇治東アルプラザ店
- リンガーハット アル・プラザ宇治東店
育児・教育
- あさひ保育園
- 宇治市立三室戸小学校
- 宇治市立東宇治中学校
- みんなのき三室戸こども園
- 宇治市立南部小学校
医療
- 医療法人社団一心会都倉病院
- 宇治武田病院
- 医療法人栄仁会宇治おうばく病院介護医療院むつみ
- 医療法人栄仁会・宇治おうばく病院
- 京都府立洛南病院
公共施設・郵便局
- 宇治菟道郵便局
- 宇治市東宇治図書館
- 宇治警察署
- 宇治橋郵便局
- 宇治市中央図書館
公園
- お茶と宇治のまち歴史公園
- 大吉山風致公園
- 莵道公園
- 東隼上り児童公園
- 府立宇治公園
利用可能な駅
- 徒歩10分以内
京阪宇治線
- 三室戸駅徒歩5分
- すべての駅
京阪宇治線
- 宇治駅徒歩11分
- 黄檗駅徒歩29分
JR奈良線
- 宇治駅徒歩15分
- 黄檗駅徒歩25分
- JR小倉駅3.2km
近鉄京都線
- 小倉駅3.5km
- 周辺情報は2023年07月21日時点のものになります。
- 周辺情報は、参考情報としてのみご利用ください(周辺情報は、株式会社LIFULLが地図情報の提供事業者から提供を受けた情報とLIFULL HOME'Sの物件情報に基づき、独自の方法で抽出し提供しているものです。周辺情報は、移転や閉鎖等により情報が最新ではない、または正しくない場合がありますが、地図情報の提供事業者から提供された情報をそのまま周辺情報として表示しているため、正確かつ最新の情報へ修正することができないことがあります。)
- 周辺情報は、株式会社LIFULLが掲載するものであり、不動産物件情報を掲載している不動産会社が掲載するものではありません
- 交通情報の一部については、株式会社LIFULLが掲載するものであり、不動産物件情報を掲載している不動産会社が掲載するものではない場合があります。交通情報に関する質問などは株式会社LIFULLにお問合せください













