LIFULL HOME'Sは物件鮮度No.1!※評価について
ホワイトハウス 1階/101
5.5万円/管理費等-
1時間前 更新
画像一覧
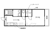
1/30間取り
間取
2/30外観
3/30外観
4/30外観
5/30リビング/ダイニング
6/30リビング/ダイニング
7/30室内
8/30室内
9/30キッチン
10/30キッチン
11/30浴室
12/30トイレ
13/30洗面
14/30収納
15/30設備
16/30玄関
17/30エントランス
18/30駐車場
19/30その他
20/30その他
21/30その他
22/30その他
23/30周辺
生鮮館なかむら 円町店まで620m
24/30周辺
セブンイレブン京都花園店まで400m
25/30周辺
ドラッグひかり 花園藤ノ木店まで510m
26/30周辺
京都民医連中央病院まで640m
27/30周辺
セブンイレブン西小路丸太町店まで450m
28/30周辺
サンディ 京都花園店まで500m
29/30周辺
京都花園郵便局まで500m
30/30周辺
京都中央信用金庫 花園支店まで400m
間取り
外観
外観
外観
リビング/ダイニング
リビング/ダイニング
室内
室内
キッチン
キッチン
浴室
トイレ
洗面
収納
設備
玄関
エントランス
駐車場
その他
その他
その他
その他
周辺
周辺
周辺
周辺
周辺
周辺
周辺
周辺
仲介手数料割引
仲介手数料は賃料の半月分と消費税となります。(個人契約に限る)
- 利用条件
- ウインズリンク株式会社 アパマンショップ西院店 で利用可
- 他特典との併用可
- ※積水ハウス、大東建託の管理物件は家賃1か月分が仲介手数料としてかかります。
利用方法
来店時に本特典の画面をスマートフォンやタブレットでスタッフに提示、または画面印刷した用紙を提示ください。
有効期限 2026年05月05日まで
改装が入り綺麗です。 室内を見ていただければきっと納得していただけると思います。
物件のこだわり/設備・条件
新築(非該当)
2階以上の物件(非該当)
南向き(該当)
駐車場あり(該当)
オートロック(非該当)
エアコン(該当)
バス・トイレ別(該当)
追焚機能(非該当)
フローリング(該当)
ペット相談(非該当)
位置
角部屋入居条件
保証人不要、即入居可キッチン/バス・トイレ
設備・サービス
TVモニタ付インターホン、エアコン、ウォークインクローゼット、BS対応、光ファイバー、公営水道、都市ガス、下水、フローリング、バルコニー、室内洗濯機置場、南面バルコニー、駐車場あり、駐輪場ありその他
住まい探し特典あり備考
JR花園駅徒歩5分。妙心寺があり京都を感じて頂ける環境です。駅の近くに飲食店も多くあり料理が苦手な方でも安心です。大きなスーパーも近くにあり買い物も便利です。築年数は建っているのですが、室内はリフォームをされているので床や壁はもちろん水周りもピカピカです。京都の賃貸ならアパマンショップ京都、西院店へお任せ下さい。
物件周辺の生活情報
買い物
- コンビニ(400m)
- スーパー(620m)
- ドラッグストア(510m)
その他施設
- 総合病院(640m)
- 銀行(400m)
- 京都花園郵便局(500m)
交通
- JR山陰本線 花園駅 徒歩9分
- 普通(停車)
- 快速とっとりライナー(通過)
- 快速通勤ライナー(通過)
- 快速(通過)
- JR山陰本線 円町駅 徒歩9分
- 普通(停車)
- 快速とっとりライナー(通過)
- 快速通勤ライナー(通過)
- 快速(停車)
※急行等の停車駅情報について
急行等の停車駅に関するデータは、随時更新をしておりますが、最新の内容であることを保証するものではありません。
最新かつ正確な情報につきましては、各鉄道会社のウェブサイトにてご確認ください
物件周辺の口コミ
- 京都府京都市北区平野鳥居前町に住む人の口コミ30代女性
落ち着いた街並みと子どもを連れて散歩しやすい神社があること。観光地など京都らしさを感じられる場所が多いこと。
口コミを見る
この物件周辺に住む人の口コミ
口コミは、LIFULL HOME'Sが実際にこの物件の周辺に住む18歳~69歳の男女を対象に、WEBアンケート調査を実施しています。内容には回答者の主観的な表現が含まれる場合があるほか、事実と異なる場合もございます。ご了承ください。
- 京都府京都市北区平野鳥居前町に住む人の口コミ30代女性
- 落ち着いた街並みと子どもを連れて散歩しやすい神社があること。観光地など京都らしさを感じられる場所が多いこと。
- 京都府京都市上京区仁和寺街道天神道上る西入に住む人の口コミ20代女性
- 交通は便利だし買い物も行きやすいがやはり自然が少ない。少し大通りにでると騒音も少し気になる時があるのでもう少し落ち着いた自然の多い所で暮らすのに憧れもあるから。
- 京都府京都市右京区花園猪ノ毛町に住む人の口コミ30代女性
- 治安がよく、安心して子育てができる。お年寄りが多い為火事や孤独死などの心配がある為どちらかといえばの評価になりました、
- 京都府京都市北区大将軍東鷹司町に住む人の口コミ30代女性
- 近隣住民は親しみやすくいい方ばかりで、閑静な住宅街なので住みやすい。
- 京都府京都市上京区千本通笹屋町下るに住む人の口コミ20代女性
- 利便性が高い。銀行、コンビニ、スーパー、眼科、内科、皮膚科、接骨院などの病院、学校など、全て自転車で行けるところ。また、バス停が近い。
- 京都府京都市右京区鳴滝蓮花寺町に住む人の口コミ30代男性
- 街からもほどよい距離で落ち着いた暮らしができるのでバランスはいいと思う。
- 京都府京都市右京区太秦安井西裏町に住む人の口コミ20代男性
- JR山陰本線 花園駅が近く、京都駅まで乗り換えなしでアクセス可能。京都市営地下鉄東西線 太秦天神川駅が近く、京都市都心部へのアクセスが便利。ライフ太秦店が近く、買い物に困ることは無い。
- 京都府京都市中京区西ノ京中御門東町に住む人の口コミ20代女性
- 普段生活する分には、スーパーマーケットやコンビニやドラッグストア、児童館、図書館なども近くにあり、特に困ることはないからです。
- 京都府京都市上京区六軒町通五辻上る西入に住む人の口コミ20代女性
- 住宅街で住みやすい。スーバーも近くにある。電車の駅からは少し遠いのが難点
- 京都府京都市北区大将軍西町に住む人の口コミ30代女性
- スーパーやコンビニ、金融機関や郵便局など、普段の生活に必要最低限の施設が複数揃っており、不満や困り事を感じないから。
物件概要
- 建物構造
- 軽量鉄骨造
- 駐車場
- 空有 12,000円(税込)
- 総戸数
- 8戸
- 契約形態
- -
- 契約期間
- 2年間
- 更新料
- 新賃料の1ヶ月分
- その他費用
- 鍵交換費用:13,200円、室内清掃費用:33,000円、シャーメゾンライフSUPPRT24:1,320円
- 保証会社
加入要
保証会社:らくらくパートナー
保証会社利用料:初回:3.3万円、月額:保証料として月額賃料等の2%
- 住宅保険
- 要
- 管理
- -
- LIFULL HOME'S
物件番号 - 0113627-0253700
- 自社管理番号
- 00925-101
- 取引態様
- 仲介
- 会社名
- ウインズリンク株式会社 アパマンショップ西院店
営業スタッフコメント

ウインズリンク株式会社 アパマンショップ西院店
速水歩
女性が好む食料品が好みです。
業界経験4年
資格少額短期保険募集人
- 会社実績や特徴・サービス情報
- アパマンショップ西院店の掲載物件をご覧いただき、ありがとう御座います。 当店は右京区・中京区・下京区・西京区を中心に阪急沿線、地下鉄沿線、JR沿線と 京都市内全域の物件を取り扱い、幅広い物件のご提案・ご紹介が可能です。 社会人様・カップル様・ファミリー様をはじめ、京都外国語大学・立命館大学・ 京都先端科学大学・大和学園などの学生様・留学生様まで当店のスタッフが 貴方のお部屋探しに最大限、尽力させていただきます。 ちょっとしたご相談や1件の見学からでもお気軽にお問い合わせ下さいませ。
アパマンショップ西院店の掲載物件をご覧いただき、ありがとう御座います。 当店は右京区・中京区・下京区・西京区を中心に阪急沿線、地下鉄沿線、JR沿線と 京都市内全域の物件を取り扱い、幅広い物件のご提案・ご紹介が可能です。 社会人様・カップル様・ファミリー様をはじめ、京都外国語大学・立命館大学・ 京都先端科学大学・大和学園などの学生様・留学生様まで当店のスタッフが 貴方のお部屋探しに最大限、尽力させていただきます。 ちょっとしたご相談や1件の見学からでもお気軽にお問い合わせ下さいませ。
- 電話でお問合せ(通話無料)
お問合せ先 :ウインズリンク株式会社 アパマンショップ西院店
不動産会社情報
ウインズリンク株式会社 アパマンショップ西院店 アパマンショップ西院店

京都府京都市右京区西院巽町41
阪急京都本線 西院駅 徒歩1分
- 営業時間
- 09:30~19:00
- 定休日
- なし(盆休み8/13〜8/16・年末年始12/27〜1/4)
優良店認定
右京区・中京区を中心に市内全域ご対応可能。シャーメゾンSHOPであり他社様では取り扱えない物件も多数あり、ご厚意にして頂いている家主様も多く様々なご相談が可能。お部屋探しは当店へお気軽にご相談下さい。
- 店舗の特徴
- 賃貸管理業務
- リフォーム対応
- 引越し業者紹介可
- 年中無休
- 保証人不要な物件あり
- 法人契約取扱い
- 女性スタッフ対応可
- 駅から歩いて3分以内
電話でお問合せお客様の電話番号は不動産会社には通知されません
- 不動産会社に
つながります
お客様の電話番号は不動産会社に通知されません
- ※光IP電話、及びIP電話からはご利用になれません
- ※お電話によるお問合せは、店舗営業時間内にお願いします。つながらない場合は、お問合せフォームよりお問合せください
- ※不動産会社がお電話に出られなかった場合、お問合せいただいた後に不動産会社より折り返しのお電話がある場合がございます(お客様が非通知設定した場合は対象外です)
- ※株式会社LIFULLは電話会社が提供するサービスを介してお客様の発信者番号を受領後、折り返し専用の電話番号を発番してお問合せの不動産会社に通知します(お客様の発信者番号がお問合せの不動産会社に通知されることはございません)
- ※携帯電話からお問合せいただいた方に対し、株式会社LIFULLは電話会社が提供するメッセ―ジサービスを介してお客様の発信者番号を受領後、ショートメッセージ(SMS)またはLINE通知メッセージによるお問合せ内容に関する通知をお届けする場合があります
- ※お客様が通話中に不動産会社にお伝えになったお客様の個人情報及び、電話会社が発番する折り返し専用の電話番号は、お問合せ先不動産会社が資料送付・電子メール送信・電話連絡などの目的で保管する可能性があります。お問合せ先不動産会社が保管する個人情報の取扱いについては、各不動産会社に直接お問合せください
- ※株式会社LIFULLでは本サービスを円滑に運用するために、お客様の発信者番号をサービスご利用の控えとして一定期間保管いたします
- ※上記および株式会社LIFULLの個人情報の取扱い方針に同意のうえ、お電話ください
【LIFULL HOME'S物件番号】0113627-0253700【自社管理番号】00925-101
初期費用・月額費用をあわせて確認!この物件に住んだときの費用めやす
めやすを見るこの物件に住んだときの費用めやす
- 初期費用
- 月額費用
- 追加費用※ご確認ください
追加で費用が
かかる場合があります
必ずご確認ください
初期費用めやす約0円
追加で費用がかかります(※)敷金
20,000
- 礼金
80,000
賃料+共益費・管理費の1ヶ月分として換算
賃料の1ヶ月分+税として換算。不動産会社によって金額が異なるため正確な金額は不動産会社にお問合せください
※追加費用もチェック!
これらの項目以外にも費用がかかる場合があります。正確な金額は不動産会社にお問合せください。
- 初期費用
- 鍵交換費:13,200円
- 室内清掃費:33,000円
- 火災保険費:不動産会社に要確認
- 月額費用
- 駐車場費:12,000円(税込)※契約任意
- その他
- シャーメゾンライフSUPPRT24:1320円
- 保証会社
- 初回:3.3万円、月額:保証料として月額賃料等の2%
不動産会社より
改装が入り綺麗です。 室内を見ていただければきっと納得していただけると思います。
JR花園駅徒歩5分。妙心寺があり京都を感じて頂ける環境です。駅の近くに飲食店も多くあり料理が苦手な方でも安心です。大きなスーパーも近くにあり買い物も便利です。築年数は建っているのですが、室内はリフォームをされているので床や壁はもちろん水周りもピカピカです。京都の賃貸ならアパマンショップ京都、西院店へお任せ下さい。
- 保存する
- 共有する
- ※各種情報と現状に差異がある場合は、現状優先となります
- ※不動産会社が入力した情報を基に物件の位置を表示しています。詳しくは不動産会社までお問合せください
- ※不動産会社の方からの上記電話番号によるお問合せはお断りしております。こちら不動産会社詳細からお問合せください
- ※LIFULL HOME'Sは物件鮮度No.1を目指していきます。閲覧中の物件が「成約済である」「実際の物件情報と異なる点がある」などの場合、「掲載110番」からお問合せください
- ※QRコードは株式会社デンソーウェーブの登録商標です
したい暮らしのタグから探す
最近見た賃貸物件
LIFULL HOME'S 地図・周辺情報
買い物
- セブンイレブン 京都太秦安井藤ノ木町店
- やまや花園店
- V・drug太子道店
- セブンイレブン 西小路丸太町店
- サンディ京都花園店
グルメ
- CoCo壱番屋 京都花園店
- 餃子の王将 花園店
- マクドナルド 太秦ライフ店
- ドトールコーヒーショップ円町駅前店
- なか卯 円町店
育児・教育
- 安井幼稚園
- 京都市立花園小学校
- 私立花園中学校
- 安井保育園
- 京都市立安井小学校
医療
- (財)泉谷病院
- 社会医療法人太秦病院
- 医療法人西大路病院
- 医療法人新生十全会京都ならびがおか病院
- 医療法人愛智会京都北野病院
公共施設・郵便局
- 京都太秦安井郵便局
- 京都市右京中央図書館
- 京都市右京区役所
- 京都花園郵便局
- 京都市中央図書館
公園
- 土堂公園
- 西院公園
- 東大丸公園
- 光徳公園
- 広沢池公園
利用可能な駅
- 徒歩10分以内
JR山陰本線
- 花園駅徒歩9分
- 円町駅徒歩9分
- すべての駅
京福電気鉄道嵐山本線
- 山ノ内駅徒歩16分
- 蚕ノ社駅徒歩20分
- 嵐電天神川駅徒歩20分
- 太秦広隆寺駅徒歩21分
- 西大路三条駅徒歩24分
- 帷子ノ辻駅徒歩30分
- 西院駅徒歩33分
- 有栖川駅徒歩37分
- 四条大宮駅3.7km
京福電気鉄道北野線
- 等持院・立命館大学衣笠キャンパス前駅徒歩17分
- 御室仁和寺駅徒歩21分
- 妙心寺駅徒歩21分
- 龍安寺駅徒歩22分
- 北野白梅町駅徒歩24分
- 常盤駅徒歩24分
- 宇多野駅徒歩26分
- 撮影所前駅徒歩27分
- 鳴滝駅徒歩27分
京都地下鉄東西線
- 太秦天神川駅徒歩18分
- 西大路御池駅徒歩21分
- 二条城前駅3.2km
JR山陰本線
- 太秦駅徒歩29分
- 二条駅徒歩32分
阪急京都本線
- 西院駅徒歩31分
- 西京極駅3.3km
- 大宮駅3.7km
- 周辺情報は2023年07月21日時点のものになります。
- 周辺情報は、参考情報としてのみご利用ください(周辺情報は、株式会社LIFULLが地図情報の提供事業者から提供を受けた情報とLIFULL HOME'Sの物件情報に基づき、独自の方法で抽出し提供しているものです。周辺情報は、移転や閉鎖等により情報が最新ではない、または正しくない場合がありますが、地図情報の提供事業者から提供された情報をそのまま周辺情報として表示しているため、正確かつ最新の情報へ修正することができないことがあります。)
- 周辺情報は、株式会社LIFULLが掲載するものであり、不動産物件情報を掲載している不動産会社が掲載するものではありません
- 交通情報の一部については、株式会社LIFULLが掲載するものであり、不動産物件情報を掲載している不動産会社が掲載するものではない場合があります。交通情報に関する質問などは株式会社LIFULLにお問合せください















































