LIFULL HOME'Sは物件鮮度No.1!※評価について
D’s Court 2階
3.5万円/管理費等4,000円
1時間前 更新
画像一覧
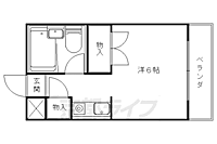
1/30間取り
2/30外観
3/30外観
4/30リビング/ダイニング
洋室
5/30室内
洋室
6/30寝室
洋室
7/30子供部屋
洋室
8/30キッチン
キッチン
9/30キッチン
キッチン
10/30キッチン
キッチン
11/30浴室
ユニットバス
12/30浴室
洗面台
13/30浴室
ユニットバス
14/30トイレ
トイレ
15/30収納
収納
16/30収納
収納
17/30設備
冷蔵庫置場
18/30設備
洗濯機置場
19/30設備
洗濯機置場
20/30玄関
玄関
21/30バルコニー
ベランダ
22/30エントランス
エントランス
23/30その他
廊下
24/30その他
眺望
25/30その他
エアコン
26/30その他
TVモニターフォン
27/30その他
眺望
28/30周辺
サンディ 山科竹鼻店まで380メートル
29/30周辺
ファミリーマート 山科三条通店まで430メートル
30/30周辺
スギ薬局 山科店まで450メートル
間取り
外観
外観
リビング/ダイニング
室内
寝室
子供部屋
キッチン
キッチン
キッチン
浴室
浴室
浴室
トイレ
収納
収納
設備
設備
設備
玄関
バルコニー
エントランス
その他
その他
その他
その他
その他
周辺
周辺
周辺
お問合せ先 :株式会社エリッツ 六地蔵店
仲介手数料割引
ご成約時の仲介手数料が賃料の半月分(税別)です。
- 利用条件
- 株式会社エリッツ 六地蔵店で利用可
- 他特典との併用可
- 借主が法人または一部の物件は対象外です。
利用方法
来店時に本特典の画面をスマートフォンやタブレットでスタッフに提示、または画面印刷した用紙を提示ください。
有効期限 なし
インターネット無料物件です。--パノラマ掲載--
物件のこだわり/設備・条件
新築(非該当)
2階以上の物件(該当)
南向き(非該当)
駐車場(非該当)
オートロック(該当)
エアコン(該当)
バス・トイレ別(非該当)
追焚機能(非該当)
フローリング(非該当)
ペット相談(非該当)
位置
角部屋入居条件
二人入居不可、単身者限定、保証人不要キッチン/バス・トイレ
設備・サービス
オートロック、防犯カメラ、TVモニタ付インターホン、エアコン、クローゼット、インターネット対応、インターネット使用料無料、公営水道、都市ガス、下水、バルコニー、洗濯機置場あり、宅配ボックス、バイク置き場あり、駐輪場ありその他
初期費用カード決済可、住まい探し特典あり備考
JR・地下鉄山科駅まで徒歩13分。京津線四ノ宮駅まで徒歩9分。徒歩6分ほどでスーパー・コンビニ・ドラックストアがあり生活に便利な立地です。山科駅は5分で京都駅に向かえますので大変便利です。・インターネット無料
物件周辺の生活情報
学校
- 音羽小学校(500m)
- 音羽中学校(1,400m)
買い物
- コンビニ(430m)
- スーパー(380m)
- ドラッグストア(450m)
その他施設
- 総合病院(680m)
交通
- JR東海道・山陽本線 山科駅 徒歩13分
- 普通(停車)
- 新快速(停車)
- 快速(停車)
- 緩行電車(停車)
- 特別快速(通過)
- 区間快速(通過)
- 京都地下鉄東西線 山科駅 徒歩13分
- 普通(停車)
※急行等の停車駅情報について
急行等の停車駅に関するデータは、随時更新をしておりますが、最新の内容であることを保証するものではありません。
最新かつ正確な情報につきましては、各鉄道会社のウェブサイトにてご確認ください
物件周辺の口コミ
- 京都府京都市山科区音羽前出町に住む人の口コミ30代女性
歩いて10分以内にスーパーが5件あるし、その他何でもそろうから
口コミを見る
この物件周辺に住む人の口コミ
口コミは、LIFULL HOME'Sが実際にこの物件の周辺に住む18歳~69歳の男女を対象に、WEBアンケート調査を実施しています。内容には回答者の主観的な表現が含まれる場合があるほか、事実と異なる場合もございます。ご了承ください。
- 京都府京都市山科区音羽前出町に住む人の口コミ30代女性
- 歩いて10分以内にスーパーが5件あるし、その他何でもそろうから
- 京都府京都市山科区音羽前出町に住む人の口コミ30代女性
- スーパーが近くに5件あって電車も3社走ってるけどパトカーの音が日頃からよくなっているので少し不安に思います
- 京都府京都市山科区音羽草田町に住む人の口コミ30代女性
- 交通の便が良いので、街にもアクセスしやすく遊びに行きやすい。
- 京都府京都市山科区四ノ宮垣ノ内町に住む人の口コミ30代女性
- 駅が近く、移動しやすい。スーパーもあるので困らない。近くに自然がある。
- 京都府京都市山科区四ノ宮川原町に住む人の口コミ20代女性
- 自分の住んでいるところはスーパーから離れているので、そこが不満かな?というだけで他にはさほど不便してないので。
- 京都府京都市山科区安朱堂ノ後町に住む人の口コミ30代女性
- 自然がたくさんあり公園がさまざまなところにある季節によって、色々な行事がある
- 京都府京都市山科区音羽役出町に住む人の口コミ20代女性
- スーパー、ホームセンター、ドラッグストアが徒歩圏内にある。駅が近い
- 京都府京都市山科区竹鼻扇町に住む人の口コミ30代女性
- 交通の便がよく出かけやすい。スーパーも充実していて、買い物がしやすい。
- 京都府京都市山科区竹鼻西ノ口町に住む人の口コミ30代女性
- 近くにJR、地下鉄、バスなど公共交通機関が整っており、スーパー、病院、コンビニなどが、家から歩いていける場所にある。治安が悪いと感じたことはないし、騒音もならない。
- 京都府京都市山科区安朱南屋敷町に住む人の口コミ30代女性
- 実家のある滋賀が田舎で、それに比べれば都会的な暮らしができて便利。
物件概要
- 建物構造
- ALC造
- 駐車場
- 近隣 8,000円(税無) 物件からの距離421m
- 総戸数
- 14戸
- 契約形態
- -
- 契約期間
- 2年間
- 更新料
- 30,000円
- その他費用
- 鍵交換費用:16,500円、室内清掃費用:49,500円、その他(初回):2,750円、家賃保証料(月額):1,190円
- 保証会社
加入要
保証会社利用料:18、000円
- 住宅保険
- 要
- 管理
- -
- LIFULL HOME'S
物件番号 - 0118323-0229035
- 自社管理番号
- 4965-0208
- 取引態様
- 一般媒介
- 会社名
- 株式会社エリッツ 六地蔵店
営業スタッフコメント

株式会社エリッツ 六地蔵店
三崎日向
元気に精一杯務めさせていただきます。
業界経験4年
資格少額短期保険募集人
- 会社実績や特徴・サービス情報
- エリッツは京都No.1の店舗数を誇りますので、宇治市内に限らず、京都ならどこでもご紹介・ご案内させて頂けます。賃貸物件をお探しの方は、是非エリッツ六地蔵店をご利用下さいませ。
エリッツは京都No.1の店舗数を誇りますので、宇治市内に限らず、京都ならどこでもご紹介・ご案内させて頂けます。賃貸物件をお探しの方は、是非エリッツ六地蔵店をご利用下さいませ。
- 電話でお問合せ(通話無料)
お問合せ先 :株式会社エリッツ 六地蔵店
不動産会社情報
株式会社エリッツ 六地蔵店賃貸のエリッツ六地蔵店

京都府宇治市六地蔵奈良町74番地1 パデシオン六地蔵 ザ・ミッドモール1階
京都地下鉄東西線 六地蔵駅 徒歩1分
- 営業時間
- 10:00~19:00
- 定休日
- 水曜日(祝日を除く)、年末年始 お部屋探しのお問い合わせは無休
優良店認定
エリッツは京都No.1の店舗数を誇りますので、宇治市内に限らず、京都ならどこでもご紹介・ご案内させて頂けます!!賃貸物件をお探しの方は、是非エリッツ六地蔵店をご利用下さいませ!
- 店舗の特徴
- 賃貸管理業務
- 引越し業者紹介可
- 駐車場あり
- バリアフリー
- 系列店舗での対応可
- オンライン相談可
- 保証人不要な物件あり
- 法人契約取扱い
- 駅から歩いて3分以内
電話でお問合せお客様の電話番号は不動産会社には通知されません
- 不動産会社に
つながります
お客様の電話番号は不動産会社に通知されません
- ※光IP電話、及びIP電話からはご利用になれません
- ※お電話によるお問合せは、店舗営業時間内にお願いします。つながらない場合は、お問合せフォームよりお問合せください
- ※不動産会社がお電話に出られなかった場合、お問合せいただいた後に不動産会社より折り返しのお電話がある場合がございます(お客様が非通知設定した場合は対象外です)
- ※株式会社LIFULLは電話会社が提供するサービスを介してお客様の発信者番号を受領後、折り返し専用の電話番号を発番してお問合せの不動産会社に通知します(お客様の発信者番号がお問合せの不動産会社に通知されることはございません)
- ※携帯電話からお問合せいただいた方に対し、株式会社LIFULLは電話会社が提供するメッセ―ジサービスを介してお客様の発信者番号を受領後、ショートメッセージ(SMS)またはLINE通知メッセージによるお問合せ内容に関する通知をお届けする場合があります
- ※お客様が通話中に不動産会社にお伝えになったお客様の個人情報及び、電話会社が発番する折り返し専用の電話番号は、お問合せ先不動産会社が資料送付・電子メール送信・電話連絡などの目的で保管する可能性があります。お問合せ先不動産会社が保管する個人情報の取扱いについては、各不動産会社に直接お問合せください
- ※株式会社LIFULLでは本サービスを円滑に運用するために、お客様の発信者番号をサービスご利用の控えとして一定期間保管いたします
- ※上記および株式会社LIFULLの個人情報の取扱い方針に同意のうえ、お電話ください
【LIFULL HOME'S物件番号】0118323-0229035【自社管理番号】4965-0208
オンライン対応
オンライン相談・IT重説に対応している物件です

「オンライン内見」「オンライン相談」「IT重説」とは?
物件の内見や不動産会社スタッフとの相談、契約前の重要事項説明をオンライン(ビデオ通話)で行うことができるサービスです。
オンライン内見
ビデオ通話で現地(物件)にいる不動産会社スタッフと映像・音声を使ってリアルタイムで会話しながら内見ができます。
オンライン相談
「物件について聞きたいことがある」など不動産会社スタッフへの相談もビデオ通話で行うことができます。
IT重説
契約前の重要事項説明(重説)をビデオ通話で行うことができます。
利用時の注意事項
- ビデオ通話については各不動産会社指定のものとなります。
- ビデオ通話利用時には通信が発生します。従量課金制通信サービスや通信量に上限があるネット回線・プランを利用する場合は、通信量にご注意ください。
- 通信速度やアプリの設定によってはビデオ通話の画質が低下することがあります。安定した画質で利用するためにも、Wi-Fi環境下での利用を推奨します。
- ご利用のビデオ通話アプリによっては、対象のOSやブラウザに制限がある場合があります。詳しくはお問合せ先不動産会社にご確認ください。
初期費用・月額費用をあわせて確認!この物件に住んだときの費用めやす
めやすを見るこの物件に住んだときの費用めやす
- 初期費用
- 月額費用
- 追加費用※ご確認ください
追加で費用が
かかる場合があります
必ずご確認ください
初期費用めやす約0円
追加で費用がかかります(※)敷金
0
- 礼金
0
賃料+共益費・管理費の1ヶ月分として換算
賃料の1ヶ月分+税として換算。不動産会社によって金額が異なるため正確な金額は不動産会社にお問合せください
※追加費用もチェック!
これらの項目以外にも費用がかかる場合があります。正確な金額は不動産会社にお問合せください。
- 初期費用
- 鍵交換費:16,500円
- 室内清掃費:49,500円
- 火災保険費:不動産会社に要確認
- 月額費用
- 駐車場費:8,000円※近隣
- その他
- その他(初回):2750円
- 家賃保証料(月額):1190円
- 保証会社
- 18、000円
不動産会社より
インターネット無料物件です。--パノラマ掲載--
JR・地下鉄山科駅まで徒歩13分。京津線四ノ宮駅まで徒歩9分。徒歩6分ほどでスーパー・コンビニ・ドラックストアがあり生活に便利な立地です。山科駅は5分で京都駅に向かえますので大変便利です。・インターネット無料
- 保存する
- 共有する
- ※各種情報と現状に差異がある場合は、現状優先となります
- ※不動産会社が入力した情報を基に物件の位置を表示しています。詳しくは不動産会社までお問合せください
- ※不動産会社の方からの上記電話番号によるお問合せはお断りしております。こちら不動産会社詳細からお問合せください
- ※LIFULL HOME'Sは物件鮮度No.1を目指していきます。閲覧中の物件が「成約済である」「実際の物件情報と異なる点がある」などの場合、「掲載110番」からお問合せください
- ※QRコードは株式会社デンソーウェーブの登録商標です
したい暮らしのタグから探す
最近見た賃貸物件
LIFULL HOME'S 地図・周辺情報
買い物
- ファミリーマート 渋谷街道音羽店
- サンディ山科竹鼻店
- スギ薬局山科店
- ローソン 山科四ノ宮店
- ダイソー山科音羽店
グルメ
- ドトールコーヒーショップEneJet京都東インター店
- ガスト 京都山科店(から好し取扱店)
- なか卯 山科三条通店
- マクドナルド 山科西友店
- 餃子の王将 山科駅前店
育児・教育
- 西念寺こども園
- 京都市立音羽小学校
- 京都市立音羽中学校
- 山科幼稚園
- 京都市立音羽川小学校
医療
- 一般社団法人愛生会山科病院
- 医療法人社団洛和会洛和会音羽病院
- 加藤山科病院
- 医療法人社団洛和会洛和会音羽リハビリテーション病院
- 医療法人洛和会洛和会音羽記念病院
公共施設・郵便局
- 京都山科竹鼻郵便局
- 京都市山科図書館
- 京都市山科区役所
- 京都山科音羽郵便局
- 山科警察署
公園
利用可能な駅
- 徒歩10分以内
京阪京津線
- 四宮駅徒歩9分
- すべての駅
京都地下鉄東西線
- 東野駅徒歩11分
- 山科駅徒歩13分
- 椥辻駅徒歩26分
JR東海道・山陽本線
- 山科駅徒歩13分
京阪京津線
- 京阪山科駅徒歩13分
- 追分駅徒歩23分
- 御陵駅徒歩30分
- 大谷駅3.3km
- 周辺情報は2023年07月21日時点のものになります。
- 周辺情報は、参考情報としてのみご利用ください(周辺情報は、株式会社LIFULLが地図情報の提供事業者から提供を受けた情報とLIFULL HOME'Sの物件情報に基づき、独自の方法で抽出し提供しているものです。周辺情報は、移転や閉鎖等により情報が最新ではない、または正しくない場合がありますが、地図情報の提供事業者から提供された情報をそのまま周辺情報として表示しているため、正確かつ最新の情報へ修正することができないことがあります。)
- 周辺情報は、株式会社LIFULLが掲載するものであり、不動産物件情報を掲載している不動産会社が掲載するものではありません
- 交通情報の一部については、株式会社LIFULLが掲載するものであり、不動産物件情報を掲載している不動産会社が掲載するものではない場合があります。交通情報に関する質問などは株式会社LIFULLにお問合せください


















































